H2L
현창용, 황정현
분량5,463자 / 11분 / 도판 12장
발행일2020년 2월 29일
유형인터뷰
기반은 같되 다른 결을 가진 우리의 건축 공부가 보여주듯, 최소의 건축공간에서부터 공동체의 플랫폼인 도시공간에 이르기까지 다양한 스펙트럼의 관심사를 서로 상보적으로 공유하며 작업을 이어가고 있다. 건축에 기초하지만 건축설계에 함몰되지 않는, 실무와 연구, 교육과 사회봉사 전반에 기여할 수 있는 폭넓은 건축 직능을 갖추고자 노력 중이다. 작은 협소주택에서부터 갤러리, 근린생활시설, 물류창고, 공동주택, 업무시설, 리모델링 등 용도와 규모에 구애받지 않고, 건축설계 작업과 도시재생 뉴딜사업, 마스터플랜까지 다양한 연구와 건축 작업을 수행하고 있다.
우리네 도시공간을 건강하게 채워갈 수 있는 작고 보편적인 건축을 충실히 수행하는 것을 우리의 건축 직능 수련의 시작점으로 삼고 있다. 설계과정 중 꾸준히, 그리고 조심스럽게 우리가 만들어가는 보편의 건축 틈에서 우리만의 특수성을 탐색하는 중이다. 드러나지 않는 특수성이 우리 건축의 양식이 될 것이라고 믿는다. 그 특수성은 도시와의 접속, 주변 공간과의 조화를 끊임없이 질문했던 황정현의 건축 공부와, 단위 공간의 수직적 수평적 조직에 대한 공간 구조의 당위성을 찾는 현창용의 건축 공부에서 싹튼 천성과도 같은 것이다.
보편의 건축에 우리만의 특수성을 신중히 쌓아 올리는 것이 우리 목표이기에, 형태와 재료에 대한 탐닉은 우리와 어울리지 않는다. 작업을 거듭할수록 그저 반듯하고 담담한, 우리 도시공간 속에 소리 없이 묻혀 있는 건축을 만들고 있다. 도시공간에서 건축공간으로 전이되는 과정과 그 과정을 만들어내는 공간구조, 프로그램의 배치와 연계, 내부공간의 움직임과 경험을 만들어내는 세밀한 조직을 담아내려 한다. 보통의 건물들이 저마다의 특별함으로 우리 사회의 다양성을 만들어 낼 수 있길 기대한다. 이 지점을, 거창하지만 우리 작업의 목표라 말하고 싶다. 건축공간에서 시작된 다양성의 확장과 자연스러운 교류가 열린 사회, 열린 공간을 만드는 밑거름이 되리라 믿는다.
H2L
황정현과 현창용은 중앙대학교에서 함께 건축을 수학했다. 이후 황정현은 동 대학원 도시건축연구실에서 도시설계와 경관디자인을, 정일건축과 정림건축에서 공동주택 실무를 수행하며 다양한 스케일의 설계와 연구를 경험했다. 현창용은 간삼건축을 거쳐 동 대학원에서 공공건축물의 공간구조에서 찾을 수 있는 권력과 공공성을 주제로 박사학위를 받았다. 둘은 대한민국 건축사 자격 취득 후 2015년 Architects H2L을 설립했다. 현재 황정현은 H2L을 이끌며 동원대학교와 중앙대학교의 건축학부에 출강 중이고, 현창용은 공주대학교 건축학부 교수로 재직하며 인천광역시와 충남교육청의 학교공간혁신 퍼실리테이터로 활동 중이다. architectsh2l.com
* 이승규는 2019년 8월 이후 개인사정으로 퇴사함.

앞선 실무 경험에서 얻은 것은?: 종합 운영 시스템
이승규 간삼건축에 입사 후 2년 차부터 기획설계팀으로 옮겨 실무 경험의 거의 모든 시간을 보냈다. 보통 대형 설계사무소에서 대규모 프로젝트에 참여하면 그것만 2년 정도 진행한다. 반면 기획설계팀의 경우는 수주를 위해서 좀더 빠른 템포로 프로젝트를 소화했다. 법규, 클라이언트 요구사항, 시공비 같은 조건에 얽매이지 않고 내가 원하는 디자인을 해서 내보낼 수 있었다. 이때 경험했던 프로젝트는 45평짜리 주택, 30층짜리 오피스텔, 호텔, 노인 요양 병원 등 다양했다. 그래서 독립해서 다양한 조건의 대지를 받아들었을 때 유연하게 대처할 수 있었다.
현창용 이승규 소장과 같이 기획설계팀에서 일했다. 지금 생각해보면 기획설계팀은 매우 이상적이었다. 기획이라는 업무, 회사 전체의 수주에 관한 일을 진행하면서도 회사가 클라이언트와 직원을 관리하는 방식, 설계비를 제안하는 방법, 클라이언트와 소통하는 편지 쓰는 방법까지 운영 시스템 전반을 직접 보고 배울 수 있었다.
우리가 개업하자마자 가장 먼저 한 일은 문서와 서식의 표준을 만드는 것이었다. 완성본을 보지 못하고 계약해야 하는 건축설계의 특성상, 만나기 전에 주고받는 이메일, 몇 자 안 되는 커버 레터 같은 소소한 것들이 전문가로서 신뢰를 주는 첫인상이 된다.
황정현 나는 둘과는 조금 다르게 대학원에서 도시설계를 전공하면서 경관계획, 도시디자인 기본계획, 마스터플랜 등의 프로젝트를 경험했다. 건축에 대한 갈망이 계속 있었고, 졸업 후에는 건축설계 분야로 취업할 생각이었다. 마스터플랜의 경험을 살릴 수 있는 분야를 찾다가 공동주택 설계 쪽에서 5년 정도 실무 경험을 쌓았다. 거기서 대중에게 친숙한 치수와 면적에 대한 감각을 익혔고, 클라이언트가 이해하기 쉽게 설명하는 방법을 배웠다.
지향점이 있다면?: 보편성
청중A ‘특수성과 보편성’이라는 발표 주제에 관해 묻고 싶다. 나도 인테리어 디자인이나 다세대 다가구 주택 설계를 하다 보면 일상적으로 부딪히는 문제가 있는데, H2L도 그 과정에서 나름의 해답을 찾아나아가는 것 같다. 그런 일상적인 문제가 한국에서 보편적일 수 있지만, 넓은 시각에서 본다면 ‘한국’이라는 특수한 상황 때문에 벌어지는 것 같기도 하다. 그 특수성이 우리 건축 문화를 척박하게 만들고 가치를 떨어뜨리는 것 같다. 그래서 오히려 보편적인 건축의 가치를 만드는 게 건축가의 중요한 일일 수 있다. 이에 대해 어떻게 생각하나?
이승규 ‘보편적인 가치가 더 중요할 수 있다’는 말에 100 프로 동의한다. 보편적인 것과 특수한 것 사이의 가치 판단을 내리고 싶지 않다. 보편적인 가치가 중요하다는 사실에 공감하며 단지 그중에서도 색다른 시도를 해보고 싶은 마음 정도로 이해해주면 좋겠다.
황정현 보편적인 것이 언제까지나 보편적이지 않다. 시간이 흐르거나 문맥이 바뀌면 오히려 특수한 가치가 될 수도 있다. 우리는 재미있고 실험적인 공간을 ‘보편적이지 않은 것’으로 생각해 여러 차례 시도하고 있지만, 이런 시도는 젊은 건축가들 사이에서 빈번하다. 그렇다면 이런 노력이 10년, 20년 쌓이면 그때는 보편적인 것이 될 수 있다고 믿는다. 지금 흔히 볼 수 있는 1980년대식 건물도 당시 건축가들은 특수한 것으로 생각했을지 모른다. 보편성과 특수성은 순환하는 것이 아닐까.
현창용 보편성을 기본, 기본기, 기초 정도의 단어로 통역하면 좋겠다. 국가 주도로 주택을 공급하던 과정에서 생긴 인식이 대중 사이에서 크게 자리 잡았었다. 국가가 보급하는 공동주택이 민간에서 지은 것보다 훨씬 위생적이고 좋다는 그런 생각이다. 그 인식이 이후로도 한동안 이어졌고, 현재는 아파트에 대한 신뢰(아파트 외의 집에 대한 평가 절하)로 이어졌다고 생각한다. 근래 들어 조금씩 인식의 변화가 생기고 있는 것 같다. 그래서 지금 우리 또래 젊은 건축가들이 꼭 지켜야 할 한 가지가 ‘기초가 탄탄한 집을 보편적으로 만들어내는 것’이라는 생각이 든다.
현재 관심사는?: 도시 리서치
심미선 두 리모델링 작업(연립빵공장, 잭슨카멜레온)에서 보여준 인포그래픽 도시 분석 방식이 인상적이었다. 설계 과정에서 과거의 흔적을 참조하는 이유는?
이승규 건물이 처한 조건이 변화하는 양상을 포착하기 위함이다. 동네가 변하는 이유가 무엇인지, 기존 건물이 왜 바뀌어야 하는지, 과거에는 어떤 이유로 그렇게 지어졌는지가 궁금했다. 그 이유들을 알아야 우리 디자인 방향을 정할 수 있기 때문에 과거 도시의 모습을 자꾸 찾아보는 것 같다.
현창용 과거를 돌아보고 참조한다는 것은 우리 대지 주변에 선행해서 지어진 건물과 도시 현황을 읽는 작업이다. 모든 건축가가 다 하는 일이다. 다만 거기에서 건물을 새로 지을 때 어떤 태도를 취할 것인가가 관건이다. 우리 성향상 기존 도시 맥락에 대해서 매우 신중하고 조심스럽다. 어떻게 하면 최대한 주변 맥락과 자연스럽게 어울리고 뽐내지 않는 건물을 지을 수 있을지 고민한다.
김상호 평범한 건물에 관한 리서치를 지속적으로 하는 편인가?
현창용 별도 주제로 리서치 할 여력은 없지만, 프로젝트마다 필지 주변 건물의 입면을 최대한 모델링해두는 편이다. 특히 알코브나 노대가 나와 있다거나, 벽돌을 마름모 꼴로 쌓아 놓았다거나 하는 것처럼 우리가 눈여겨 볼 제스처들이다. 항상 주변을 보면서 여기에서 어떻게 해야 보편적이지만 특수한 건물을 세울 수 있을지 생각한다.
이승규 사람들은 도시를 포착할 때 좋다 나쁘다를 순간적으로 느끼는데, 어떻게 그러는지 궁금하기도 했다. 성수동, 가로수길이 변해간다면 실질적으로 무엇이 변한 것인지 궁금했고, 그걸 확인하기 위해서 일러스트 작업을 했다. 결국 재료, 간판과 같은 요소들이 변하고 있었는데, 그런 변화가 모여 어떤 느낌을 주는 것인지 질문을 던지고 답을 찾아가는 과정이었다. 나중에는 『파사드 서울』 같은 프로젝트를 해보고 싶은데 아직은 엄두가 나지 않는다.
구상하고 있는 조직의 모습은?: 중규모의 유연한 조직
황정현 소장을 제외한 직원 수를 6명 정도 규모로 늘리는 것이 1차 목표였다. 지금 4~5명 정도다. 대형 설계사무소처럼 규모를 키우진 못하겠지만, 언젠가 20명 이상의 직원을 두는 시기도 올 것 같다. 그때는 팀제나 풀제 등을 운영할 수 있지 않을까.
현창용 지금 우리 프로젝트 중에 가장 큰 규모라고 해봐야 10층 건물 정도지만, 우리는 그것보다 훨씬 넓고 큰 건물을 설계했던 경험이 있다. 황 소장이 있기 때문에 마스터플랜도 가능하다. 현재 진행 중인 타운하우스 프로젝트에서도 토목 업체가 쪼개 놓은 땅을 우리가 다시 효율적으로 다듬어 도로를 내고 각 대지 면적을 분할하는 일부터 시작했다. 이런 장점을 살려서 큰 규모의 프로젝트를 하고 싶다. 이를 위해서는 어떤 조직 내 변수가 발생했을 때 유연하게 대처할 수 있는 어느 정도의 규모가 필요하다.
청중B 세 건축가는 어떤 방식으로 협의하나?
황정현 여러 시도를 해보는 중이다. 초기에는 세 명이 각자 계획안을 내보기도 했는데, 합의점을 찾기 너무 어려웠다. (웃음) 각자의 개성이 있기 때문이다. 요즘은 함께 회의를 많이 하고 어느 정도 궤도에 오고 나면 한 사람이 프로젝트 매니저를 맡아 마무리하는 방식으로 진행하고 있다.
이승규 큰 틀에서는 추구하는 가치관이나 디자인 감각은 서로 비슷한데, 그 안에서의 결이 조금씩 다른 것 같다. 요즘은 프로젝트가 시작되면 한 사람이 디자인 초안을 잡고 다른 두 사람이 크리틱 하는 입장에서 이야기한다. 그러면 의견이 거의 모이는 편이다. 세부 디테일은 그 작업을 맡아 진행하는 사람에 따라 다른 결로 나타난다.
인터뷰어 & 패널
- 김상호(정림건축문화재단 실장)
- 심미선(건축전문기자)
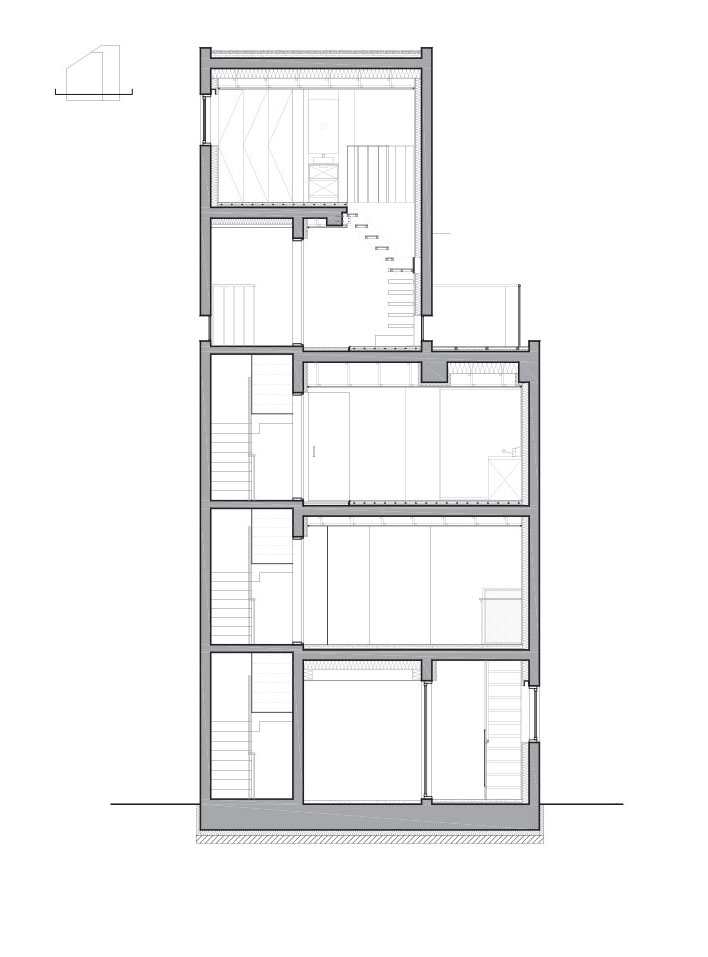
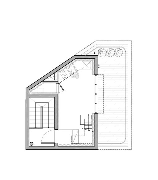
신공덕동 협소주택



건축 개요
- 위치: 서울시 마포구 신공덕동
- 주용도: 다가구주택, 제2종근린생활시설
- 대지면적: 69.00㎡
- 건축면적: 34.27㎡
- 연면적: 122.42㎡
- 건폐율: 49.67%
- 용적률: 177.42%
- 층수: 지상 5층
- 구조: 철근콘크리트조
- 외부마감: 노출콘크리트, 콩자갈깔기, 방킬라이 방부목, 위드지스 시스템창호, 두라스택 큐블록
- 내부마감: 수성페인트, 벽지, 액상하드너, 강마루, CRC보드
- 의뢰방식: 개인 의뢰 수의계약
- 설계기간: 2018.2–10
- 공사기간: 2018.11–2019.9
- 설계: 황정현, 김용재, 이창열, 최희승, 현창용(공주대학교 건축학부)
- 구조설계: 제네랄구조엔지니어링
- 전기·기계설계: 우리이엔씨
- 시공: 빌더앤빌더스(이상욱)
- 감리: H2L건축사사무소
- 사진: 정우철
H2L
분량5,463자 / 11분 / 도판 12장
발행일2020년 2월 29일
유형인터뷰
『건축신문』 웹사이트 공개된 모든 텍스트는 발췌, 인용, 참조, 링크 등 모든 방식으로 자유롭게 활용 및 사용할 수 있습니다. 다만, 원문의 출처 및 저자(필자) 정보는 반드시 밝혀 표기해야 합니다.
『건축신문』 웹사이트 공개된 이미지의 복제, 전송, 배포 등 모든 경우의 재사용을 위해서는 반드시 원 저작자의 허락을 받아야 합니다.







