정해지지 않은 결말
오연주
분량11,279자 / 22분 / 도판 21장
발행일2025년 2월 28일
유형강연록
미드데이의 주 관심사이자 오늘의 이야기 주제는 ‘건축적 표상’입니다. 건축 공부를 시작했을 때 ‘Representation’의 의미가 정확하게 이해가 되지 않아서 한참 그 주위를 맴돌았습니다. 해외에서 처음 배웠기 때문일 수도 있고, 많은 용어와 어휘가 그러하듯 한국어로 직역되지 않아서 그랬을 수도 있고, 그 단어가 쓰이는 맥락과 배경을 파악하기 어려웠기 때문이었을 수도 있습니다. 저는 이 단어를 시각적인 무언가를 더 강조하는 의미에서, 그리고 추상적이거나 드러나지 않은 것을 구체적인 형상으로 드러내어 나타낸다는 의미에서 ‘표상’으로 번역해 쓰겠습니다.
공부를 이어가기보다 일을 먼저 시작해서 그럴 수도 있지만, 설계할 때 당연하게 쓰이는 도면, 드로잉, 스케치 등을 비판적 사고 없이, 어떠한 맥락과 역사에 대한 이해 없이 그 표현 방법을 먼저 습득했습니다. 그러다 점차 도면, 드로잉에서 벽을 왜 검정으로 칠하는지, 어떤 경우는 왜 검정으로 칠하지 않는지, 그 안에 들어가는 가구의 표현은 어느 정도로 단순화해야 하는지, 현장에서 발생하고 존재하는 그 많은 디테일들을 어떠한 기준으로 압축(abstract)해 그리는지 등에 의문을 가졌고, 그 기준과 표현 방법은 회사마다 개인마다 다양하고 달랐습니다. 그러던 중 『포트폴리오와 다이어그램』의 시작에서 배형민 교수님도 같은 고민을 하고 있어서 반가웠습니다. 나 혼자만의 고민이 아니라는 점과 동시에, 그 배경에는 포트폴리오 담론이라는 것이 있었구나, 그리고 그 담론이 여기까지 영향을 미쳤던 거구나라는 생각에서였습니다.
건축 공부를 하면서 맞닥뜨렸던 많은 문제들이 왜 그렇게 막막했었는지 깨닫게 되었다. 건축과 초년생 시절, 설계실에서 반복했던 “선 긋기”의 목적이 무엇인지. “평면을 잘 짰다”는 말이 무슨 뜻인지. 입면도에 그림자를 넣는 이유는 무엇인지. 어린 건축학도로서 품었던 수많은 질문들은 “포트폴리오”의 담론을 접하면서 비로소 이해할 수 있게 되었다.
배형민 저, 박정현 역. 『포트폴리오와 다이어그램』, 동녘, 2013.
표상이라는 단어에 꽂혀 관심을 두게 된 데에는 이미지가 넘쳐나고 레퍼런스가 넘쳐나는 이 시대와도 연관이 있는 것 같습니다. 우리는 정보의 복제와 재생산이 매우 쉬운 시대, 즉 누가 무엇을 그렸거나 만들었는지 정확한 레퍼런스와 역사를 모르면 다른 누군가가 대신 그린 드로잉도 구별이 되지 않는 시대에 살고 있습니다. 이미지 한 장, 드로잉 한 장을 아날로그로 만들어낼 때의 희소성이 이미 사라져 버린, 누구나 쉽게 이미지, 드로잉을 생산하고 가공하는 것이 가능한 디지털 시대에 건축가는 무엇을 해야 하는가라는 질문에서 미드데이의 관심사도 생겨난 것 같습니다.
렘 콜하스와 미스 반 데어 로에의 드로잉을 보면 “건축 드로잉이네”라고 생각합니다. 베르나르 추미와 수퍼스튜디오의 드로잉을 봐도 마찬가지입니다. 건축을 배운 사람이라면 이 드로잉을 정확하게 알지 못하더라도 건축과 연관 지어 생각할 것입니다. 왜 그럴까요? 단지 역사적으로 건축가가 그렸다고 배웠기 때문일까요? 아니면 건물과 연관되었기 때문일까요? “건축스럽다”라고 생각하는 지점은 어디에서 발생하는 걸까요? 이걸 왜 건축 드로잉이라고 할까요? 이 질문에 대한 생각은 소닛 바프나의 글 “건축 드로잉이 작동하는 방식”을 번역한 현명석 님의 소개 글에서 엿볼 수 있습니다.
바프나는 건축 드로잉이 작동하는 방식을 크게 두 가지로 구분한다. 첫 번째가 지시 대상이 되는 건물을 명시적으로 지시하는 방식이라면, 두 번째는 건축에 관한 어떤 속성을 읽고 상기시키는 방식이다. 전자의 경우 드로잉의 요소가 건물의 요소와 대응한다는 점에서 표기적 방식이라면, 후자의 경우 드로잉은 어떤 건축성을 떠올리기 위한 물적 조건이 된다는 점에서 상상적 방식 즉, 드로잉이 상상을 위한 일종의 시각 소도구로 활용된다. 바프나의 관심은 결국 이 두 가지 방식 가운데 후자를 향한다.
현명석 대표 편저, 『건축표기체계: 상상, 도면, 건물이 서로를 지시하는 방식』, 아키텍스트, 2019.
지난주 정해욱 미드데이 소장 발표에 나온 다니엘 리베스킨트의 드로잉과 건물을 두고 ‘건물 없이 드로잉만 있다면 이것은 건축이 아니고 예술의 영역 아닌가’라는 논의가 있었습니다. 저는 건물이 없어도, 드로잉 자체로 건축(architecture)이라고 이야기하고 싶습니다.
역사적으로 건축 드로잉은 건물을 위한 중간 단계였고, 건물을 위한 도구에 지나지 않았습니다. 그렇기 때문에 항상 그 뒤에 의미와 의도를 담고 있는 것으로 여겨졌습니다. 그러나 건축이론가 로빈 에반스는 다니엘 리베스킨트의 ‘챔버 웍스’(Chamber Works)에 대한 비평 글에서 드로잉이 건물 없이도 건축일 수 있는 지점을 잘 설명하고 있습니다. 그 이유는 다니엘 리베스킨트가 드로잉을 할 때 행한 특정 절차 때문이라고 설명합니다.
His procedure (…) first form the signs, knowing only how, never what, and then look to see if they signify anything: sometimes they do, sometimes they don’t, sometimes good news, sometimes bad, sometimes nothing. Such a procedure shifts the weight of meaning from behind to in front, from before to after, from the verifiable to the unverifiable (…).1
Robin Evans, “In Front of Lines That Leaves Nothing Behind,” AA Files 6, May 1984.
에반스는 ‘챔버 웍스는 건축이 아니다’라는 피터 아이젠만의 말에 반대 의사를 표합니다. 그리고, “Architecture without Building, Architecture would be moved from building to drawing”이라고 말하면서, 건축은 항상 빌딩(건물) 이전에 드로잉을 수반했고, 이는 우선되는 것 즉, 디자인(design)과, 따라오는 것 즉, 시공(construction)으로 나뉠 수 있다고 말합니다. 여기서 건물은 버려질 수 있고, 결국 드로잉에 건축으로 남는 것은 모든 특징, 가치, 속성이라고 말합니다.
We must look in front for the things that the drawing might yet suggest, might lead to, might provoke; in short, for what is potent in them rather than what is latent.2
Robin Evans, “In Front of Lines That Leaves Nothing Behind,” AA Files 6, May 1984.
저는 이러한 비평적, 문화적 활동들이 쌓여 담론을 만들고, 그 위에 드로잉도 존재한다고 생각합니다. 그리고 그로 인해 건축에 대한 관점과 건축적 편견이 형성되고 생기는 것이 아닌가 생각됩니다. 오히려 이제는 이 ‘편견’을 갖고 놀 수 있는 시대가 되지 않았나라는 생각도 동시에 하고 있습니다. 앞에서 말씀드린 대로 레퍼런스나 이미지가 넘쳐나는 시대이기 때문에, 여기서 말하는 어긋남을 오히려 오독하고 이용해보는 것이지요. 이런 생각과 관심사를 바탕으로 수행했던 프로젝트 세 개를 소개하겠습니다. 하나는 제가 미드데이 이전에 개인적으로 진행했던 프로젝트이며, 나머지 두 개는 미드데이 프로젝트입니다.
Saturated Space
이 프로젝트는 VR이 단순히 결과물을 보여주고 경험시켜 주는 프레젠테이션 도구가 아닌, 건축 행위 그 자체를 하는 툴이 될 수는 없을까, 건축에서 사용되는 표상을 VR이라는 매체를 이용하면 더 확장될까 아니면 축소될까 하는 질문과 연구로 진행되었습니다. 간략히 설명하면, 한 개인이 VR 공간에 들어가 손에 쥐어진 도구로 본인의 몸짓으로 직접 공간을 깎아서 새로운 공간을 형성할 수 있는 디자인 툴입니다.
이 프로젝트는 두 가지를 기반으로 합니다. 하나는 레온 바티스타 알베르티의 ‘건축가에 대한 정의’입니다. 르네상스 이후, 특히 알베르티가 건축가를 건물을 짓는 사람과 구별하면서, 건축은 표상 자체를 다루는 분야로 분리되었습니다. 즉, 건물을 직접 짓는 것이 아닌 그에 대한 드로잉을 그리거나 모형을 만들거나 하는 것이 건축가의 주 업무인 것이죠. 다른 하나는, 로빈 에반스의 책 『The Projective Cast』에서 주로 다뤄지는 투사/투영(projection)입니다. 여기서 제가 주목했던 지점은 결국 각 단계, 즉 생각에서 상상으로, 상상에서 드로잉으로, 드로잉에서 건물로 투영이 되는 과정에서 미끄러짐이 발생하고, 간극이 생기는데, 이를 역으로 이용하면 재밌겠다고 생각했습니다.
그리고 VR이라는 새로운 매체는 이를 더욱 흥미롭게 만들 수 있을 것 같았습니다. VR이라는 매체의 특징 중 하나는 고글을 쓰는 순간 외부를 볼 수 없다는 점입니다. 온전한 내부에 놓이게 됩니다. 그것이 마치 프레드릭 키슬러가 모형 안에 직접 들어가서 공간을 만드는 것과 비슷하다고 보았습니다. 이는 저희가 디자인하는 대상을 오브제로 두고 축소 모형을 만들거나 대상을 외부에서 바라볼 때와는 다른, VR만의 매체 특정성을 갖게 됩니다.
건축은 표상 자체를 다루는 분야인데 건축에서 발생하는 투영의 과정에 VR이라는 매체가 들어오면 어떻게 바뀔 수 있을까라는 생각에서 시작한 프로젝트이기에, 오히려 전형적인 건축 드로잉에서 시작해 보았습니다. 여기서 제가 주목했던 드로잉은 직각 투영(orthographic projection) 방식으로 그려진 드로잉입니다. 직각 투영은 모든 방면에서 수치의 왜곡이 생기지 않도록 입체물을 표현하는 방식이며, 측정을 위한 데이터일 뿐, 인간의 시각으로 보는 것을 담는 투시도와는 다르게 대상을 왜곡합니다. 저는 그 표현된 결과 자체에 흥미를 느꼈습니다.
제 작업은 직각 투영 방식을 이용하여 드로잉을 하는 세 건축가, 제임스 스털링, 베르나르 추미, 그리고 오스발트 마티아스 웅어스를 초대하는 것으로부터 시작했습니다. 그들의 드로잉의 형태적 특질(formal properties)을 읽고 그것을 이용했습니다. 세 건축가 모두, 직각 투영 방식을 사용했지만 조금씩 다른 지점이 흥미로웠습니다.
저는 이들의 드로잉을 평면화하고 의도적으로 생략함으로써 건물인 듯 아닌 듯하게 기하학적 특징만 남겼고, 조형에서 오는 시각적 흥미로움을 의도적으로 끄집어내어 다시 입체화하는 과정을 통해 새로운 형태적 가능성을 탐구하려고 했습니다. 특히 공간마다 자가 복제를 하는 방식으로, 다시 말하면 스털링이 스털링을 만나 공간을 형성하고, 그 공간을 다시 스털링이 깎아나가는 형식을 취했습니다.
디자인 도구로서의 가상 현실은 매개 과정을 단순화함으로써 기존의 디자인 도구들이 어쩔 수 없이 받아들였던 기보 과정을 제거해 버립니다. 가상 현실에서는 차원이 축약되는 투영 과정이 직관에 기반한 몸짓으로 대체됩니다. 따라서 아이러니하게도 표상 없이, 공간에 대한 상상을 즉각적으로 인지하고 동시에 표현할 수 있게 됩니다.

작업 결과는 2D 이미지가 아니기 때문에 3차원으로 추출할 수 있으며, 건축과에서 의례 행해지듯 3D프린팅과 레이저커팅이라는 방식을 통해 물리적으로 구현되었습니다. 몇 가지 스크린 캡처와 모형 이미지를 예시로 보여 드리긴 했으나, 사실 이 프로젝트는 이렇게 무수히 많은, 정해지지 않은 결말로, 무한히 재생산할 수 있는 프로젝트입니다. 툴만 있으면 이미지와 형태를 너무 쉽게 만들 수 있는 디지털 세상에서, 그 양산된 결과물 중 무엇을 취하고, 무엇을 버릴 것인가, 어디서 멈추고, 어디서 끝낼 것인가는 결국 건축가에게 남은 숙제가 아닐까 싶습니다.
Upperhouse Up
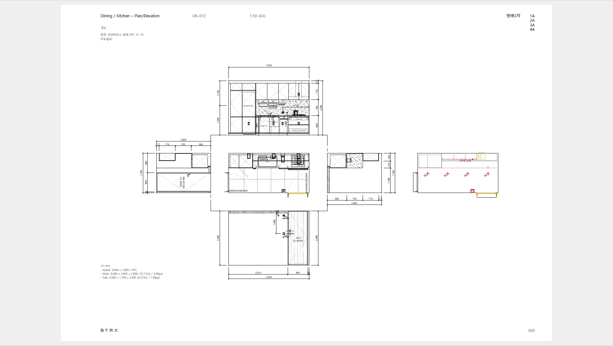
두 번째로 보여드릴 프로젝트는 미드데이의 첫 건축 프로젝트입니다. 2021년에 리서치로 시작하여 2023년 책을 발간하면서 마무리되었습니다. 이 프로젝트는 이미 지어진 네 동의 건물, 하나의 건물 시리즈를 건축적으로 독해하는 것 또한 ‘건축 프로젝트’이지 않을까하는 생각으로 제안하고 시작했습니다. 클라이언트의 요구와 저희의 실험이 맞아떨어진, 흥미로운 프로젝트였습니다. 총 세 가지 파트로, 앞단의 개념을 정립하는 Conceptualizing, 기존 자료를 새로운 방식으로 정리하는 Archiving, 마지막으로 콘텐츠를 확장하는 Creating으로 구성됐습니다.
첫 단계인 Conceptualizing은 어퍼하우스라는 건물 시리즈와 그것을 디자인한 회사에서 이루어지던 일을 개념적으로 분류하고 정립하여 언어로 정리해 주는 일이었습니다. 이는 결과적으로 어퍼하우스 시리즈의 발전에 더 깊은 건축적 접근이 필요하다는 당위를 만드는 리서치였습니다.
두 번째 단계인 Archiving은 이 디자인 회사에서 설계하는 디자이너를 위한 자료를 모으는 작업이자, 디자이너를 위해 존재하는 디자인 정보 포맷을 궁리하는 과정이었습니다. 디자인 아카이빙은 두 가지 면에 초점을 두고 있습니다. 하나는 아카이빙을 바라보는 관점을 새롭게 하는 것이고, 다른 하나는 그 포맷, 형식을 만들어주는 일이었습니다. 아카이빙의 ‘관점’은, 단지 최종 결과물인 공간, 건물을 만들기 위한 자료를 정리만 하면 되는 것이 아니라, 도면 그 너머의 공간이 갖는 입체적이고 복합적인 내용을 같이 담을 수 있어야 하고, 공간에서 무엇이 중요한지에 대한 고민도 담아야 한다는 생각으로 관점을 바꾸는 것이었습니다. 포맷은 가능한 쉽게 접근할 수 있고, 쉽게 제작할 수 있는지가 중요했습니다.
프로젝트의 마지막 단계인 Creating은 『Upperhouse-Oriented』라는 책으로 발간되었습니다. ‘회사 내부적으로 바탕을 잘 다져놓았다면, 외부로 무엇을 알려야 할까?’라는 질문으로 시작하여, ‘어떻게 하면 디자인 아카이빙 자료로부터 더 확장하여 다음을 위한 영감을 주고, 건축적 재미를 담을 수 있을까?’라는 질문으로 이어졌습니다.
책은 세 편의 글과 세 개의 챕터로 구성되어 있습니다. 세 개의 챕터는 유형학 / 공간과 드로잉 / 집. 일상. 삶으로 구성되어 있고, 저희는 이 세 가지가 동등하다고 생각합니다. 첫 챕터 유형학에서는 건물을 보여줍니다. 그런데 큰 그림부터 시작하여 디테일로, 하나의 완결된 결말을 향해 가는 것이 아니라 역순으로 전개합니다. 공간을 구성하는 다양한 요소를 분해하여 분석하여 열린 결말로 유도함으로써 독자의 상상을 불러일으키는 것에 그 목적이 있습니다.
첫 번째 챕터와 두 번째 챕터 사이에, “공간을 디자인하는 것의 묘미”라는 제목으로, 저희의 주제 의식이 담긴 글이 실려있습니다. ‘건축에서 내부/공간이란 무엇일까’, ‘공간의 실제는 어떻게 포착할 수 있을까’와 같은 질문으로 시작합니다. 공간을 디자인하는 행위는 매번 대상의 실제로부터 미끄러지며, 미끄러짐과 닿을 수 없는 것들 사이에서의 끊임없는 시도에 공간을 디자인하는 것의 묘미가 있다는 내용이 담겨있습니다. 그 전제는 실제 지어진 공간과 디자인을 통해 표상된 공간에 모두 각자만의 리얼리티가 있다는 믿음입니다. 예상하실 수 있겠지만, 객체지향 존재론(Object-Oriented Ontology)에서 많은 영감을 받았습니다.
여기에서 저희가 착안했던 것은 포셰라는 장치입니다. 보통 도면에서 짙은 음영 또는 해치로 메운 부분은 내부 공간의 경계선과 외벽 형상의 외곽선 사이입니다. 포셰라는 장치는 이를 단순화하여 가리고, 내부와 외부의 형상이 만들어내는 형태적인 긴장을 시각적 화두로 끌어올립니다. 즉, 건축가가 생각하기에 중요하다고 여기는 공간을 자의적으로 결정하는 장치이죠.


두 번째 챕터는 공간이라는 객체입니다. 여기에서는 사진 없이 공간에 대한 상상을 불러일으키려고 온갖 시도를 해보았습니다. 쓸데없이 자세한 도면도 그 일환입니다. 도면이 단지 건물을 위한 지시적인 도구라면 이렇게까지 그릴 필요가 있었을까요? 실제로 이 공간이 만들어졌을 때와는 또 다른, 도면이라는 매체의 특성으로 인해 발생하는 리얼리티와 그것을 관찰하고 읽는 즐거움을 같이 느껴보셨으면 합니다.

이어서, 선으로 표현된 도면과 그 공간을 담은 사진을 병치시킵니다. 여기서 또 하나 흥미로운 점은 도면상에 공간을 구성하는 객체는 외곽선으로 표현된다는 점입니다. 사실 이 외곽선은 실제로 공간이 만들어지고 나면 존재하지 않습니다. 이처럼 도면이라는 매체에서 엄청난 추상 작용이 일어나는 만큼, 이 매체의 특성을 알고 이용하는 것이 중요합니다. 이 사실에 기반하여 여러 가지 추상적 건축 드로잉을 만들었고, 그것은 지어진 건물과는 다른 리얼리티를 형성하며, 사람들로 하여금 실제로 있는 공간과는 다른 새로운 공간에 대한 상상을 불러일으킵니다.

이 챕터 끝 무렵에야 비로소 건물 준공 사진이 펼쳐집니다. 이는 사진을 보기 전에 다양한 표상 방식으로 공간에 대한 상상과 영감을 주려고 한 의도를 담고 있으며, 실재하는 건물을 건축가의 의도, 만들기 위한 시공자료, 완성된 준공 사진 등이 아니라, 더 다양한 방식으로 읽을 수 있다는 점을 보여드리고 싶었습니다. 앞에서 말씀드렸듯이 이 책에는 건축 공간의 유형, 건축 공간의 표상 방식, 그리고 마지막에 집, 일상이라는 것이 저희에게는 모두 동등하다는 것을 보여주는 기획 의도가 담겨있습니다.
대장경 (부제: 편견의 집) / Canon
마지막으로 소개할 프로젝트는 국문으로는 대장경, 영문으로는 Canon이라는 제목으로 건축적 편견을 건드린 영상 작업입니다. 숏폼 형식의 특징을 가져왔기에 스크린이 휴대폰 화면처럼 보이도록 계단에서 내려다보는 방식으로 설치했습니다. 숏폼 영상은 짧은 시간에 정보를 전달하기 위해 이미지와 텍스트를 병치시키고, 심지어 그 텍스트를 읽어주는 음성까지 더하는 형식을 취합니다. 저희는 사람들이 이러한 숏폼에 과하게 노출되어 더 이상 장문의 글을 읽지 못하고, 이미지와 텍스트의 병치 없이는 정보를 습득하지 못하는 현상, 오늘날 레퍼런스가 노출되는 방식을 역이용하고 싶었습니다. 해당 영상은 건축스러운 편견 가득한 이미지들을 배경으로 텍스트를 오버랩하여 읽어줍니다.
영상에 쓰인 이미지는 모마(MoMA)에 ‘건축’이라는 이름으로 모여 있는 드로잉과, 핀터레스트에 올라온 프리츠커 수상자의 건물 사진을 모아 AI를 이용하여 뒤섞은 것입니다. 새롭게 생성된 이미지로부터 흥미를 느낀 지점은, 마치 사람의 드로잉을 스캔한 것 같은 종이의 텍스쳐를 재현한 부분이나, 마커나 색연필로 칠한 듯한 질감을 인지하여 표현한 것, 또는 선의 굵기를 다르게 표현한 지점입니다. 아래 슬라이드의 첫 번째 그림의 경우는 미스 반데로에의 목탄 드로잉과 다른 것을 섞은 예시인데, 장소성도, 대지도 날아가고 건축가 작업의 형태적 특질만 남는 점이 흥미로웠습니다. 두 번째 그림처럼 아방가르드 드로잉이 갖고 있는 강한 콘트라스트나 대도시적 시점이 남아있거나 강한 색채만이 남기도 합니다. 세 번째 그림은 어딘가 세드릭 프라이스 드로잉 같기도 하며, 어딘가 피터 쿡 드로잉 같죠? AI는 이미지의 내용보다는 픽셀, 혹은 입력된 코드로 생각하고 이를 섞을텐데, 결과물을 읽는 건축가가 각 건축가의 드로잉 스타일로 읽게 되는 지점이 흥미로웠습니다. 마지막 그림은 무엇인지 모르겠지만 좌측 밑에 나무같은, 아니면 도로의 사람같은 이런 요소들까지, AI가 이렇게 바라보고 있는 점이 재밌지 않나요?
한편, ‘Saturated Space’ 프로젝트처럼 시자의 건물을 시자의 또 다른 건물과 섞고, 안도의 건물끼리도 섞어 보았습니다. 여기서는 입력된 건물 준공 사진이 수직 수평을 맞추고 있어, AI도 이를 따라 하고 유지한 지점이 흥미로웠습니다. 잘 지어진 건축물을 사진에 담아내는 건축가(혹은 건축사진작가)의 시선이 담겨있음을 알 수 있었고, 이것이 불러일으키는 건축스러움에 대한 고정관념을 엿볼 수 있습니다.
결국 AI도 창작자의 입력값에 따라 반응하고, 선택에 따라 결과물을 만듭니다. 방대한 이미지 데이터 속에서 언제 멈출지, 언제까지 갈지를 결정하는 것은 건축가의 마음입니다. 이때 오히려 건축적 편견이 강해지는 것 같아요. 너무 쉽게 만들어지는 이미지이기에, 건물 같은 무언가를 지시하고 있으면 더욱 건축 같아 보이는 지점이 발생합니다. 그리고 그 편견이 우리로 하여금 무언가를 상상하게 만드는 재미있는 재료가 됩니다.
(우) ‘대장경’에 삽입된 이미지 / 자료 제공: 미드데이
소결
오늘 세 개의 프로젝트와 미드데이의 관심사로 이야기하고 싶었던 부분은, 많은 건축가가 도면, 스케치 등 모든 시각물을 포함한 드로잉을 앞에 두고 오랜 시간 고민하는데, 이를 단순히 건물을 만들기 위한 과정으로만 보기에는 아깝다는 생각이 들었고, 그 자체를 조금 더 자세히 들여다보는 것이 어떨까 하는 생각에서 시작되었습니다. 그리고 이 과정이 꼭 하나의 결말로 이어져야 하는가를 질문하기도 하고요. 반복하자면, 레퍼런스, 이미지, 표상이 넘쳐나는 시대에 건축가는 이를 어떻게 이용할 것인가, 마냥 거부할 것인가, 포용할 것인가, 무한히 생성할 수 있을 때 판단 기준은 무엇인가, 정해지지 않은 결말을 향하지만 정해야 할 순간이 올 때 어떻게 할 것인가 등은 건축가의 authorship(원저자, 저작자성)에 관한 문제이기도 하고, 이 시대 건축가에게 주어진 숙제인 것 같습니다. 마지막으로, 그럼에도 표상이 주는 시각적 즐거움을 그 자체로 즐길 수 있을 때, 다양한 가상의 차원에서 존재하던 상상이 더욱 풍요로워질 수 있다고 생각합니다. 감사합니다.
원고화 및 편집 심미선
오연주
미드데이의 공동 운영자로, 건축적 표상이 형성하는 고유한 리얼리티에 관심이 많습니다. 그 안에서 특히 주목하는 것은 자율적인 미와 질서, 그로 인해 발생하는 (시각적) 즐거움입니다.
미드데이는 출판/저술/전시/실무 등을 넘나들며 ‘건물(building) 이전에 실존하는 건축(architecture)’, ‘건축 표피 이면의 질서와 에스테틱’에 대한 사고를 전개합니다. 두 권의 단행본 『가상-건축 Architecture as Fabulated Reality』(공동 저술)와 『Upperhouse-Oriented』를 출간하였으며, 다양한 매체를 통해 건축적 리얼리티가 확장되는 프로젝트를 지향합니다. @midday.lab @midday.official
정해지지 않은 결말
분량11,279자 / 22분 / 도판 21장
발행일2025년 2월 28일
유형강연록
『건축신문』 웹사이트 공개된 모든 텍스트는 발췌, 인용, 참조, 링크 등 모든 방식으로 자유롭게 활용 및 사용할 수 있습니다. 다만, 원문의 출처 및 저자(필자) 정보는 반드시 밝혀 표기해야 합니다.
『건축신문』 웹사이트 공개된 이미지의 복제, 전송, 배포 등 모든 경우의 재사용을 위해서는 반드시 원 저작자의 허락을 받아야 합니다.















