노무현시민센터
전숙희, 고재순
분량6,688자 / 13분 / 도판 27장
발행일2025년 1월 10일
유형좌담
노무현시민센터는 대통령 기념사업으로 사람사는세상 노무현재단의 주관으로 건립된 시민센터이다. 2016년 서울 종로구 원서동 창덕궁 옆 부지 매입 후, 2017년 5월 신인 건축가상과 젊은건축가상을 수상한 와이즈건축의 전숙희, 장영철 소장의 작업을 당선작으로 설계되었다.
- 설계자 발표: 전숙희(와이즈건축 공동대표)
- 운영자 발표: 고재순(노무현재단 사무총장)
사람을 담은 건축의 인상 잡기
고재순 노무현시민센터는 대통령 기념시설이다. 처음 계획을 하며 노무현 대통령의 기념시설은 박제화된 박물관, 죽어있는 듯한 그런 건물의 모습이 아니고, 살아 숨 쉬는, 시민들이 정말 많이 참여하는 기념시설이길 바랐다. 노무현시민센터에서는 시민교육사업, 시민문화 협력사업 등 여러 사업이 이루어진다. 이런 사업들은 사람사는세상 노무현재단(이하 노무현재단)이 주인이 되어 이끄는 사업이 아니라, 시민들이 자발적으로 참여하고 기획하고 이끌어나가고 재단이 그것을 뒷받침하는 형태로 계획됐다. 자발성으로부터 생기는 결실들, 열매들을 또다시 시민들 스스로의 성과로 가져갈 수 있는 플랫폼 역할을 충실히 하겠다는 목표를 갖고 운영 준비를 해왔다.

노무현재단에서 진행한 여러 장소들이 있다. 봉하마을에는 전시관과 사저, 연수원, 생태문화공원 등이 있다. 서울에 새롭게 기념관을 짓는 과정의 시작에서, 이곳은 어떤 역할을 해야 하는지 논의가 필요했다. 기념관 관리 기획위원회를 구성해 이창동 전 장관을 위원장으로 문화예술계, 학계 그리고 행정 등 전반에 걸친 전문가들이 함께 약 2년에 걸쳐 기획과 관련해 논의했다. 연구와 논의 끝에 나온 결론은, 서울에 노무현시민센터를 짓는 주요 목적은 교육과 문화가 중심이 되는, 시민 활동을 위한 건물을 짓자는 것이었다. 그리고 봉하마을에는 대통령 개별 기록관과 박물관 역할을 할 건물을 짓는 것으로 확정됐다.
처음에는 과연 많은 시민이 와서 진짜로 참여를 할지가 걱정됐다. 2022년 말, 2023년 초까지만 하더라도 시민의 참여가 적극적으로 이루어지기 전까지는 재단이 기획도 하고 행사도 하다 보면 방문객들에게 자연스럽게 공간이 알려질 것이고, 그 이후부터는 적극적으로 방문할 것이라는 기대로 노무현시민센터를 운영했다. 2023년 봄이 지나고 나니, 이 공간이 알려지면서 우리가 목표로 했던 적극적인 시민 활동의 플랫폼 역할이 조금씩 증가했다. 지금은 시민 활동 프로그램을 운영하는 사람들에게 대관을 조금씩 지원하기도 하고, 원하는 활동을 할 수 있도록 재단 홈페이지를 활용해 플랫폼 역할을 하고 있다. 온라인에서의 플랫폼 역할은 오프라인의 노무현시민센터로 확장, 구현되고 있다. 시민들이 대관을 하러 온다는 건, 이 공간이 문 닫힌 시간이 많지 않고 죽어 있지 않음을 의미하기도 한다. 대관 시간에 너무나 다양한 시민 단체, 혹은 개인, 기업에서 여러 행사와 사업을 벌이는 모습을 보며 우리가 원했던 바로 그 목표대로 자연스럽게 이루어지고 있구나, 뿌듯하다.
땅 구하기
고재순 기념관을 지을 장소를 찾아야 했다. 많은 사람이 접근하고 참여하기 좋은 곳이었으면 했다. 서울시, 봉하마을, 세종시 이 세 곳을 두고 1년 동안 이사회와 논의한 결과, 세종시는 나중에 여력이 되면 연수원을 한번 지어보고, 일단 서울시에 센터를, 그리고 봉하마을에는 기념관을 짓는 것으로 결정됐다.
서울 어디에 땅을 살 것인가 고민도 많았다. 노무현재단이 후원금으로만 운영되기 때문에 처음에는 땅을 살 예산이 확보되지도 않은 상황이기도 했다. 노무현재단은 지금 후원회원 6만 2천 500명의 후원금으로 운영되고 있었는데, 기념시설 건립 계획을 세우고 나서는 1년에 몇십억씩 적립되었다.
시간이 지나 우리가 능력이 충분하다는 것을 알고서 열심히 부지를 돌아보러 다녔다. 처음에는 여건이 맞아 성북구 한성대 앞에 공원 부지를 고려했었는데, 알고 보니 기부채납을 해야 해서 포기했다. 그 외에 광화문, 종로3가, 문래동, 목동, 금천구, 서대문구까지 안 돌아다닌 데가 없었다. 500평 이상 되는 규모의 땅은 다 가서 봤는데, 어떤 곳은 액수가 맞지 않아서, 어떤 곳은 접근성이 너무 떨어져서, 이런 여러 가지 이유로 포기할 수밖에 없었다. 이런 와중에 창덕궁 옆 불교 미술관 자리가 경매에 나왔다는 소식을 들었고, 이곳이면 가능하겠구나, 싶었다. 시민이 쉽게 찾아올 수 있어야 하기에 부지를 고민할 때 상징성, 물리적 접근성과 심리적 접근성도 필요했고, 여러 여건을 고려했을 때 이곳 원서동은 마음 편안하게 올 수 있는 장소가 되겠다고 생각돼서 부지를 확보하려고 했다. 하지만 경매인만큼 과정이 순탄하지만은 않았다. 필지가 세 개로 나뉘어있어 세 번의 경매 끝에 사게 됐다. 추가로 원하던 네 번째 부지의 경매는 실패해 최종적으로 세 개의 부지를 받았다.

문화재와 암반
고재순 필지가 창덕궁 바로 옆인 만큼, 진행 과정 중에 문화재도 빈번하게 마주했다. 기와 조각이라든지 깨진 그릇, 그리고 두 개의 건물을 지었던 흔적 등이 있었다. 이런 경우 1차에 끝나지 않고 다시 정밀 문화재 조사를 실시해야 했다. 그런데 문화재를 조사하다 보니 2m 정도 아래부터는 기반이 다 암반이더라. 조선시대나 고려시대에 암반 아래에 무언가를 묻어둘 수는 없었을 테니, 덕분에 문화재 조사가 마무리됐지만 그다음부터는 건물을 짓는 데에 어려움을 겪었다.
전숙희 사실 몰래 가서 조그만 화약이라도 넣고 발파하고 싶은 심정이었다. 🥲 암반에 구멍을 뚫어서 벌린 후, 정말 한 땀 한 땀 암반을 1년 반동안이나 ‘뜯어냈다’. 암반을 파괴하는데 큰 소음을 낼 수가 없었기 때문이다. 주변이 같은 암반을 공유하고 있기에 조금 과장하자면, 이곳에서 꽝, 암반을 치면 가회동 전체에서 쿵, 하는 거다. 봉사자들도 우리들도 모두 다 엄청난 인내심을 배우는 시간이었다.

문화재와 지붕
전숙희 문화재 심의를 하는 과정에서 건물을 8m 이상으로 지을 수가 없었다. 건물이 8m라고 하면 2층밖에 되지 않는데, 기존의 설계안에서 한 층이 날아가는 격이었다. 이 문제를 정석으로 돌파하기 위해서 현상 변경 허가를 진행하려 했지만, 문화재청(현 국가유산청)에서 역사 문화 경관을 훼손한다는 의견을 내면서 변경이 불가해졌다.
진행이 보류된 상태에서 결과적으로는 문화재에 순응하는 방식으로 경사지붕을 사용해 11m까지 높이를 짓는, 아주 높이와의 치열한 싸움을 벌였다. 결국에는 오랜 시간 동안 드래프트 보드에서 비어 있는 백지상태로 다시 시작할 수밖에 없었다. 건물의 배치 방법, 형태, 그리고 높이의 1cm라도 실내 공간으로 만들어서 시민의 공간을 찾아주기 위한 기술적이고 치밀한 노력이, 어찌 보면 새로운 형태를 만들어보는 전화위복의 계기가 됐다고도 생각한다. 최종적으로 복원된 땅의 형상을 닮은 지붕 풍경을 만들고, 지붕과 벽, 거리가 경계 없이 이어지는 방향으로 설계가 변경됐다.
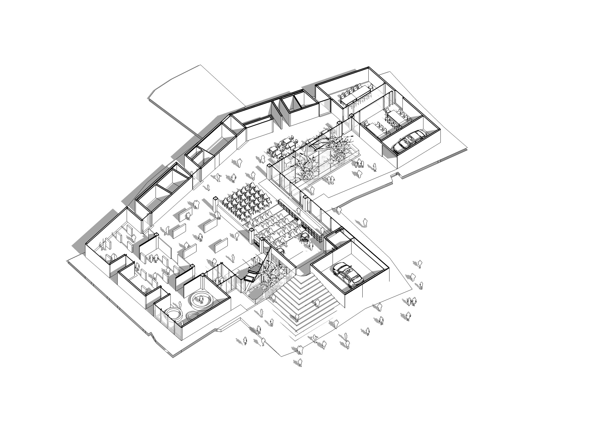
조선 후기에 그려졌던 동궐도를 보며 추측해보았을 때, 이곳이 절개지였다는 것을 알 수 있다. 처음부터 싹둑 잘린 땅이 아니라, 1900년대 초후반까지 오면서 절개지로, 그러니까 땅이 싹둑 잘렸다고 추측해 볼 수 있었다. 경사지에 놓인 세 개의 대지, 즉 높낮이가 다른 대지들로 작업을 해야 했었고, 지붕을 활용해 땅을 보강할 수 있는, 높이를 돋우는 형태로 만들게 됐다. 더불어 주변에 있는 원서동의 원래 조직들과도 대응할 수 있는 방식으로 필지들과 형태를 나누어주면서 하나의 마을을 완성하는 방식으로 구성하게 됐다. 그래서 지붕에서 보이는 부분은 마을들이 자그마한, 아늑한 오솔길이나 사잇길을 가지고 있는 것처럼 보이고, 그 밑에는 굉장히 커다란 공간이 함축적으로 들어가 있는 구성이 된다.
보이드, 시민의 광장
전숙희 노무현시민센터가 담았으면 하는 비전에 대한 이야기는 지속적으로 논의가 되었던 것 같다. 우리는 그것을 담기 위한 그릇을 잘 만들고 있는가, 그리고 그것을 담을 수 있는 텍스처들이 충분한가, 그것들은 각각의 스케일대로 정확한가, 이런 것들을 계속 점검하는 방식으로 설계를 진행했다.
처음 제안했던 광장 형태 같은 경우, 안쪽에 있는 마을과 바깥에 있는 마을이 공존하는 마을이었다. 그러니까 외부 공간도 굉장히 북적북적한 것들을 상상했는데, 실질적으로 창덕궁 일대는 우리가 생각했던 것처럼 여의도 광장처럼 시끌벅적한 광장이 아닌, 8시 이후에는 매우 조용한 곳이었다. 주변은 주택가이고 궁궐의 옆부분이기 때문에 사실은 우리가 생각했던 만큼 오픈된 광장이 바깥으로 나오는 것이 주민들에게는 굉장히 프라이버시를 침해할 수 있는 상황이었다. 그래서 그 이야기들이 재단과도 굉장히 심도 있게 논의되고, 결과적으로 광장을 내부로 들이고 거기에 커다란 지붕을 씌우는 방식으로 해석해야 하는 것이 아니냐고 생각하게 됐다.

재단과 이야기할 때, 도시의 보이드 공간이 좋은 공공공간이 된다고 설명해줬다. 좋은 공공공간은 사람들을 머물도록 해줘서 바깥에 공원과 같이 열린공간을 만들 수 없다면 건물 안에 그런 공간을 넣어주는 것이 어떻겠느냐고 말했고, 센터는 두 개의 아주 커다란 보이드 공간을 갖게 되었다. 그 보이드 공간은 노무현시민센터가 시민들의 라운지가 되어 머물수 있게 해야 한다는 뜻이었고, 즉 내부에 계단형 라운지를 두어 도시의 거실을 실내로 데리고 들어오도록 해야 함을 의미했다. 이런 생각을 바탕으로 공간을 상시 개방해서 문턱 없이, 사람들이 수시로 쓸 수 있게 하자고 제안했다.
이렇게 보이드가 두 군데에 위치하게 됐다. 하나는 지하 2층의 콘크리트로 마감되어 있는, 하나의 커다란 침착한 광장이 있다. 우리는 이곳을 ‘시민의 광장’이라고 부른다. 그리고 기억과 표현, 창작, 연대, 기록이라는 키워드가 지하의 차분한 이미지와 엮여 있는 보이드라고 생각했다. 두 번째 보이드는 따뜻한 이미지에 일상과 소통, 지식 가치, 교육이라는 키워드와 지상 위에서 느껴지는 따뜻함을 연상시키는 보이드였다. 두 개의 보이드에서 상반된 성격이나 질감, 그리고 위치, 온도 등이 대비되는 두 개의 커다란 광장을 가지고, 그 광장은 시선적으로 연결될 수 있게끔 구성됐다.

이름 짓기와 시운전
고재순 노무현시민센터 이름은 공모를 통해 지었다. 가칭으로 ‘노무현 센터’ 아니면 ‘시민센터’로 부르다가 재단 회원들은 어떤 이름을 선호할지 공모를 해서, 2021년 4월에 1,272명이 참여했고 ‘노무현과 사람사는 세상’이 뽑혔다. 이후 심사위원회에서 최종 ‘노무현 대통령’의 함자와 ‘사람 사는 세상’이 들어간 ‘사람사는세상 노무현시민센터’로 확정됐다.
내부 공간의 이름도 직원들과 워크숍을 하면서 지었다. 예를 들면 3층 카페는 ‘사람사는세상’을 오마주해 ‘커피사는세상’으로 만들었고, 그리고 다목적실은 ‘가치 있게 뭔가를 한다’라는 의미로 ‘가치하다’ ,스튜디오는 ‘가치놀다’로 정했다. 공유 사물 공간 ‘가치쓰다’는 ‘같이 있게 쓰다’ 그리고 ‘같이 한다’라는 의미를 담았다. 강의실은 ‘다’를 컨셉으로, ‘다들려강의실’, ‘다보여강의실’이라고 지었다.
노무현시민센터 운영을 어떻게 할 것인지 운영 연구도 했다. 연구 용역을 통해 회원 여론조사도 하고, 직원 워크숍도 하면서 ‘진보적 시민 민주주의자를 양성하는 시민정치 학습센터’로 목표를 잡았다. ‘시민이 주도하고 실천하는 시민 민주주의 플랫폼을 만들어 나가겠다’는 목표로, 사업들을 정리하고 7월 31일에 노무현시민센터로 사무실을 이전했다.
이사를 하고 나면 다 끝나는 줄 알았다. 이사하고 나서 보니까 건물의 보완점은 계속해서 보완해야 하더라. 9월 23일에 개관식을 한다는 목표를 잡고, 한 달 반 정도 시범 운영을 하면서 무엇이 부족한지 파악하는 시간을 가졌다. 회원 대상으로 오픈하우스도 한 10회 정도 진행해보고, 영화제도 하고 연극도 해봤다. 부족한 부분을 채워가며 9월 23일에 개관했다. 개관 기념행사로 다목적홀을 이용해 라운드 홈 미팅도 하고, 개관 프로젝트 공간 연극도 하고, 그 좁은 데에서 이승환 콘서트도 했다. 개관하고 지난 1년 동안 다양한 프로그램을 운영하고 있다.
함께, 투명하게
전숙희 지금 노무현재단의 의사결정 체계는 강압적이지 않다. 이사장 혼자서 모두 결정하고 사무총장 혼자서 건물의 모든 걸 결정하는, 그러한 체계가 아니다. 직원들이 들어가서 함께 일하면서 지낼 공간이기에, 이사회에서도 논의하지만 때에 따라 직원들이 함께 결정하기도 한다. 노무현시민센터의 경우에도 마감재 하나 고르는 것까지 직원들과 함께 골랐다. 2017년 초기에는 천호선 이사님을 센터 건립 추진단장으로 노무현시민센터 건립 추진단을 운영했다. 이 사업을 처음 추진하며 설계 수정, 공사에서 필요한 결정 사항 등과 관련해 2021년 8월까지 추진단장으로서 이끌고, 기획과 운영 방안까지 어느 정도 나온 뒤부터는 추진단에서 사무처, 사무총장 중심으로 준비하는 체계로 바뀌었다.
한편에서는 고구마 같은 의사결정 체계라고도 한다. 총장님이 빠르게 결정하면 되는데, 의견을 다 듣는 과정이 있다 보니 합리적인 것 같으면서도 그렇지 않을 때도 있다. 그러면 그 절차들까지도 선택하는 과정을 다시 한번 겪게 된다. 그렇지만 결정은 항상 좋다. 그러니까, 고구마가 소화가 다 되면 그때 좋은 결정이 나오는 것이다.
우리도 그런 결정의 과정을 같이 배웠다. 사실은 노무현시민센터는 공공건축은 아니었는데 공공건축보다 어려운 부분들이 있었던 것 같다. 자금을 민간에서 다 마련한 것도 아니고 공공에서 다 준 것도 아닌, 섞여 있어서 그것을 쓰는 방법이 굉장히 투명해야 했다. 여러 상상할 수 없는 의견들이 있기에, 그래서 더 절차를 아주 강직하게 지켜야만 하는 상황이 아니었나, 그런 생각이 들었다.
원고화 박세미 / 편집 김상호
노무현시민센터
분량6,688자 / 13분 / 도판 27장
발행일2025년 1월 10일
유형좌담
『건축신문』 웹사이트 공개된 모든 텍스트는 발췌, 인용, 참조, 링크 등 모든 방식으로 자유롭게 활용 및 사용할 수 있습니다. 다만, 원문의 출처 및 저자(필자) 정보는 반드시 밝혀 표기해야 합니다.
『건축신문』 웹사이트 공개된 이미지의 복제, 전송, 배포 등 모든 경우의 재사용을 위해서는 반드시 원 저작자의 허락을 받아야 합니다.




















