등촌동어울림플라자: 설계안
윤승현, 이규상, 고광현
분량8,943자 / 18분 / 도판 8장
발행일2025년 1월 10일
유형좌담
어울림플라자는 이전 한국정보화진흥원 부지인 강서구 공항대로 489번지에 위치한 연면적 23,758m2, 지상 5층, 지하 4층 규모의 복합문화복지시설이다. 공공기관 지방 이전 사업을 추진하며 남은 부지에 대한 활용계획을 검토하며 시작된 사업으로 2019년 1월 (주)보이드아키텍트건축사사무소와 윤승현이 설계를 맡아 진행했다. 2022년 8월 3일에 착공했고, 2년동안 건립 후 내년 8월에 개관을 목표로 하고 있다.
- 설계자 발표: 이규상 보이드아키텍트 대표, 윤승현 인터커드 대표
- 운영자 발표: 고광현 서울시 장애인복지정책과장
등촌동, 어울림, 플라자
윤승현 등촌동어울림플라자라는 이름이 재미없다고 하지만 한편으로는 공모가 떴을 때 이 이름이 공모의 성격을 다 설명해 주는 것 아닌가하는 생각이 든다. 등촌동은 장소에 대한 이야기, 어울림은 프로젝트의 성격과 목표를 말하는 것이고, 플라자는 역할을 어떻게 수행할 지에 대한 것이다. 설계 공모를 할 때도 이 땅에 이걸 어떻게 소화시키지라는 목표를 세우는데 많은 도움이 되었다.
용적률이 128%다. 굉장히 여유가 있다는 생각이 들 수도 있는데, 여기서 간과하면 안되는 것은 지하 1층 부분이 땅의 경사로 인해 지상으로 다 노출돼 있다는 것이다. 실질적으로는 200%의 용적률을 가지고 있는 건물이다. 장애인과 비장애인이 함께 어울리는 플라자라면 잘 쉬고, 놀고, 시원한 바람도 맞는 건물이어야 할텐데 용적률 200%의 건물로 어떻게 공공성을 담보할 수 있을지가 상당한 스트레스로 작용했다.

기나긴 설계 기간
윤승현 이전 프로젝트(서소문역사문화공원)에서 설계기간이 2년이나 걸린 것이 너무 힘겨웠기 때문에 이번 프로젝트는 짧고 굵게 끝내고 싶었다. 이번 공모의 설계기간은 원래 10개월로 잡혀있었다. 그래서 처음 계약하자마자 10개월에 설계를 끝내는 건 불가능하니 12개월 정도로 시간을 늘려달라고 했는데, 결국에는 설계에 2년 반이 결렸다.

2018년 12월에 당선된 후 2019년 1월부터 본격적으로 설계를 시작했다. 직접적으로는 이전의 여러 공공 프로젝트를 수행하면서, 간접적으로는 PA(Professional Advisor, 공공건축 관리자), MA(Master Architect) 또는 지역에서 활동하면서 주민 협의를 많이 해서 맷집이 있다고 생각했는데, 상상을 초월한 큰 반대에 부딪혀 힘겨웠다. 이게 고스란히 설계 기간이 늘어진 이유가 되었다.
예를 들면, 지질 조사를 해야 구조 계획을 진행하는데, 사업을 반대하는 주민들이 현장에 들어가는 것을 예의 주시하고 있어서 계약한지 9개월이 지나도록 지질 조사를 할 수 없었다. PM인 금태훈 팀장과 함께 추석날 태풍을 맞으며 지질 조사를 해야 했다. 그런 식으로 2년 반이 지난 2021년 6월에야 용역 준공(설계 완료)이 됐다. 2023년까지 프로젝트가 진행된다고 치면, 장애인복지정책과는 11년, 우리는 5년을 소요한 프로젝트가 된다.
지역 중심적 프로그램
윤승현 부지의 특성을 파악하고 설계하며 대략 세 가지의 과제를 극복해야 했다. 첫 번째는 프로그램이다. 행정에서는 시스템에 따라 여러 역할이 직능적이고 유기적으로 잘 진행된다. 그런데 시민의 입장에선 장애인 복지는 장애인복지과에서, 아동청소년 정책은 아동청소년 전담 부서에서, 문화예술 사업은 또 다른 전담 부서에서 따로따로 하는 것으로 보인다. 그러다 보니 문화예술과 아이들과 장애인들이 함께 어우러지는 통합적인 시설을 생각하는 것이 어렵게 된다. 어울림플라자도 결국 장애인복지정책과에서 추진한 장애인복지시설로 인식한다.
공공건축물은 용도도 중요하지만 지역과 어떻게 결속하느냐가 매우 중요한데, 연계가 쉽지 않다. 그래서 공공프로젝트 자문인으로 들어갈 때 항상 말하는 것 중 하나가 지역이 원하는 것을 먼저 생각하고 거기에 추가로 프로그램을 덧붙이는 방식이 바람직하다는 것이다. 이번 프로젝트에서도 주민 반대를 대응하는 과정에서 좋든 싫든 협의를 거쳐야 했고, 그 과정에서 지역 중심의 사고가 자연스럽게 섞여들게 되었다.
부지의 압박감
윤승현 다른 하나는 부지의 특성을 해결해야 했다. 사업 부지는 공항대로에 면하는 부분이 50m, 길이가 130m인 2000평에 달하는 깊숙한 형태의 땅이다. 대로에서 안으로 들어가면서 부지가 10m까지 높아진다. 주변 다른 부지들과 높이 차이가 커서 건물을 지으면 주변에 큰 압박감을 줄 수 있는 데다가 바로 옆에는 백석초등학교가 있다. 여러 가지를 세심하게 고려해야 하는 어려운 부지였다.

초기 구상안을 보면 건물이 9층 규모로 우뚝 솟아 30m 높이로 올라가 있다. 그럴 수밖에 없는 것이 원래 2,000~3,000평 규모로 지으려던 것이 협의 과정에서 이것 저것 늘어나면서 7,200평 규모가 되었기 때문이다. 그래서 이 어마어마한 시설들을 어떻게든 집어넣으면서도 학교보다 높지 않게 짓겠다는 원칙을 세웠다. 그렇게 해도 주변의 주거지에 큰 압박감이 피할 수 없을 터라 어떻게든 그 이상 높아져서선 안 되었다.
마을과 결속된 플라자
윤승현 셋째로 이런 부지와 면적 조건을 해결하면서 플라자의 성격을 어떻게 발휘할 것인지를 고민했다. 이 건물이 지역 중심의 시설이 되려면 주변 지역을 등진 형국을 극복해야 했다. 동네에서는 이곳을 공원처럼 썼다. 정자에서 할머니 할아버지들이 머물고, 학부모들이 아이들 하교를 기다리며 담소나누는 곳이었고, 기존 정보화진흥원의 앞마당은 아이들의 등교길이었다. 그래서 어떻게든 이런 동네 풍경을 유지시켜서 어울림플라자가 들어선 후에도 그 안을 통과해 등하교할 수 있도록 적극적이고 긴밀한 관계를 만들고자 했다.

보통 공공시설은 누구에게나 열려 있음을 드러내야 하는데, 정작 이용할 시설이 많지 않은 경우가 많다. 어울림플라자 계획에는 수익시설이 들어간다는 내용이 있다. 그 계획 덕에 어울림플라자에는 커피숍, 편의점도 들일 수 있고, 주민을 위한 상점이나 다른 문화시설을 장애인복지 앵커시설에 섞을 수 있었다. 이를 이용해 모든 것을 엮어 마을과 결속되는 장소를 생각했다. 말로만이 아니라 실제로 장애인과 비장애인이 어울리는 공간이 될 수 있다.
세 개의 길, 세 개의 마당
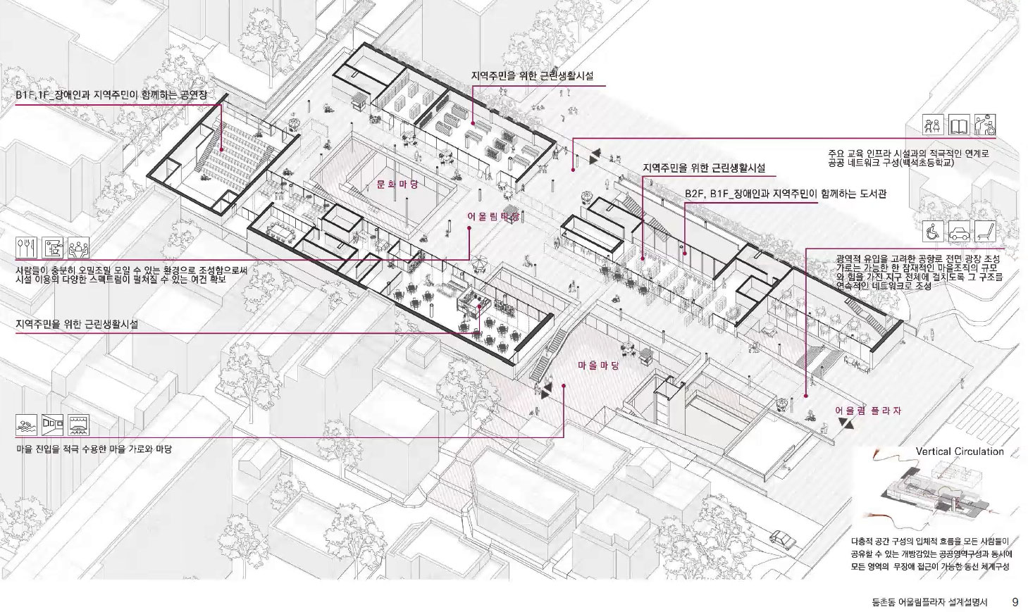
윤승현 마을의 길을 연장해 대로와 이으면서 그 사이사이에 편의시설, 장애인과 비장애인의 어울림 시설이 얽히게 하는 장치로써 세 개의 길과 세 개의 마당을 설정했다. 유기적인 마을 길은 건물 매스를 입체적으로 비워, 130m의 깊숙한 부지에 긴 길을 흘려보냄으로써 이곳을 공공에 열어준다. 모든 시설이 경로상에 있기 때문에 어느 위치에서 출발해 어느 프로그램을 이용하더라도 문턱이 높지 않고 구분이 없다.
공항대로에서 직접 들어오는 길은 마을 길과 같은 8m 폭에 완만한 경사로 이어진다. 대로변 진입부의 천장 높이는 10m로 높였다. 내부가 아무리 좋아도 바깥 외관이 이를 받쳐주지 못하면 이 시설의 매력을 충분히 전하지 못할 거라 생각해 조금 무리를 했다. 포켓 공원처럼 머무를 수 있는 환경이 학교와 연계되어 아이들을 대로로 보내지 않고 받아준다. 각각의 프로그램은 길에서 바로 문열고 들어갈 수 있게 했다. 이 길이 마을 뒷길까지 이어졌다면 진짜 마을의 모든 길을 연결하는 건물이 되었을 텐데, 아쉽게도 실현되지 못했다. 주민의 반대가 심해 제대로 제안을 해보지 못하고 말았다. 실현되었다면 마을의 결속률이 훨씬 좋아지지 않았을까 생각한다.

층별 공간 구성
윤승현 지하 1층은 마을의 길과 경사로로 연결되어 지상층과 다름없다. 전면에 도서관이 있고, 계단을 오르면 공항대로로 바로 올라갈 수 있다. 3.5m 레벨 차이는 장애인 시설임을 고려해 엘리베이터로도 연결했다. 내부공간과 마을마당이 이어지며 다시 길을 만들고 부지 끝까지 이어진다. 중정을 통해 각 공간에 빛을 유입시키고 시선을 모으고 길에 방향성을 준다. 지하 1층에 모여 있는 여러 문화공간은 장애인과 비장애인 구분없이 쓰게 된다. 지상층으로 이어지는 길 끝에는 공연장이 있다. 단절된 내향적 공연장이 아니라 경우에 따라 밖으로 열어 마을 잔치도 열 수 있도록 했다. 수익 편익을 계산하는 과정에서 공연장을 제외하고는 대부분 공간이 모두 수익시설로 바뀌었다. 그와 함께 공공마당의 역할이 축소되어 아쉬움이 남는다.

지하 2층은 어울림플라자의 교육과 문화의 집적체인 공간이다. 웬만하면 지하 1, 2층에서 모든 것을 해결할 수 있도록 배치했다. 수영장, 피트니스, 도서관, 다목적 강당, 세미나 공간 등이 있고, 실내 가로가 이들을 이어준다. 실내 가로에는 플리마켓도 열릴 수 있다. 운영위원회 회의를 거치며 도서관 크기가 늘어나 지하 1, 2층을 엮어주는 매개공간이 됐다. 지하 1층은 어린이 중심의 도서관, 지하 2층은 장애인과 비장애인이 어울리는 도서관으로 계획했다. 초등학교 옆이어서 아이들 중심으로 활성화될 것 같다. 부지 형태상 지하일 뿐 세 개의 중정 마당이 지하 공간을 결속하고 있기 때문에 모두 야외 공간을 면하는 밝게 열린 공간이 된다. 모든 프로그램은 세 개의 중정과 연계되어 열려 있다. 지하 3, 4층은 공영주차장이다.
지상 2층은 10m 높이의 필로티 사이의 메자닌 층으로 시설의 운영사무실이 있다. 3, 4, 5층에는 서울시내 전역의 복지시설에서 연수 프로그램을 운영할 때 필요한 공간을 장애인 복지 앵커시설에 걸맞게 마련했다. 3층에는 소, 중 규모의 세미나룸과 식당을 겸하는 대형 세미나룸이 있다. 장애인이 쓰는 공간이 내부에만 국한되지 않도록 테라스를 크게 만들었다. 4층에는 20실 규모의 연수 숙실과 임대 오피스 공간이 있다. 5층에는 장애인 전문 치과 병원이 생긴다. 어떤 장애인은 움직임을 뜻대로 제어할 수 없어서 비장애인과 함께 진료받기가 매우 힘들다. 그래서 전문병원이 꼭 필요하지만, 여전히 부족한 상황이다.
유니버셜 디자인
청중A 유니버셜디자인 통합 가이드라인이 있는데 설계에 반영되었는지?
윤승현 유니버셜 디자인에 관련되어서는 가이드라인이 있는 것을 알고 있으나, 배리어프리(BF) 인증과는 다르다. 지침에 유니버셜 디자인을 따라야 한다고 돼 있지 않기도 했고, BF 최우수등급이라는 것은 우리에게는 너무 힘겨운 대상이었기에 자원할 여력이 없었다. 유니버셜 디자인 적용을 검토해보는 것은 좋지만, 인증이 목적이 되면 전체의 본질을 다 흐트러뜨릴 위험이 있다는 걱정도 있었다.
고광현 첨언하자면, 기본적으로 BF 설계에 더해 유니버셜 디자인에 대한 추가 의견이 있어서 전문가들로 자문단을 구성해 건립이 마무리 전에 내부 공간 배치와 인테리어 부분을 조정하려고 한다. 이때 서울시 유니버설 디자인 센터의 협조를 받을 예정이다.
이규상 유니버셜 디자인은 설계자 입장에서도 참여하고 싶지 않을 정도로 너무 복잡한 이야기인데, 자문단이 와서 얼마나 심도 있게 고민할까 싶다. 한두 시간 정도 와서 하는 자문이 우리가 고민한 수많은 시간과 비교할 수 있을까 싶다. 물론 권위 있는 전문가들이니 중요한 것을 잘 짚기도 하겠지만 놓치는 부분도 있기 마련이라 위원회나 자문 같은 것이 능사가 될 수 없다. 어떤 절차는 어쩔 수 없이 거쳐야겠지만, 어느 시점에 어떤 식으로 하는가에 따라 단순 절차로만 취급하기에는 너무 중요한 부분이다. 특히 공공 건물은 한 번 지어지고 나면 사회적 영향이 크기 때문에 더 많이 고민해야 하는 부분이다.
장애인 당사자 의견 수렴
청중A 실제 장애인들의 의견이 설계에 반영되었는지 궁금하다.
윤승현 장애인들의 의견은 한두 차례 공식적으로 받았다. 누구보다도 장애인을 우선으로 고민해야 하는 게 맞다. 하지만 말로 다 표현하기 어려울 정도의 공격(?)을 수습하느라 정작 장애인들의 고견을 듣기가 쉽지 않았다.
님비 현상처럼 들릴 수 있어서 바로잡는 차원에서 얘기를 좀 하자면, 서울시 입장에서는 열심히 설명하려고 노력했고, 지역 주민들은 오해로 흥분해 있는 상황이었기에 의사소통 자체가 원활하지 못했다. 어울림플라자는 장애인 거주공간도 아니고, 중증 장애인 요양시설도 아니다. 이곳은 서울시의 장애인시설들을 연결하고 지원하는 앵커 공간이다. 중증 장애인은 이곳에 올 일이 거의 없다. 그런데 아무래도 주민들은 중증 장애인을 맨 먼저 생각하는 것 같다. 이 오해가 풀리면 많은 문제나 갈등이 해소되지 않을까 생각한다.
이규상 장애 정도에 대한 것보다는 막연하게 어딘가 우리와는 다른 사람들이 올 것 같고, 그들이 여기 머물게 되면 저녁에 집 옆에서 술을 마시다가 어떤 사단이 일어나지 않을까 생각하는 것이다. 정말 무지에서 비롯된 게 아닌가 싶다. 장애라는 것은 나이가 들며 자연스럽게 얻게 되기도 하고, 사고를 당해서 생기기도 한다. 우리가 이 프로젝트의 설계라서, 이곳에 살지 않아서 이렇게 쉽게(?) 말할 수 있는 건지는 모르겠지만, 여러 오해와 곡해를 접하게 된다. 그리고 이런 유의 주장과 항의를 하는 자리에서는 늘 목소리 큰 사람이 회의 분위기를 그렇게 끌고가는 악습이 이어지는 것 같다.
청중(김주현) 비장애인의 경우 어울림플라자에서 계단과 길을 이용해 연속적인 열린 공간을 체험할 수 있을 것 같다. 그런데 장애인의 경우는 각 층을 엘리베이터로 이용하기 때문에 단편적으로 각각의 공간을 경험하게 될 것 같다. 장애인들도 이곳 공간을 연속적으로 경험할 수 있는 공간적인 장치가 고려되어 있나?
윤승현 어떻게든 장애인과 비장애인이 같이 어울려야 하고, 장애인에게 문턱 높은 시설이 되지 않으려면 공간이 연속되어야 하는 것이 맞다. 그런데 공사 때 CIP 공간도 안 나온다고 할 정도로 대지 경계 1.5m까지 다 찾아서 썼다. 늘어난 시설 규모 때문에 지하 1, 2층에 많은 공간을 집적할 수 밖에 없었다. 평범한 변명 같지만 가장 큰 규모의 장애인시설로서 할 수 있는 최선의 노력은 다했다.
지하 2층부터 지상 5층까지 일곱 개의 층의 수직 이동은 램프로 해결될 문제가 아니어서 장애인 엘리베이터와 병원용 엘리베이터로 세 지점에서 해결하는 방식으로 계획했다. 실제로 이곳을 방문하는 장애인 그룹은 연수 공간을 오르락 내리락 하는 것 외에 수직 이동을 많이 하지 않아도 된다. 공연장도 굳이 지하 1층으로 가지 않고 지하 2층에서 진입하면 되고, 문화교육 프로그램 장소, 수영장, 피트니스, 강당, 도서관 등이 모두 지하 2층에서 연결되기 때문에 어렵지 않게 함께 엮일 것이라고 생각했다.
공사 관리
청중(임유경) 공사 과정에는 어떻게 개입하고 있는지, 착공 후 계획 변경은 없는지 궁금하다.
이규상 착공 이후 중요한 변경은 있으면 안 된다. 계획이 변경된다는 것은 뭔가 큰 문제가 생겼다는 뜻이기 때문에 그런 일은 있어서는 안 되는 일이다. (건물의 내용을 어떻게 채워나가야 하는가가 여전히 문제이긴 하다.) 착공 이후 공사 과정에 설계자가 개입하는 것은 우리나라에서 막혀 있다. 요즘 디자인 감리라는 명목으로 서울시에서는 적극적으로 시행하고 있는데, 우리는 하고 있지 않다.
청중(임유경) 설계 의도 구현 용역을 계약하지 않은 이유가 궁금하다.
윤승현 하지 않은 것은 아니고, 아직 요청을 하지 않았다. 운은 한 번 뗐는데, 정상적이지 않은 기준으로 일을 해야 한다는 식의 답을 들었다. 정상적이지 않은 방식으로 일하면, 결국 설계 의도 구현도 정상적이지 않은 방식으로 시행될 수 밖에 없기 때문에 동의하기 어렵다는 정도로 답했다. 현재(2023년) 흙을 걷어내고 있는 중이라 아직 급하지 않을 것이다.
등촌동 어울림플라자만의 문제가 아니라 설계 의도 구현 시행 과정에서 공통적으로 혼란이 있다. 가장 큰 문제 두 가지가 얼마의 비용으로 할 것이냐, 그리고 책임과 권한을 어떻게 볼 것이냐다. 용역비에 관련된 것은 서울시 도시공간개선단에서 가이드라인을 설정해 전체 부서와 기관에 전달한 것으로 알고 있다. 우리 입장에서는 그 금액이 합리적이지 않다고 생각하지만, 그렇게라도 시행하고 업데이트해가는 것이 낫다고 본다. 이마저도 운영하지 않는 기관이 여전히 있다. SH공사도 아직 운영하지 않는 것으로 안다.
책임과 권한에 대한 문제가 더 심각한 문제다. 설계 의도 구현이 뭘 하는 거냐에 대한 혼란이 있다. 설계 의도 구현의 계약을 하면 현장 감리단과 동일한 방식으로 모든 사안에 책임을 지는 것처럼 인식해서 모든 내용에 대해 검수를 요청해온다. 자재가 바뀌건, 물량이 바뀌건, 디자인 변경만이 아니라 품질과 비용의 변화에 대해 모든 것들을 검수해야 하는 것으로 생각한다. 그래서 공사자가 우리에게 의견을 물어보고, 의견에 답한 것을 감리단에게 보고하고, 감리단이 발주처에게 승인받는 식으로 돌아간다. 이것은 설계 의도 구현이 아니다. 그런데 이렇게 시행되는 경우가 많고, 이 방식은 오히려 더 큰 부작용을 양산할 수 있다.
그럼에도 불구하고 확신컨대, 공사 현장에 설계자의 참여가 없이는 좋은 건물이 나올 수 없다. 어떤 방식으로 참여하느냐가 결국은 가장 큰 어려움으로 보인다.
이규상 설계를 한지 벌써 4년 반이 지났다. 그 동안 감독관은 계속 바뀌었고, 지금 과장도 우리가 만난 세 번째 과장이다. 이렇다 보니 건물 히스토리에 대해 제일 많이 아는 사람이 우리다. 그런데 현행 감리 제도는 설계자를 배제하고 있다. 도면에 다 그려져 있으니 그대로 하면 되지 않느냐고 한다. 그러면서 도면에 있는 것을 설계자에게 계속 물어본다. 알려줄 수도 있지만 그 양이 너무 많을 때는 좀 문제가 된다.
그래도 그 정도로 끝나면 좋은데, 건물에 대한 이해가 부족한 상태에서 중요한 것들을 편의대로 바꾼다든지, 도면을 잘못 이해하고 공사한다든지 하는 일들이 생긴다. 그러면 결과적으로 아무도 합의한 적 없는 건물이 만들어지는 것이다. 그것에 대해 책임지는 사람은 아무도 없다. 자기 집이면 본인만 그렇게 살면 된다. 그런데 이건 공공의 건물이다. 그래서 이런 상태를 보완하기 위해 설계자가 공사가 잘 되어 가는지 확인할 수 있는 권한을 주겠다는 것이 설계 의도 구현이다. 그런데 지금은 그게 아니라 감리의 하청처럼 되어버린다. 비용 면에서도 공력 면에서도 일 할 의지가 생기지 않는다. 그래도 울며 겨자먹기로 하는 경우에는 ‘내 자식 안 버렸다’는 생각 외에는 없는 거다. 특히 등촌동 어울림플라자 같은 어렵고 복잡한 건물에서는 이 제도라도 제대로 활용할 수 있는 방법을 찾으면 좋겠다.
원고화 김보경 / 편집 김상호
등촌동어울림플라자: 설계안
분량8,943자 / 18분 / 도판 8장
발행일2025년 1월 10일
유형좌담
『건축신문』 웹사이트 공개된 모든 텍스트는 발췌, 인용, 참조, 링크 등 모든 방식으로 자유롭게 활용 및 사용할 수 있습니다. 다만, 원문의 출처 및 저자(필자) 정보는 반드시 밝혀 표기해야 합니다.
『건축신문』 웹사이트 공개된 이미지의 복제, 전송, 배포 등 모든 경우의 재사용을 위해서는 반드시 원 저작자의 허락을 받아야 합니다.

