일상
김헌, 최정인
분량9,879자 / 20분 / 도판 7장
발행일2024년 2월 23일
유형인터뷰
일상건축사사무소는
건축이 어렵지 않기를 바랍니다.
건축의 어려운 담론을 떠나 개개인의 일상을 공유하고
그 일상을 건축에 담아내고자 합니다.각자의 일상이 그러하듯 각자의 건축 역시 그러하리라 믿습니다.
일상건축사사무소는 우리네 삶을 위한 공간을 만들고자 합니다.
그것이 소위 삶의 질을 평가하듯 이야기 되어지는 “평” 개념의 물리적인 공간의 수치로
만들어지는 것이 아니라 눈에 보이지 않는 일상적인 요소들로 채워지기를 원합니다.매일 반복되는 일상의 무료함이 아닌
매일 반복되는 일상의 즐거움으로 이루어진 건축을 지향합니다.그리고
일상건축 웹사이트 소개글
…
당신의 일상은 조금 더 아름다워질 수 있으며,
당신의 이상이 일상이 되길 바랍니다.
전주에 내려오면서 가장 먼저 한 일은 앞으로 우리가 만들어 갈 건축의 지향점 혹은 이상향에 대한 태도와 생각을 정리하는 것이었다. 이런저런 이야기만 나누다 “그래, 우리는 이렇게 하자!”고 끝낸 것이 아니라 정리한 글을 서로 나누고 홈페이지에 걸어두니 무언가 무기를 하나 얻은 듯한 느낌마저 들었다.
우리는 건축이 일상과 가깝기를 원한다. 여기에서 ‘일상’은 모든 이들의 일상이기도, 일상건축의 하루하루이기도 하다. 그렇기에 우리는 주택가, 1층, 내어주는 공간이라는 큰 테두리 안에서 우리들의 공간을 만들고 작업을 해나가고 있다. 일상에 가까워지기 위한 행위 혹은 공간 만들기는 우리에게는 끝나지 않을 과제와 같다.
첫 번째로 제출한 과제는 사무소 한켠에 운영한 무인책방이었다. ‘일상채집’이라는 이름의 무인 동네책방은 ‘일상’이라는 단어가 포함된 제목의 책으로만 구성했다. 책이라는 매체를 통해서 누군가가 경험했거나 만든 일상을 편안하게 간접체험할 수 있을 것으로 생각했기 때문이다. 건축의 무게를 제거한 이 책방은 단순히 책을 읽는 공간을 넘어서서 환경미화원 아저씨의 휴식공간, 근처 학교 CA시간의 모임공간, 퇴근길 휴식공간이 되었다. (굳이 소리내어 ‘일상에 가까운 건축’ 혹은 ‘좋은 건축’을 이야기하지 않아도 마을 주민들은 알아서 잘 사용하더라….)
얼마 전에 마친 두 번째 과제는 ‘우리는 그들의 일상을 어떻게 바꿔 주고 싶은가?’에서 시작된 단독주택 작업 전시였다. 누군가의 집에 방문했을 때, 그 집 특유의 냄새를 느낀 적이 있을 것이다. 그 냄새가 누군가에게는 긍정으로 또 다른 누군가에게는 부정으로 각인될 수 있다. 이런 점이 주택과 닮아있다고 생각했다. 누구에게나 좋아 보이는 주택도 내게는 ‘즐거운 우리 집’이 아닐 수 있다. 각자의 일상이 천차만별이기 때문이다. 우리는 누군가의 일상을 담기 위한 주택을 만들고 있고, 그곳에 살아가는 이들의 일상이 더해져 집이 되어 간다.
앞으로 우리에게 주어질 과제는 무엇일까? 과연 제출은 잘할 수 있을까? 전주라는 지방 소도시에서 열심히 무언가를 만들어 가고 있는, 만들어 가고 싶은 사무소이기에 일상의 일상이 기대 반 걱정 반이다.
글 김헌, 최정인

독립 이후 전주로
최정인 김헌 소장과 나는 설계사무실에서 만난 사이로, 둘 다 지방에 있는 대학교를 졸업하자마자 서울로 상경했다. 독립 직전 사무소에서 6년 넘게 있었는데, 거기에서 관공서 설계를 주로 하며 실질적인 경험을 쌓았다. 김 소장과 같은 팀을 하면서 합이 잘 맞았고, 고민을 많이 나누었다. 당시에 생각하기를, 언젠가 독립하면 1인 체제 사무소일 테고, 현상설계나 규모가 큰 건물을 설계하기 위해 협업할 땐 김 소장처럼 마음 맞는 친구와 같이 할 텐데 회사 다니면서 미리 해보는 게 어떨까 싶었다. 한편, 회사에서 설계공모를 하는데 인력, 시간, 열정 낭비가 심하다고 느꼈다. 결정권자는 따로 있고, 실무진은 디자인과 보고를 거듭하기 때문에 불가피하게 많은 인원이 투입되는 것 같다고 판단했다. 그러니 뜻이 맞는 사람끼리 한번 설계공모를 해보자고 결심했다. 김 소장과 다른 친구 한 명까지 셋이 의기투합해서 업무가 끝난 이후에 모여 밤도 새가며 도전했는데 운 좋게 당선됐다. 그 길로 나와 김 소장은 독립했고, 다른 한 친구는 회사에 남았다.
2012년부터 3~4년 정도 설계공모에 집중하고 나니 민간 프로젝트, 주택 설계를 하고 싶다는 생각이 들었다. 계속해서 주인 없는 집을 설계하는 느낌도 있었다. 감독관은 유지 관리하기 좋은, 공사비에 맞는 건물에 모든 기준을 맞추니까 (그게 잘못된 건 아니지만) 우리로서는 내적 갈증이 있었던 것 같다. 그래서 각자의 고향인 순천이나 전주 둘 중 한 군데로 가면 아무래도 민간 프로젝트를 할 기회가 많을 것으로 생각했고, 2018년 전주에서 일상건축을 개소했다.
시공을 알고 싶다
김헌 내가 먼저 서울 일을 정리하고 전주로 내려왔다. 그러면서 ‘시공을 알고 싶다’는 생각과 ‘소위 허가방, 집장사가 짓는 집이 정말로 문제가 있는 걸까’하는 궁금증에 1인 시공사를 운영하던 지인의 회사에 합류했고, 연간 빌라 300~400채씩 도장 찍는 설계사무소에서 도면을 받아다가 빌라 네 채를 지었다. 그런데 매번 도면의 평, 입, 단면이 하나도 안 맞았다. 결국 모두 수정할 수 밖에 없었고, 고스란히 나의 일이 되었다. 도면은 설계사무소 차원에서 매듭지어야 할 일인데, 건축주가 설계사무소와는 전혀 소통하지 않았다. 애초에 시공사, 시공 현장을 믿는 것이다. ‘이미 설계에서 해결했어야 할 일을 왜 시공사와 이야기할까?’하는 의문이 드는 동시에 내가 설계사무소를 열면 이런 지점을 사전에 정리해야겠다고 생각했다.
우리가 설계, 시공을 일괄로 했던 프로젝트가 하동 주택이다. 8개월 정도 하동에 살면서 시공을 했는데, 낮에는 현장소장으로, 밤에는 설계자로 지내보니 양쪽 입장을 모두 이해하게 됐다. 특히 소규모 현장에는 도면, 모형, 3d 그래픽으로 만들어지지 않는 무언가가 더 많이 존재한다는 것을 깨닫고 설계자로서 그 차이를 어떻게 줄여갈지를 많이 고민했다.
이제는 시공까지 하진 않지만, 우리가 설계한 건물의 감리를 직접 한다. 우리가 아무리 많이 준비하고, 건축주나 시공사와 아무리 많이 협의를 해봐도 납품의 결과물이 100%는 아니라고 생각한다. 현장에서 건축주, 시공자, 우리가 원만한 합의를 거쳐 만들어지는 몇 %가 더해져야 그나마 99.999%가 되는 게 아닐까. 그리고 ‘원만한 합의’가 이루어지려면 누군가는 자기 생각을 포기해야 한다. 그래서 나는 원만한 협의가 적으면 적을수록 우리 내부적으로 설계를 할 때 더 깊숙이, 더 치열하게 설계했다는 것을 보여주는 지표로 생각하며 작업하고 있다.
일상을 들여다보는 방법
김헌 다른 건축가도 많이 쓰는 방법인데, 설문지로 이야기를 듣는다. 계획적 측면에서 방의 개수를 묻기도 하지만, 실제로 어떤 분위기나 색감, 시간대, 날씨와 연결하여 공간에서 느끼는 감정을 묻는다. 이런 내용은 정량적으로 측정할 수 있다거나 데이터베이스가 있는 것은 아니지만, 설계에 참고할 수 있다. 결국 설문지를 통해 ‘당신의 일상이 어떻습니까?’, ‘당신의 일상이 어떻게 바뀌기를 원합니까?’를 묻고, 우리는 그들의 답을 공간으로 풀어낸다.
건축주가 얼마나 꼼꼼하게 적어주는지에 따라서 결과물이 달라지기도 한다. 설문지에 담기 어려운 경우에는 직접 노트를 만들어 오기도 한다. 나름대로 도면을 직접 그려오면 같이 고친다. 이 과정에서 건축주 가족 간에도 서로 몰랐던 점을 발견하게 된다. 이런 건 평소에 쉽게 경험하지 못하는 재미와 즐거움이다. 그래서 우리도 더 적극적으로 생각을 나누는 시간을 같이 만들어 보려 한다. 이렇게 노력하는 건축주는 똑같은 과정을 겪더라도 더 좋은 결과물을 가져갈 수 있다.
우리 일은 잘 들여다보면 카운슬러에 가깝다. 건축주가 수많은 이야기를 들려주면 우리는 그 안에서 그들의 일상을 담을 수 있는 무언가를 잡아내야 한다. 그러므로 오지랖이라면 오지랖일 수 있는 자질구레한 내용까지도 최대한 많이 들으려고 노력함으로써 일상이라는 이름과 좀더 부합되게 작업하려고 한다.

사이집, 둥글집
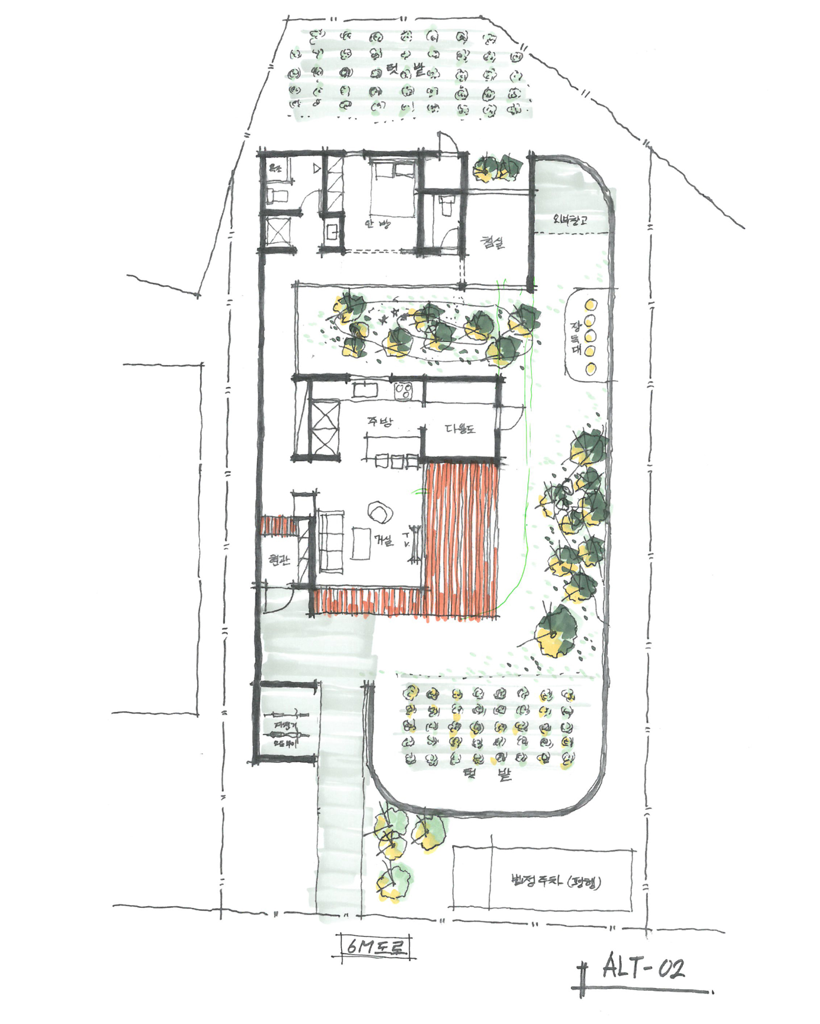
김헌 대표작이라고 하면 작업을 통해서 ‘우리는 이렇게 작업을 하고 있다’든가 ‘우리는 이렇게 작업을 해나가려고 한다’라는 식으로 선언해야 할 것 같은데, 아직은 그렇게 말하기에는 이른 감이 있다. 그래서 가장 최근 작업이 현시점의 대표작이라고 할 수 있을 것 같다. 사이집은 단독주택인데, 양옆에 3층 규모의 상가주택과 단독주택이 있다. (이것도 운 좋게 우리가 설계했다.) 그 사이에 끼어있다 보니 건축주가 집이 왜소해 보일 것을 걱정했다. 그래서 6m 캔틸레버 구조로 존재감을 드러내고자 했다. 한창 공사 진행 중인 일이라 우리의 색깔, 생각이 전작보다는 좀더 들어가고 있지 않나 생각한다. 만약 널리 알려진 것을 대표작으로 꼽는다면, 삼연재와 맘껏하우스일 것이다.

최정인 두 소장이 서로 다양한, 대비되는 대안을 가지고 이야기를 많이 나누었던 작업인 둥글집이 대표작이라고 생각한다. 아버지의 집을 짓고 싶은 아들이 우리를 찾아와서 시작한 일로, 우리는 부자 클라이언트 사이에서 여러 고민과 설득과 중재를 거듭한 끝에 설계자와 부자(父子) 클라이언트 모두가 만족하는 결과물이 만들어졌다. 실거주자는 아버지이나, 서울에서 집을 지어본 경험이 있는 아들이 일을 주도했고 우리의 안을 잘 이해하고 선택해 줘서 다행이었다. 그런데 아버지가 형틀 목수 일을 했던 분이라 직접 시공하겠다는 말씀에 모두가 만류했지만, 결국 골조를 맡으셨다. 대신 우리가 감리를 보았고 골조 팀과 마감 팀의 협업이 잘 이루어졌다. 둥글집이 우리 작업의 지향점을 대표하는 것은 아니지만 둘의 협업 시스템이나 설계부터 시공까지의 과정이 의미가 있었던 프로젝트라 애정이 남다르다.


관계의 지속
최정인 프로젝트의 결과가 건물만이 아니라 건축주와의 관계로도 남길 바란다. 설계 과정에서 건축주가 우리에게 마음을 열면, 우리가 지은 집에 살면서 꾸민 공간을 우리에게 다시 보여주기도 한다. 한 프로젝트를 잘 마무리하고 나서 다음 일도 우리와 하고 싶다는 말씀하는 분도 있다. 이런 인간관계를 이어가고 싶다는 게 중요한 목표 중 하나다. 물론 하자 없고 쾌적한 집을 만드는 것은 관계 이전에 선행되어야 할 기본조건이다.
김헌 준공 후에도 문이 살짝 삐그덕거린다거나 칠이 조금 벗겨지는 등 소소한 일이라도 건축주 연락을 받으면 직접 다녀온다. 그런 일에 스트레스는 없다. 오히려 살아보니 느끼게 되는 주택에서의 불편함 혹은 만족감에 대해 피드백을 받을 수 있어서 설계에 도움이 된다. 최근 준공한 프로젝트는 감리 사진 폴더만 77개다. 사무소와 가까운 현장은 거의 2~3일에 한 번꼴로 감리를 간다. 뭔가 좀더 잘 만들고, 그 결과가 오롯이 건축주에게 돌아가게 하려면 우리가 계속 지켜봐야 하는 것 같다. 그렇게 해서 건축주에게는 ‘이 사람들이 진심으로 열심히 만들어줬다’는 믿음이, 우리에게는 ‘이 건축주가 우리를 믿어주었고 작은 것 하나라도 전문가 의견을 구하려고 했다’는 신뢰 관계가 만들어져야 한다.
다양한 일상을 담는 집
최정인 건축주 중에는 충분한 예산으로 좋은 디자인을 추구하는 사람도 있지만, 소위 허가방에서 쉽고 빠르게 짓는 이도 있고, 공사비가 없어서 샌드위치 패널로 짓는 사람도 있다. 그런 이들은 건축가와 디자인을 고려할 수 있는 환경이 아니다 보니 예산에 맞는 건물을 만드는 것이다. 나는 예전부터 그런 일에 관심이 많았다. 적은 공사비로도 건축적으로 좋은 공간, 일상을 제대로 담을 수 있는 공간을 만들 방법을 찾고 싶다. 소재나 공법 등 다양한 측면에서 접근할 수 있을 것이다.
김헌 원룸을 해보고 싶다. 조금 더 잘 정돈돼 있는 1인 주거를 만들어볼 수 있지 않을까 생각한다. 원룸이 물리적으로 작긴 하지만, 도시 환경 속에서 가까운 편의 시설을 활용할 수 있다는 점을 생각하면 그렇게 작기만 한 것은 아니다. 원룸에 살 수밖에 없는 연령대나 상황에 처한 분들이 더 살기 좋고 편한 공간을 설계해보고 싶다. 현실적으로 곧 이룰 수 있는 목표처럼 보이는데, 의외로 이런 프로젝트가 잘 안 들어온다.
두 소장이 만드는 균형
최정인 두 소장이 같이 운영하는 게 우리의 장점이라 생각한다. 프로젝트마다 PM이 있는데, 진행 과정에서 계속 피드백을 주고받는다. 주변에서 어떻게 이렇게 10년 넘는 긴 세월 동안 팀워크를 유지하고 있는지 궁금해한다. 애증의 관계다. 일하다보면 의견 대립이 있고 서로 고집 피우다가도 ‘이번에는 내가 양보할게’하고 넘어간다. 힘든 순간마다 서로 힘이 되어주기도 한다. 설계뿐만 아니라 사무소 운영 측면에서도 둘이 함께하는 게 시너지 효과가 있다.
김헌 PM은 어쩔 수 없이 건축주가 제시한 공사비 기준에 얽매인다. 근데 PM이 아닌 다른 소장은 그런 제약에서 자유롭기 때문에 공사비가 조금 늘더라도 건축적으로 더 좋은 안을 제시하기도 한다. 그러면 어떤 건축주는 공사비를 못박는가 하면, 어떤 분은 공사가 완료되기까지 1년 반에서 2년 정도 걸리니 그때까지 자금 마련에 노력해보겠다면서 선택을 달리하기도 한다. 이런 게 PM 시스템의 장점이다.
최정인 프로젝트는 한 소장이 한두 개를 맡는 정도로 생각하고 있고, 가능하면 소장뿐만 아니라 직원들도 1인 1 프로젝트를 담당하면 좋겠다는 생각이다. 이제 4년 차인 친구가 작년에 (김 소장이 PM을 맡기는 했지만) 프로젝트 시작부터 납품까지의 중심을 담당했다. 디자인도 각자 소신이 있는 일이므로 그 단계부터 책임을 갖고 일하길 바란다. 물론 그 과정이 순탄하지 않다. 단계마다 잘 챙기고 있는지, 우리의 방향성과 맞는지 꾸준히 체크해야 한다. 그럼에도 일을 맡기는 이유는 이들이 훗날 우리 파트너가 되거나 혹은 독립해서 사무소를 차릴 수도 있기 때문이다. 그리고 궁극적으로는 우리가 1년에 딱 한 프로젝트만 집중해서 할 수 있는 여건으로 만들어 가고 싶다. 농담 반 진담 반으로 얘기하는 건데, 나중에 우리의 인지도가 쌓여서 우리에게 설계를 믿고 맡기는 분을 만나고, 또 경제적으로 자유로워지면 직원 없이 둘이서 일하고 싶다.
지역의 굴레를 벗어나
김헌 나이가 젊어도 생각이 정체되어 있는 사람들이 존재한다. 전주에서 뭔가 뜻을 가지고 열심히 하려는 설계사무소가 잘 안 보인다. 나보다 어린 후배가 선배에게 로비한다는 소식이 들린다. 개소하자마자 로비를 하면서 공모하는 게 당연하다고 생각하는 현상을 어떻게 받아들여야 할까.
전주에 좋은 공공 건축물이 없는 이유가 분명히 있다고 생각한다. 이건 설계사무소와 발주처만의 문제가 아니다. 결국 시민들이 좋은 공간을 누릴 기회가 줄어드는 게 가장 큰 문제다. 집에서 느끼기 어려운 규모의 공간이나 프로그램을 공공영역에서 좋은 건축물을 만듦으로써 보완해야 하는데, 그걸 할 수 없게끔 자기들만의 리그를 만들어서 일을 나눠 가진다.
물론 나이와 상관없이 생각이 깨어 있는 사람이 있다. 전주 토박이이고, 지역 건축계에 폭넓은 네트워크가 있다고 하더라도 말이다. 이들이 간혹 공모에 접수하면 ‘그거 우리가 거의 다 작업해놓은 거니까 하지 마세요’라는 연락을 받는다고 한다. 그래도 버티면서, 2, 3등 계속하면서 깨끗하게 일하고 있지만, 이런 상황을 모르는 이들은 결과만으로 평가한다. 그럴 때 ‘그 회사는 로비로 당선했다’고 말하기도 애매하고, 이런 상황이 복합적으로 돌아가니까 어느 순간 회의감이 든다는 동료 건축가도 있다.
그런 연결고리를 잘라내려면 다 같이 노력해야 하는데 다들 소극적이다. 건축하는 사람들이 잘 안 뭉치기 때문이다. 최근에 새건축사협의회에서 낸 선언문에 서명도 하긴 했다. 그런데 전문가라는 사람들이 법제가 아니라 감정에 호소하는 것 자체가 아이러니하다. (그조차도 400여 명밖에 서명하지 않았다.) 악순환을 끊을 수는 있는 건가? 못 끊는다면 우리가 지금 이렇게 하는 게 맞는 건가? 우리도 그냥 그렇게 해야 하는 건가? 고민이 깊다.
최정인 요즘 공모를 다시 하다보니까 나도 김 소장처럼 감정이 북받쳐 오르긴 한다. 공모에 투입하는 시간이 짧다면 짧고 길다면 긴데, 도전하는 모든 이들이 다들 당선될 거라는 생각으로 임한다. 그런데 심한 경우에는 ‘이 현상설계에는 주인이 있다’는 얘기도 듣는다. 그것도 여러 번이다. 설계공모를 해야 하나 말아야 하나 계속 고민하게 된다.
이제는 직접 심사위원을 해보자는 생각이 들었다. 예전에는 연락이 오더라도 거절했었는데, 이제는 내 역량이 부족하다 싶어도 한번 해보기로 마음먹고 광주시, 영주시 공모 심사위원으로 참여했었다. 기회가 닿는다면 설계공모가 투명해질 수 있도록 심사위원으로 힘을 보태보고자 한다.
리모델링은 시대 요구
김헌 우리는 대부분 신축 위주로 진행하고 있는데, 건물을 새로 짓는 것은 나름의 폭력성이 있다고 생각한다. 이제는 지어진 걸 어떻게 잘 활용할 것인가를 고민해야 할 시점이다. 건축가가 리모델링을 할 때 새로운 시도를 하려면 행정과 제도가 적절히 대응해줘야 한다. 그런데 현실은 그렇지 못하다. 옛 군산세관 창고 리모델링을 했었는데, 지정문화재라 못도 박을 수 없었다. 그래서 내부에 독립적으로 쓸 수 있는 구조물을 만들고 그 위에 계단을 만들어야 했다. 이외에도 행정 담당자가 사례를 가져와라, 허가권자를 만나라, 질의회신을 하라는 경우가 많다보니 하고 싶어도 하지 못하는 경우가 더 많다. 민간 건축주들도 새로 짓는 것보다 고치는 게 왜 더 비싸냐고 묻는다. 결국 비용으로 귀결되는데, 기존 건물을 뜯고 고치다 보면 우리가 생각지도 못한 비용 요소가 늘어나는 부분도 고려해야 한다. 시공사도 리모델링 프로젝트는 여유 경비를 더 잡아놓는다. 이처럼 여러 허들이 있음에도 리모델링은 반드시 해야 하는 시대적 흐름이라고 생각한다.
특히 전주는 앞으로 신축보다는 리모델링에 대한 요구가 더 많을 것이다. 내가 어릴 때 우리 사무실이 있는 금암동 근처에 살았는데, 동네 모습이 그 시절 그대로다. 낡은 건물 지붕에 비가 새니까 옥상에 비를 막는 구조물이 거의 모든 건물에 생겼다. 서울에서 온 손님이 그걸 보고 ‘저것은 전주만의 특색이나 지역성이 있는 거냐?’고 물었다. 평지붕에 비가 새서 추가로 지붕을 올려둔 것일 뿐이다. 그런데 이런 걸 개선할 생각은 하지 않고 왜 재개발만 기다리고 있을까?
생존지향 현실주의
김헌 이제는 유학 경험이나 유명 사무소의 실무 경험이 설계사무소 운영에 도움이 되는 시대가 지나갔다. 그렇기 때문에 지역을 막론하고 개소하는 모든 이들이 다 생존지향 현실주의자다. 차라리 건축판에 빨리 뛰어들어서 산전수전 겪고, 내가 할 수 있는 무기를 만드는 현실적인 자세가 필요한 세대가 됐다. 그리고 이제는 설계가 사업자등록증에 쓰여 있는 것처럼 100% 서비스업이 된 것 같고, 다들 일정 수준의 설계를 하며, 제대로 된 서비스를 제공하자는 마인드를 갖추고 있다. 최대한 도면과 각종 결과물로 정리하고, 시공사와 이야기를 나누고, 건축주와 상의하자는 생각이 앞세대에 비해 확고하다.
최정인 우리(세대)는 끊임없이 소통한다. 그것이 가장 건축적인 방법이라고도 생각한다. 주택 설계할 때 건축주에게 주는 설문지도 그 일환이다. 이렇게 건축주와 이야기 나눈 내용을 완성도 높게 만들어 내려면 현장과의 대화도 지속적으로 이어가야 한다. 그래서 현장을 자주 가려고 한다. 우리가 도면을 꼼꼼하게 그리는 것뿐만 아니라 모든 자재의 스펙을 건축주와 함께 지정하는 모든 과정이 소통하는 방법이라 생각한다. 그리고 이 자체가 우리가 추구하는 ‘일상’과 맞닿아 있다.
인터뷰, 원고화 및 편집 심미선
일상
일상건축사사무소는 건축이 어려운 담론에서 벗어나 개개인의 일상을 공유하고 담아내는 과정이 되도록 작업하고 있다. 대표작은 삼연재, 둥글집, 맘껏하우스다.
김헌은 전북대학교에서 건축설계를 공부했으며, SD파트너스건축사사무소와 논스케일에서 실무를 익혔다. 최정인은 순천대학교 건축학과를 졸업하고 우리동인건축사사무소와 SD파트너스건축사사무소에서 실무를 익혔으며 대한민국 건축사이다. 현재 전주시 공공건축가로 활동 중이다. 김헌과 최정인은 2018년에 전주에서 일상건축사사무소를 설립해 운영 중이다.
- 개소 연도: 2016/2018(전주)
- 주로 활동하는 도시: 전주
- 현재 인원: 4
- 프로젝트 수주 비율:
(현황) 민간신축 85%, 민간증개축 4%, 학술연구 2%, 공공신축 9%
(희망) 민간신축 75%, 민간증개축 10%, 공공신축 10%, 전시기획 및 참여 5% - 웹사이트: www.ilsangarchi.com
- 인스타그램: @ilsang_architects
일상
분량9,879자 / 20분 / 도판 7장
발행일2024년 2월 23일
유형인터뷰
『건축신문』 웹사이트 공개된 모든 텍스트는 발췌, 인용, 참조, 링크 등 모든 방식으로 자유롭게 활용 및 사용할 수 있습니다. 다만, 원문의 출처 및 저자(필자) 정보는 반드시 밝혀 표기해야 합니다.
『건축신문』 웹사이트 공개된 이미지의 복제, 전송, 배포 등 모든 경우의 재사용을 위해서는 반드시 원 저작자의 허락을 받아야 합니다.

