close
search close
https://architecture-newspaper.com/v34-cover/
문단구분
글자크기
  1. -
  2. +
배경
  1. 종이
글꼴스타일
출력
  1. 출력
목차

성동구 책마루 프로젝트

김태영, 김현준, 장수정, 안지훈


성동구 책마루 프로젝트는 2017년~2019년 사이에 서울 성동구청에서 추진한 공공 유휴공간 개선 사업이다. 특별한 쓰임새가 없는 공공공간에 책을 매개로 하는 공간, 다양한 문화 프로그램을 운영할 수 있는 공간을 마련하여 시민(구민)의 공간으로 활성화하고자 했다. 성동구청 내의 성동책마루, 옥수동 독서당 아카데미를 리모델링한 독서당책마루, 성수아트홀 내의 성수책마루가 대표적이다. 성수책마루는 2022년 대한민국 공공건축상 우수상을 수상했다.

  • 설계자 발표: 김태영 한국예술종합학교 교수, 김현준 강원대학교 교수, 장수정 건축권장 대표
  • 기획자 발표: 안지훈 한양여대 행정실무과 교수

책마루의 시작 

김태영 책마루 프로젝트는 2017~2019년 동안 이루어진 작업이다. 작업을 한창 진행하는 동안은 작업의 가치를 매기기 어렵다. 기획된 것을 잘 담아내고 디자인하는데 바쁘기 때문이다. 성동책마루에 이어 성수책마루도 좋은 상을 받으면서 최근에 되돌아보는 기회를 가졌다. 건축가는 보통 ‘이렇게 설계했다’는 발표만 하는데, 사업을 처음 기획했던 분과 함께 서로 생각했던 관점을 공유하는 오늘의 자리는 특별하고 소중하다.

안지훈 책마루 사업을 정원오 성동구청장에게 제안했고, 그것을 흔쾌히 받아준 덕분에 불가능해 보이는 사업을 여기 모인 건축가분들과 함께 시작했다. 구청 1층 공간은 많은 시민이 상시로 오고가는 곳이다. (성동구민은 30만 명 정도이고, 서울의 여러 구는 20만~60만 사이의 구민이 산다.) 그곳을 6~7개월 동안 문을 닫고 어떤 공사를 한다는 것은 사실 생각하기 힘든 일이다. 하지만 우리는 그런 이례적인 일을 기획했고, 건축가분들이 흔쾌히 동참해 주어서 멋있는 공간이 만들어졌다.

김현준 안지훈 교수님과는 이런 이야기를 나눌 기회가 없었다. 우리(김태영, 김현준, 장수정)는 강연 자리에서 ‘도대체 책마루 같은 기획을 어떻게 하게 되었냐’는 질문을 청중으로부터 받곤 했다. 엄밀하게 그 질문은 우리에게 온 것이 아니었지만 나름대로의 생각으로 답했다. 오늘은 바로 그 질문에 당사자로부터 직접 답을 들을 수 있을 것 같다. 그래서 가장 중요한, 가장 궁금한 첫 번째 이야기는 바로 그 질문, ‘이 일이 도대체 어떻게 시작되었느냐’이다.

안지훈 2014년 현 성동구청장이 와서 구청사 1~3층을 새로운(구민을 위한) 공간으로 만들려고 했다. 당시 박원순 시장이 만든 시민청1이 인기가 있었고, 우리는 구민청을 만들어 보려고 서울시에 제안을 넣었다. 서울에 25개의 자치구가 있는데 동서남북 네 곳 정도의 시민청을 만들면 좋을 것 같고, 그중 동부 지역의 시민청을 성동구에 설치하자는 제안이었다. 통과되진 못했다. 자치구에서 내는 제안을 서울시에서 받아들이는 경우는 드물다. 그래서 그 생각은 그렇게 묻혀 있었다.

몇 년 뒤, 2017년 가을 무렵 코엑스 별마당 도서관2을 방문할 기회가 있었는데, 괜찮아 보였다. 재밌어하는 내게 지인들이 비슷한 곳 몇 군데를 추천해 줘서 답사를 다녔다. 그러면서 구청 1층을 사람과 책이 어우러지는 공간으로 만들면 좋겠다고 생각했고, 사례를 정리해 두었다가 구청장과 지방 출장 가는 차 안에서 처음 보고했다. 그때가 2018년 6월 지방선거를 앞둔 2017년 11월이었기에 당장 실행하기보다는 선거 공약으로 내걸고 사업을 추진하자고 제안했다. 정원오 구청장이 왜 지금 안 하고 그때 하려고 하느냐고 묻길래, 구청을 공사하면 주민들이 불편해할 것이고(실제로 불편했고) 그 민원을 해결하다가 남은 6개월 다 보낼 터이니 보좌관으로서 반대한다고 답했다. 그는 그렇게 생각하지 않는다며, ‘우리의 근본 취지가 더 좋은 성동구를 만드는 것이고, 구청사는 우리 건물이 아니라 주민 것이니 주민에게 돌려주는 일은 마땅하다’는 매우 원론적인 얘기를 했다. 그러면서 설득은 본인이 할 테니 일을 추진하자고 했다. 책마루는 그렇게 시작되었다.

구정기획단장으로 지자체장 보좌 역할을 하면서 행정의 리더가 얼마나 중요한지를 당시 정 구청장을 통해서 많이 느꼈다. 보좌진은 다양한 제안을 할 뿐이다. 실제로 안을 선택하고, 자원 투입에 대한 의사 결정을 하고, 일이 진행되게 여러 힘을 모으는 것은 리더의 역할이다. 책마루 같은 사업이 그렇게 신속하고 빠르게 추진될 수 있었던 것은 평소 구청장의 행정가로서 철학이 투영된 결과다.

정확한 소통

김태영 이런 일에서는 민원이 가장 무서운 것이다. 예상대로 많은 민원이 있었을 테고, 설득과 중재의 과정이 있었을 텐데, 그 플랫폼(소통 창구)을 어떻게 세팅했는지 궁금하다.

안지훈 (이 자리에 구청장을 불렀어야 했는데 아쉽다.) 정원오 구청장을 알고 지낸 지 20년이 넘었는데, 그의 가장 큰 장점이 바로 그런 민원을 잘 풀어내는 것이다. 의견이나 입장이 부딪히는 일이 생기면 회피하지 않고 전면에 서려고 한다. 그는 구청장 일을 시작하면서 바로 자신의 휴대폰 번호도 공개했다. 명절 때면 6천 개 정도의 문자를 받곤 하는데, 절반은 명절 인사고 절반은 하소연, 푸념, 즉 일종의 민원이다. 그 3천 건 정도의 민원을 구청 부서별로 정리해서 보내고, 해결 여부에 대한 후속 보고를 받는다. (참고로, 성동구청은 정직원이 1,200명 정도, 그 외에 800명 정도가 서브로 붙어서 일한다.)

일례로, 아파트 단지 인근에 새로 들어서는 어린이집으로 인한 여러 문제로 민원이 제기됐다고 하자. 그 안에는 어린이집 학부모 집단과 어린이집으로 불편을 겪는 아파트 주민 집단이 대립하고 있다. 중요한 포인트는 아파트 주민들이 듣기 싫어하는 말이 있고, 어린이집 학부모들이 듣기 싫어하는 말이 있다는 점이다. 그 한두 마디의 말이 누군가가 자신들을 이해하고 있는지 아닌지를 판가름하게 만든다. 정 구청장은 그런 갈등 공간에 갈 때 양쪽이 듣기 싫어하는 말을 숙지하고, 대화하는 동안 그 표현을 쓰지 않는다. 그러면 양쪽 이해당사자는 중재자로 온 구청장이 자신들을 이해하고 있음을 알게 되고, 거기서부터 대화를 이끌어내고, 결국 서로를 이해할 수 있게 만든다. (요즘 현장에서는 이것을 ‘정치 효능감이 높다’고 말한다.) 

책마루 사업을 벌였을 때가 2017년이니 구청장이 된 지 3년 6개월을 지나고 있던 시점이었다. 자신감이 붙었을 때였다. 자신이 사업에 대해 정확하게 이야기한다면, 정말 자기밖에 모르는 사람이 아니라 조금이라도 남을 생각하고 상생을 아는 시민은 (우리가 하려는 일을) 이해할 것이라는 믿음과 확신이 그에게 있다. 책마루 사업은 내가 제안한 일이었지만 사업 예산과 일정에 대해서는 여러 번 걱정과 우려를 표했다. 그런데도 그는 흔들림 없이 쭉 추진했다.

김태영 건축가도 뭔가를 실현하려고 할 때 다양한 이해당사자나 사용자들과 갈등이 생기는 경우가 많다. 그로 인해 프로젝트가 멈춰서기도 한다. 건축 일에서는 그런 민원을 건축주(사용자)의 요구 조건으로 설계에 반영하는 식으로 해결하기도 하고, 시공 과정을 조율하는 모습으로 나타나기도 한다. 점점 더 건축가의 사회적 역할이 중요해지는 지점이기도 하다.

첫 책마루, 성동

김태영 다음 이야기 주제는 “기존 건물의 공간을 활용해야 하는 책마루가 기획되었을 때 공간적인 전략”, 오픈하우스서울 인터뷰에서도 나눈 내용이다. 우선 리모델링 작업에서는 새것과 옛것이 함께 드러나야 한다고 믿었다. 기존 공간의 가치가 더 잘 발휘되도록 하면서 새로운 프로그램을 넣어 보완하고자 했다.

김현준 처음에는 런던 유학 시절에 접했던 공공도서관과 관련된 프로젝트를 참고하려고 했었다. 타워 햄릿이라는 지역에 ‘아이디어 스토어’라는 일종의 도서관이 있는데, 공공, 문화, 교육의 기능을 복합적으로 포함하고 있다. 소득이 낮은 이민자들이 많은 지역이어서 그런지 몰라도 도서관 이용률이 영국 전체에서 4위를 차지한다. 

그런데 코엑스 별마당을 가보고 나서 책마루의 모델로는 아이디어 스토어보다 별마당이 더 적절하겠다고 생각이 바뀌었다. 별마당은 다소 과장된 방식으로 책으로 가득한 장소임이 강조된 장소다. 사람들은 쇼핑몰을 구경하며 거니는 분위기였고, 책을 읽거나 사는 사람보다 그곳을 통과해 지나다니는 사람이 훨씬 많았다. 기능이나 역할이 딱 정의된 공간이 아니라 계속해서 사람들의 움직임이 있는 와중에 어떤 통일감이 전해지는 공간이었다. 성동구청의 기존 공간은 햇빛이 쏟아져 들어오는 3층 높이의 아트리움이었는데, 그곳에 별마당의 분위기가 오버랩시켜 보면서 여기가 그런 느낌의 공간이 되면 괜찮을 것 같았다.

장수정 나는 책마루의 계획설계가 완료된 시점에 프로젝트에 합류했다. 막 완성되어 사무실 중앙에 놓여 있던 모형을 보며 이것저것 질문했던 기억이 난다. 성동구청 기존 로비의 분위기는 나쁘지 않았다. 정연한 행정 공간의 분위기가 좋았고, 햇빛이 화사하게 들어오는 것도 좋았다. 설계 과정에서는 질서정연한 기존 공간에 뭔가 재미있고 따뜻하고 즐거운 공간을 넣기 위한 아이디어를 많이 의논했다. 여기는 카페, 저기는 도서관식보다 더 작은 단위, 예를 들면 수다 떠는 공간, 차를 마시는 공간, 앉아 있는 공간 같은 식으로 생각을 구체화했다.

프로그램 면에서는 전체적으로 하나로 트여 있는 큰 공간이 아니라 작은 이벤트들이 곳곳에서 이루어질 수 있게 공간의 표면적을 넓히는 개념으로 설계했다. 이를 위해 여러 방식이 쓰였고, 특히 시각적으로 들어오는 실내 공간의 면들이 시각적 개방감을 저해하지 않도록 했다. 

김태영 건축 작업을 하고 나면 인테리어 작업은 보통 다른 곳에서 맡는다. 발주 체계가 그렇게 되어 있다. 그래서 건축 작업 때 만든 공간이 처음 의도와 다르게 변형되기도 한다. 공간이 변형되는 또 하나의 흔한 이유는 사용하면서 생기는 필요에 따라 이런저런 물건을 사다 놓기 때문이다. 그래서 우리 고민은 더 좋은 공간을 위해서 추가한 건축적 뼈대를 유지하면서 향후 필요에 따라 변용하는 부분을 어떻게 소화해 낼까 하는 것이었다. 그 뼈대가 서가였다. 수평선을 강조해 벽에 붙인 서가가 기존 벽체를 따라가면서 공간의 틀을 잡아 주었다. 그리고 그 안에 ㅁ자 아카이브 구획이나 ㄷ자의 계단을 오브제처럼 추가하되, 사람이 앉는 부분에는 일곱 무지개색(성동구의 상징색)을 곳곳에 ‘미리’ 넣었다.

김현준 공간의 중심은 카페다. 카페를 1층 가운데 배치하는 데서부터 계획을 시작했다. (기존 카페는 후미진 구석에 있었다.) 1층은 작은 전시 공간, 가끔 공연 장소, 회의실 등으로 쓰이고 있었는데, 이것이 고스란히 리모델링의 요구사항이 되었다. 추가된 요구조건은 가족 단위 방문자를 비롯해 다양한 세대가 함께 쓸 수 있는 곳을 만드는 것이었다. 이런 여러 필요를 저마다 구획된 공간에 할당하지 않고 카페를 중심으로 하나의 열린 공간 안에 아우를 수 있게 계획했다. 딱 하나, 책 읽는 공간만 따로 규정했다. 아늑한 느낌의 공간이 필요했는데, 벽을 두르는 대신 서가를 구성하는 유닛을 쌓거나 흩트리는 방식으로 공간을 만들었다. 사용하면서 융통성 있게 좁히거나 넓힐 수 있도록 했다. 이곳에 ‘클라우드 서가’라는 이름을 붙였다.

안지훈 구청 1층은 어르신들이 많이 찾아오는 곳이다. 전국의 모든 구청에서는 1년에 두 번 쉼터를 만드는데, 무더위 쉼터와 한파 쉼터다. 덥고 추울 때 이곳에 와서 쉬라는 취지로, 홍보도 많이 한다. 거기에 더해 대학생들도 시험공부 하러 오고, 아이들도 편하게 책 읽으러 오는 곳이 되길 책마루를 만들면서 기대했다. 설계 과정에서 1층의 높은 층고를 활용해서 중층을 거는 계획이 난항을 겪고 있을 때 내가 적극 지지했던 이유도 거기서 아이들이 뛰놀 수 있을 거라는 생각 때문이었다.

성동책마루 / 자료 제공: 어반토폴로지+건축권장
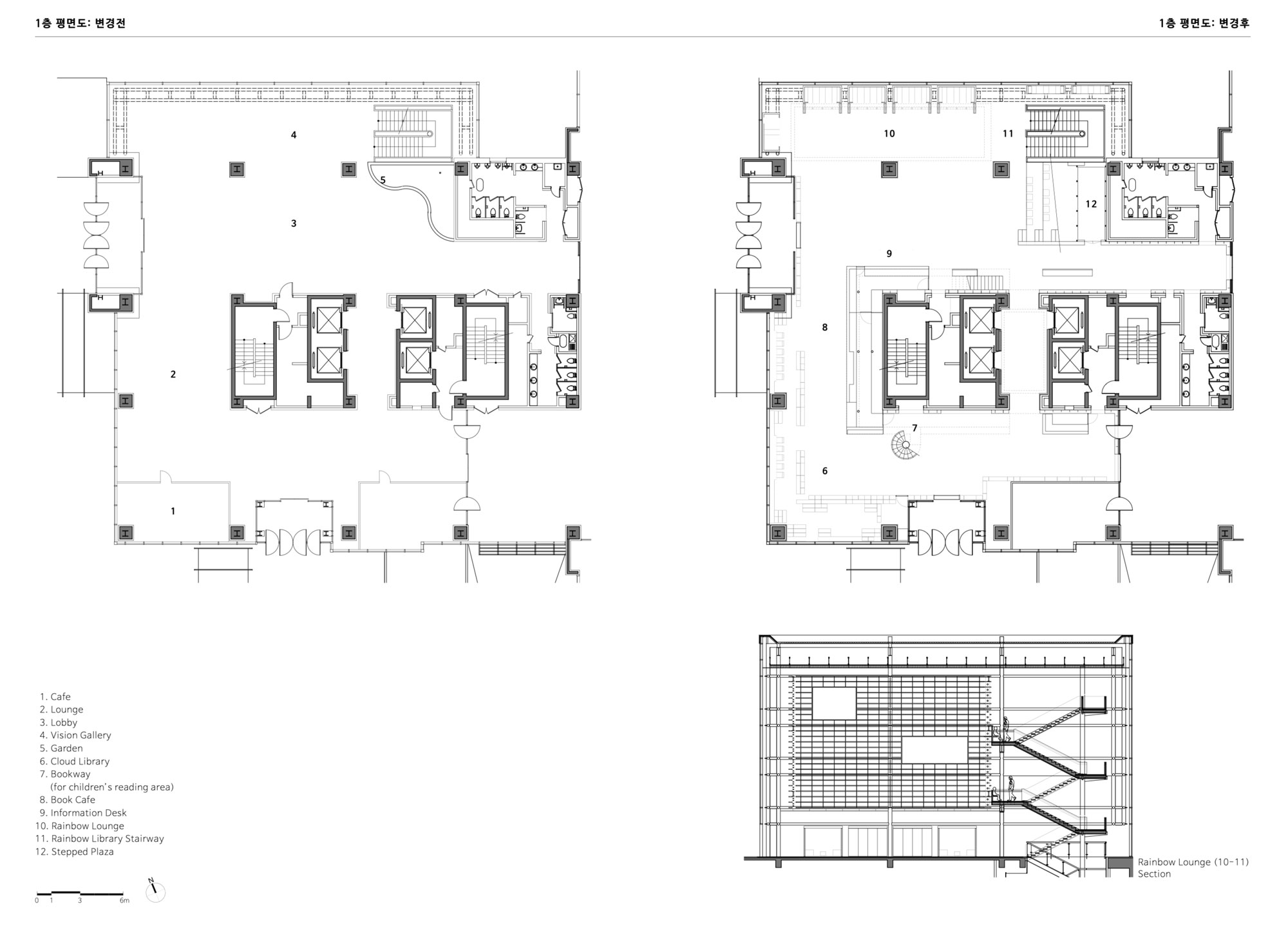
성동책마루 1층 평면도 리모델링 전과 후 / 자료 제공: 어반토폴로지+건축권장

네 번째 책마루, 성수

장수정 성동책마루에 이어 독서당책마루, ㅇㅇ책마루가 연이어 만들어졌고, 성수책마루 작업을 시작할 때에는 시민들이 이곳들을 성동구의 브랜드 공간처럼 경험할 수 있으면 좋겠다고 생각하게 됐다. 그래서 기본적인 디자인 어휘를 그대로 사용해서 다른 책마루들과 연속성을 갖도록 했다.

책을 매개로 한 공간이라는 점은 성동책마루와 같다. 다른 점은 성수책마루가 들어간 성수아트홀은 비교적 최근에 지어진 건물로, 운생동에서 설계한 ‘박진감 넘치는’ 기하학적 형태의 건물이라는 점이다. 그래서 성동책마루와 마찬가지로 작은 공간들을 만들되 이 건물의 특별한 기하학적 질서를 따랐다.

김현준 성수책마루는 성동책마루의 좋은 경험이 있었기 때문에 책마루가 긍정적으로 인식된 상태에서 시작됐다. 다만, 2층에 있다는 치명적인 단점이 있었다. 공연이 있는 저녁에는 사람이 많지만, 낮에는 거의 텅 비어 있는 곳이라는 점도 고려할 부분이었다. 이 두 약점을 극복하기 위해 기존 외부 계단을 다시 잘 디자인하는 것, 그리고 1층 후면에 있는 엘리베이터 로비를 책마루의 얼굴로 삼는 것에 설계의 주안점을 두었다. 그 외에는 성동책마루에서 시도했던 여러 가지 요소를 아기자기하게 배치했다.

장수정 내 사무실이 성수아트홀 근처였기 때문에 평소 동네 분위기를 잘 알고 있었다. 여기에 책마루를 구상하기 시작했을 때는 페차쿠차 같은 이벤트도 열 수 있는 다목적 공간이 되면 좋겠다고 생각했고, 사용되지 않던 공간을 사용하는 공간으로 전환할 수 있는 요소를 고민했다. 

특히, 보통 다른 지역에 이 정도 규모의 공공건물이 있으면 외부 조경 공간이 크게 있었을 텐데, 이곳은 공업지역이라는 특수성 때문에 조경 영역이 전혀 없다. 기존 건물도 조경 요소를 입면에 계획했었지만 잘 구현되지 못한 상태였다. 그래서 녹지와 앉아서 쉴 수 있는 공간을 하나의 유닛으로 만들고, 반복해서 설치하는 방식을 생각했다. 공사 기간이 한정되어 있기 때문에 공장 제작 후 조립하는 방식으로 설계했다.

김태영 성수책마루 작업에 앞서 옥수동 독서당 아카데미를 리모델링해서 책마루를 넣었다. 적은 예산의 프로젝트로 시공비가 1억 원이었다. 독서당책마루의 발주처는 교육지원과였다. 이곳에서 우리가 중요하게 여겼던 것은 기존 설계의도의 복원이었다. 신축한 지 얼마 안 된 건물이었는데, 공사 당시 예산이 적어서였는지 인테리어를 충분히 못 했던 것 같았다. 그래서 이후에 사용하면서 뒤늦게 보완(?)을 했던 것 같은데, 기둥에 벽돌 타일이 덧대어져 있는 모습은 치명적이었다. (기둥이 기둥이 아니게 보였으니까.) 덧붙여진 모든 타일을 철거해서 기둥을 비롯한 건축적 요소를 본래대로 다시 드러냈다. 천장 마감도 철거하고 싶었지만 (다시 마무리할) 예산이 없어서, 기존 조명 기구들에 전등 갓을 씌우는 정도로 정리했다. 예산 투입의 강약을 조절하면서 작은 공간을 조금 개선했다.

구의회 작업은 책마루는 아니었지만, 비슷한 취지로 시민들이 많이 찾는 공간이 되기를 바랐다. 예산은 2억 원 정도였다. 기존 건물은 기하학적 형태가 강하게 표현되어 있었다. 성동구 공공공간 작업들에서 건물 입구에 계단이 있는 경우에는 그곳을 ‘계단 마당’으로 만드는 방식을 일관되게 취했다. 기존 계단과 연결된 앉거나 머무를 수 있는 공간을 만드는 것이다. 내부 공간에서의 주안점은 구의회 활동을 시민들이 제대로 참관할 수 있도록 만드는 것이었다. 여기서도 기둥에 덧댄 장식 재료를 걷어내 기둥을 기둥으로서 드러내고, 천장을 심플하게 정리해서 페인트로만 마감했다. 그랬더니 기존에 설치되어 있던 미술작품도 더욱 도드라지면서 제 역할을 하게 되었다.

성수책마루 / 자료 제공: 어반토폴로지+건축권장

유휴 공간과 행정 체계

장수정 책마루 작업을 이어가는 동안 머릿속 한구석에서 성동구의 공공 유휴공간들이 책마루 같은 프로젝트로 계속 이어질 수 있는지 궁금했다.

안지훈 행정의 생리는 지극히 단순하다. 성동구에서 일하는 동안 주민들이 마음에 들어 하는 것이 무엇인지 매년 구정 조사를 했다. 조사의 연속성을 위해 목록은 구청에서 추리긴 했지만, 맥락은 비슷하게 유지하고, 평가 지표를 만들어서 제공했다. 구정 조사 결과에서 책마루 사업은 꾸준히 1, 2등을 오가며 높은 선호도를 보였다. 이때 행정은 ‘아, 주민들이 책마루를 좋아하는구나. 그렇다면 더 많이 만들어야지’가 되고, 구청장에서부터 구청 직원들, 모든 과장들(일반적으로 구청에는 50~60개의 과가 있음)이 같은 생각을 하게 된다. 거기가 시작점이 되어 문화체육과에서 만들기도 하고, 구의회 같은 데서도 추진하게 된다. 또, 구청에는 건축 관련 부서 출신의 과장이 대여섯 명 있기 마련인데, 그들이 해당 지역에 새 건물의 기부채납이나 공공기여 부분에 책마루를 주문할 수도 있다. 이렇듯 주민의 필요로부터 시작된 인기 사업이 되면 자연스럽게 곳곳으로 확산된다. 많은 정책이 그렇다.

김태영 참고로, 성동구 도서관들은 성동문화재단에서 운영하는데, 성수책마루는 성동구청 문화체육과가 발주했고, 실제 운영은 성수아트홀에서 하고 있다. 성동책마루는 좀 복잡한데, 구청 총무과가 발주했고, 카페는 사회적 기업 성동미래일자리주식회사에서 운영하고, 한편에는 성동문화재단의 사서들이 도서를 관리하고, 리셉션은 구청 민원여권과에서 사용한다. 많은 부서가 한 공간에 모여 그곳을 같이 사용, 운영한다. 그 말은 곧 부서 간 협력이 없이는 공간 운영이 불가능하다는 뜻이다. 

안지훈 또 하나 참고로, 행정 체계에서 가장 힘이 센 부서가 세 개 있는데, 예산을 다루는 기획과 인사를 다루는 총무과, 그리고 감사과다. 책마루 사업을 처음 시작할 때 일을 총무과에 맡겼다. 만약 문화체육과에 맡겼다면 이 일은 성사되지 못했을 거다. 권한 서열이 상대적으로 낮기 때문이다. 중앙 정부 조직에서도 행안부, 기재부의 파워가 가장 세다. 두 부서장이 부총리이니 당연하다. 구청 행정에서 총무과는 청사 관리와 인사 관리를 책임지고 있어서 권한이 막강하다. 그래서 총무과에서 추진하는 일에는 다른 다양한 부서와 그 하위 조직의 자원이 따라온다. 책마루 사업에는 문화체육과뿐 아니라 건축과, 토목과, 안전관리과도 붙어줘야 하는데, 그 협력을 이끌어낼 수 있는 곳이 총무과다.

김태영 공공의 유휴공간에 책마루를 넣을 때 지역에 맞춰 도서 목록을 특성화한다거나 그곳에 맞는 다른 프로그램(성수아트홀이라면 공연)을 접목한다거나 하는 식으로 지역과 공간에 어울리는 프로그램을 맞춤 기획하는 것도 중요한 부분일 것 같다.

안지훈 맞다. 성수책마루가 공연을 주제로 도서 목록을 갖췄더라면 더 좋았을 텐데, 그렇지 못한 것은 기획 단계에서 거기까지 고려하지 못했기 때문이다. 해당 사업의 실행자가 기획자로서의 역할을 충분히 해주지 못하면 형식적인 확장에 머무르게 된다.

김현준 성동구는 건축가가 의도한 디자인을 거의 다 구현할 수 있게 들어주었고, 일이 잘 진행되도록 많은 부서가 협력하고 있음을 체감할 수 있었다. 큰 행운이었다. 건축가가 얼마나 설득을 잘하느냐와 무관한 부분이 늘 존재한다. 이처럼 높은 수준의 지원과 신뢰가 필요하다.

시민의 공간

김현준 성동책마루가 처음 문을 여는 날 사람들이 몰려드는 걸 보고 묘한 기분이 들었다. 많은 시민이 이용하게 될 모습을 염두에 두고 계획하고 도면도 그렸지만 실제로 사람들이 그 공간을 우리가 상상한 대로 쓰는 풍경을 보고 무척 행복했다.

김태영 시민들이 이런 공공공간을 더 쉽게 활용하도록 하기 위해 더 고민해야 할 부분은 무엇일까?

안지훈 시민들의 일상 공간의 형태나 그 이용 방식이 그대로 공공공간에 구현되어야 한다. 예를 들면, 정부가 청년청과 전통시장 활성화 두 사업을 강조하는데, 이 둘을 연결하는 것은 치명적인 실책이 된다. 전통시장에 청년이 들어가면 둘 다 망한다. 전통시장에는 차라리 스타벅스 같은 곳이 들어가게 유도하면 활성화될 것이다. 청년 창업을 활성화하려면 강남 한가운데 공간을 제공해주면 된다. 성공하지 않을 수가 없다. 그런데 가장 열악한 둘을 한데 엮어서 뭔가 해보라는 식으로 일을 벌이는 사례가 많다. 행정이 흔히 저지르는 실수다.

공공공간의 활용 측면에서는 시민들이 평소에 어디서 무엇을 하는지 잘 살피는 것이 먼저다. 시민들이 원하는 것, 좋아하는 것을 찾아내고, 그것의 속성과 형태를 분석해서 좋은 공공공간으로 풀어내는 일을 행정이 해야 한다. 거기에 색다른 디자인이나 일상에서 쉽게 경험해 보지 못했을 요소를 추가하는 것이다. 책마루의 기획도 정확히 그것이었다. 책마루는 학생들의 스터디 카페이자 아이들의 동화책 공간이 되길 바랐다. 처음에 생각했던 것보다 훨씬 아름다운 공간으로 만들어졌지만, 중요한 것은 그 디자인보다 이 공간이 시민들이 어디선가 써봤던 익숙한 공간이라는 점이다. 다만, 이런 공공공간은 비용이 저렴하거나 무료라서 시민들에게 더 어필하게 된다.

김태영 공공건축에는 크게 두 종류가 있다. 랜드마크적인 것과 일상적인 것이다. 랜드마크적이거나 특별한 프로그램의 공공건축은 많이 만들려 하지 말고 선택과 집중을 하고 정말 완성도 높게 만들어서 훌륭한 건축 공간을 시민이 누릴 수 있도록 해야 한다. 빈부에 상관없이 모든 시민이 예술적 삶을 누릴 수 있게 하는 것이 공공의 역할이다. 한편, 복지의 모세혈관처럼 구석구석 최대한 많은 곳에 최소한의 기본 서비스를 제공하는, 생활 SOC3라고 부르는 공공건축의 영역이 있다. 책마루 사업에서도 성동책마루가 플래그십이고, 거기에서 분화되어 나간 독서당, 성수 등이 지점으로 만들어진 셈이다. 

그런데 이런 곳들이 행정을 귀속하는 정치적 변화 속에서 얼마나 오래 살아남아 본래 역할을 할 수 있을지 의구심이 드는 것도 사실이다. 이곳이 유지되는 시간 동안이라도 자기 역할을 하는 것에 만족하고, 그 이후에는 또 다른 공간으로 재탄생되는 운명을 받아들여야 하나 싶기도 하다. 공공건축 작업에 참여하는 건축가로서는 딜레마일 수밖에 없다.

안지훈 책마루는 구청장이 바뀌어도 살아남을 것이다. 시민들에게 인기가 있는 곳이고, 정치효능감 측면에서 궤도에 올랐기 때문이다. 시민들은 구청 1층을 자신들의 공간으로 인식하고 있다. 구청에서 만든 여러 공간에 시민의 공간이 있음을 이미 보고 경험했다. 그런 공동의 경험이 8년 동안 쌓이면 누구도 책마루를 쉽게 없앨 수는 없다. 다만, 지금 이 모습 그대로는 아닐지 모른다.

변형과 유지 사이에서

김태영 건축가로서는 바로 그 지점에서 질문이 생긴다. 공공공간을 만든 원래 의도를 지속하려면 어떻게 해야 할까? 이번 오픈하우스서울 프로그램 덕분에 모처럼 책마루를 방문했는데, 벌써 벽과 기둥에 다른 재료를 덧붙여 바꿔놓은 것을 발견했다. 물론 어떤 것은 다르게 교체하거나 변경해도 무관한 부분도 있다. 사용하다 보면 낡고 부서질 수 있으니 적절히 보수하고 약간 다르게 교체되는 것이야 얼마든지 환영이다. 공간도 사용하면서 당연히 변형할 수 있고, 창의적으로 사용되어야 한다. 다만, 큰 뼈대, 대표적으로 기둥 같은 건축 요소는 원래대로 유지되어야 한다. 건축가로서 그런 부분이 함부로 변형되는 것은 용납하기 힘들다. 공공건축에서 건축가의 설계 의도라는 것은 건축가 개인의 만족이나 자아발현 같은 것이 아니다. 공공을 위해서 최선으로 제안된 것인데, 그것이 순환 보직의 행정 체계 속에서 제대로 유지되지 않는 것은 심각한 문제다.

장수정 성동구청에서도 책마루의 최초 기획단, 총무과 계장, 건축과 팀장들이 원래 보직에 있는 동안에는 사용 중에 뭔가를 바꾸거나 추가할 때 건축가와 상의를 했다. 문제는 그들이 떠난 다음이다.

안지훈 앞서 책마루는 유지되겠지만, 그 형태 그대로는 아닐 것이라고 한 것이 바로 이 이유 때문이다. 그것이 우리 공공 행정의 한계다.

김현준 한 가지 의견을 보태자면, 책마루 같은 리모델링 사업을 공공에서 추진할 때 지금보다 조금만 더 세심하게 기획하고, 조금만 더 현실적으로 예산(이미 신축에 비해 훨씬 경제적이다)을 배정한다면 훨씬 더 좋은 공간을 만들 수 있다. 나도 이번 책마루 작업을 하고 나서 공공 프로젝트에 대한 생각이 바뀌었다. 이 정도로 세심하게 공간을 기획하고 설계하는 일은 최초 공공건축 건립(신축) 단계에서 하기란 쉽지 않다. 건립 사업만도 너무 어렵고 힘든 일이기 때문이다. 이런 일은 별도로 기획되고 추진되어야 한다. 건물 짓는 예산의 1/10만 써도 시민들에게 환영받는 공공공간을 만들 수 있다.

이번에 책마루를 사용하는 어르신들을 만난 적이 있는데, 이곳이 저녁 9시까지 문을 열고, 주말에도 운영해서 너무 좋다고 했다. 이런 장소가 될 거라고는 상상도 못 했다고 했다. 나는 요즘 종종 다른 공공공간을 방문할 때면 더 좋게 운영될 수 있을 법한 곳이 눈에 들어온다. 이번 일과 경험을 통해 공공이 시민에게 혜택을 제공할 수 있는 가능성을 봤다.

예산이 없다?

김태영 운영에 대해서 다른 관점에서 짚어볼 부분도 있다. 책마루 인기가 높아지면서 운영 시간이 연장되고 주말 운영도 시작되었지만, 공간 운영의 인건비가 거기에 따라가지 못한다. 그러다 보니 구청 직원들이 돌아가며 연장된 운영 시간을 커버한다는 이야기를 들었다. 과연 그것이 좋은 일일까, 공공사업은 공짜가 아니라 시민의 세금으로 운영된다는 사실을 간과하는 것은 아닐까, 공간 운영에 참여하는 공무원 개인의 헌신을 너무 당연시하는 것을 아닐까 등의 고민이 들었다.

안지훈 지금은 별도 인력을 충원해서 운영하고 있다. 모두 예산 편성을 어떻게 하느냐에 관한 것인데, 내가 어딜 가나 항상 이야기하는 것이 ‘예산이 없다’는 말은 다 거짓말이라는 것이다. 국가나 정부의 예산 운영은 가정이나 회사 운영과 완전히 다르다. 개인은 매달 300만 원을 벌어서 350만 원을 쓰면 계속 50만 원씩 적자가 쌓이니 힘든 게 당연하다. 개인은 그 돈을 벌기 위해 한 달을 꼬박 일하고, 더 벌려면 더 일해야 한다. 국가는 그렇지 않다. 국가는 가만히 있어도 해마다 500조, 600조 원의 돈이 채워진다. 중요한 것은 그 돈을 어디에 어떻게 쓰느냐다. ‘예산이 없다’는 말의 뜻은 ‘우리는 그것을 중요하게 생각하지 않는다’는 뜻이다. 예를 들어, 안전관리 예산을 줄였다는 것은 안전을 중요하게 생각하지 않는다는 것과 같은 뜻이다. 만약 어떤 행정가나 정치인이 예산이 없어서 어떻다고 말하면 그렇게 바꿔 들으면 된다. 중요하게 생각하는 만큼 예산을 쓰게 된다.

성동책마루에 쓰인 누적 예산은 20억 원 정도다. 성동구의 연 예산이 6500억 원 정도다. 그중 20억이면 큰돈이 아니다. 공간 운영을 위한 1인 인건비는 넉넉히 책정해도 연 4천만 원 정도다. 어떤 구청이든 그 돈이 없다는 건 말이 안 된다. (거짓말이다.)

그리고 방금 이야기처럼, 어떤 사람은 누가 일하든 상관없이 자신의 편의를 봐주는 사람이 있기를 바랄 테고, 또 누군가는 구청 직원이 그렇게 주말 밤낮으로 애써가며 공간을 운영하는 것은 불편하다고 할 것이다. 그들은 각자의 주장을 할 수 있고, 해야 한다. 후자의 입장에서는 구청에 인력 충원을 요구할 수 있다. 그런데 구청이 돈이 없어서 그렇게 못 한다고 답한다면, ‘아, 이 문제를 중요하게 생각하지 않는구나’로 이해하고 반박하면 된다. 오늘 주제에 맞는 이야기인지는 모르겠지만, 이것이 예산에 대한 내 지론이다.

김태영 감사하다. 이 말씀으로 오늘 자리를 마무리하면 될 것 같다.

원고화 및 편집 김상호

성동구 책마루 프로젝트

분량13,240자 / 26분 / 도판 9장

발행일2023년 9월 11일

유형좌담

『건축신문』 웹사이트 공개된 모든 텍스트는 발췌, 인용, 참조, 링크 등 모든 방식으로 자유롭게 활용 및 사용할 수 있습니다. 다만, 원문의 출처 및 저자(필자) 정보는 반드시 밝혀 표기해야 합니다.

『건축신문』 웹사이트 공개된 이미지의 복제, 전송, 배포 등 모든 경우의 재사용을 위해서는 반드시 원 저작자의 허락을 받아야 합니다.

목록으로