캐슬 오브 스카이워커스 (2018년 수상작)
황두진
분량2,757자 / 6분 / 도판 24장
발행일2022년 1월 20일
유형작업설명

심사평
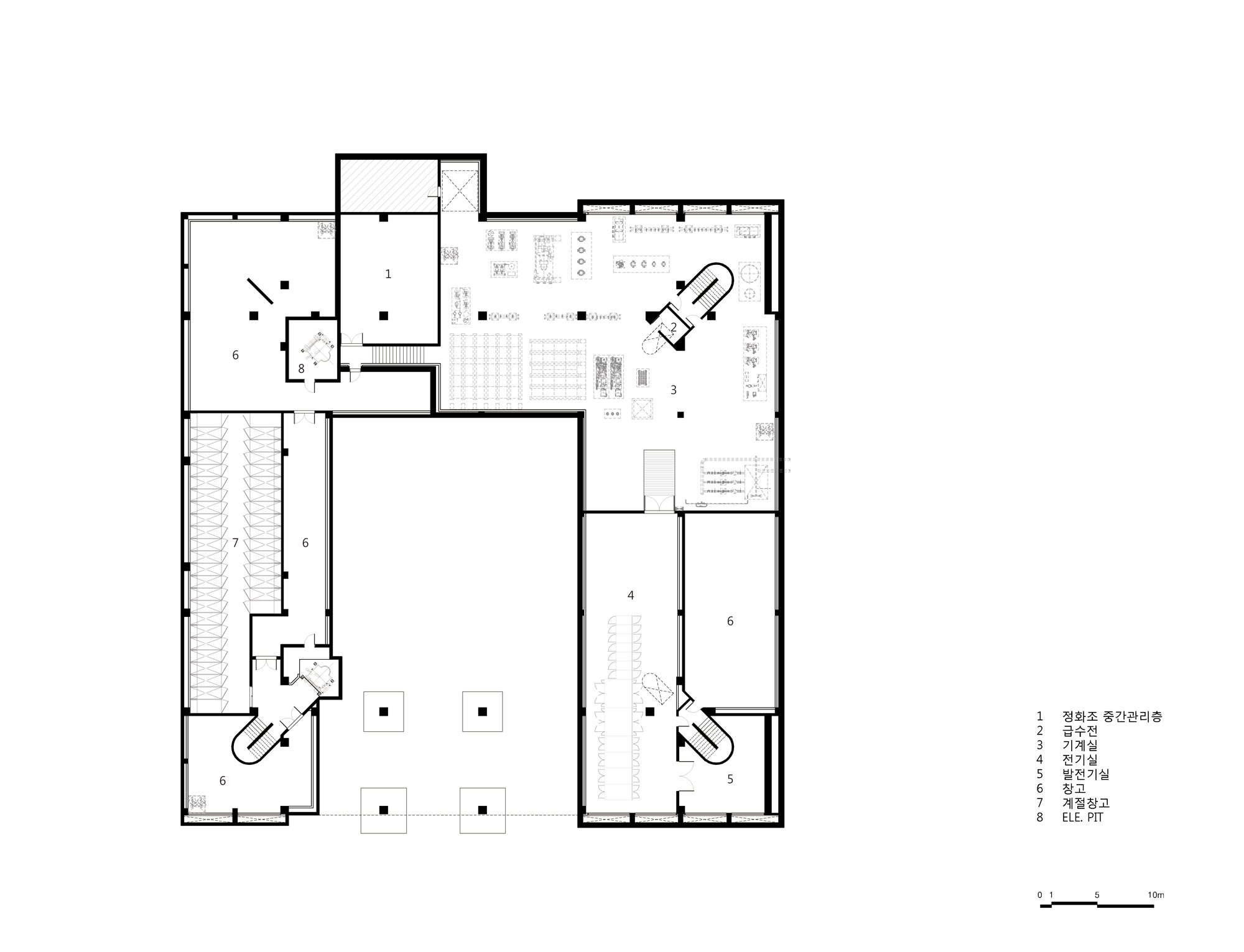
황두진의 캐슬 오브 스카이워커스는 몇 가지 점에서 의미 있는 성과를 거두었다고 평가된다. 심사위원단은 이 건물이 배구장을 중심으로 선수단 숙소와 러닝 트랙이라는 복잡한 기능들을 함께 집어넣으면서도, 체육관의 구조적 문제들을 비교적 일관되고 명확하게 처리한 점을 높이 평가했다. 또한 건축가가 설계과정에서 빛과 실내공간의 관계를 많이 고려했고, 그 점은 김종성의 역도 경기장과의 연관성을 일정 부분 보여준 점도 인식했다. 건축가는 자연광을 최대한 실내로 받아들이기 위해, 건물 중앙에 천창을 설치했고, 지붕 구조를 싱글 레이어 구조로 처리했으며, 설비 시설들을 모두 체육관의 네 모서리로 배치했다. 또한 체육관 한 면에 대규모 철제 아치로 처리하여, 그 하단부의 벽체 기둥들을 없앴고, 이를 통해 시각적 투명성을 확보하려 했다. 심사위원들은 이 같은 건축가의 시도를 높이 평가하며, 황두진의 캐슬 오브 스카이워커스를 수상작으로 선정하게 되었다.
심사위원
- 이범재(심사위원장, 단국대학교)
- 곽재환(건축그룹 칸건축사사무소)
- 양승숙(수건축사사무소)
- 박흥균(호서대학교)
- 정인하(한양대학교)
캐슬 오브 스카이워커스
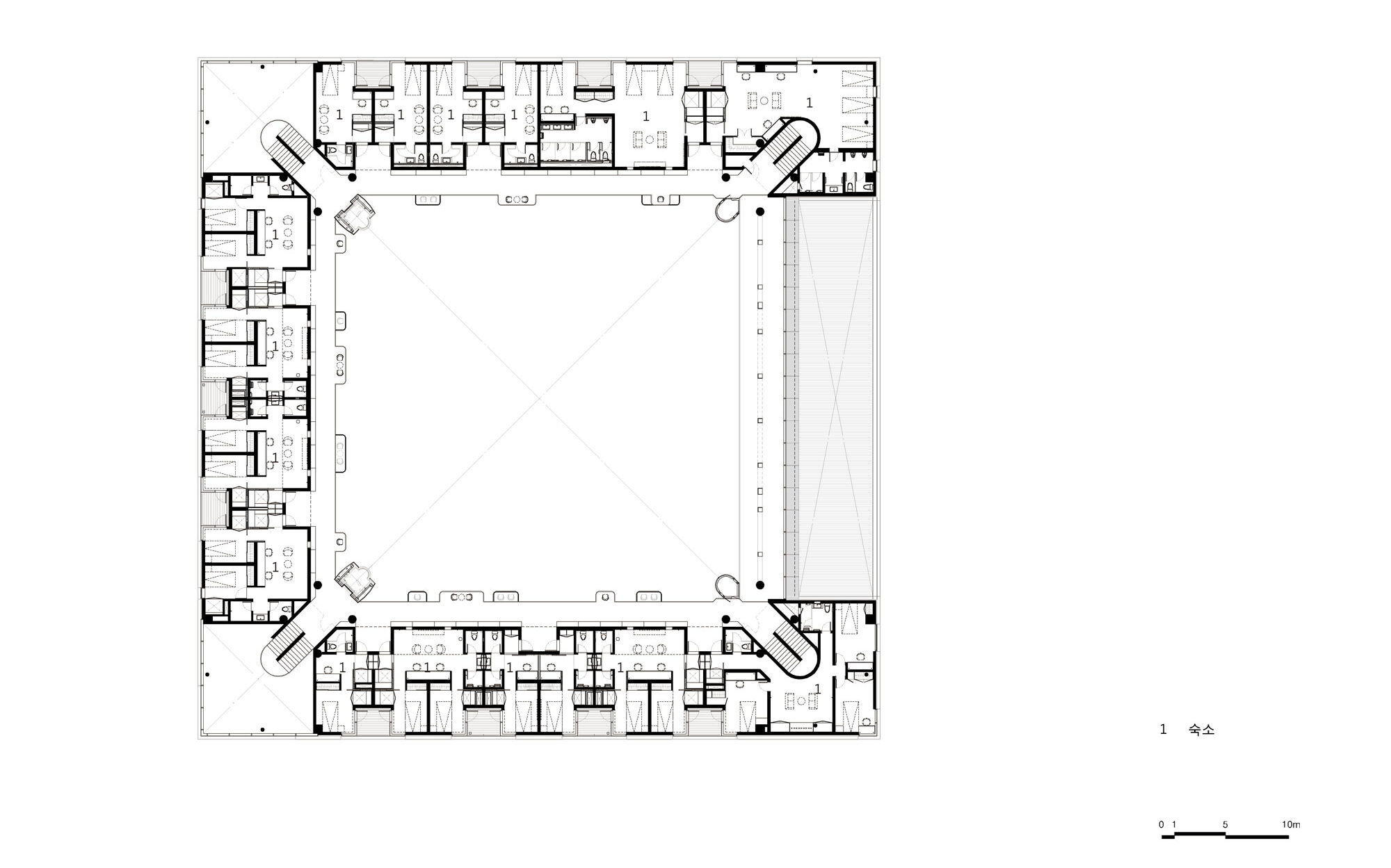
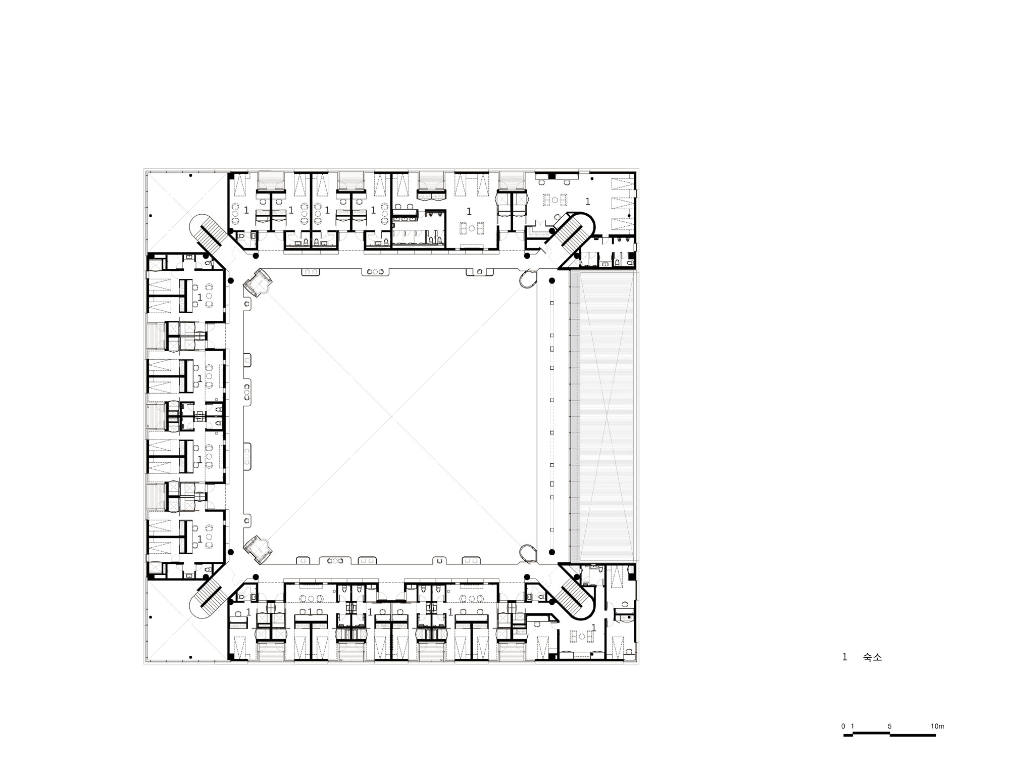
캐슬 오브 스카이워커스는 프로 배구 클럽 스카이워커스를 위한 복합 훈련시설 및 숙소다. 스카이워커스는 프로 배구 원년의 절대 강자였으나 그 이후 한 동안 우승과 거리가 멀어진 상태였다. 우승을 향한 구단의 열망을 담아 연고지인 천안에 새로운 시설을 건축하게 되었다.
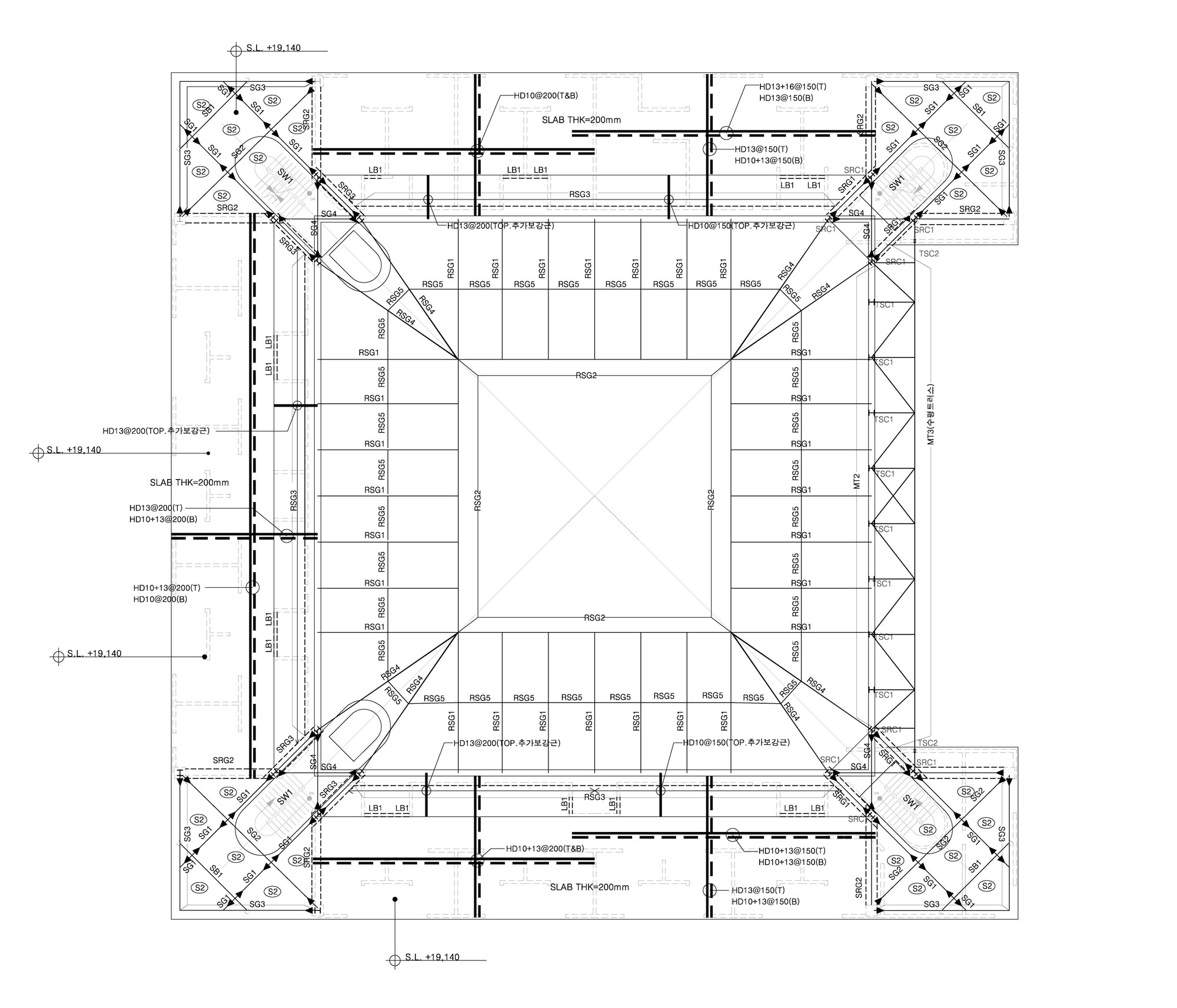
건물 내의 모든 공간은 기본적으로 사각형, 원, 대각선이 조우하는 ‘중첩된 기하학’ 속에서 만들어졌다. 이 질서의 중심에 배구 코트가 있고 그 상부를 곡면 지붕이 덮고 있다. 구조 엔지니어 황경주와의 협업을 통해 한 변의 길이 36미터, 대각선 방향으로는 47미터에 달하는 거대한 지붕을 트러스 없이 해결하는 싱글 레이어 구조의 지붕을 만들었다.
건물의 네 모서리는 정확하게 동서남북을 가리키고 있어 4면 모두 일 년 내내 충분한 채광이 가능하다. 기능성 외피인 알루미늄 익스팬디드 메탈은 여름의 높은 태양광은 걸러내고 겨울의 낮은 태양광은 실내로 유입한다. 높은 공극률을 가진 이 외장재는 날씨, 태양의 방향, 그리고 관찰자의 시점에 따라 끊임없이 변화하는 섬세하고 다양한 미학을 만들어낸다. 비행기 격납고를 연상케 하는 건물 남동면의 거대한 슬라이딩 벽은 자연 환기를 극대화하기 위한 공극률 밸브의 성격을 갖는다.
이 건물은 ‘매 순간 서로가 서로를 발견하도록’ 설계되었다. 각 공간은 서로 입체적으로 연결되어 기대하지 않았던 곳에서 시선이 교차한다. 이러한 공간적 경험을 통해 선수들은 물론 구단 직원, 조리사, 환경미화원에 이르기까지 모두가 한 팀이라는 공감대를 형성할 수 있다. 본관과 분리된 별관의 곡선은 주변 지형과 연속되어 있으며, 치열한 훈련을 이겨내야 하는 선수들의 오락과 휴식을 위한 휴게 공간이다.
캐슬 오브 스카이워커스는 황두진이 그의 스승인 김종성의 올림픽 역도경기장에서 얻은 명쾌한 구조적 표현과 복합적 단일 공간에 대한 영감을 바탕으로 만들어낸 결과물이기도 하다.



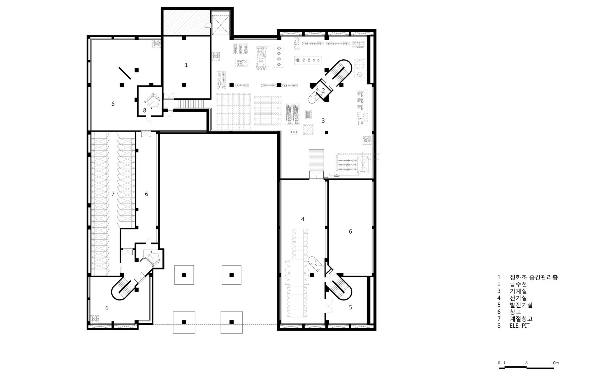
캐슬 오브 스카이워커스는 배구장을 중심으로 주변부에 프로그램을 배치했으며, 코너부 네 곳에 설비를 집중하였다.

구조 엔지니어 황경주와의 협업을 통해 한 변의 길이 36미터, 대각선 방향으로는 47미터에 달하는 거대한 지붕을 트러스 없이 해결하는 싱글 레이어 구조의 지붕을 만들었다.







건축 개요
- 위치: 충청남도 천안시 직산읍 석곡리 산 41-8 외 2필지
- 발주: 현대캐피탈(대표이사 정태영)
- 설계 및 감리: (주)황두진건축사사무소(총괄 – 황두진 / 프로젝트 매니저 – 차선주 / 실무진 – 박의진, 최정윤, 최윤희, 류종미, 손주휘, 최유일, 전소현 / 홍보 및 연락 – 홍수영)
- 지역지구: 계획관리지역, 준보전산지
- 대지면적: 21,955 m²
- 건축면적: 2,987.82 m²
- 연면적: 9,355.67 m²
- 규모: 지하 1층, 지상 4층
- 최고높이: 25.4m
- 구조: 철골철근콘크리트조, 철근콘크리트조, 철골조
- 외부마감: 알루미늄 익스팬디드 메탈
- 구조설계: 황경주(G&H Design Workshop), (주)팬구조엔지니어링
- 조경설계: 오피스박김 – 박윤진, 김정윤
- 기계설계: 보우기술공사
- 전기설계: 세진전기연구소
- 시공감리: 한미글로벌
- 시공: 현대엠코(건축), 다원ID&C/계선(인테리어), 랜드테크(조경)
- 모형: 김명협, 김덕환, 임지혜
- 설계기간: 2011.5 – 2012.5
- 공사기간: 2012.6 – 2013.6
- 준공년월: 2013.6
황두진
황두진은 서울대학교 학부 및 대학원을 마친 후 서울건축 근무 중 국비유학생으로 예일대학교 건축대학원에 진학했다. 재미 건축가 김태수의 미국 및 서울 사무소를 거쳐 2000년 황두진건축사사무소를 창설했다.
열린책들, 가회헌, 춘원당 등 서울 구도심 프로젝트, 무무헌에서 자적당으로 이어지는 한옥 프로젝트, 웨스트빌리지에서 무카스 사옥을 아우르는 무지개떡 프로젝트, 다수의 제주도 프로젝트 등 명확하게 구별되는 계보의 건축작업을 수행해왔다.『한옥이 돌아왔다』, 『무지개떡 건축』, 『다공성-구축술-시스템』 등 7권의 저서를 출판한 작가이기도 하다. 유네스코 아시아-태평양 문화유산상, 올해의 한옥 대상, 서울시건축상, 김종성건축상, 한국건축역사학회 작품상 등을 수상했다.
캐슬 오브 스카이워커스 (2018년 수상작)
분량2,757자 / 6분 / 도판 24장
발행일2022년 1월 20일
유형작업설명
『건축신문』 웹사이트 공개된 모든 텍스트는 발췌, 인용, 참조, 링크 등 모든 방식으로 자유롭게 활용 및 사용할 수 있습니다. 다만, 원문의 출처 및 저자(필자) 정보는 반드시 밝혀 표기해야 합니다.
『건축신문』 웹사이트 공개된 이미지의 복제, 전송, 배포 등 모든 경우의 재사용을 위해서는 반드시 원 저작자의 허락을 받아야 합니다.







