탄허대종사 기념박물관 (2010년 수상작)
이성관
분량3,285자 / 6분 / 도판 17장
발행일2022년 1월 20일
유형작업설명

심사평
탄허대종사 기념박물관은 전통사찰 건축공간을 현대건축으로 재해석 해내는 시도로서 매우 의미 있는 해결 방법을 보여주었다. 수평적으로 연계되는 전통사찰의 내ㆍ외부 공간들을 입체화하여 단일 건물 속에서 다층의 집중적 공간으로 재해석했다. 건축가는 전통양식과 공간의 직설적인 재현보다 현대건축의 틀 안에서 은유와 상징을 통한 전통건축의 체험을 유도하였고, 이를 놀라운 집중력과 테크놀로지의 성취로써 근래 우리 건축에서 보기 드물게 완숙한 건축으로 완성했다.
공간적 위계와 공간의 상호 관계, 가변성, 확장성 등을 고려한 공간의 구성에 걸맞은 재료 사용, 디테일에 이르기까지 상호 연관성과 일치를 보이고 있다. 중정의 수공간은 시각적으로 반사 효과를 증대시킬 수 있도록 수면의 높이를 조절하면서 사려 깊게 디자인되어, 참선과 강연의 기능을 수행하는 주공간인 강당의 내부공간에 중정과 주변 녹지의 풍광을 반사하고 수공간의 수면을 따라 외부로 확장되게 함으로써 기념박물관의 공간적 클라이맥스를 만들어 내고 있다.
강당의 공간구성은 특별히 주목을 끄는데, 전통사찰공간이 요구하는 폐쇄와 개방이 가능한 독립된 공간이 되는 데서 멈추지 않고, 공간 안의 공간으로 중층의 불당을 구성하는 창의적 재해석으로 인하여 두 공간이 상호 교감하는 공간적 연계를 만들어 내고 있다. 공간의 확장과 가변성은 벽과 창호의 다의적이고 다중적으로 사용할 수 있도록 섬세하게 고려된 테크놀로지와 일치된 디테일링으로 성취해내고 있다.
탄허대종사 기념박물관에서 보여주고 있는 건축가 이성관의 건축적 성과는 “테크놀로지의 완벽한 성취”라고 인정하기에는 거리가 있으나, 현재의 건축 상황에서 김종성건축상이 지향하는 건축을 향한 작품으로 손색이 없는 수작이라고 판단된다. 첫 수상작품은 새롭게 제정된 건축상에 대한 인식을 제고하고 건축상의 앞으로의 운영에 지대한 영향을 주는데, 이러한 관점에서 이성관의 탄허대종사 기념박물관 준공은 시의 적절하였다.
심사위원
- 강철구(심사위원장, 종합건축사사무소 동우건축)
- 한종률(삼우종합건축사사무소)
- 정만영(서울산업대학교)
- 김성대(서울건축)
- 박흥균(호서대학교)
탄허대종사 기념박물관
과정적 공간으로서의 건축적 산책
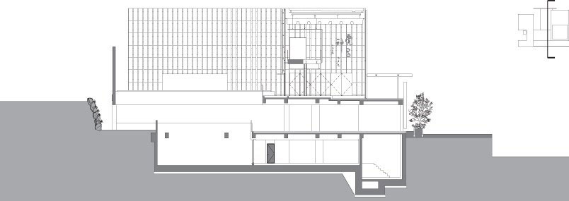
부지에 바로 인접한 근린생활시설 같은 일상적 공간과 직접적으로 맞닿은 지상 1층은 필로티로 처리하여 주차장으로 계획하였다. 지상 2층에 위치한 메인 층으로 접근하기 위한 주진입로는 일상적 영역과 비일상적 영역을 연결하는 최초의 과정적 공간으로, 일주문을 연상케하는 캐노피와 108 열주를 통해 다른 영역으로의 전이라는 점증적인 공간적 체험을 가능케한다.
메인홀에 서면 북측으로는 시시각각 변화하는 자연을 머금은 수공간과 조우하게 되며, 그 너머로 대모산이 힐끗 보인다. 남측으로는 자신이 지나온 108 열주 너머로 저 멀리 도시적 풍경과 만나게 된다. 메인홀과 북측의 수공간은 본연의 기능 이외에 또다른 기능을 지니고 있다. 이는 모빌리티(Mobility)를 이용한 최초의 가변적 공간으로 다양한 행사시 대강당과 연계하여 하나의 커다란 공간으로 작동한다. 3층에 자리한 전시공간과 예불공간으로 연결되는 계단은 두 번째 과정적 공간으로 단순히 상하부층을 연결하는 기능적 장치가 아니라 또다른 공간으로의 전이를 암시하는 상징적 공간이다.
수공간에 면해 설치된 계단을 오르면 전시장과 마주하게 된다. 전시장은 제한된 공간 내에서의 경험을 극대화하기 위해 진입부의 좁고 길다란 공간을 지나 수직적 열주의 공간을 돌아서 넓은 메인 전시 공간에 다다르는, 세 단계에 걸친 공간적 체험을 유도하였다. 전시장 맞은 편에는 예불공간이 자리하고 있다. 방문객은 목재 루버로 위요된 브릿지 너머 천창에서 은은하게 스며드는 자연광 아래 놓여 있는 석불을 바라보며 진입하게 된다. 이것이 바로 세 번째의 과정적 공간에 해당된다. 이 예불공간은 커다란 직사각형의 대강당 볼륨 안에 또 하나의 정방형의 볼륨으로 떠 있게 된다. ‘공간 안의 공간’으로 이동하기 위한 두 번째 가변적 공간이며 대강당과 하나의 공간으로 연결되어 상호 교감하는 선교일체의 공간으로 작동한다.
디자인 관점
전통의 재해석: 은유와 상징으로서의 공간
- 수평적으로 펼쳐진 공간들을 압축, 입체화하여 다층의 집중적 공간으로 전개
- 경사진 진입로와 함께 일종의 여정으로서, 입문의 의미를 지닌 108 열주의 길
- 자연광과 전통적인 재료를 활용한 수직적 형태의 닷집과 처마의 현대적 해석
- 전통사찰에서 일련의 과정적 공간들이 겹과 층으로 압축되어 체험되는 공간
- 한정된 체적내에서 극대화된 선형적 공간경험이 가능한 길과 공간으로서의 건축
공간 안의 공간: 부유하는 공간
- 선교일체의 공간으로 상호 교감하는 대강당 안에 또 하나의 공간으로 떠있는 법당
가변적 공간: 공간의 전용ㆍ확장ㆍ공유
- 한정된 공간 내에서 공간의 전용과 확장을 극대화해 주어진 프로그램을 해결













건축 개요
- 위치 : 서울시 강남구 자곡동 285번지
- 지역/지구 : 도시지역, 자연녹지지역,개발제한구역
- 용도 : 문화및 집회시설(박물관)
- 대지면적 : 1,984.28㎡
- 건축면적 : 987.04㎡
- 연면적 : 1,498.58㎡
- 건폐율 : 49.74%
- 용적률 : 62.98%
- 규모 : 지상 3층,지하 1층
- 구조 : 철근철골콘크리트조
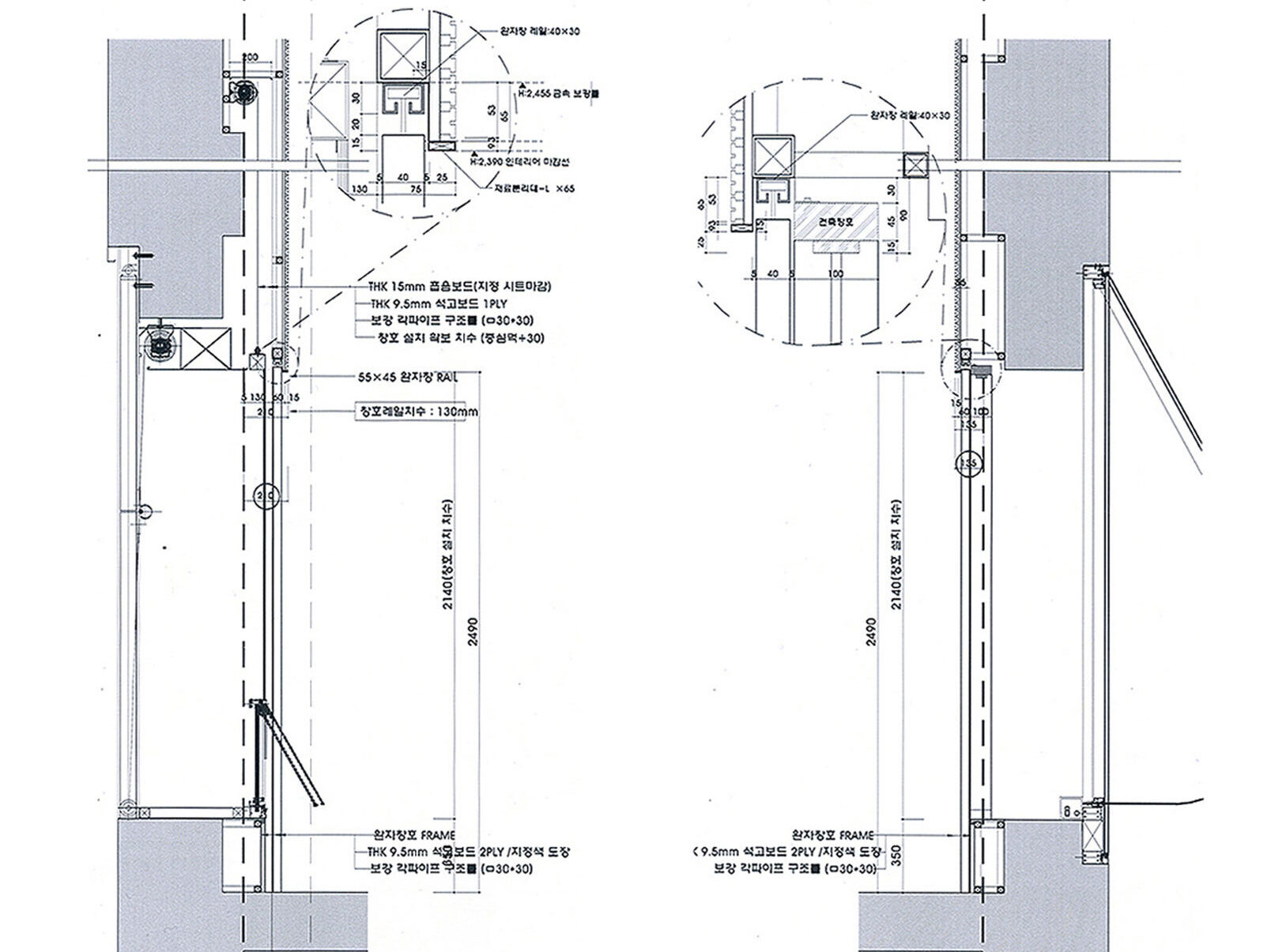
- 외부마감 : 40mm 포천석 골다듬 및 물갈기,적삼목. 12mm 실크스크린 유리
- 내부마감 : 구로강판, 스기목, 마천석 버너, 30mm 포천석 버너
- 사진: 이성관
이성관
이성관은 서울대학교 건축학과를 졸업, 동 대학원에서 석사학위를 취득한 뒤 정림건축에서 실무를 익힌 후 도미, 컬럼비아대학교 건축과 대학원을 졸업하고 뉴욕 HOK에서 수석디자이너로 다년간 근무, 귀국 후 1989년 ㈜건축사사무소 한울건축을 설립했다. 그해 용산 전쟁기념관 설계공모에 당선, 이후 국내 수많은 건축상을 수상하였다. 특히 2008, 2009, 2010년 한국 건축문화대상 대통령상을 3년 연속 수상했다.
건축가협회 부회장을 역임한 바 있고 2014년 건축의 날 대통령상 수상했고, 2017년 올해의 건축가로 선정되었다. 2019년 대한민국 건축사대회 조직위원장, 2020년 대전광역시 초대 총괄건축가로 위촉되었다.
대표작품으로는 용산 전쟁기념관, 데이콤 강남사옥, 거여3단지아파트, 수입777, 반포577, 숭실대학교 조만식기념관, 엘타워, 탄허대종사 기념박물관, 여초서예관, 여주박물관, 서울대 유회진학술기념관 등이 있다.
탄허대종사 기념박물관 (2010년 수상작)
분량3,285자 / 6분 / 도판 17장
발행일2022년 1월 20일
유형작업설명
『건축신문』 웹사이트 공개된 모든 텍스트는 발췌, 인용, 참조, 링크 등 모든 방식으로 자유롭게 활용 및 사용할 수 있습니다. 다만, 원문의 출처 및 저자(필자) 정보는 반드시 밝혀 표기해야 합니다.
『건축신문』 웹사이트 공개된 이미지의 복제, 전송, 배포 등 모든 경우의 재사용을 위해서는 반드시 원 저작자의 허락을 받아야 합니다.

