원더 아키텍츠
임윤택
분량9,883자 / 20분 / 도판 16장
발행일2020년 2월 29일
유형인터뷰
얼마 전부터 학교에서 학생들을 가르치게 되면서 학생들에게 명시적으로나 암시적으로 강조하는 것 중 하나가 모든 형태, 모든 아이디어가 반드시 건축적으로 의미 있는 것은 아니라는 점이다. 신기한 것은 누가 가르치지 않아도 학생들 중 몇몇은, 과거에도 그랬고 현재도 크게 다르지 않게, 자신에게 익숙한 어떤 대상(가령 꽃과 같은)을 그대로 건축으로 만들려고 한다는 것이다. 시간을 초월해 이러한 모습이 반복되는 것은 아마도 인간 본성에 내재한 일반 조형의 의지와 건축적 표현 사이의 구분을 배우지 못 했기 때문일 것이다. 처음 건축을 배우는 학생에게 그 차이를 인식시키고 건축의 기초와 방향을 짚어주는 것이 선생의 역할이다. 그렇다면 일반 조형과 건축을 가르는 차이는 무엇일까. 이 쉽지만 어려운 질문은 건축가로서 나 자신에게도 항상 던지는 질문이다. 무엇이 건축을 건축으로 만드는가. 무엇이 건축적으로 의미가 있는 것인가.
스위스 건축가 피터 메클리(Peter Märkli)는 몇 차례 인터뷰1와 글2에서 자신이 건축 공부를 처음 시작했을 때 건축의 기초를 바닥에서부터 배운 경험을 특별히 강조하여 이야기한 바 있다. 초등학교에서 알파벳 A를 눕히거나 뒤집어 쓰지 않고 똑바로 세워 썼을 때 A인 것을 배우듯 건축의 문법을 배우는 시간이 필요함을 강조한다. 일례로 건축적으로 제로 상태였던 자신에게 당시 모더니즘 건축의 상징이라 할 수 있는 르코르뷔지에나 미스 반 데어 로에의 건축은 복잡해서 이해하기 너무 어려웠다는 점을 들었다. 이들의 건축을 이해하기 위해서는, 그리고 자신의 건축을 하기 위해서는 건축의 기초적인 문법을 처음부터 하나씩 배워나가는 것 말고는 방법이 없었으며, 그러고서도 자신이 처음 지은 건축은 단순한 사각형 평면을 한 초보적인 형태의 건물이었다고 한다. 그는 자신이 완벽하게 이해하지 못 한 것은 지어본 적이 없기3 때문이라고 하는데, 이 말은 온갖 건축적 이미지가 난무하는 이 시대에 건축가로서 곱씹어볼 만하다.
피터 메클리는 70세를 바라보는 나이에도 왜 여전히 건축의 기초를 강조하는 것일까. 건축의 기초(elementary) 혹은 건축의 근본 원리(fundamental principle)4라고 할 수 있는 부분들이 바로 건축을 건축이게 만드는 부분이라서가 아닐까. 모든 것의 기초와 기본 원리는 쉽게 강조되는 만큼이나 쉽게 그 중요성이 망각되곤 한다. 다 아는 기본적인 사실 같지만, 현실에서 그 기초가 얼마나 소홀히 다루어지고 있는지는 우리 건축의 현실을 둘러보는 것만으로도 충분히 알 수 있다.
3년 전 사무실 체제의 변화를 겪으며 건축하기의 방향을 다시 고민하게 되었고, 그 과정 끝에 ‘지금, 여기’에서 건축을 한다는 의미에 대해 천착하게 되었다. 길지 않은 경력 동안 몇 개에 지나지 않지만 건축물을 설계하고 완공해오면서, 결국 이 땅에서 건축을 해야 한다는 사실과 그 건축물이 이 땅의 사람들의 행위를 담아내야 한다는 사실이 어느 순간 매우 중요하게 다가왔다. 이 땅에서 지금 건축을 한다는 사실 자체가 건축가로서의 정체성으로 연결됨을 자각하는 순간이었다.
‘지금, 여기’라는 말은 당대성과 지역성의 다른 표현이다. 이 땅에 있었던 건축적 현실 위에 현재 의미 있는 건축적 논의를 더함으로써 시간적, 지역적 연속성 위에서 일종의 변주를 하는 것을 내 건축의 정체성으로 삼고 싶다는 의지 표명에 다름 아니다. 즉 결과로서의 건축이 이 땅의 건축 역사(그것이 얼마나 척박하든)와 맞닿아 있었으면 좋겠고, 이 땅에 살아온 우리의 삶(그것이 얼마나 남루하든)에 기반하고 있었으면 좋겠다. 익숙함 속에 생각할 지점과 변화의 가능성을 내포한 건축이었으면 좋겠다는 바람의 표현이다.
‘지금, 여기’의 건축에 대한 천착 혹은 바람은 우리 도시와 건축 상황을 있는 그대로 받아들이게 되는 계기가 되었다. 있는 그대로 받아들인다는 말은 주변의 특별하지 않은 일상 상황들을 그대로 건축의 현실로 받아들인다는 의미를 포함한다. 특별한 애정도 막연한 비판도 아닌, 있는 그대로 인정하는 것을 건축의 출발점 내지 기반으로 삼고자 하는 태도다. 유럽의 유구한 역사를 자랑하는 도시의 건축이나 우리 역사의 영광스러운 시대의 건축물에 비하면 혼란스럽고 척박한 현재 우리 도시의 상황이지만, 이것이 우리의 현실이고, 이 땅을 정체성 삼는 건축가들이 작업해야 하는 바탕임을 받아들이는 것이다.
이종건 교수는 역자의 글에서 “건축은 근본적으로 개별성을, 그리고 한시성을 넘어서고자 하는 욕망으로 성립한다”5고 주장했다. 건축이 개별성과 한시성을 넘어선다는 것은(말처럼 쉽지 않지만) 건축이 시공간적 제약을 넘어 보편적 가치의 지평 위에 올라섰음을 의미하는 것이다. ‘지금, 여기’의 건축과 모순적으로 들리지만, ‘지금, 여기’의 건축을 추구하면서도 지나치게 지엽적인 표현에 매몰되기보다 건축의 보편적 속성에 가까워지는 건축을 추구한다는 말이다. 이는 앞서 말한 건축의 기초와 근본 원리와 맥이 닿는 부분으로, 시대와 지역을 초월한 공통의 건축 기반을 의미한다. 건축은 문화권이나 사회, 시대를 뛰어넘어 보편적이고 근본적인 정서를 표현하는 것을 목표로 해야 한다고 믿는다. 당연히 어려운 일이지만, 이 땅에서 하는 건축이 단순히 지역적, 토속적 건축으로 평가받기 보다는 건축의 보편적 가치에 가 닿았으면 한다.
또한, 건축은 건축만의 논리로 온전히 표현되어야 하고, 이를 통해서만 평가받아야 한다고 믿는다. 건축을 하는 여러 방법론이 있겠지만, 건축에 내재된 논리가 건축가들의 논의의 중심에 가장 중요하게 놓여야 한다. 나는 그 논의 중 개인적으로 가장 중요하게 생각하는 요소들의 일부를 내 작업 속에 나열해보았을 따름이다. 새로운 이야기는 아니지만, 그렇다고 해서 중요하지 않은 이야기는 아니다. 건축가들이 건축 외적인 이야기와 논리들로 건축을 풀어나간 덕분에 건축의 저변과 대중의 인식이 확장된 듯이 보이지만, 존재론적으로 건축 내적 논리의 중요성은 희석될 수 없다.
여러 다른 이야기를 한 것 같지만, 결국 한 가지에서 분기한 이야기들이다. 건축 자체의 기본에 충실한 의미 있는 건축을 하고 싶다는 바람이다. 이는 건축의 기본 원리를 따라야 하고, 땅의 역사를 닮거나 담아야 하며, 보편적 정서를 건드릴 수 있어야 한다는, 건축 자체에 관한 이야기다. 결국 다 같은 이야기다.
글을 써놓고 보니 이루어 놓은 것은 미천한데 꿈만 거창하고 원대한 것 같아 민망하다. 이런 기회를 빌려 민망하나마 입 밖으로 발설하고 나면, 그 말에 책임을 지기 위해서라도 앞으로 더 노력하겠다는 다짐이다. 특히 건축의 내재적 자율성(autonomy)을 믿는 입장에서 외부 조건들에 좌우되지 않고 건축가로서 중심을 잡기 위한 노력으로 봐주어도 좋겠다.
원더 아키텍츠
원더 아키텍츠의 임윤택은 연세대학교 건축공학과를 졸업하고 스페이스연 등의 사무실에서 실무 경험을 쌓았다. 2011년 파트너들과 원더 아키텍츠를 설립하여 함께 운영하다가 2016년부터 단독으로 운영하며 건축적 관심사의 재정립기를 가졌다. 이후 실무 경험을 통해 얻게 된 한국적 상황에 대한 이해를 바탕으로 철저하게 실무 건축가의 입장에서 보편적이고 내재적인 건축적 의미를 재발견하고 표현하는 데 관심을 두고 관련 리서치와 설계를 진행해왔고, 최근 완공한 소하동 주택에 이를 담아냈다. 2012년 영주시 공공건축가로 활동하였고, 2019년부터 경남대학교 겸임교수로 학생들을 가르치고 있다. 2012, 2016년 실내건축가협회로부터 골든스케일디자인어워드를 2회 수상하였다. wonderarchitects.com

사무소를 연 계기: 상황에 이끌려
임윤택 사무소를 마음먹고 연 것은 아니었다. 다니던 회사가 경영이 어려워지면서 나오게 됐고, 서른다섯 무렵에 개소했다. 생각했던 시점보다 너무 일찍 닥친 일이라 반년을 정말 아무것도 하지 못하고 멍하니 보냈다. 마음을 추스르고 다시 일을 시작한 것이 2010년 말 즈음이다. 선배 사무소에서 프리랜서로 4개월 정도 일하면서 실무 감각을 되찾았고, 그 일이 끝나갈 때 마침 유학에서 돌아오는 친구와 협업을 하나 하게 되었다. 그 뒤로 일이 한두 개 이어지면서 이름을 짓고, 명함을 만들었고, 사무소가 생겼다.
파트너와는 성향이 매우 달랐다. 상호보완적인 측면도 있었지만, 전반적으로는 역할 분담이 조금 모호했다. 그럼에도 불구하고 서로 독려하면서 5년 정도 함께 일했다. 파트너가 대학교수로 임용되면서부터는 프로젝트를 각자 따로 진행하는 빈도가 늘면서 관계가 느슨해졌다. 그러다가 그가 학교에 전념하기로 하면서 사무소는 나 혼자 꾸려가게 됐다. 지금 생각해보면, 서로 다른 성향이었지만 파트너가 있던 때가 심리적 측면에서는 수주 측면에서나 한결 좋았다.
건축의 고유한 영역, 형태에 대해
박정현 발표에서 ‘건축의 형태’와 ‘순수한 건축’이라는 주제를 언급하고 나서 사례를 쭉 보여줬다. 물론 ‘형태’라는 단어가 참 막연하긴 하다. 건축 전체의 형태일 수도 있고, 건축 요소의 형태일 수도 있다. 어쨌든 내가 아는 건축사 상식으로는 ‘순수한 건축’을 말하는 건 대게 형식 논리에 집착하는 건축가 부류다. 예를 들어 콜린 로우와 같은 백색파 사람들이다. 발표에서는 국내의 수많은 도시 현상을 취합해서 설명해줬는데, ‘버내큘러’가 떠올랐다. 로버트 벤츄리나 매너리스트와 같은 전형적인 회색파 사람들이 좋아하는 거다.
형태를 한쪽으로만 생각할 필요는 전혀 없지만, 듣는 내내 이런 개념이 뒤섞여서 누군가에게는 혼란을 줄 수도 있겠다는 생각이 들었다. 한편으로는 임윤택 소장이 “선배 건축가들이 만든 엄숙하고 과묵하고 근엄 진지한 것과 다른 걸 하고 싶다”고 말한 거로 봐서 최근 한국 건축계에서 등장하는 ‘버내큘러’에 관심이 있는 건축가로 나는 이해했다. 임 소장이 생각하는 형태에 관해 조금 더 구체적으로 설명해줄 수 있나? ‘순수한 건축’에서 ‘순수하다’는 무엇을 말하는가?
임윤택 말하고자 했던 것 두 가지인데, 하나는 순수한 ‘건축의 요소’라는 의미였고, 다른 하나는 ‘순수하게 건축가만 할 수 있는 영역’이라는 의미에서 순수한 ‘건축의 영역’이라는 뜻이었다. 그리고 이 순수한(고유한) ‘건축의 요소’나 ‘건축의 영역’이 ‘건축의 형태’라고 생각하게 됐다는 이야기를 하고 싶었다. 포멀리즘이나 매너리스트(매너리스트에 관심이 많기는 하지만)가 말하는 개념과는 조금 다르게 보고 있다. 추상적, 형이상학적 측면에서 형태적 개념을 좇는 이들을 포멀리스트라고 한다면, 나는 그들과는 다른 지점에 있는 것 같다.
박정현 최근에 임 소장처럼 생각하는 건축가가 있다. 파사드 서울 언급도 있었지만, 나는 AOA건축이 떠올랐다. 동지들이 있다고 느끼나?
임윤택 유사성을 띠는 사람들이 있는 것 같다. 발표 준비 중에 우연히 AOA를 만났는데, 평상시에도 이야기를 나누다 보면 비슷한 지향을 가지고 있다는 것을 알 수 있다. 정확하게는 내가 건축적 사고의 많은 부분을 AOA에 빚졌다고 보는 것이 맞다. 그 외에도 비슷한 연령대의 관심사를 공유하는 건축가들이 몇 있는데, 다들 결과적인 형태는 조금씩 다르지만 이야기하는 바는 비슷하다.
이런 성향을 물론 ‘버내큘러’라고 뭉뚱그려 설명할 수도 있지만, 건축 작업의 토대로 삼을 수 있는, 좀더 우리 땅에 밀착된 무언가가 ‘버내큘러’라고 불리는 그 현실에 있으리라 생각하는 것이지 ‘버내큘러’ 자체를 목적으로 하는 것은 아니다.
청중A 나도 발표를 보면서 혼란스러웠지만, 마지막에 소하동 주택 작업을 보면서 정리가 됐다. 서두에 올지아티(Valerio Olgiati)를 언급하면서 ‘논 레퍼런셜(non-referential)’이란 키워드를 말하고 나서 많은 레퍼런스 모음을 보여줬다. (그 자료들은 사진집을 만들어도 좋을 만큼 인상적이었다.) 그것들은 버내큘러로 만들어진 레퍼런스들이다. 논–레퍼런셜로 시작해서 엄청나게 많은 ‘레퍼런셜’을 보여준 거다. 그 지점에서 혼란이 시작됐고, 결론이 무척 궁금해졌다.
다 듣고 생각해보니 바로 그 혼란스러움, 혹은 긴장 관계가 작업의 핵심인 것 같다. 레퍼런셜로 시작해서 논–레퍼런셜로 진행하는 과정 어딘가에 프로젝트를 놓음으로써 생기는 긴장 관계가 있다는 생각이 들었다. 그것이 가장 잘 구현된 작업이 마지막에 보여준 주택 작업이다. 최근 들어 저렇게 특이한 평면은 처음 봤다. 처음에 평면을 보고 ‘이게 어떻게 집이 되지?’ 했는데, 완성된 결과를 보니 매우 좋았고 많은 자극을 받았다.
김상호 질문을 덧붙여서 보자면, 레퍼런스를 찾는 시간대와 작업 시간대가 섞여 있다고 했다. 그렇다면 작업 후 레퍼런스를 찾은 것은 ‘그래서 내가 이랬구나’하는 깨달음인가? 아니면 ‘그런 생각이 심상에 있었고 작업하고 나서 보니 곳곳에도 많더라’ 같은 발견인가?
임윤택 반반인 것 같다. 일단 의도를 갖고 표현하긴 했다. 첫 미팅 때 건축주가 이 평면에 반한 덕분에 그 이후 모든 표현을 내 의도대로 넣을 수 있었다. 책과 자료를 계속 찾아보면서 생각을 완성해갔다. 설계를 마친 후에도 그런 사고 과정은 계속 이어졌다. 시공 과정에서 추가되기도 하고 없어지기도 했고, 다른 아이디어를 붙였다 뗐다 해보기도 했고, 비슷한 사례를 찾아보기도 하면서 생각을 계속 정리해갔다.
일례로, 전통 건축을 보다 보면 대부분 지붕의 곡선 같은 것에 관심을 갖지만, 주위를 둘러보면 지붕 자체보다는 처마만 남는다는 생각에 언젠가 처마를 차용해 봐야겠다는 막연한 생각을 했었다. 한창 설계할 시점에는 처마의 차용을 의식하지 않았는데, 이 주택에 결과적으로 나타난 처마의 형상을 보면서 그동안 머릿속에 쌓인 이미지가 결과물에 나타난 게 아닐까 하는 생각이 나중에 들었다. 그러니까 사전에 만들어진 개념과 사후에 의식적으로 만드는 개념이 뒤섞인 것이다.
김상호 마치 정신분석 같다.
임윤택 오해가 있을 것 같아 부연하자면, 올지아티의 책 『Non-Referential Architecture』를 발표에서 언급했던 이유는 이 책의 주장을 그대로 따라 논–레퍼런셜한 건축을 지향하겠다는 뜻은 아니었다. 건축의 ‘형태’적 측면에 특히 주목하여 거의 유일한 건축 생산과 판단의 척도로 제시한 저자의 주장에 공감했기 때문이었다. 건축에 있어 무엇을 우선할 것인가는 건축가마다 다르겠지만, 형태를 통해 우리 건축의 현실을 재구성하고 작업의 토대로 삼고자 하는 나의 관심사와 맞아떨어지는 지점이었다. 덧붙이자면, 역사적 배경이 강한 유럽의 맥락과 올지아티의 개인적 배경(아버지가 스위스 전통에 뿌리를 둔 건축가였다)에서 나온 일종의 반작용으로서 논–레퍼런셜 건축은 개념적으로는 매혹적이지만 우리 현실에는 전혀 맞지 않는다.
배윤경 굳이 버내큘러한 레퍼런스를 들어가면서 작업의 이유를 대야 할까? 별 이유 없이 의식의 흐름대로 만들면 안 되나? 우리가 너무 그런 식의 설명에 붙들려 있는 건 아닐까?
임윤택 이런 일종의 발굴 작업은 우리 건축 현실을 특히 형태적 측면에서 다르게 바라보려는 지극히 개인적인 생각에서 시작했지, 직접적 레퍼런스를 염두에 두고 시작한 것은 아니다. 올지아티도 자신의 ‘Autobiography Iconography’를 ‘작업의 직접적인 레퍼런스는 아니다’라고 했다. (그는 논–레퍼런셜을 말하는 사람이다.) 나도 직접적인 레퍼런스로 활용하려고 사례를 수집한 것이 아니다. 다만 그 과정을 통해 내가 예상하지 못했던 상황이 일상에서 빈번하게 반복되고 있음을 깨달았고, ‘더 이상한 걸 해볼까’ 혹은 ‘조금 비틀어서 새로운 무언가를 찾아볼까’ 같은 생각을 하게 됐다.
박정현 서양에서는 크게 나눠보면 순수주의나 형식주의 측면을 추구하는 경향 하나와 그냥 주변에 흔전만전 있는 것들에 관심을 두는 경향 하나가 있다. 포스트모더니즘도 결국 바깥에 있는 무언가를 지칭하고 있는 것이니 레퍼런셜이겠다. 마치 시계추가 왔다 갔다 하는 것처럼 레퍼런셜 쪽에 오래 있었으니 이제 논–레퍼런셜 쪽으로 가보자고 하는 때가 된 것 같다. 그런데 그 시계추가 반동해 돌아올 때까지 우리가 무엇을 했는지 조심스럽게 추측해보면, 모더니즘 건축을 해보고 싶었던 사람들이 너무 오랫동안 한국 건축 담론을 지배하고 있었던 것 같다.
최근 들어서 몇몇 건축가가 임 소장처럼 이런 데에 관심을 밝히기도 한다. 그런데 그 면면을 살펴보면 젊은 건축가 중에서도 그렇게 젊지 않은 나이대에 속하는 이들이다. ‘아주 젊은’ 건축가는 이런 데 큰 관심이 없는데, 90년대 학번들이 유독 관심을 보이는 것 같다. 왜 그럴까?
임윤택 잘은 모르겠지만, 우리 또래에게는 이런 현상 혹은 상황이 직접적인 생활 환경이었기 때문일 것 같다. 지나가다 슬쩍 쳐다보는 차원이 아니라 이런 환경에서 실제로 살았기 때문에 아파트 키드 세대와는 다르게 느끼고 생각하는 것 같다.
배윤경 또 한편으로는, 지금 40대 건축가들은 서양 교육과 사례를 보고 배웠지만, 정작 그런 작업을 할 수 없다는 좌절감이나 그것을 성취할 방법을 앞세대에게 배울 수 없음을 깨닫고 스스로 길을 찾아 나선 사람들이다.
임윤택 맞는 말이다. 우리에게 일을 의뢰하는 건축주들의 경제 상황을 고려하면 깔끔하게 떨어지는 디테일이 필요한 순수한 형태의 건축은 할 수가 없다. 우리는 다른 것을 해야 한다. 우리 앞세대 선배들은 좋은 시절에 일을 시작해서 시도라도 해볼 수 있지 않았을까 싶다.
청중A 나도 비슷한 세대이고 비슷한 환경에서 자랐다. 우리 동네도 저런 모습이었는데, 나는 저 풍경을 레퍼런스로 가져오거나 애정을 갖고 들여다보고 싶은 생각이 전혀 없다. 이렇게 다른 것을 보면, 어떤 환경에서 자라고 배웠는지가 중요한 게 아니라 그 환경을 어떻게 받아들이느냐, 즉 내면의 원동력이 중요한 것 같다. 세대론이 답은 아닌 것 같다.
지향점이 있다면?: 우리 건축 현실의 자각
임윤택 발표에서 내가 모아서 보여준 건축의 형태는 내 눈으로 바라본 우리 건축의 단편이다. 그 형태들을 모아 놓고 하고 싶은 이야기는 그것들이 표현적 의도든, 기술적 의도든, 당시에 어떤 이유가 있어서 만들어졌을 거라는 점이다. 그것이 새롭게 보이는 이유는 지금은 그런 형태를 쓰지 않기 때문이고, 엄연히 존재함에도 불구하고 누구도 그 존재를 꺼내서 이야기한 적이 없기 때문이다. 그 형태들의 배경이 바로 우리 건축 현실의 일부임에도 불구하고 교육에서도 실무에서도 깡그리 무시되어왔다.
지금은 우리의 건축 현실이라고 파악된 것이 거의 없다고 본다. 맥락도 근본도 없는 중구난방이다. 내가 배운 것도 그렇고, 했던 일도 그렇다. 그냥 하고 싶은 것을 하면서 남들이 했던 말과 비슷한 말로 포장해서 그럴싸한 건축처럼 보이게 만드는 풍토가 만연해 있다. 그래서 의식적으로 다른 이야기를 하고 싶다. 남의 이야기를 빌려서 우리 이야기를 하는 것은 유효하지 않다. 우리 현실에 근거한 이야기를 하고 싶다.
우리는 과거의 표현들에 상응하는, 지금 우리 현실에 맞는 건축적 표현을 할 수 있어야 한다. 과거의 것을 조합해서 새로운 표현으로 만드는 것도 한 가지 방법일 수 있고, 내 작업에서도 그런 요소들이 있다. 하지만 더 중요하게는 우리가 생활하고 작업하는 실제 환경을 어떤 식으로든 우리 건축 현실로 자리매김하고 싶다. 내가 어떤 현실 속에서 작업하고 있는지를 자각하고 싶은 것이다. 일단은 우리 일상에서 개인적으로 의미 있어 보이는 건축적 표현을 계속 발굴하는 일을 자발적인 과제로 삼고 있다. 그것을 내 건축에 어떻게 적용할지는 아직 모르겠지만, 우리 현실에 맞는 건축 작업을 하고 싶다. 할 수 있는 바탕을 만드는 하나의 단서는 되리라 본다.

인터뷰어 & 패널
- 김상호(정림건축문화재단 실장)
- 박정현(건축비평가 / 도서출판 마티 편집장)
- 배윤경(건축 칼럼니스트)
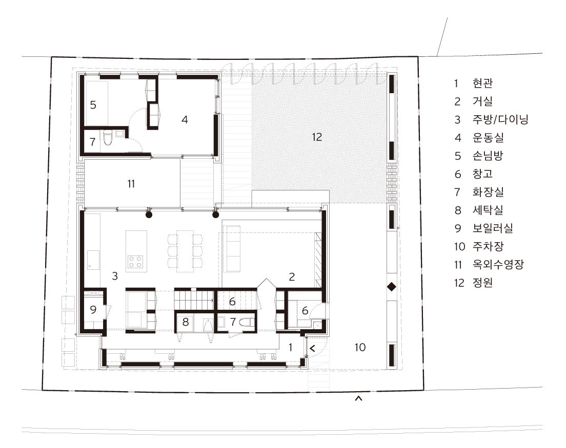
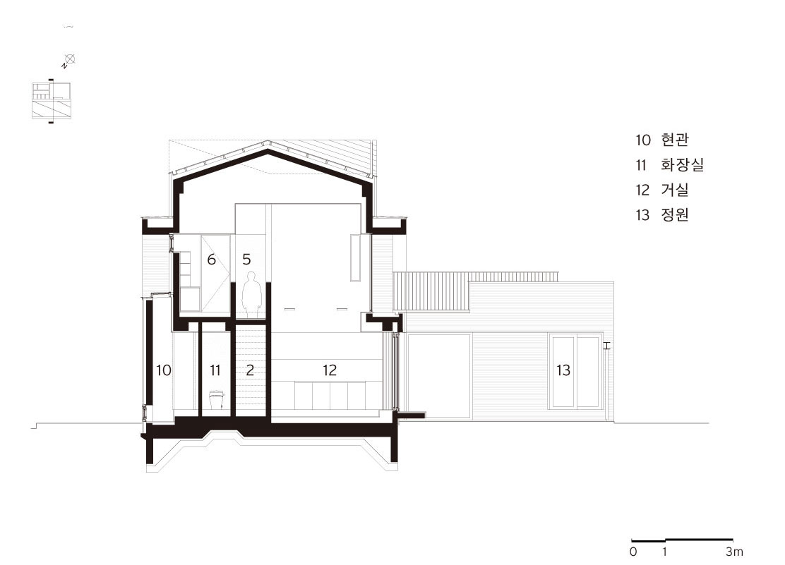
소하동 주택






건축 개요
- 위치: 경기도 광명시 소하동
- 용도지역: 제1종 전용주거지역
- 주용도: 단독주택
- 대지면적: 278.2㎡
- 건축면적: 129.51㎡
- 연면적: 190.28㎡
- 건폐율: 46.55%
- 용적률: 61.58%
- 층수: 지상 2층
- 구조: 철근콘크리트조
- 외부마감: 콘크리트벽돌, 노출콘크리트, 칼라강판
- 내부마감: 노출콘크리트, 테라조타일, 온돌마루, 친환경페인트
- 의뢰방식: 지인과의 수의계약
- 설계기간: 2017.11–2018.4
- 공사기간: 2018.8–2019.3
- 설계: 원더 아키텍츠 – 임윤택, 건축사사무소 니즈건축 – 박진희
- 구조설계: 베이스구조
- 전기·통신·기계설계: 대오엔지니어링
- 시공: 건축주 직영(공사관리 – 동아 A&C)
- 건축주: 개인
- 사진: 최진보
원더 아키텍츠
분량9,883자 / 20분 / 도판 16장
발행일2020년 2월 29일
유형인터뷰
『건축신문』 웹사이트 공개된 모든 텍스트는 발췌, 인용, 참조, 링크 등 모든 방식으로 자유롭게 활용 및 사용할 수 있습니다. 다만, 원문의 출처 및 저자(필자) 정보는 반드시 밝혀 표기해야 합니다.
『건축신문』 웹사이트 공개된 이미지의 복제, 전송, 배포 등 모든 경우의 재사용을 위해서는 반드시 원 저작자의 허락을 받아야 합니다.







