서가건축
박혜선, 오승현
분량6,413자 / 13분 / 도판 17장
발행일2020년 2월 29일
유형인터뷰
사무소에 ‘서가’라는 이름을 단지 8년째다. 인테리어와 전시, 작은 공공시설물 디자인이 주된 일이던 3년의 시간을 보냈고, 집을 짓는 서가건축이 된 지는 6년 차의 사무소다. 8년이라는 시간을 지나며 구성원의 변화가 있었고, 현재는 박혜선, 오승현이 서가를 이끌고 있다. 신입사원으로 들어와 7년 차가 된 김유빈, 다른 사무실에서 실무경력을 쌓고 입사한 정상호, 오수진, 작년에 새내기로 입사한 박나영, 이민범, 한수지와 함께 작업 중이다.
건축 작업에 앞서 협업의 가치가 존중되는 조직을 만드는 것에 큰 뜻을 두고 있다. 사람과 환경을 들여다보고 좋은 공간을 구축하기 위해서 건축가가 몸담은 환경, 조직을 바로 세우는 것은 의미가 크다. 아직은 많은 부분에 부족함이 있지만, 건축을 하는 좋은 ‘사무소’이고 싶다.
새롭고 창의적인 것보다는 보편적인 것 안에 깃든 가치를 발견하는 것에 관심이 크다. 삶, 생활은 그리 변화무쌍하지 않다. 아름답다 생각하는 가로와 도시의 요소들을 들여다보면 ‘특별한’ 것으로 만들어진 것은 아니다. 그런데도 많은 건축이 예민하지 않은 시각으로, 특이함의 논리로 주변을 채우고 있는 건 아닌가 의문이 든다. 섬세하게 생활과 관계를 들여다보고 ‘단단한 선’을 긋는 일, 서가가 지향하는 건축가로서의 태도다.
몇 채의 집을 설계했다. 그러나 여전히 집은 어렵다. 그리고 중요하다. 집이란 일상이 작동하는 기능적인 공간이자 휴식, 정주, 안식의 공간이다. 24시간의 공간이자 4계절의 공간이다. 때로는 가족의 전 재산이고, 임대일지라도 청년들의 안식처다. 집의 본래적 기능은 변하지 않았지만, 집의 유형은 다양해졌고, 이해해야 하는 영역과 폭이 넓어졌다. 잘 작동하는 모두의 집, 누군가의 집을 만들기 위해 좀더 깊숙이 집을 공부하고 있다.
서가건축
서가 건축사사무소는 도시와 건축의 지속성에 대해 고민하는 젊은 건축가들의 집단이다. ‘서가’ 는 ‘서쪽의 집’, ‘서촌의 거리’, ‘책의 집’, ‘상서로운 집’, ’느린 집’, ‘으뜸 집’, ‘머무는 집’ 등 여러 가지의 중의적 의미를 지닌다. 건축에 대한 실험적 사고를 바탕으로 커뮤니티와 네트워크 구축과 관련한 작업을 하고 있다. 나아가 사회, 도시, 환경 등에 대한 이론적인 고찰과 지속적인 질문을 통해 ‘건축’이라는 구체적인 물질로 공간과 장소를 구축해 나가고 있다. designseoga.com

앞선 실무 경험에서 얻은 것은?: 서로 다른 두 접근로
오승현 우리 둘은 설계 접근 방식이 많이 다르다. 받은 교육이 달라서 그런 것 같다. 중요시하는 설계의 지향점도 다르다. 한예종 일파의 건축 스타일이라는 것이 있고, 내가 실무를 배운 정현아, 임재용 소장님의 작업 방식은 그것과 완전히 다른 데서 오는 차이다. 도제식 교육을 받은 박 소장은 선 하나의 의미와 단어 하나의 의미에 매우 엄격하다. 반면 나는 그런 부분에서 자유롭게 작업한다. 서로 다른 배경에서 실무를 해오다가 같이 일을 시작했을 때 부딪친 점이었다. 서로 원하는 방향을 서서히 맞춰가고, 각자 좋아하는 디자인이 무엇인지도 알아갔다.
박 소장은 일단 평면이 합리적이지 않으면 다음 단계로 넘어가지 못한다. 그리고 외부의 시선보다는 내부에서의 시선, 즉 공간 경험자의 관점을 더 중요시한다. 내부공간의 디자인을 자연스럽게 외부로 이어가는, 평면이 외부 형태를 결정짓는 방식이다. 반대로 나는 땅을 보고 프로젝트에 성격을 먼저 부여하는 성향이 강하다. 외형을 먼저 만들고 내부 평면을 고민한다.
박혜선 어느 것을 더 우선순위에 놓느냐인데, 둘이 확실히 다르긴 하다. 일례로, 선을 쓰는 방식이다. 나는 최초의 선이 어디서 나오는지가 매우 중요하고, 거기서부터 논리들을 쌓아가는 식으로 작업한다. 반면 오 소장은 큰 획이나 대지로 훅 들어와서 전체를 만드는 느낌이다. 그래서 오 소장이 합류한 3년 전부터 회사가 조금씩 달라지기 시작한 것 같고, 두 사람의 성향이 섞여 설계된 건물이 이제 조금씩 완성되어 가는 시기다.
사무소를 연 계기는?: 부모님 집
박혜선 부모님이 퇴임 후 집을 설계하게 된 것이 일차적인 계기가 되었다. 당시 나는 실무 3년 차였다. 부모님 집 설계를 다른 사람에게 맡기는 건 말이 안 되는 것 같아서 다니던 사무소를 억지로 나와서 설계를 시작했는데, 돈이 부족해서 집을 짓지 않았다. (웃음) 덕분에 그때부터 주택 공부를 하면서 틈틈이 선배 건축가 일의 감리와 실시설계를 했고, 이재준 소장님(리마크프레스 대표)의 전시 프로젝트들도 함께 했다. 건물 짓는 일은 아니었지만 여러 일을 할 기회가 많아졌고, 내 이름으로 할 수 있는 인테리어 작업이 생기기 시작했다. 그렇게 프리랜서 생활을 거쳐 개인 사무소를 냈다. 때마침 그때 부모님 집도 지었다. 첫 건물이었고, 그 집을 보고 들어온 일도 생기기 시작했다. 뭔가 큰 포부를 갖고 사무소를 시작한 것이 아니라 현실에 맞는 일들을 따박따박 했다.
오승현 나는 OCA를 거쳐 디아건축에서 일하다가 3년 전에 합류했다. 독립하기 직전 시기에는 디아건축이 큰 규모의 일을 하기 시작하면서 정신적으로 힘에 부쳤지만, 그전까지는 주로 작은 프로젝트들이어서 별 스트레스 없이 일하고 있었다. 그래서 굳이 독립할 생각도 하지 않고 디아에서 오래오래 정 소장님과 같이 작업할 생각이었다. 하지만 경력이 계속 쌓이다 보니 독립해야 할 때가 찼다는 사실을 깨달았다.
한편, 대학원생 시절 한 부부 건축가의 사무소에서 인턴으로 일한 적이 있다. 두 분이 매일 싸우는 모습을 보면서 나중에 아내와는 같이 사무소를 하면 안 되겠다고 생각했다. 박 소장과 결혼할 때도 ‘우리는 나중에 독립하더라도 각자 사무소를 내는 게 좋겠다’는 얘기도 했다. 서로 격려하고 견제하는 식으로 일해야지, 같은 사무소에서 일하면 힘들 것 같았다.
박혜선 그런데 이렇게 같이 일하게 된 이유는, 어차피 퇴근 후 집에서 만나면 서로 일 이야기를 했기 때문에 앞으로도 따로 하나 같이 하나 마찬가지일 것 같았다. 사무소를 따로 했다면 그 일이 하나가 아니라 두 개로 늘어날 뿐이라는 생각이 들었고, 운영비도 두 배로 들 일이었다. 그래서 합류하게 되었다.
현재 관심사는?: 다세대다가구
박혜선 우린 둘 다 20대 자취 생활부터 지금까지 거의 모든 유형의 주거를 경험했다. 기숙사, 원룸, 투룸, 한옥, 단독주택을 거쳐 지금은 빌라에서 살고 있다. 개인적으로 빌라, 즉 다세대주택 같은 집이 좋다. 단독주택은 사실 좀 무섭기도 하고 관리할 것이 많아서 바쁘게 일하는 젊은 세대가 살기에는 불편하다. 다세대주택은 창에서 내다보이는 풍경, 길과 집의 관계, 주변 환경 등이 매력적이다. 적당한 소음도 좋다. 아파트의 층간 소음 문제는 사실 집이 너무 조용한 데서 생기는 문제다.
가장 이상적으로 생각하는 주거 형식은 단지형 빌라다. 경비실 하나에 4층 정도의 건물 몇 동으로 이루어진 공동주택이다. 이는 사는 이에게 심리적 안정감을 준다. 그런 유형의 집이 우리나라 주택에서 많은 비율을 차지하고 있는데, 제대로 잘 지어진 것은 별로 없다. 그래서 지금은 살고 싶어도 갈 만한 곳이 없다.
작업 대상으로서 다세대 다가구 주택에 관심을 두는 이유는 그런 일이 많이 들어오기도 하고, 공부하다 보니 재미가 붙어서다. 아파트와 달리 다세대다가구는 주로 50~100평 사이의 이형 필지를 갖고 있다. 그래서 평면이 다양한 유형으로 개발될 수밖에 없고, 잘못 계획하면 불안정한 집이 되기 일쑤다. 하지만 치밀하게 계획해서 잘 작동하는 집을 만들면 재미있는 집이 된다. 좋은 주거가 될 수 있는 잠재력이 있다. 예전에 두 동짜리 다세대주택을 계획한 적이 있었는데, 몇 개 필지를 연속적으로 계획할 때 저층부가 풍요롭게 변하고, 아파트 수준의 안전과 보안을 적용할 수 있었다. 그때 그 가능성을 처음 실감했다.
오승현 하지만 단지형 빌라를 의뢰받는 일은 거의 없다. 서울 시내에서 그 정도 필지를 확보하기도 어렵고, 오래된 빌라를 헐고 같은 식으로 지을 리도 만무하기 때문이다. (보통은 수익률 때문에 나홀로 아파트를 짓는다.) 서울처럼 작은 필지가 밀집되어 있고 지가가 계속 상승하는 도시에서는 자기 땅에 자기 집을 짓는 경우도 평창동 같은 곳을 제외하고는 없다. 우리한테 들어오는 상담 사례 대부분도 오래된 단독주택에 살다가 다세대다가구로 새로 지어서 본인이 맨 위층에 살려고 하는 케이스다.
박혜선 그럼에도 불구하고 다세대다가구에 관심을 갖는 이유는 건축가가 해야 할 역할이 가장 많은 건축물이기 때문이다. 사용자는 불확정적이고, 건물주는 임대수익을 욕심내고, 시공자는 싸고 빠르게 공사를 끝내서 이윤을 최대한 남기려고 하는 구도 속에서 건축가의 완급 조정 역할이 중요한 프로젝트다. 우리가 다세대다가구 건축주에게 항상 얘기하는 것은 면적을 줄여 세대 하나를 늘리는 것보다 입주자가 만족스럽게 오래 살 수 있도록 유도하는 것이 훨씬 이득이라는 점이다. 설득의 논리이지만, 실제로 집이 좋아지는 요인이다. 단독주택과 달리, 다세대다가구의 건축주는 수익률 외에는 크게 관심이 없다. 시공사도 마찬가지다. 사용성에 대해서는 아무도 신경 쓰지 않기 때문에 우리가 더 치밀하게 만들어야 한다. 주변에서 돋보이게 만들고, 내부 평면 구성도 신경을 많이 쓴다. 완공 후에 우리가 생각한 쓰임새에 맞는 사람이 입주해 산다는 소식을 들으면 뿌듯하다. 앞으로도 다세대다가구는 우리 작업에서 큰 포션을 차지할 것이다.


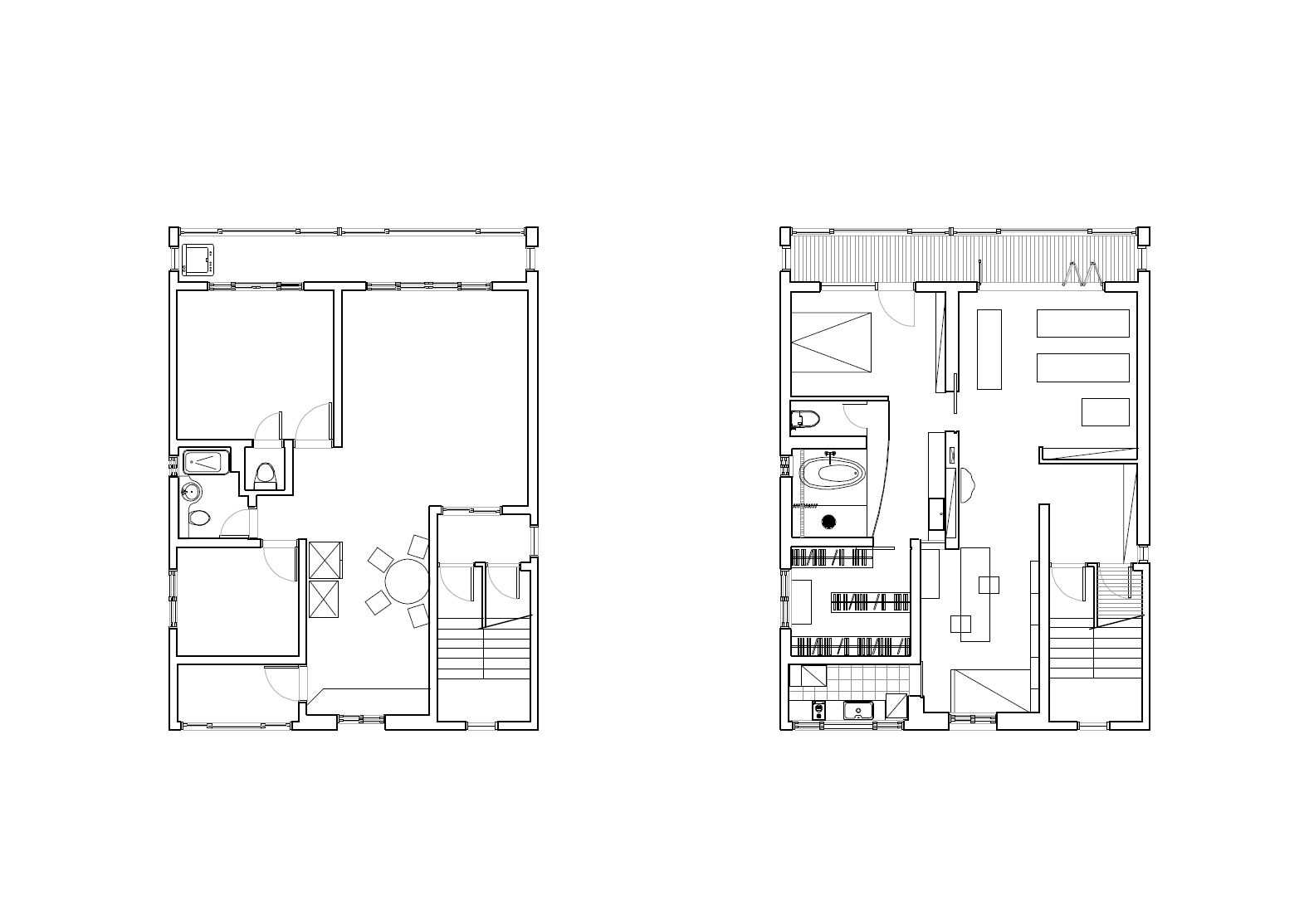
(각 왼쪽이 기존 평면, 오른쪽이 리모델링 후 평면)
구상하고 있는 조직의 모습은?: 더블 헤드, 저녁 있는 삶
박혜선 두 사람의 장단점이 명확해서 의논을 거치면 설계안이 좋아진다는 것을 분명히 알고 있다. 땅을 보러 가는 일은 항상 같이 간다. 대지에 대한 첫 아이디어를 같이 나누는 것이 좋다고 생각해서다. 그 후에 평면이 확정되는 단계에서 한 번, 건물 덩어리가 정해지는 단계에서 한 번 같이 이야기한다. 혼자 생각하는 것보다 확실히 더 탄탄해진다.
오승현 프로젝트 진행은 대부분 각자 하면서 중간 과정을 공유하는 식으로 일한다. 디자인 설정이나 평면 등 큰 방향의 리뷰를 서로 주고받는다. 혼자 너무 몰입하다 보면 놓치는 것이 생긴다. 그런 부분을 파트너가 점검해주면 놓쳤던 부분에 눈이 뜨일 때가 있다. 결국에는 ‘내 맘대로 할 거야’라고 하더라도. (웃음)
김상호 오승현 소장이 합류하면서 조직이나 운영 면에서도 전환점이 생겼을 것 같은데, 가장 많이 바뀐 점은 무엇인가?
박혜선 우선 야근이 없어졌다. 일단 야근이 없어지니 직원을 포함해 우리 모두 취미생활을 하며 저녁 시간을 보내게 됐다. 그러면서 사무실 내에 어떤 활력과 생기가 돌았다. 또 오 소장은 재료에 대한 이해도가 높다. 그래서 예전 서가건축보다 훨씬 물성에 대한 이해도가 깊어졌다고 볼 수 있다.
오승현 긍정적인 변화는 결국 이전 사무소에서의 경험에서 온 것 같다. 내가 근무했던 디아건축은 근무 시간 안에 집중해서 일하고 개인 시간을 챙기는 곳이었다. 나도 야근 없는 생활을 했다. 요즘 젊은 인재들이 영입이 안 되는 상황은 결국 선배들이 만든 나쁜 근무 문화 탓이 큰 것 같다. 도제식 문화, 저임금, 당연한 야근, 저녁 없는 삶, 이런 것들이다. 분명히 바꿀 수 있는 부분이다. 우리는 새 프로젝트에 착수할 때 프로젝트 매니저에게 먼저 이렇게 말한다: ‘프로젝트 수행 기간은 언제까지이니 그 시간을 어떻게 쓸지는 스스로 판단해라’. 그러면 직원들도 스스로 시간을 조절하는 능력을 키우게 된다. 소장의 역할은 직원에게 시간을 계산해서 알려주는 게 아니라 직원 스스로 시간을 활용하는 방법을 만들게끔 환경을 조성해 주는 것 같다.
얼마 전부터는 현상설계를 위한 근육도 키울 생각을 하고 있다. 어느 정도 나이 든 사무소가 되면 지금 우리를 찾아오는 건축주 계층이 계속 우리를 찾을 것 같지는 않다. 그때 우리가 할 수 있는 일 중 하나로 현상설계 프로젝트를 위한 기초를 다져 놓을 필요가 있다.
박혜선 더 중요한 건 우리가 편협한 시각을 갖게 되는 것에 대한 불안이다. 어떤 종류의 작업을 하든 넓은 시야가 필요하다. 개인의 단독주택이라는 것은 과연 공공건축을 모르고 해도 되는 일인가 하는 의문이 든다. 여러 가지를 살펴보면서 작업해야 좋은 것이 나올 텐데, 너무 한쪽으로 작업과 생각이 치우치면 안 되겠다는 생각이다. 그런 면에서도 현상설계가 하나의 도구가 될 수 있는 것 같다.
인터뷰어 & 패널
- 김상호(정림건축문화재단 실장)
칠월




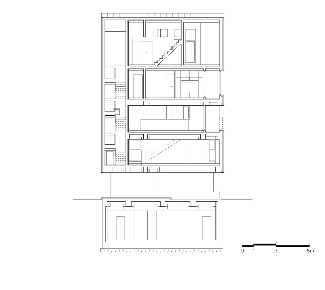
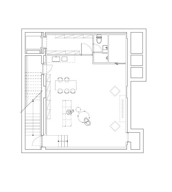
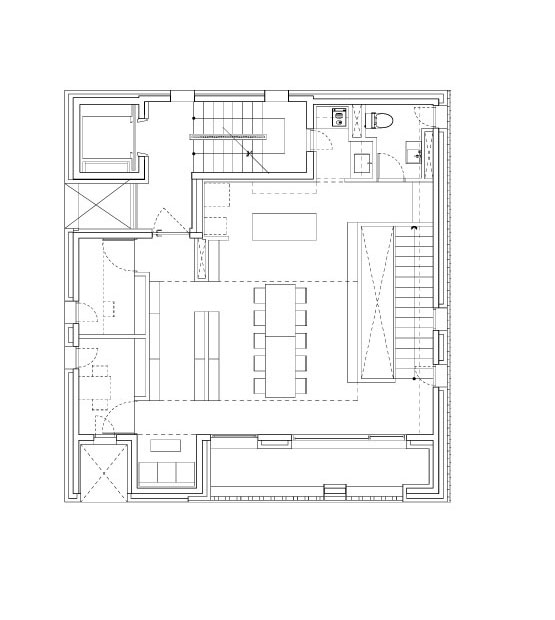
건축 개요
- 위치: 서울시 은평구 대조동 193-7
- 용도지역: 제2종 일반주거지역
- 주용도: 단독주택(다가구주택), 제2종 근린생활시설(사무소)
- 대지면적: 166.90㎡
- 건축면적: 100.08㎡
- 연면적: 414.03㎡
- 건폐율: 59.96%
- 용적률: 196.21%
- 층수: 지하 1층, 지상 5층
- 구조: 철근콘크리트조
- 마감: 치장벽돌 쌓기
- 의뢰방식: 인터넷 검색으로 방문 의뢰
- 공사비: 10억 원
- 설계기간: 2016.2–9
- 공사기간: 2016.10–2017.7
- 설계: 박혜선, 오승현, 배진희
- 구조설계: 터구조
- 전기·기계설계: 성지 ENC
- 시공: 다산건설엔지니어링
- 감리: 서가건축사사무소
- 가구제작: 가찌
- 사진: 텍스처 온 텍스처(별도 표기 외)
서가건축
분량6,413자 / 13분 / 도판 17장
발행일2020년 2월 29일
유형인터뷰
『건축신문』 웹사이트 공개된 모든 텍스트는 발췌, 인용, 참조, 링크 등 모든 방식으로 자유롭게 활용 및 사용할 수 있습니다. 다만, 원문의 출처 및 저자(필자) 정보는 반드시 밝혀 표기해야 합니다.
『건축신문』 웹사이트 공개된 이미지의 복제, 전송, 배포 등 모든 경우의 재사용을 위해서는 반드시 원 저작자의 허락을 받아야 합니다.









