구보건축
조윤희, 홍지학
분량7,576자 / 15분 / 도판 14장
발행일2019년 3월 25일
유형인터뷰
구보건축 2.0
구보건축은 2015년 12월 주택 설계를 의뢰받으면서 업무를 시작했다. 2003년에 우리 두 사람이 각각 이로재와 서울건축에서 첫 직장 생활을 시작한 지 13년 만에 자신의 아틀리에를 열었다. 어떤 조직의 회사를 만들어갈 것인지, 어떤 비전으로 운영할 것인지, 어떤 디자인의 집을 지어나갈 것인지에 이르기까지 오랜 시간 고민했지만, 뚜렷한 답을 찾지 못한 채 많은 질문을 안고 출발했다.
구보건축의 이름은 소설 「소설가 구보 씨의 일일」에서 왔다. 소설 속 주인공 구보는 도시를 배회하며 평범한 소시민의 시선으로 도시를 구경하고 경험한다. 자본주의에 길든 우리에게는 언뜻 하릴없는 잉여 인간 같아 보이기도 한다. 2019년 지금 한국 사회는 자기계발, 생계유지 등으로 빡빡하게 짜여 조금의 틈도 허락하지 않는다. 기술과 자본이 과잉된 시대에 적절함과 합리에 기반한 작업을 추구하며, 생태, 연대, 느림, 인간이라는 키워드를 존중하는 회사를 만들고 싶다. 건축설계는 노동집약적 성격이 강해서 야근과 박봉이 만연한 직종이다. 지속 가능한 업무 환경을 조성하려면 어떻게 해야 하는지 고민했고, 지금도 주요한 숙제 중 하나다.
빨리 가다가 지쳐서 포기하지 말고, 즐겁게, 천천히, 오래, 꾸준하게 일하자는 마음으로 시작했다. 개소 후 3년 중 1년은 임산부로, 1년은 육아와 일을 병행하며 보냈다. 최선을 다했지만, 아이가 없을 때 보다 일의 밀도가 떨어지는 것을 인정하고, 이전과 다르게 새로운 방식으로 일하는 것을 배우는 기간이었다. 그러는 사이 한국 건축사를 취득했고, 한 해 3–4개의 공모전을 제출했고, 동시에 도시건축 관련 연구용역, 인테리어 설계 등의 작은 프로젝트도 했다. 아직 정식으로 완공된 건물은 보지 못한, 소위 ‘등단’을 기다리는 건축가다.
포트폴리오 없는 신인 건축가에게 일이 제 발로 굴러들어 올 리는 없다. 현상설계에 응모하거나 드는 품에 비해 용역비가 턱없이 작은 일을 쫓아다닐 수밖에 없었다. 그렇게 발을 들인 공공건축 발주 시스템은 한국 건축계 초보에게는 통과하기 힘든 장벽이었다. 꿈꾸고 상상해온 이미지와는 다르게 현장 여건, 행정절차, 관련 당사자들의 의견 충돌 등으로 인해 결과물은 설계자의 의도를 알아보기 힘들 지경으로 너덜너덜하게 변형되었다. 거기엔 그간의 고통스러운 시간이 묻어난다. 건축가로서 마땅히 갖춰야 할 전문성에 대한 회의, 우리 능력에 대한 반성, 한국 건축 산업 시스템에 대한 불만으로 가득했다. 때로 주위를 둘러보면 좋은 설계를 하는 능력 있는 건축가가 많다. 똑같은 시스템과 환경 위에서도 좋은 결과물을 만들어내는 사람들을 보며 우리 작업을 되돌아봤다. 우리가 믿는 바를 꾸준하게 작업으로 이어가는 것이 지금 우리가 할 수 있는 최선이라 생각하면서 지친 마음을 다잡는다.
구보의 시작을 함께했던 원년 멤버 두 사람이 퇴사를 앞두고 있다. 보내는 사람의 마음은 아쉽기만 하고 오래도록 함께하고 싶지만, 새로운 기회를 경험하기 위해 떠나는 직원들의 앞길에 좋은 일들이 기다리고 있기를 바라며, 즐겁지만 고됐던 구보건축 1.0을 만들어 준 데 감사의 마음을 보낸다.
올겨울은 구보건축이 새로운 단계로 옮겨가는 중요한 계절이 될 것 같다. 겨울이 지나면 지난 몇 년간 악전고투 속에 그려왔던 도면들이 하나, 둘 실체가 되어 땅 위에 서게 된다. 그러면서 구보건축 2.0을 맞이하게 된다. 다음 스테이지를 준비하며 새로운 구보의 건축가를 만나기 위한 인터뷰를 겨우내 신중하게 진행했다. 설레고 긴장되는 과정이었다. 지난 3년의 시간과 경험이 사라지지 않고 어딘가에 내실로 쌓여있으리라 생각한다. 더 흥미로운 일들이 기다리고 있을 2019년의 구보건축 2.0을 즐거운 마음으로 마주하고 싶다.
구보건축
2015년 홍지학, 조윤희가 설립한 도시 연구 및 건축 설계 스튜디오이다. 기술과 자본이 과잉된 시대에 적절함과 합리에 기반한 작업을 추구하며, 생태, 연대, 느림, 인간이라는 키워드를 존중하며 일상의 가치를 추구한다. 조윤희는 서울대학교와 MIT 건축대학원을 졸업하고 이로재와 Howeler+Yoon Architecture(보스턴)에서 실무경험을 쌓았다. 2016년부터 서울시 공공건축가로 활동 중이다. 홍지학은 서울건축, 해안건축, CAU(Center for Advanced Urbanism, 보스턴)에서 연구와 실무경험을 쌓았다. MIT에서 Architectural Urbanism을 전공했으며, 서울대학교에서 건축역사이론으로 박사학위를 받았다. 현재 충남대학교 건축학과 조교수로 재직하며 GUBO Urban Research Lab을 운영하고 있다. gubowork.com

사무소를 연 계기는?
조윤희 사무소를 열겠다는 생각은 늘 있었다. 이로재에서 3년 일하다가 미국으로 유학을 갔고, 대학원 졸업 후 미국 설계사무소에서 3년 정도 일했다. 그때쯤부터 사무소를 열 때가 된 것 같다는 생각이 들었다. 부딪혀 보면 어떻게든 헤쳐나갈 수 있겠다는 느낌이 들었다. 그전에는 아직 더 배워야 한다는 강박증 같은 게 있었다. 항상 완벽하게 준비한 후에 자기 것을 시작해야 한다는 생각이 있었는데, 그게 아니라는 것을 깨닫는 데 10년이 걸렸다. 다들 잘 모르는 상태에서 시작해서 이리저리 부딪혀 가면서 만들어 간다는 걸 알게 되니 겁없이 시작하게 되었다.
홍지학 직원으로서 프로젝트를 하다 보면 이 경험이 나에게 쌓이는 게 아니라 손에서 빠져나가는 느낌이 들었다. 우리 경험을 쌓아가는 데 시간을 보내고 싶은데, 다른 사람 밑에서 일할 때는 쌓이는 느낌이 없이 계속 처음으로 돌아가는 것 같다는 이야기를 둘이서 많이 했었다. 우리 안에 쌓이는 경험을 만들고 싶었던 것도 사무실을 열게 된 중요한 계기였다.
조윤희 그런데 막상 한국에 와서 사무실을 여니 생각했던 것보다 더 힘들었다. 우리는 한국에서 계속 일을 하다가 개업을 한 게 아니었다. 이로재에서 일했던 때로부터 10년도 더 지났다. 그사이 한국도 많이 변했고, 네트워크도 없었다. 사소한 것 하나도 처음부터 다 찾아야 했다. 모든 걸 내가 알아서 해야 하는 상황이다 보니 매 순간 맨땅에 헤딩하는 기분이었다.
처음 관공서의 일을 했을 때는 행정 절차가 너무 낯설었다. 익히는 과정에서 실수와 시행착오가 많았다. 직원들도 고생을 많이 했다. 다른 사무소라면 소장이 가이드를 줄 텐데 나는 인허가조차 처음 해보는 거였다. 옛날에는 세움터1라는 것도 없었다. 그때는 도면은 CD로, 보고서는 출력물로 제출하던 시절이다. 모든 새로운 시스템을 익히느라 어려움이 많았다.
특기나 지향점이 있다면?
홍지학 합리적인 건물을 짓는 거다. 예를 들어 지붕 배수관이 보기 싫다고 해서 과도한 디테일로 감추려면 실용적인 측면에서는 문제가 생길 수 있다. 그런 과도한 디자인은 지양하려고 한다. 실용주의라고나 할까? 건축물의 기능상 필수적인 것들을 드러내면서도 보기에도 자연스러운 디자인, 그것이 우리의 큰 지향점인 것 같다.
조윤희 단순히 필요에 의해서만 결정되는 것과 건축가의 손을 거친 결과물은 분명히 다르다. 하지만 건축가의 자의식이 과잉되어 건물이 예술작품이 돼버리는 것은 건강하지 못한 것 같다. 그래서 우리는 너무 아름다운 건물보다는 합리적이고 자연스러운 건물을 추구하고 싶다.
그걸 이루기 위해서는 한국 건축의 시스템에 대한 경험을 충분히 쌓아서 그것이 어떻게 작동하는지 먼저 이해해야 한다. 즉, 예측을 잘할 수 있어야 한다. 거기에는 관공서의 시스템도 포함된다. 의도는 좋았는데 현실적으로 반영이 안 되니까 안 좋은 결과물이 나오곤 한다. 예측을 충분히 할 수 있으면 시스템 안에서 최선의 결과물을 끌어낼 방법을 찾을 수 있고, 우리도 효율적으로 일을 할 수 있다.
홍지학 우리가 지향하는 건 100%까지는 아니더라도 70–80% 정도는 미리 중간 변수들을 예상해서 디자인을 하고 물 흐르듯 실현 과정으로 이어가는 것이다. 물론 아직 그 단계에는 이르지 못했고, 앞으로도 이상적인 지향점에 가까울 것 같다.
부딪히는 제도적 문제가 있다면?
홍지학 요즘은 제도가 문제가 아니라는 생각을 한다. 제도상으로는 좋은 부분이 많다. 제도로 안 되는 부분이 있는 거다. 조직의 생리, 내부 구성원, 관행, 오랫동안 굳어져온 생각 탓이 더 큰 것 같다.
유럽의 좋은 건물들이 과연 좋은 제도 때문에 탄생한 걸까? 그보다는 사람들이 공유하고 있는 합의된 가치관이나 문화 때문일 것이다. 우리에겐 그런 것이 여전히 부족하다. 단순히 건축에 대한 관심이 아니라 어떤 일을 처리할 때 뭐가 중요한지에 대해 공유하는 생각이 달라져야 한다. 제도적 결정권을 쥐고 있는 공공기관 상부에 있는 사람들의 생각이 굳어 있다. 이런 상황에서 제도 개선만으로는 뭔가 더 해결될 것 같지는 않다.
조윤희 한편 우리나라 건축 제도는 기본적으로 사람이 모두 나쁘다고 전제하고 있다. 나쁜 사람이 잘못을 저지르는 것을 방지하는 데 초점을 맞추고 있다. 내가 나쁜 사람이 아니라는 걸 증명해야 하는 절차가 너무 많다. 그래서 좋은 건물을 만들려고 의욕 있게 시작한 일도 행정 절차를 밟아나가다 보면 어느새 진이 빠지고 설계안은 너덜너덜해진다. 결국 이도 저도 아닌 상태의 결과물이 나온다. 중학교 강당 프로젝트가 이를 여실히 보여줬다.
홍지학 신뢰가 없다는 게 정말 큰 문제다. 공공건축이 그렇게밖에 나오지 못하는 건 서로를 믿을 수가 없다는 이유가 큰 것 같다. 그런데 사람을 못 믿게 할 만한 일들이 마구 일어났기 때문에 이 지경이 된 것이기도 하다. 그래서 어려운 문제다. 신뢰 사회를 구축해야 하는데 신뢰할 수 없게 만드는 일들이 계속해서 일어나니까.
신명중학교 프로젝트의 한계: 안전율을 정한 가이드 필요


조윤희 학교 설계를 하면서 관계자들이 안전에 굉장히 예민하다는 사실을 알았다. 건축가로서 어디까지를 수용하고 얼마나 새로운 것을 제시할 수 있을지 혼란스러웠다. 펜던트 등도 하나 못 썼다. 아이들이 줄넘기 줄을 조명에 걸어 떼버린다고 했다. 실제로 벌어지는 일이라고 하니 우리는 할 말이 없다.
홍지학 처음 계획으로 제시한 스탠드를 보고는 학생들이 스탠드에서 서서 운동하는 아이들한테 뭔가를 집어 던질 수 있다는 말도 했다. 그런 이야기들을 가만히 듣다 보면 학생들은 거의 미친 사람이다. 높은 데서 뛰어내리고, 무언가를 던지고, 부수고, 뜯는 사람이다.
조윤희 교육청도 학교 건물에 문제가 있다는 인식을 하고 있고 그걸 개선하고자 하는 의지도 있다. 그래서 시범적으로 현상설계를 통해 좋은 안을 뽑아서 실현하면 개선될 거라고 생각한 것 같다. 그런데 실제로는 그렇지가 않았던 것이다. 아무리 좋은 안을 뽑아 놓아도 온갖 규제와 현장 목소리로 뒤섞여 버리는 현실을 극복해야 한다.
안전율이 단적인 예다. 지진 강도 10레벨까지 견디는 내진 설계를 할 수 있어도 7–8 정도에 맞추는 안전율이란 게 있다. 학교 설계에도 아주 세밀하게 짠 표준 가이드라인이 필요하다. 지금은 다 직관에 의존한다. 주무관마다 생각이 다르고, 자의적이다. 모든 건물의 안전율을 다 10으로 맞추면 좋겠지만, 그렇게 했을 때 우리가 현실적으로 포기해야 하는 요소들이 너무 많으니까 거기에서 2–3 정도는 위험을 감수하는 것이다. 아이들의 환경에서도 마찬가지인 것 같다. 그런데 실제로는 어떤 사고도 용납할 수 없다며 건축에서 누릴 수 있는 풍요로움을 포기한다. 그래서 감옥을 만든다. 감옥을 만들면 안전율이 10이니까.
그런데 그에 대한 사회적 합의를 이루기가 쉽지 않다. 그 이유 중에는 여태까지 너무나 많은 부실 건물을 양산한 건축업계의 탓도 있다. 실제로 건물을 엉망으로 지어서 발생한 안전사고들 때문에 불신이 너무 커진 상황이니까. 그 부분에 대한 책임은 우리 건축계에 있다고 생각한다.
리서치와 실무 사이: 앞으로의 숙제


청중A 리서치에서 얻은 내용을 작업에 연결하거나 도시적인 상황에 적용해본 적이 있나?
홍지학 리서치를 하다 보니 그런 면에 관심이 커졌다. 사람마다 자신에 맞게 공간을 바꿔 쓰는 장면을 많이 본 덕분인데 이제는 거주자가 어떻게 바꿀까 미리 상상해본다. 이렇게 리서치 몇 번으로 끝내지 않고, 어떻게 해서든 우리 프로젝트에 연결해보려 한다. 리서치하면서 발견한 좋은 공간이나 쓰임을 어떻게 새 건물에 가져올지 생각해보겠다.
정다영 드로잉을 보니까 정말 공들인 티가 난다. 구룡마을 리서치는 서울 버내큘러가 아닌가 생각했고, 대치동 리서치는 정말 잘 알려지지 않은 이야기를 담아냈다. 구보건축이 이런 쪽으로 작업을 더 밀고 가도 좋겠다. 지금의 중견 건축가들도 가회동 35번지 실측 연구를 본인들 작업의 근원으로 생각하지 않나. 오늘 우리의 도시 삶을 이렇게 가까이 들여다본 건축가는 많지 않다고 생각한다.
홍지학 우리도 정말 이 주제에 관심이 많다. 여력이 있으면 좋겠지만 리서치만 하기엔 돈이 안 된다. 하지만 이어갈 의지는 있다.
조윤희 생업이 있기 때문에 제한된 시간에 납품을 끝내고 연구를 마쳐야 했다. 도시 조직을 본다는 건 평소 쉽게 경험하지 못하는 일이므로 새로운 인사이트를 많이 얻은 소중한 시간이었다.
김상호 보여준 리서치 작업들의 결과물을 보면서 일종의 리버스 엔지니어링 같다는 생각이 들었다. 리서치 용역에서 건축가로서 얻고자 하는 바가 있다면 무엇인가?
홍지학 옛날부터 생각한 건데, 건축 덕후 같은 사람들이 필요하다. 예전에 학교 다닐 때 그런 것이 굉장히 목말랐다. 무언가를 생산할 것을 계산하지 않고 그냥 좋아서 문짝만 보고 다닌다든지, 말도 안 되는 도면을 집요하게 그린다든지. 지금 우리가 갖고 있는 건축을 덕후의 시선으로 바라볼 필요도 있을 것 같고, 그런 걸 하고 싶다는 생각도 많이 한다.
그런데 이걸 실제로 추진하기 위해서는 그에 맞는 용역을 따거나 아니면 펀딩을 받는 방법밖에는 없다. 아니면 안 좋은 경우로는 진짜 설계 프로젝트가 없어서 시간이 많이 남을 때는 해볼 수는 있을 것이다. 그런 일은 없으면 좋겠다.
조윤희 우리가 리서치 용역을 네 번 정도 했는데, 전부 다 처음에는 시작할 때에는 너무 재미있었다. 상상도 많이 하고. 그런데 작업을 하면서 결과물에 가까워질수록 재미가 없어진다. 우리가 하고 싶어하는 방향이 있는데, 발주처에서 자꾸 이렇게 하지 말고 저렇게 바꿔달라고 한다. 결국 나중에 가서는 우리도 그냥 빨리 납품해버리고 끝내자는 태도가 된다. 그 사람들이 원하는 이미지가 이미 정해져 있고, 거기에 우리를 자꾸 맞추게 되는 순간 흥미를 잃는다.
인터뷰어 & 패널
- 김상호(정림건축문화재단 실장)
- 정다영(국립현대미술관 학예연구사)
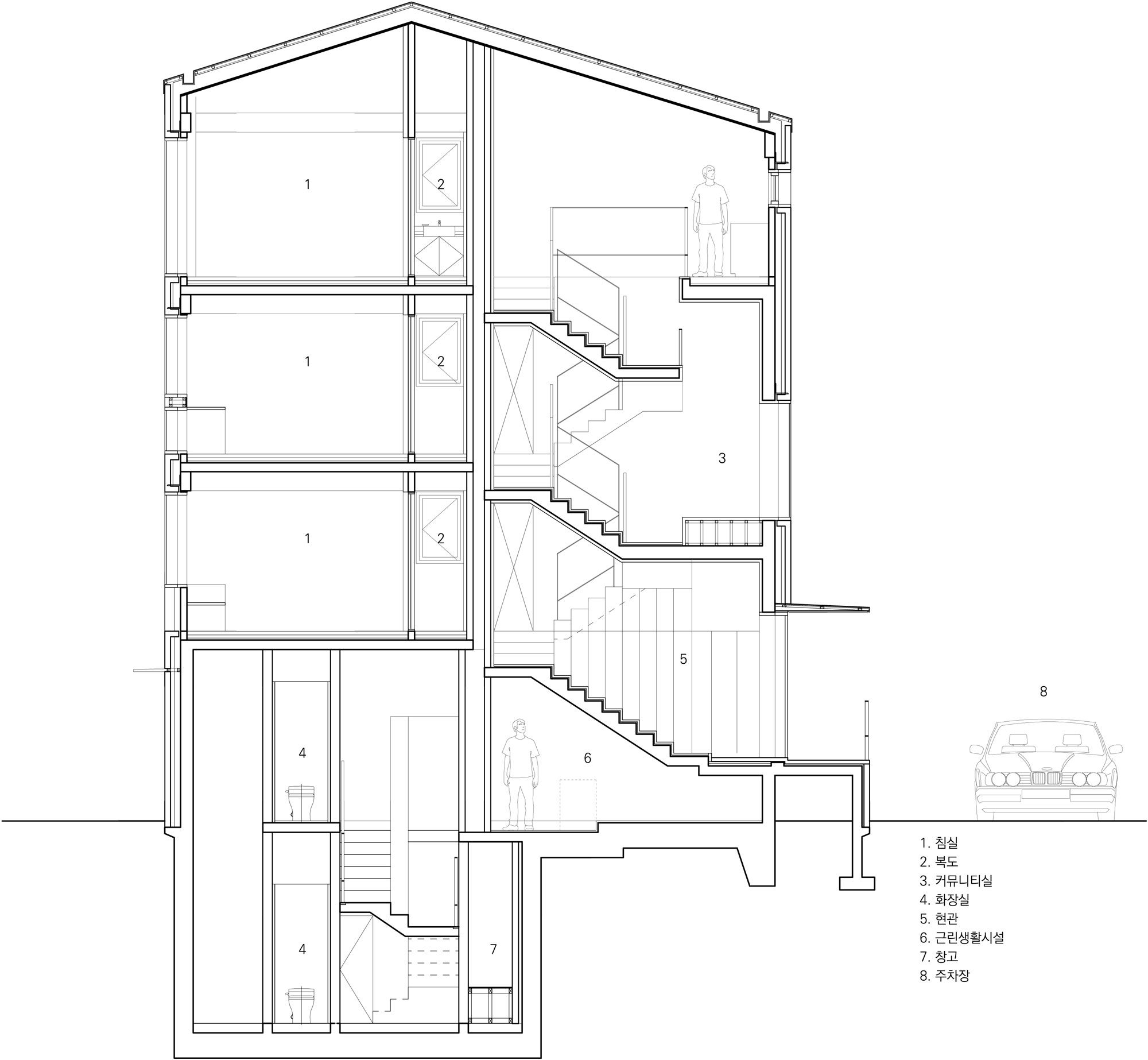
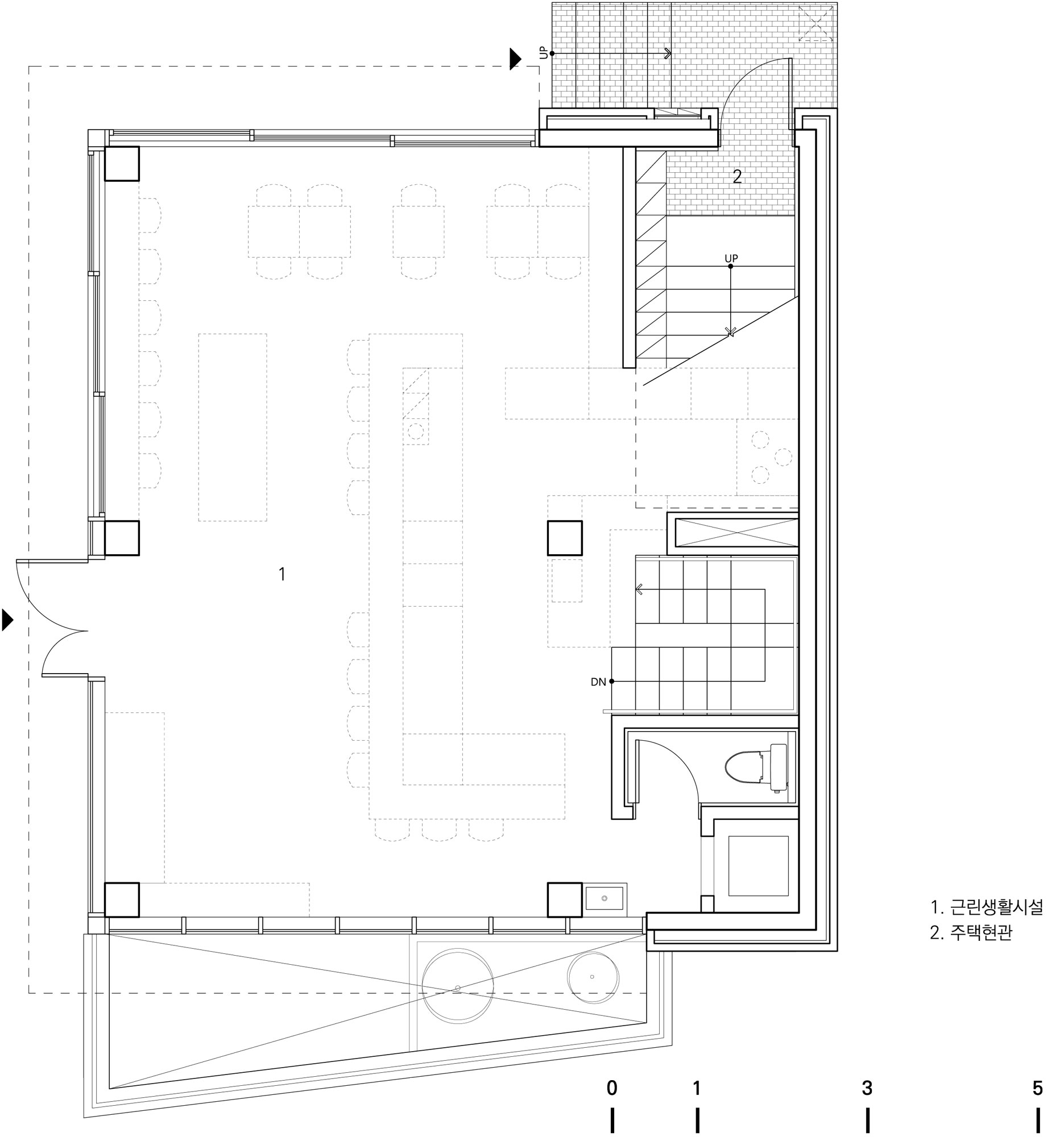
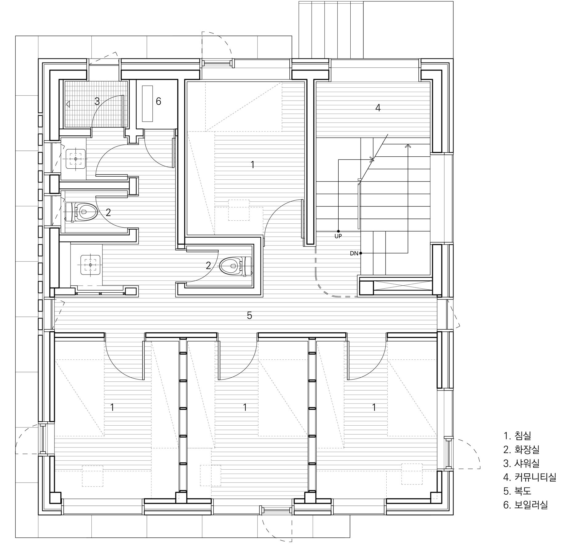
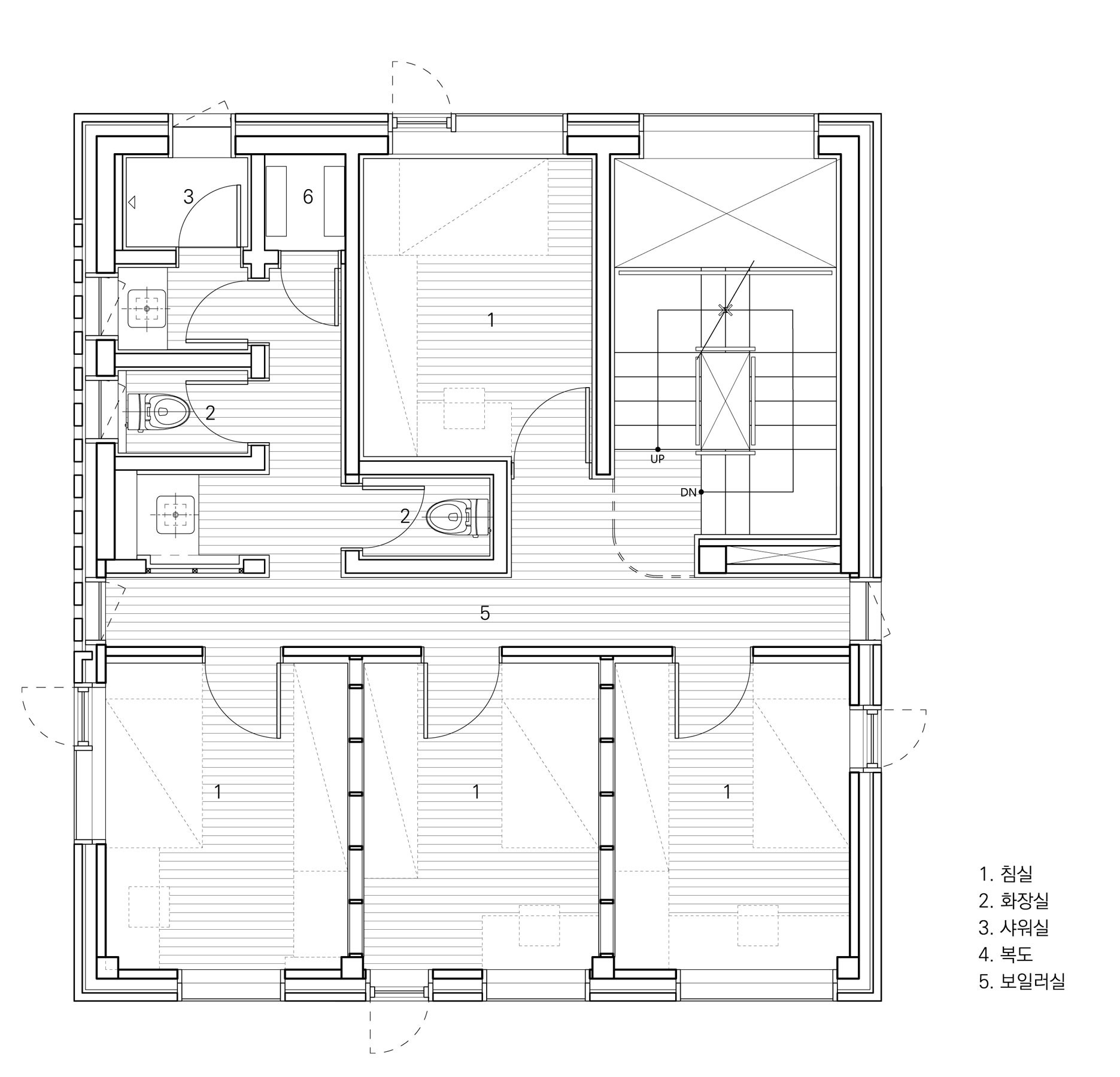
궁정동 토지임대부 사회주택







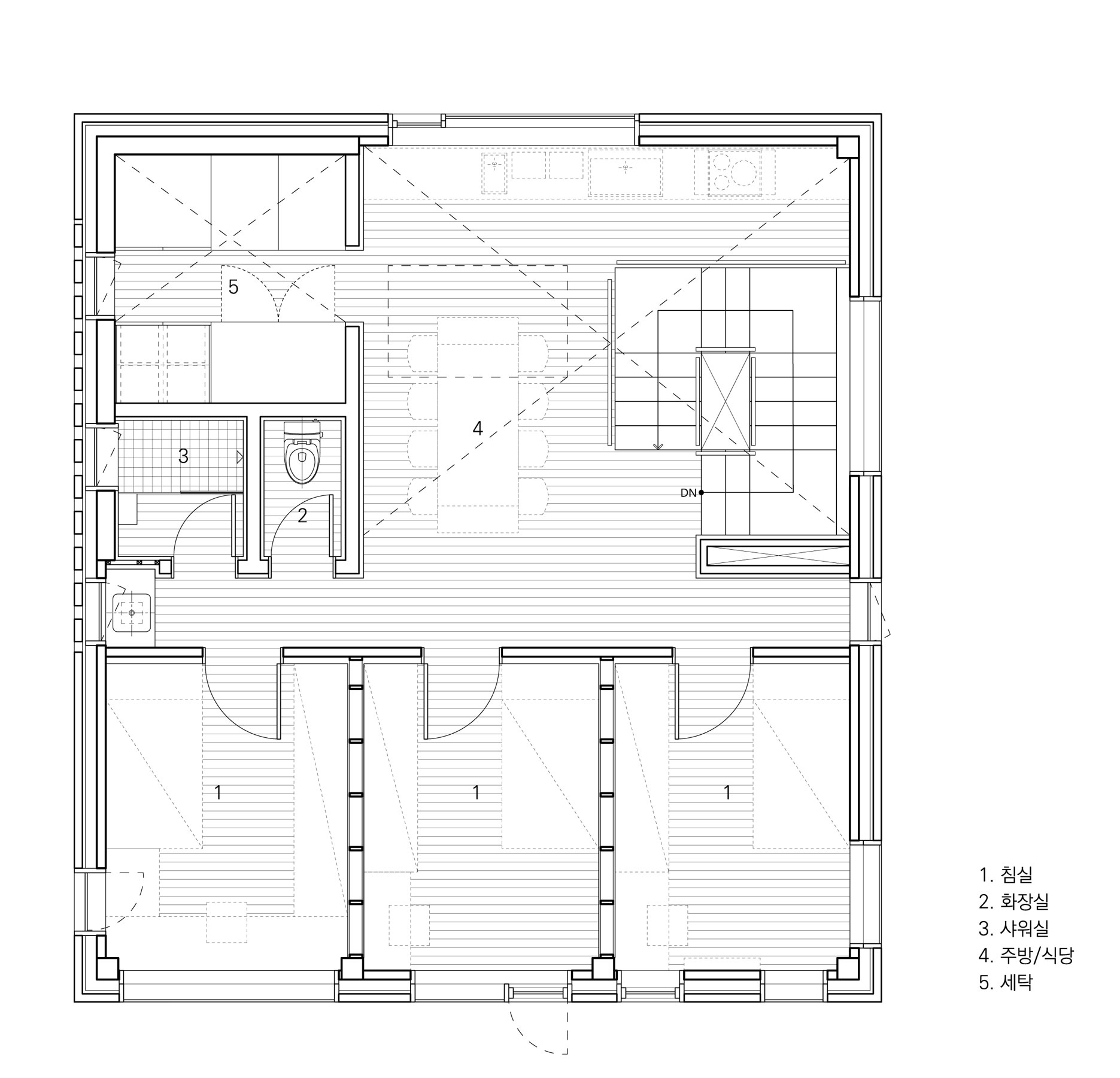
건축 개요
- 위치 서울시 종로구 궁정동 3-18
- 용도 근린생활시설, 단독주택(다중주택)
- 대지면적 194.9㎡
- 건축면적 77.23㎡
- 연면적 312.49㎡ (용적률 산정용연면적:266.29㎡)
- 건폐율 39.63% (법정:40%)
- 용적률 136.63% (법정:150%)
- 층수 지하 1층, 지상 4층
- 구조 철근콘크리트구조, 목조
- 외부마감 벽돌, 시멘트판넬, 24mm 투명복층유리
- 내부마감 HBE 노출마감
- 의뢰방식 토지임대부 사업
- 설계기간 2017.12–2018.8
- 공사기간 2018.9–2019.6
- 설계 홍지학(충남대학교), 구보건축사사무소: 조윤희, 윤정호, 방지희
- 구조설계 창민우구조컨설턴트, 경민산업(목구조)
- 전기설계 하나기연
- 기계설계 타임테크
- 조명설계 퓨즈
- 시공 코아즈건설
- 감리 구보건축사사무소
- 모형·CG 구보건축사사무소
- 건축주 서울소셜스탠다드
- 출판자료 정리 윤정호
구보건축
분량7,576자 / 15분 / 도판 14장
발행일2019년 3월 25일
유형인터뷰
『건축신문』 웹사이트 공개된 모든 텍스트는 발췌, 인용, 참조, 링크 등 모든 방식으로 자유롭게 활용 및 사용할 수 있습니다. 다만, 원문의 출처 및 저자(필자) 정보는 반드시 밝혀 표기해야 합니다.
『건축신문』 웹사이트 공개된 이미지의 복제, 전송, 배포 등 모든 경우의 재사용을 위해서는 반드시 원 저작자의 허락을 받아야 합니다.

