보편적인건축사사무소
전상규, 황은
분량6,680자 / 13분 / 도판 10장
발행일2019년 3월 25일
유형인터뷰
‘어느 건축가가 설계한 건물에서 살고 있나요?’라는 물음에 돌아오는 답은, 모르거나 아파트 건설사 이름이 대부분이다. 문득 이런 현실에 의문을 가지게 되었다. 지금 살고, 일하는 공간을 계획한 건축가를 아는 사람이 거의 없는 현실 말이다. 보편적인건축사사무소는 건축과 공간 전문가로서 사람들에게 친밀하게 다가가기 위해 기억하고 부르기 쉬운 이름으로 2013년 문을 열었다. 현재는 아내인 황은 소장이 합류해 함께 운영하고 있다.
보편적인건축사사무소의 줄임말 ‘보.건.소’는 보건소를 가듯 건축가를 찾는 발걸음을 부담 없이 유도하기 위해 의도한 것이기도 하다. 그 발걸음 대부분 설계의뢰를 처음하는 사람들의 것이다. 사무소 이름에는 소수의 사람만 누리는 설계하고 건축하는 즐거움을 여러 사람과 공유해 나가고 싶은 뜻도 담겨 있다.
보편적인건축사사무소의 작업은 존재해야만 하는 건축에 편견 없이 긍정의 가치와 새로운 가능성을 더할 기회를 만들어가는 과정이다. 주변에서 쉽게 볼 수 있는 환경과 공간을 염두에 두기도 하지만, 그동안 건축가의 관심 테두리 밖에 있던 요소가 작업 대상이 되기도 한다. 심지어 건축이라는 이름표를 얻지 못한 어떤 공간적 요소(최근 생활 SOC 사업과 관련한 내용)일 수도 있다.
계획 과정도 마찬가지다. 변화하는 건축의 위상, 건물의 수명, 새롭게 등장하는 스페이스 프로그램과 이로 인한 공간의 전용에 대응하기 위한 기본 전제는 긍정을 품은 유연함이다. 이를 위해 건축 재료의 일반적 사용과 결구에 의문을 던지고, 계속 달라지는 미적 기준과 가치들 속에서 긍정적인 쓰임새의 가능성을 엿보고 있다. (그 가능성은 현장 프로세스와 시공 방법에 대한 이해가 깊어질수록 더욱 커진다.) 우리는 변화하는 가치를 반영하는 유연한 건축을 위해 건축 전 과정을 다양한 관점에서 탐구하고, 이를 바탕으로 그동안 건축에서 보편적이라 여겨온 것의 범주를 확장하고자 한다.
일상적으로 만나는 공간을 이용하는 사람들이 자신을 둘러싸고 있는 분위기와 요소를 인식하고 그것에 공감 혹은 의문을 가져보기를 바란다. 공간을 느끼고, 건축을 이야기하고, 건축가의 의도를 궁금해하고, 그가 누구인지 찾아보는, 공간에 대한 개인의 취향이 생겼으면 한다.개개인의 경험에 세월이 쌓이면 공감대를 형성하고 보편성을 지니게 되는 것처럼, 우리 작업이 구체적인 건축 요소들을 바탕으로 개념화되어 가는 것을 의식하고 있다. 한편으로는 광고나 홍보 대상물이 되는 것을 경계한다. 전체를 이루는 부분의 가치에 주목하면서 건축의 사회적인 역할을 고민하기 때문이다.
우리는 보편적 가치들을 비판적으로 탐구하여 현재 상황과 여건에 따라 그 유효성을 살핀다. 프로젝트들의 진행 과정에서 우리 손을 거친 계획적 접근과 구현 방법의 일부가 건축의 보편적 가치의 범위를 넓히는 데 일조했으면 한다. 그리고 우리가 한 것이 보편적인 건축이 된다면, 우리는 또 다른 가치의 보편성을 추구할 것이다. 건축에 있어 보편의 범주를 계속 확대하는 일, 그것이 보편적인건축사사무소의 작업이었으면 한다.
보편적인건축사사무소
삶을 구성하고 있는 일상적인 공간과 환경에 주목하고 있다. 겸손한 태도로 공간을 바라보며 감각으로 만들어진 시각적 대상만이 아닌 사고의 산물로서 완성되는 보편적인 건축을 만들어가기를 희망한다. 건축을 기반으로 인테리어, CI, 환경디자인의 영역에서 새롭고 공감할 수 있는 디자인을 추구한다. 전상규는 간삼파트너스와 매스스터디스에서 실무 경험을 쌓았고, 현재 서울시 공공건축가로 활동하고 있다. 황은은 DBYM건축사사무소와 엄앤드이종합건축사사무소에서 실무 경험을 쌓았고, 현재 남서울대학교 건축학과 겸임교수다. o-oa.com

앞선 실무 경험에서 얻은 것은?
전상규 사무실에 소속되어 일하면서도 나만의 색깔을 잃어버리지 않으려고 의식했던 것 같다. 특히 전 직장은 스터디의 양이 적지 않고, 그에 비례해 요구사항도 상당히 많았다. 눈앞에 닥친 일을 쳐내기 위해 끌려가다 보면 어느 순간 디자인에 대한 비판적인 의식이 점점 무뎌지는 느낌이 들었다. 그래서 더 의식적으로 내가 다르게 생각하는 지점을 놓치지 않으려 했다.
한편, 작업을 하다 보면 수시로 벽에 부딪힌다. 그럴 때면 이따금 ‘만약 이럴 때 소장님은 내게 어떤 이야기를 했을까?’라는 생각을 한다. 그 사고방식을 그대로 가져올 순 없지만, 신선한 자극이 필요할 때 스스로 그런 질문을 던지곤 한다.
황은 매스스터디스 출신 사람들은 그 사무실에 대한 질문을 많이 받는다. 왜 그럴까 생각해보면, 당시 조민석 소장님은 건축계에서 독보적인 사람이었고, 그 이유만으로 능력 있는 건축학도들이 매스스터디스에서 일하고 싶어 했다. 그래서 그곳에서 어떤 능력을 배양했다기보다 이미 그런 소양을 갖춘 사람들이 거기서 일했고, 지금도 그런 이들이 잘하고 있는 거라고 생각한다. 원래 자기가 갖고 있던 역량을 잘 발휘하고 있는 거다. 내가 보기에는 매스스터디스 출신들이 공유하고 있는 어떤 디자인 철학이 있는 것 같지는 않다. 오히려 외부 사람들이 여기에 대해 너무 의미를 부여하려고 하는 것 같다.
사무소를 연 계기는?
전상규 처음부터 막연하게나마 생각하고 있었다. 당시 우리 또래는 마흔 전에 독립한다는 목표를 갖고 있는 경우가 많았다. 내 건축적 관점이 일반 대중에게 과연 받아들여질 수 있을지 시험해보고 싶은 생각이 늘 있었다. 다니던 회사가 어려워지면서 시점이 생각보다 조금 앞당겨지긴 했지만, 결국 언제가 됐든 독립했을 것이다. 사무실을 열기 위해 갖춰야겠다고 생각했던 조건 중에 가장 중요했던 것은 수주 능력이었다.
황은 내가 안 말렸으면 전 소장은 더 일찍 개소했을 거다. 다른 사람들을 보면 보통 사무소에서 일하다가 어떤 계기로 건축주와 관계를 맺게 되고 확실한 목표가 생겼을 때 독립하는데, 그런 조건이 안 갖춰진 상태에서 독립한다고 해서 몇 년을 말렸다.
특기나 지향점이 있다면?
전상규 재료를 다양하게 적용해보려는 시도를 특기로 볼 수도 있겠다. 여태껏 써온 재료를 조금 더 다양한 측면에서 활용하는 데 큰 노력을 들인다. 그게 우리 장점 중 하나인 것 같다. 아무리 작은 요소라도 여태껏 해보지 않은 무언가가 있어야 프로젝트가 재밌어지는 것 같다.
그리고 지향점이라고 할 수 있을지는 모르겠지만, 작업이 너무 무겁거나 딱딱하지 않았으면 하는 생각이 있다. 물론 실용적인 측면이 더 중요하지만, 그 안에서 아무리 소소한 지점이라도 위트를 담고 싶다.
황은 한번은 빨래 건조대를 난간에 일체형으로 설치하겠다고 해서 반대했는데 전 소장은 끝까지 그렇게 하고 싶다며 밀고 나갔다. 나는 가리려고 하는 부분을 전 소장은 오히려 재미있게 드러내서 개성으로 만드는 경향이 있다. 처음에는 억지스러워 보이던 부분들이 나중에는 오히려 건물의 시그니처가 되는 경우가 많았다.

구상하고 있는 조직 형태는?
전상규 조직의 운영과 관련해서 막연하게 고민하고 있는 것 중 하나는 전문 경영인이다. 사무실이 어느 정도 규모가 되면 전문 경영인을 둘 수 있을지 종종 생각한다. 사무실 규모가 작아도 운영에 들어가는 노력은 실무 못지않은데, 우리는 사실 경영을 잘 모른다. 그래서 CEO 역할을 할 사람을 파트너로 삼을 생각도 있다. 주변에 경영을 전공한 지인도 있어 가끔 조언을 받는다. 그 조언에 따라 분기별, 반기별, 연도별로 사무실 경영 상태를 내부에서 공유하는 자리를 갖는다. 상당히 도움이 된다. 전문 경영인을 들이는 생각을 할 때 한편으로는 우려되는 면도 있다. 우리가 가치 있다고 생각하는 일은 매우 효율이 낮고 생산성이 떨어지는 방법으로 치부될 수도 있다.
황은 기존 방식으로 설계사무소를 운영하는 시대는 이미 끝에 다다랐다. 여러 전문 분야 사람들과 협력하는 방식으로 살아남을 수 있을지 요즘 고민을 많이 한다. 벌써 기성세대가 된 것처럼 들리겠지만, 우리도 새로 배출되는 신인 건축가와 계속 경쟁해야 한다. 어떻게 그들과 차별화하면서 살아남을 수 있을지가 가장 큰 고민이다. 작업의 깊이와 영역의 확장 사이에서 균형점을 찾는 것이 중요한 시기가 되었다.
인테리어 디자인: 유연한 재료 사용 방식
김상호 초기작에는 인테리어 작업도 꽤 많은데 인테리어에 능력이 있는 편인가?
전상규 안 쓰던 근육을 쓰는 느낌이다. 계속 기회가 오길 바라고 있다. 인테리어 디자이너와 건축가는 재료를 다루는 방법이 다르다. 편견일지 모르겠지만, 건축가는 건축적 요소를 통해 인테리어를 완성하는 편이고 치장에 서투르다. 인테리어 하는 사람은 재료를 사용하는 방식이 유연하다. 나는 그렇게 재료를 쓰는 방식을 주저하게 되지만, 익히고 싶은 감각이다.

젊은건축가상 지원동기: 국내파의 가능성, 좋은 스태프 모집
박정현 두 번째 탐색 시리즈 건축가 중에 가장 건축 작업이 많은 것 같다. 보.건.소.가 건축 시장에서 인정받았다고 볼 수도 있다. 그런 측면에서 젊은건축가상을 어떤 동기로 지원했는지 궁금하다. 프로젝트가 없는 건축가라면 인지도를 높이기 위해서 도전할 것 같은데 보.건.소.는 그럴 필요는 없었을 것 같다.
전상규 젊은건축가상은 건축가의 신인상 같다. 나이 제한이 있으므로 시기를 지나면 받을 수 없다. 건축가의 젊음을 규정해주는 상이랄까? (웃음) 한편으로는 국내에서 교육받고 실무를 거쳐 독립한 사람으로 후학들에게 어떤 가능성을 보여주고 싶은 생각도 있다. 회사 차원에서 보면, 프로젝트 수주를 기대하기보다 좋은 친구들이랑 함께 일할 기회를 넓히고 싶다는 생각이 크다.
보.건.소.의 지향점: 보편의 의미를 돌파해야
청중A 보.건.소.만의 지향점은 무엇일까? 사실 오늘 발표에서는 건축주의 의지가 보여주는 맥락만 보였다. 이제 하나의 지향점을 생각할 시점 아닌가 한다. ‘보편적인’ 것을 만든다는 건 굉장히 선언적이다. 내 작업이 보편적일 수 있게 만들겠다는 메시지일 수도 있겠다.
전상규 자주 받는 질문인데, 실은 아직 답을 내리지 못했다. 이름을 너무 쉽게 지었다는 생각이 들기도 한다. (웃음) 요즘 생각의 지평이 좀처럼 넓어지지 않더라. 『공간』에 실린 깍지집 비평 글에서 천경환 소장이 내 두서없는 말을 잘 정리해줬다. 대략 옮기면, ‘재료에 대한 고민, 쓰임새, 상가 건물에서의 건축적 의도 같은 것들이 이제는 흔해 빠진 보편의 영역으로 들어오면 좋겠다’고 했다. 그런 의미 부여를 해볼 수 있을 것 같다. 과거부터 쌓여온 어떤 것에 대해 쓰는 ‘보편’이란 의미를 어쩌면 미래로 확장하고 싶다.
청중A 만약 강남역 인근 프로젝트에서 보이는 크고 우람한 덩치를 보편화하는 것이라면 나는 개인적으로 그건 아니라고 하고 싶다. 발표 때 말한 ‘골조의 엄정한 질서’도 이미 건축에서 보편적이다. 그래서 보.건.소.가 어떤 것을 지향하려고 하는지 아직 잘 모르겠다. 그 돌파는 건축가의 몫이다.
김상호 주어진 조건에 의해 생기는 보편성이 아니라 보.건.소.가 스스로 만들어가는 보편성에 대한 생각이 더 필요할 것 같다.
전상규 그 의미를 이제 상쇄해야 하는 시점에 온 것 같다. 누군가와 대화하다 보면 항상 끝에는 이 질문이다. 아직 진전이 잘 안 된다. 그래서 보편적인건축사사무소 이름을 방탄소년단을 BTS로 부르는 것처럼 BPGA로 바꿀까도 생각했다. (웃음) 의미는 사라지고 기호만 남으니까 오히려 작업하는데 자유로울 수 있겠다는 생각이 들었다.

청중B 건축가만의 아젠다가 꼭 필요할까? 오늘 발표를 들으면서 보.건.소.는 주어진 요구사항, 조건을 잘 해석하고, 시장에서 경쟁력을 갖춘 사무소라는 것이 느껴졌다. 복잡한 설계 과정을 즐기는 에너지도 느꼈다. 우리 또래 건축가와 비교했을 때 다수의 프로젝트를 완수했고, 직원 수도 적지 않다. 지금 같은 작업 방식 자체가 아젠다가 될 수도 있지 않을까?
임진영 임재용 소장의 주유소 연작이나 김승회 교수의 보건소 연작처럼 같은 프로그램을 반복하면서 건축가 스스로 만드는 질서, 언어가 있지 않은가. ‘이런 프로그램의 성격은 이러므로 건축가는 이렇게 대응한다’라는 건축가의 언어, 태도를 듣고 싶다. 지금 작업들만으로도 흥미롭지만, 미래를 위해 한 번쯤 정리해봐도 좋겠다는 기대감이 든다.
전상규 고민하고 있지만 아직 정리가 잘 안 됐다. 말한 것처럼 고민할 필요가 없는 문제일 수도 있고, 여러모로 생각 중이다.
청중A 앞으로 나아갈 맵이 필요하다. 반드시 이름이랑 연결되지 않아도 되지만, 그런 맵이 없으면 계속 사막을 걷는 느낌을 받을 것 같아서 한 말이다.
전상규 개개 프로젝트가 아닌 사무소 이름을 내건 자리는 처음이라 모든 프로젝트를 한번 드러내 보았다. 이번 발표를 위해 지난 작업을 좀 더 객관적인 입장에서 정리하다 보니까 내가 어떤 문제에 대응하는 방식들 사이에 어떤 유사성이 있는 지점을 발견했다. 하지만 아직 꼬챙이에 끼우듯이 모든 프로젝트를 관통하는 것을 찾긴 어렵다.
임진영 꼬챙이가 여러 개여도 좋다. 저마다 이름을 붙이면 된다.
인터뷰어 & 패널
- 김상호(정림건축문화재단 실장)
- 박정현(건축비평가 / 도서출판 마티 편집장)
- 임진영(건축전문기자 / 오픈하우스서울 대표)
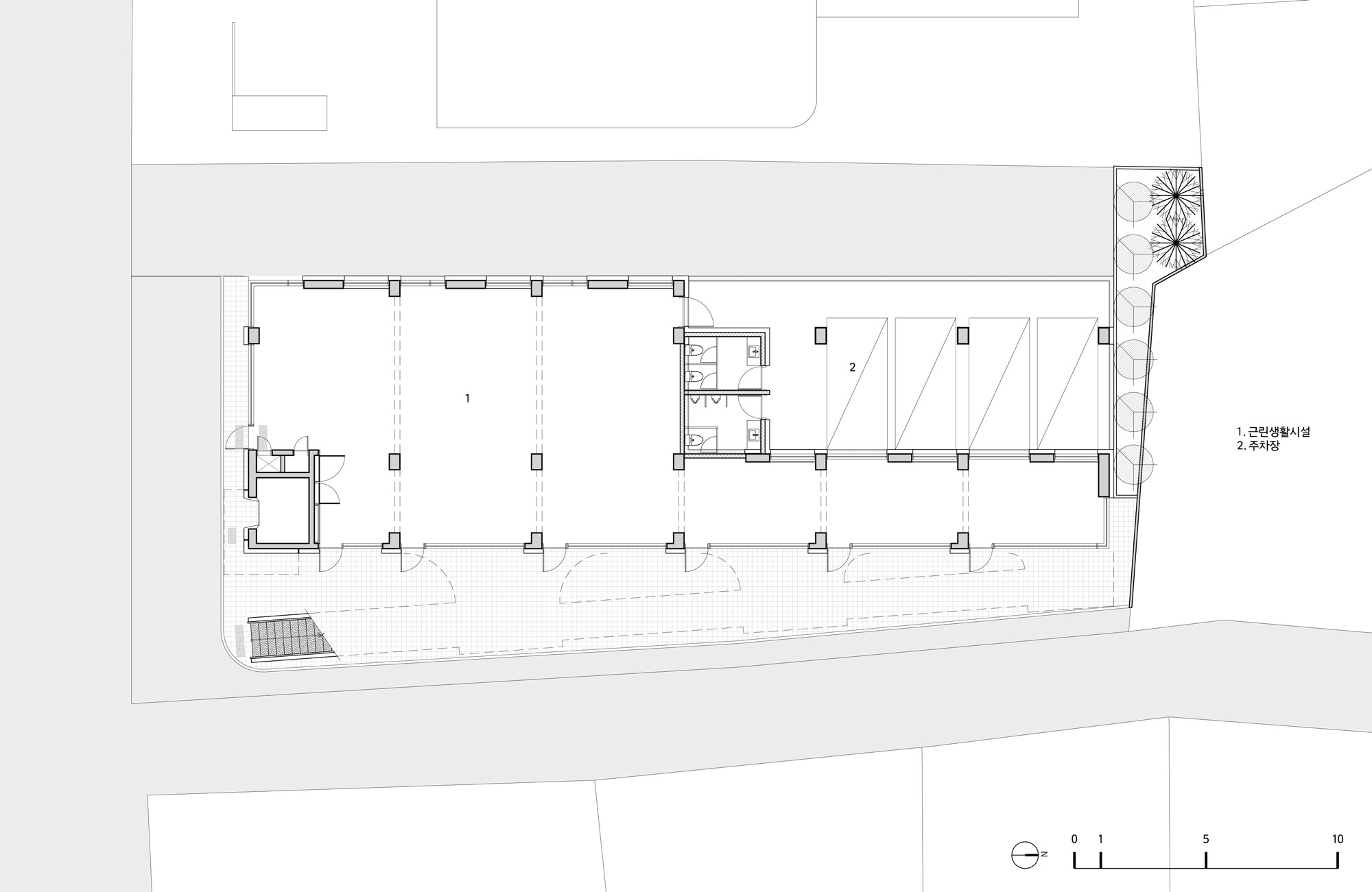
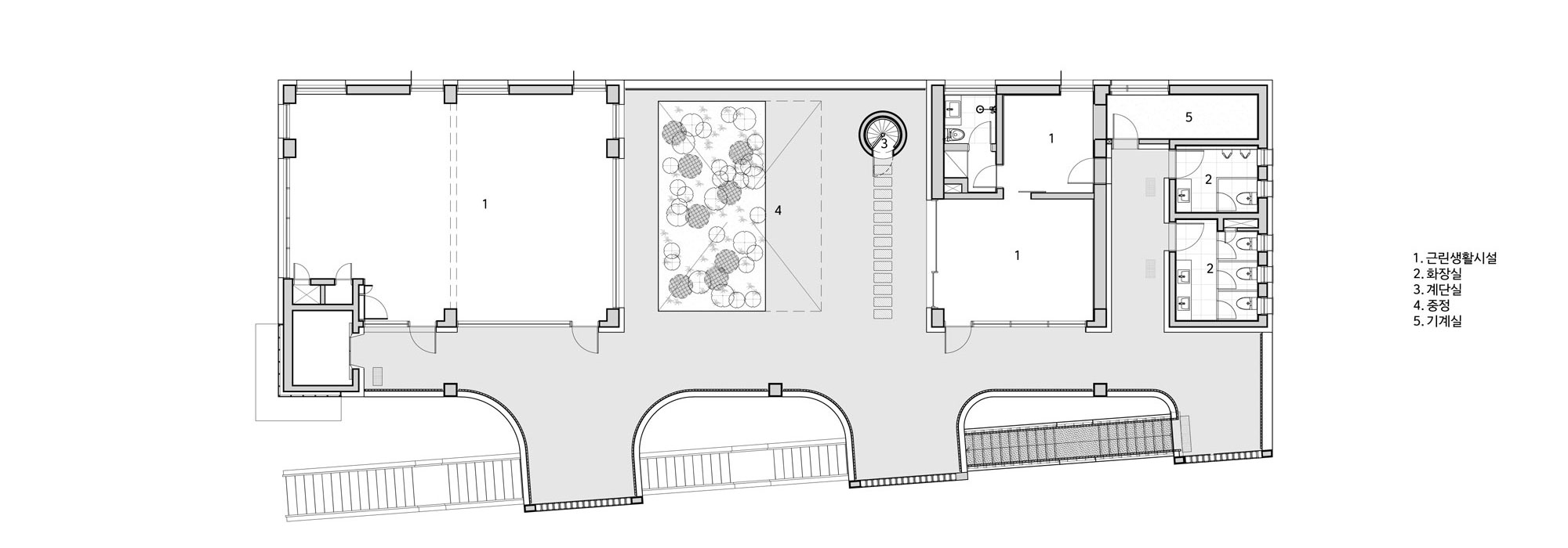
성내동 근린생활시설 세컨드앨리




건축 개요
- 위치 서울시 강동구 천호대로158길 22
- 용도 근린생활시설
- 실사용자 임대 예정
- 대지면적 750㎡
- 건축면적 374.93㎡
- 연면적 1,193.6㎡
- 건폐율 49.99%
- 용적률 159.15%
- 층수 지상 4층
- 구조 철근콘크리트구조
- 외부마감 외단열미장마감
- 외뢰방식 개인 수의계약
- 설계기간 2017.3.27–2017.12.21
- 공사기간 2018.4.16–2019.2.15(예정)
- 설계 전상규, 최영미, 하상준, 오영석
- 구조설계 이든구조컨설턴트
- 기계설계 이래엠이씨
- 전기설계 성지이앤씨
- 시공 이웨이
- 감리 보편적인건축사사무소
- 모형 ·CG 보편적인건축사사무소: 최영미, 오영석
- 건축주 비공개
보편적인건축사사무소
분량6,680자 / 13분 / 도판 10장
발행일2019년 3월 25일
유형인터뷰
『건축신문』 웹사이트 공개된 모든 텍스트는 발췌, 인용, 참조, 링크 등 모든 방식으로 자유롭게 활용 및 사용할 수 있습니다. 다만, 원문의 출처 및 저자(필자) 정보는 반드시 밝혀 표기해야 합니다.
『건축신문』 웹사이트 공개된 이미지의 복제, 전송, 배포 등 모든 경우의 재사용을 위해서는 반드시 원 저작자의 허락을 받아야 합니다.

