아에아
김샛별, 윤성영
분량7,544자 / 15분 / 도판 12장
발행일2019년 3월 25일
유형인터뷰
AEA(아에아건축)는 프랑스어 Atelier Espa:ce Architectes (아틀리에 에스빠스 아키텍트)의 머리글자 조합이다. ‘Espace’는 공간 또는 장소라는 뜻이며 이것을 탐구하는 건축가 그룹이라는 뜻으로 지었다. 우리 두 사람은 배병길도시건축연구소에서 함께 실무 경험을 쌓았고, 파리 라빌레트 건축학교에서 석사 졸업 후 파리에서 실무를 이어갔다. 그러던 중 첫 프로젝트였던 경남 사천시 상가주택 H1115-7을 계기로 귀국, 2016년 경남 진주라는 지방도시에 정식으로 사무소를 열었다.
사무실을 열기 전 1년간 지인의 브랜딩, 인테리어 디자인, 일러스트작가 협업 등의 다양한 일을 하며 지냈다. 그때 우리 임시 작업실이었던 가설 건물에 화재가 나는 바람에 컴퓨터 데이터를 제외하고 작업 자료를 모두 잃었다. 그해 다시 작업 공간을 구하던 중 우연히 만난 진주 청고벽돌집(서가건축 설계) 2층에 터를 잡게 되었다. 거기서 2018년까지 머물렀고 현재 다른 곳으로 작업실을 옮기는 중이다.
경남지역에 기반을 두게 된 배경은 사천의 첫 작업을 보고 들어오는 작업 의뢰가 주로 남해, 거제, 대구, 부산, 진주 등의 주변 도시였기 때문이다. 그래서 쉽게 접근할 수 있는 위치가 시작하는 건축가에게는 장점이 될 거로 생각했다. 요즘은 지방에서도 건축문화를 다양한 매체를 통해 쉽게 접할 수 있어서 예전보다 나은 환경일 거라는 기대도 있었다. 또 부산과 대구 등 지방을 거점으로 활발하게 활동하는 여러 건축가가 있어서 더 용기를 얻기도 했다.
우리는 주로 대지 주변을 탐색하면서 생각의 출발점이 만드는 편이다. 주변 조건은 늘 좋은 것과 나쁜 것 사이에 있다. 생각이 시작되면 단순한 볼륨의 중첩과 병치, 분리와 교차 등의 조합을 통하여 형태를 탐구한다. 클라이언트의 요구사항, 주어진 프로그램과 관계 등 여러 요소가 기본 볼륨의 생성에 영향을 미친다. 볼륨의 조합은 특별한 개념에 집중하기보다는 작업 과정 속에서 발견되고 다듬어진다. 새로운 관계가 만들어지기도 하고 기존 관계가 깨지기도 하는 등 계속 재설정된다. 각각의 볼륨은 독립적으로 보일 수도 있지만, 서로 이어지고 엮이면서 또 다른 볼륨을 만들어낸다. 이렇게 설정된 볼륨은 내·외부 공간으로 전환된다. 이후 사용 단계에서 재설정될 수 있는 바탕이 되기도 한다.
지금은 주로 상가주택 중심으로 작업을 이어가고 있다. 성격이 다른 두 프로그램을 분리하고, 주변과 관계 맺는 과정 속에서 볼륨을 조합하게 된다. 우리는 건축물을 사용하는 이들에게 볼륨의 조합 속에서 넘나드는 움직임을 통한 새로운 경험을 선사하고 싶다.
현실의 제약 속에서 볼륨 구성이 매우 단순화되기도 한다. 부족한 예산과 건축주에게 익숙한 관습에 부딪힐 때 우리만의 건축언어나 형태를 강하게 고집하지 않기 때문이다. 그것들도 건축가가 포용해야 할 부분이라고 생각한다. 오히려 결과적으로 대립적이었던 것들이 융화되면서 재미있는 요소로 녹아들기도 한다. 이는 다음 작업 때 우리에게 새로운 가능성을 열어주기도 한다.
사무소를 운영해온 짧은 시간에 비해 많은 시행착오를 겪으면서 많은 현실적인 문제를 겪었다. 우리는 마치 바위틈을 낙차로 뚫고 좁은 협곡을 거칠게 흐르는 물과 같다는 생각이 든다. 지방에서 건축가로 살아남기 위해서는 많은 전략과 노력과 대비가 필요하다. 활동 영역을 한정 짓지 않고 수도권을 벗어나 지방에서 일하는 젊은 건축가가 늘고 있다. 점차 지방도시에서도 다양한 건축문화가 형성되는 토양이 되기 위해서는 여러 지역에서 다양한 작업이 많이 나와야 하고, 궁극적으로 그 시도의 결과가 지방도시에 긍정적인 변화를 만들어줄 것이라고 기대한다. 그래서 우리는 수도권에서 나와 지방도시에 기반을 잡는 것을 고민하는 젊은 건축가들에게 응원을 보내고 싶고, 우리 행보도 그들과 함께하고 싶다.
아에아건축
윤성영과 김샛별은 배병길 도시건축연구소에서 실무를 경험하고, 프랑스 국립 파리-라빌레트 건축학교 석사학위를 받았다. 파리에서 실무를 경험하던 중, 첫 작업인 H1115-7을 계기로 2015년 귀국하여, 2016년 정식으로 아에아(AEA, Atelier Espace Architectes)를 열었다. 현재 상가주택 P1113-4, G1931-6, P1071-4, G1085-4, G1073-8, 다가구주택 D649-7과 단독주택 Y26-1 등 다양한 장소들의 작업을 진행하고 있다. aea-architecture.com

앞선 실무 경험에서 얻은 것은?
김샛별, 윤성영 배병길 도시건축연구소에서 일하는 동안 건축 실무 외에 건축가로서 가져야 할 태도부터 개인의 직업의식에 대해서 배웠다. 실제로 사무실을 열고 현실적인 문제에 휘둘리지 않고 우리만의 소신으로 운영하는 데도 큰 도움이 되고 있다.
이를테면 도면을 대하는 방법, 조경에 쓰는 돌의 생김새 같은 작은 것부터 선을 긋는 자세, 도면의 여백, 옷매무새, 한국 역사와 아름다움에 대한 소중함 같은 것들이다. 습관처럼 몸에 밴 크고 작은 깨우침이 지금의 우리에게 적지 않은 영향을 미친 것 같다. 특히 배병길 선생님은 도면은 치수가 있는 한 폭의 그림으로 보고 레이아웃과 여백, 배치 등을 아주 중요하게 여기며 시공사가 잘 보지 않는다고 해도 최대한 상세하게 설명할 수 있도록 노력해야 한다고 가르쳐 주었다. 우리는 지금도 더 꼼꼼하게 모든 부분을 도면에 표현하려고 애쓰고 있다.
디자인 의도를 관철하는 것은 프로젝트를 이어나갈 에너지가 되기 때문에 중요한 문제다. 시공 여건, 건축비, 건축주 취향 등은 건축가에게는 변명일 뿐이고, 건축물이 서 있는 그대로가 곧 증거라고 배웠다. 그러나 시공 현장은 항상 예측 불가하고 건축가의 의도와는 다르게 다운그레이드되는 일이 반복된다. 우리 스스로 그러한 결과를 성찰하기도 하고, 때로는 이런 마음을 이용당해 건축주에게 휘둘리기도 한다. 우리는 아직 이 많은 변수에 익숙하지 않다.
특기나 지향점이 있다면?
김샛별, 윤성영 다양한 영역의 사람들과 협업하는 것을 좋아한다. 초기에는 여러 차례 기회가 있었지만, 요즘은 거의 상가주택 설계 의뢰가 대부분이어서 아쉽다. 현재는 주거공간 내의 가구를 제안하는데 신경을 쓰는 편이다. 최근 들어 개인의 취향은 선택을 좌우하는 강력한 힘이고, 한편으로 비용 증감의 중요한 요소다. 프로젝트 중 건축가의 제안이 수용되지 않는 경우도 다반사다. 그러나 우리가 신경 쓴 주거공간은 내부 마감과 조화를 이루고 높이와 폭, 재료, 마감 처리 등이 완성도 측면의 차이를 확연히 드러낸다. 그래서 우리는 조건이 허용하는 범위 안에서 작은 부분까지 제안하고 디자인해서 내부 공간의 완성도에 계속 힘쓸 것이다.
건축가가 인테리어 디자이너의 세밀함과 세련된 감각을 따라가지 못하는 면도 있지만, 주거공간 자체를 구축하는 전 과정을 계획하는 전문가로서 여건만 허락된다면 공간 에디터 역할을 해야 한다고 생각한다. 하지만 건축가가 모든 것을 디자인하고 만들어 내기에는 에너지가 모자라기도 하고 시스템상 힘든 점도 많다. 그래서 가구 디자이너, 컬러리스트, 인테리어 디자이너 같은 전문가와 협업하여 공간을 편집하는 작업을 이어가고 싶다.
구상하는 사무소 조직 형태는?
김샛별, 윤성영 5명 정도의 소규모 작업실로 유지하고 싶다. 프로젝트가 꾸준하게 있는 것이 아니다 보니 수익 구조가 불분명하다. 아직까지는 우리 두 사람이 각자 잘하는 영역을 맡아 진행하고 있다. 초기에는 현장에서 발생할 사건 사고에 미리 대비하고, 원하지 않는 비용 지출을 막는 것에 소홀했다. 지금은 일상적인 업무 속에서 늘 사전 대책을 세워 놓는 편이지만, 작은 사무소라는 체계상 여전히 어려운 부분이 많다.
하루하루가 스펙터클한 공사 현장, 일부 건축주의 갑질이 가장 큰 리스크였다. ‘공사판은 이판사판이니 늘 조심해야 한다’는 어른들의 말에는 틀린 점이 없었고, 지인의 소개만 믿고 접근했던 것이 판단 착오였다. 젊은 건축가는 이런 문제에 휘둘리기 쉽기 때문에 보호장치가 필요하다. 지금은 건축 전문 변호사에게 법률적 조언을 자주 받기도 하고, 큰 회사의 시스템을 참고해 우리 규모에 적용할 수 있는 부분을 조금씩 채워나가고 있다. 그리고 사소한 부분일지라도 매일 기록을 남기는 것도 우리가 할 수 있는 사전 예방책이다.
‘공간의 두께’와 볼륨의 의도: 공간 인지와 시각 효과
김상호 발표에서 ‘켜’를 이야기하면서 ‘공간의 두께’로 설명했다. 주변 지인들이 아에아 작업은 ‘켜가 많다’고 이야기하곤 했다는데, 굳이 다시 ‘공간의 두께’로 설명하는 이유가 있나? 켜나 공간의 두께로 얻으려는 효과는 무엇인가?
김샛별 우리 작업을 보면 창이 모두 외벽의 안쪽으로 마감된 것을 확인할 수 있다. 여기에는 창의 두께에서부터 사람의 시선이 머문다는 생각이 숨어있다. 그 시선 위에 공간이 겹겹이 쌓이는 현상을 ‘공간의 두께’라는 말로 표현했다. 단순히 레이어(켜)라기보다는 사람이 공간을 인지하는 느낌이랄까. 연속된 공간을 통해 시선은 다시 그 너머를 향하고, 종국에는 외부를 바라보게 된다. 그런 경험을 통해 내가 어떤 도시에 살고 있는지, 시간이 어떻게 흐르는지 느낄 수 있다. 한편, 경남 지역 사람은 뭔가 막힌 답답한 걸 싫어한다는 느낌을 받기도 했다. 그래서 시각적인 연속성을 형성하기 위해 많이 열어서 시야를 트는 목적도 있다.

김상호 듣고 보니 경남 사람에게 그런 성향이 있는 것 같기도 하다. (웃음) ‘켜’와 ‘공간의 두께’란 조금 다른 개념인 것을 알겠다. ‘켜’는 면의 중첩이고, ‘공간의 두께’는 일정한 폭을 두고 공간이 겹쳐진 것을 디자인하는 것이라고 이해했다. 이로써 풍경이나 시선의 처리를 얻을 수 있겠다.
또 한 가지 키워드가 볼륨이다. 내가 볼 때는 ‘켜’나 ‘공간의 두께’와 연관되는 단어 같다. 특히나 ‘볼륨의 조합’이란 설명을 많이 했는데, 사천 프로젝트의 후면이나 진주 프로젝트에서의 표현은 볼륨보다는 면인 것 같다. 볼륨을 표현하고 싶었던 것 같은데, 볼륨을 더 단순하게 드러낼 수 있는데도 그런 면을 만든 이유는 무엇인가?
윤성영 단순하게 하려고 했지만 상가주택의 특성상 상가 면적을 최대한 확보했다. 용적률을 줄임으로써 법규상의 주차 대수를 줄이고 1층 상가 면적을 크게 확보했다. 이처럼 법규의 틀 속에서 최대의 볼륨을 만들어야 한다. 건축주가 요구한 부분도 있었다. 본인의 건물이 이웃한 건물보다 높고 커야 했다. 이때 가벽은 유용한 요소다. 3m 정도 돌출되어 있으니까 남쪽 도로 면에서 보면 다른 건물보다 커 보인다.


지방 건축가라는 자의식이 있나?: 오히려 벗어나고 싶다
박정현 지방에서 작업하는 건축가라는 전제하에 이야기를 이어 왔다. 그런데 작업들을 보면, ‘서촌에 사무실이 있지만 경남에 프로젝트가 많다’고 해도 아무런 차이를 못 느낄 것 같다. 지금이 그런 시대다. 아키데일리와 디진 같은 웹진에 소개되는 건물을 봐도 한국인지, 스페인인지 모를 상황이다. 그렇다면 역으로 지방에서 활동하는 건축가라는 자의식은 어디에서 생기나? 제주도 정도를 빼면 우리 지방의 특색이랄 것이 없다. 막연하게는 지방 건축이 가능한가 라는 질문도 든다. 두 소장에게 지역 건축가의 정체성이 있는지 묻고 싶다.
윤성영 적어도 내겐 그런 자의식이 없다. 다만, 사무실을 열고 2년 정도의 시간을 보내고 나니 주변에서 그렇게 이야기하더라. 그래서 ‘내가 지방에서 작업하는구나’, ‘내가 지방에서 활동하는 사람이구나’란 생각이 들었다. 자괴감이 들 때도 더러 있다. 처음에는 지방에 내려와서 다양한 작업을 해보려고 했지만, 한편으로는 지방에서 벗어나고 싶은 생각도 강하게 든다.
김샛별 지방에는 아직 시스템이 미흡해 힘든 부분이 많다. 그래서 지금보다 조금 큰 도시로 옮겨 기반을 잡으면 좋겠다는 생각이다. 우리 SNS를 보고 부산에서 갓 개소한 건축가도 연락이 오고, 진주에서 실무 하는 건축가도 만나게 됐다. 그들과 이야기를 나눠 봤을 때, 지역성이 중요한 건 맞지만 상대적으로 건축문화 자체가 뿌리내리지 못한 상황이기에 젊은 건축가가 건축을 시작하기에 힘든 배경이라는 데 다들 공감했다. 지역마다 특색은 있겠지만, 오히려 그런 성격이 나쁘게 작용하는 경우도 있고, 안 좋게 보이는 경우도 있다. 지역성을 이야기하기에는 시기상조다.
지방 건축의 시장성은?: 초창기와 달리 현재 시장 상황은 침체
박정현 그렇다면 설계사무소의 시장성은 어떤가? 한의대나 신학대 졸업생도 어느 동네에서 한의원을 차릴지, 교회를 차릴지 이야기한다. 지방 건축 시장은 여전히 ‘집장사’들이 장악하고 있어서 건축가가 아직 제 몫을 다 못 하고 있는 상황 아닌가. 그런 의미에서 블루오션이 될 수 있을까?
김상호 붙여서 질문하면, 처음 아에아건축을 만났을 때 이쪽 지역을 중심으로 작업하겠다고 자신들을 소개한 게 기억난다. 자의식이 없다고 말했지만, 지역에서 건축가로서 작업하겠다는 의지가 있었던 것 같다. ‘지역성’과 ‘지역 베이스 활동’을 구분해야겠지만 어쨌든 그 출발은 지역 건축가란 의식이 있었지 않나?
김샛별 그때는 신도시 개발 붐이 한창이던 시기다. 건설 경기 자체가 호황이었기 때문에 어느 정도의 자금을 갖고 집을 짓거나 임대업을 해보려는 사람이 많았다. 그래서 비슷비슷한 건물들 사이에 다른 장면을 꿈꾸는 건축가들이 분명 있었다. 비록 소수지만 기존 건물들의 모습에 갈증을 느끼고 차별화된 디자인을 찾는 건축주도 있었다. 지금은 경기가 침체되었다. 다만, 이런 상황에서 건설로 이익만 추구하는 개발업자가 한번 필터링 되지 않을까도 생각한다. 그리고 시대 흐름에 따른 정책 변화가 필요하다.
윤성영 지금은 블루오션이 되기 어렵다. 시청 공무원들에게 들어보면 건축 허가 건수가 많이 줄었다고 한다. 대출 규제 등 이런저런 제약이 생기면서 시장은 열악해졌다. 적어도 아직은 블루오션이 아니라고 생각한다.
김상호 지방 건축(가)과 서울 건축(가)의 상호 발전적 관계를 어떻게 설정할 수 있을까?
김샛별 비교적 넓은 독자층을 확보한 건축 매체의 역할이 필요하지 않을까 생각한다. 주로 서울의 시점에서 주변을 보며 비교하는 관점이 아니라 지방의 입장에 초점을 맞추는 일도 필요하다. 다시 말해 지방 그대로의 모습을 보여주는 노력이 필요하고, 도시를 형성하는 유형의 요소뿐 아니라 그 속에 있는 무형의 요소까지 같이 소개하는 노력이 많아졌으면 한다. 또 지방 건축가가 서울에서 또는 서울 건축가가 지방에서 다양한 주제로 이야기를 나눌 수 있는 대화의 장이 많아져야 하지 않을까 생각한다.
인터뷰어 & 패널
- 김상호(정림건축문화재단 실장)
- 박정현(건축비평가 / 도서출판 마티 편집장)
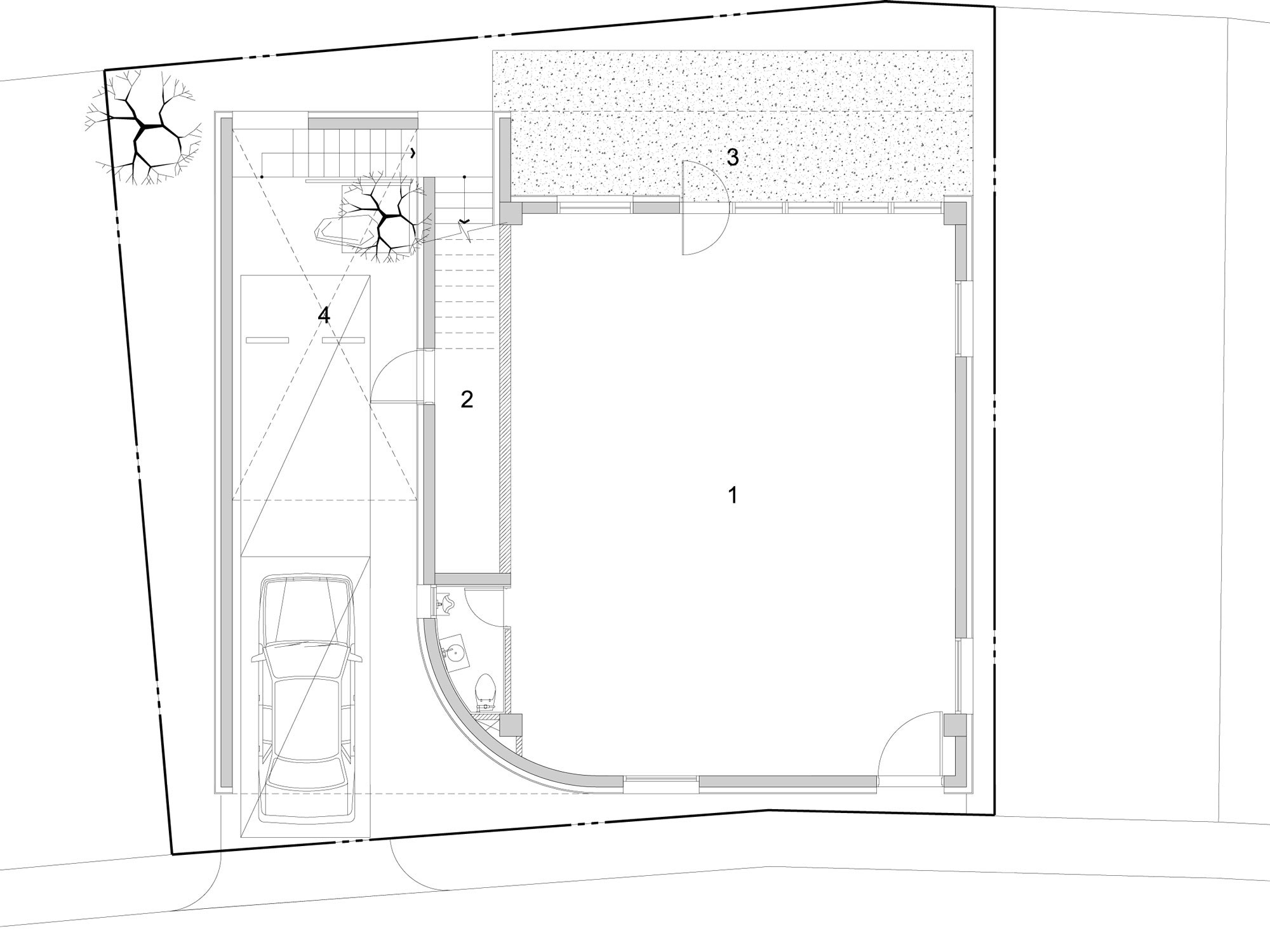
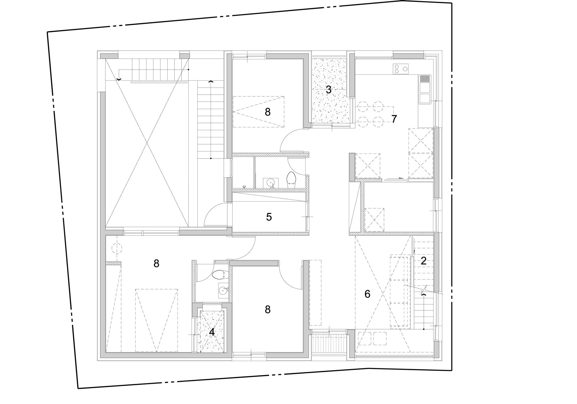
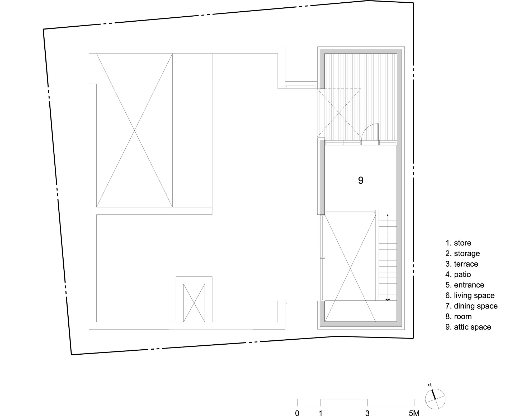
진주 상가주택 G1931-6




건축 개요
- 위치 경남 진주시 가좌동 1931-6
- 용도 단독주택 및 제 1종 근린생활시설
- 대지면적 215.9㎡
- 건축면적 128.87㎡
- 연면적 216.95㎡
- 건폐율 59.6897%
- 용적률 100.4863%
- 층수 지상 2층
- 구조 철근콘크리트조
- 외부마감 스터코플렉스, 골강판
- 내부마감 석고보드 위 벽지
- 의뢰방식 지인 소개
- 설계기간 2017.10–2018.2
- 공사기간 2018.3–2018.8
- 설계 김샛별, 윤성영
- 구조설계 한길구조
- 전기설계 영우엔지니어링
- 시공 리엔종합건설(이상민, 송구찬, 최준길, 김진희, 정혜란, 현석환) / 진드라이비트(스터코), 대호테크ENC(금속), LG대교하우징(창호), CPS공조(에어컨), 자성전기(전기), 플러스코리아(마루), 남우조경(조경)
- 감리 대흥건축사사무소
- 건축주 개인
아에아
분량7,544자 / 15분 / 도판 12장
발행일2019년 3월 25일
유형인터뷰
『건축신문』 웹사이트 공개된 모든 텍스트는 발췌, 인용, 참조, 링크 등 모든 방식으로 자유롭게 활용 및 사용할 수 있습니다. 다만, 원문의 출처 및 저자(필자) 정보는 반드시 밝혀 표기해야 합니다.
『건축신문』 웹사이트 공개된 이미지의 복제, 전송, 배포 등 모든 경우의 재사용을 위해서는 반드시 원 저작자의 허락을 받아야 합니다.



