이와임
이도은, 임현진
분량6,158자 / 12분 / 도판 10장
발행일2019년 3월 25일
유형인터뷰
2012년. 아름지기에서 주최하는 헤리티지 투모로우 프로젝트 공모전에 참여했다. 이도은과 임현진이 함께한 첫 번째 작업이었고, 우리는 ‘겹과 관계’에 대한 이야기를 제안했다.
2013년. 서촌의 작은 옥탑에서 ‘이와임’이라는 이름의 사무실을 시작했다. 세종시 소방서 설계 공모와 영주시 노인종합복지관 설계 공모에 참여했다. 겹과 관계라는 주제가 변주되며 이어졌고, 재료에 대한 고민이 덧붙었다. 겨울, ‘저집’이라는 젓가락 브랜드를 위한 전시 부스 디자인을 진행했다. 부유하며 변하는 이미지 위에 젓가락을 올려놓고 가상과 실상의 관계를 통해 젓가락의 가치를 드러내려 했다.
2014년. 건축가 이상래와 함께 동대문신발상가 옥탑방을 지역 재생의 거점 공간으로 바꾸는 작업을 진행했다. 이 도시가 가지고 있는 것을 몸으로 부대끼며 들여다보게 되었다. 동대문신발상가 작업을 계기로 〈최소의 집〉 전시에 참여했고, 최소에 대한 정의를 우리는 이렇게 말했다. ‘지금 우리가 가지고 있는 것들 / 그것들의 가치를 드러내 주는 작은 움직임’.
2015년. 사간동의 다가구주택 한쪽을 갤러리로 바꾸는 작업을 진행했고, 도일시장 정비사업과 나주잠사공장 리모델링 설계 공모에 참여했다. 관계에 대한 이야기는 방과 방, 건물과 건물, 안과 밖에서 이어졌다.
2016, 2017년. 비슷한 규모의 리모델링 작업이 이어졌다. 고쳐 쓰는 집이라 이름 붙인 일련의 작업을 진행하며 우리는 ‘관계’, ‘가능성’, ‘작은 건축’이라는 키워드에 집중했다.
2018년 다수의 공공 프로젝트에 참여하게 되었다. 다층화된 관계 속에서 작업이 진행되었고, 설득과 타협의 과정이 이어졌다. 건축의 윤리, 건축가의 태도에 대해 생각했다.
이와임
1990uao 런던사무실을 모태로 2013년 이도은과 임현진이 설립한 건축설계사무소다. 실재하는 것에 대한 직접적인 미적 체험에 깊이 관심을 가지고 있으며, 관계의 탐구를 통한 새로운 일상의 구축이란 모토를 견지하며 건축, 인테리어, 리노베이션 등의 공간디자인을 수행하고 있다. 이도은은 한국예술종합학교와 런던메트로폴리탄대학교에서 공부하였고, m.a.r.u.와 서아키텍스에서 실무를 익혔다. 임현진은 한양대학교와 서울건축학교에서 건축설계를 공부하였고, m.a.r.u.와 진아건축도시에서 실무를 익혔다. yiwayim.com

앞선 실무 경험에서 얻은 것은?
임현진 이종호 선생님은 대학교 때 튜터로 처음 만났다. 내가 이종호 선생님 이야기를 할 때 종종 쓰는 표현이 ‘사숙저인’이다. 직접 가르침을 받지는 않았으나 마음속으로 존경하고 스스로 따른다는 뜻이다. 많이 배우고 싶었는데 아쉽게도 길게 뵙지 못했다. 그 이후로 지면을 통해서나 공모전을 통해 선생님의 발자취를 계속 쫓아다녔다. 그러다 서울건축학교에서 다시 배울 기회가 생겼다. 배운 것은 디테일한 것보다는 큰 틀의 생각인데, 지금까지도 울림이 깊은 것은 ‘가능성’에 대한 이야기였다. “우리의 출발은 무엇인가의 결핍으로부터 치유를 향해 나아가려는 것은 아니다. 오히려 필요한 것은 있는 그대로의 모습으로부터 서로를 살릴 수 있는 사고의 시작이 가능할까를 조심스럽게 살피는 일일 것이다.” (서울건축학교 97/98 1쿼터 서혜림 이종호 스튜디오 설명 중) 이 메시지가 지금까지도 나와 우리 사무실의 밑바탕을 이루고 있다.
이도은 나는 대학 시절에 김종규 선생님한테 배우고, 졸업한 뒤 선생님 사무실에서 1년 남짓 일했다. 5년 정도 김종규 선생님 밑에 있었던 셈이다. 그분의 가장 큰 강점은 원칙에 있는 것 같다. 맞다는 생각이 들면 끝까지 고수한다. 그만큼 확신이 있기 때문에 주변에서 무슨 말을 해도 흔들림이 없다. 어떤 설계안이 나온 이유가 정확하게 있기 때문에 주변의 말에 흔들림이 없고 그것을 이리저리 바꿀 필요가 없지 않았나 싶다. 건축가로서 여러 가지 의견을 귀 기울여 듣는 것은 중요하나, 그것이 단순한 타협이 되어서는 안 되고 확신을 가지고 설득해야 함을 프로젝트를 한두 개 진행하면서 느끼고 돌아보게 된다. 건축주 의견 때문에, 법적 규제 때문에, 예산 때문에 바꾸었던 것들을 돌이켜 생각해보면 결국 아쉬움으로 남더라.
임현진 원칙이라는 건 고집이 아니라 하나의 기준이다. 다른 일도 마찬가지겠지만, 설계를 하다 보면 결정을 해야 하는 상황에 매 순간 직면한다. 원칙은 그때마다 판단할 수 있는 기준을 세우는 것이고, 그 기준을 끝까지 고수하는 것이다. 그래서 우리도 작업 초기에 그 기준을 세우고자 한다.
사무소를 연 계기는?
임현진 홈페이지 소개 글이 “1990uao 런던사무실을 모태로” 한다는 내용으로 시작하는데, 사무소의 시작은 이와 연관이 있다. 1990uao라는 설계사무소는 원래 서울에서 윤근주, 황정환 두 건축가가 시작한 사무소다. 이분들과 친분이 있었는데, 우리가 런던에 있을 때 사무소를 열면서 같이 해보자고 우리에게 제안해주었다. 물리적으로 멀리 떨어져 있는 데다가 우리 계획도 있다 보니 그 당시 당장 일을 같이하지는 못하더라도 기회가 되면 프로젝트를 같이 해보자는 취지에서 ‘런던사무실’이라는 이름을 붙여서 시작했다. 헤리티지 투모로우 프로젝트도 같이 참가했는데, 두 팀을 나누어서 진행했다.
그렇게 교류해 오다가 우리가 서울에 돌아올 때 합칠 계획을 세웠다. 그런데 우리가 귀국을 앞두고 있을 때 서울 사무실 상황이 달라져서 합치기 어렵게 되었다. 우리는 런던 생활을 정리하고 한국에 들어왔고, 이왕 마음먹은 거니까 같이 못 하면 우리끼리라도 하자는 생각에 이와임을 시작하게 되었다.
건축을 설명하는 언어의 거리감: 정교하게 다듬어야 할 숙제
정다영 개인적으로 건물 자체보다는 건물을 설명하는 말과 이미지에 더 관심이 있다. 발표를 들으며 그사이의 간극이 느껴졌다. 이와임은 내가 최근에 만난 젊은 건축가 중에서 보기 드물게 마당, 골목, 외부공간, 내부공간, 침투와 같은 앞세대가 많이 쓰던 어휘를 자주 사용했다. 옳고 그르다의 문제는 아니고, 오히려 그런 설명이 새롭게 다가온다. 학업과 실무 배경에 m.a.r.u.와 서울건축학교가 있어서인 것 같기도 하다. 지난해 국립현대미술관에서 열린 <종이와 콘크리트> 전시를 준비하면서 서울건축학교 자료를 많이 봤는데, 오늘 발표에 나온 을지로를 설명하는 내용이나 워크숍 장면, 인용 문구까지 그 느낌이 비슷하다는 인상을 받았다. 이와임으로 독립해 작업하면서 앞선 세대와 차이를 만들고 싶은 부분도 있을 텐데, 어떤 식으로 풀어나가는지 궁금하다.
박정현 붙여서 질문하면, 발표 중에 ‘작은 건축은 작은 행위이고 작은 것’이라고 한 이와임의 말은 시대의 언어인 것 같다. 트위터나 인스타그램에 오르내리는 ‘소확행’ 같은 것이다. 이런 말들은 이번 발표를 위해서 지난 작업을 돌아보고 정한 것인지, 그게 아니라 이와임이 처음부터 추구한 것이라면 요즘 유행하는 말로 ‘자신을 위로하는’ 언어로 들리기도 한다. 사용한 어휘와 언어에 관해 설명해주길 바란다.
임현진 설명한 키워드가 한순간에 만들어진 건 아니다. 거슬러 올라가면 학교에서 공부하던 때부터였다. 그게 선생님들에게 들어서 생긴 것인지는 잘 모르겠지만, 그때부터 지금까지 계속 고민해온 것이다. 그래서 우리 말 속에 앞세대의 단어가 언뜻 비치는 것 같기도 하다. 하지만 그때 했던 답과 지금 하는 답은 다를 수밖에 없다. 질문이 놓인 상황이 바뀌기 때문이다. 우리는 ‘지금 이 시대, 이 땅의 건축’을 고민하고 있다. 쓰는 단어는 같을지 몰라도 그 안에 담긴 생각과 결과는 다르다고 믿는다. 발표를 준비하면서 지난 작업을 쭉 살폈는데, 우리가 쓰는 말의 뉘앙스도 시간에 따라 바뀐다는 걸 알았다. ‘일상’, ‘관계’, ‘작은 건축’에 대한 우리 둘의 생각도 다르다.
이도은 나는 논리적인 사고를 잘 못하는 편이다. 단어로 말하는 걸 썩 좋아하지도 않는다. 말을 하기 위해 키워드를 정리했지만, 건축을 하는 우리가 계속 고민해야 하는 이야기라고 생각한다. 이 키워드들은 근본적인 것이므로 시대가 달라졌다고 바뀔 건 아닌 것 같다. 단순히 ‘관계’, ‘일상’ 같은 단어로 설명 안 되는 것이 현실에 너무 많다. 나는 건축하는 사람으로서 진정성 있는 태도를 가져야 한다고 생각한다. 트렌드를 좇거나 드러내는 일에는 재주도 관심도 별로 없다.

청중A 작업들을 통과하는 맥락이 있다면 어떤 것일까? ‘관계’라는 추상적인 단어가 아니라 실질적인 단어로 설명해줄 수 있나?
임현진 홈페이지에 써놓은 글귀인데, ‘관계 탐구를 통해서 가능성을 찾으려고 한다’. 이 키워드가 우리만의 특별한 것은 아니다. 많은 사람이 ‘관계’, ‘일상’, ‘작은 건축’, ‘최소의 개입’을 이야기한다. 하지만 어떻게 해석하느냐에 따라서 결은 다르다.
김상호 (후속 인터뷰 중) 지난 발표 자리 후에 패널 모임에서, 이와임이 본인들의 작업을 설명하는 언어나 표현이 조금 더 정교해졌으면 좋겠다는 의견이 있었다. 관계나 일상 같은 포괄적인 단어로 이와임의 작업을 설명했을 때 잘 와닿지 않았다. 정작 설명을 들어보면 일상적인 의미 이상의 특별한 지향점을 담고 있는 것 같은데 정확하게 표현되지 않는 것 같다.
임현진 그렇다. 단어 자체는 건축가들이 보편적으로 공유하는 것이지만, 그것을 어떻게 해석하고 작업 안으로 가지고 오는가에 따라 결과물에서 차이가 나타난다. 발표 때는 우리가 그 단어들을 해석하는 과정을 보여주려고 했다. 많은 건축가가 사용하는 ‘관계’라는 키워드로 시작은 했지만, 결론에서는 차이점이 드러나지 않았을까. 그런데 그것을 새로운 단어로 정의하는 것이 지금 단계에서는 좀 어려운 것 같다.
김상호 물론 그건 비평가나 이론가의 숙제이기도 하다. ‘우리가 이해하는 바로는 이와임이 말하는 관계는 이러저러한 관계다’라는 걸 찾아내는 것이 이론과 비평의 역할인 것 같다.
임현진 그게 우리한테도 다시 도움이 될 것 같다. 우리에게도 생각을 더 정교하게 다듬어나가야 할 숙제는 분명 있다. 이런 질문을 받으니 우리도 부지불식간에 습관적으로 사용해오던 말들을 다시 짚어볼 필요를 느낀다.
김상호 그런 생각의 계기를 만든 것만으로도 모두에게 큰 수확이다.
두 사람의 역할분담: 과도기
김상호 파트너로 일하는 두 분은 어떻게 역할분담을 하고 있나? 작업에 접근하는 태도나 관점에 차이가 있나?
이도은 사실 여태까지 역할 분담의 경계가 모호했던 것 같다. 한꺼번에 진행되는 프로젝트가 많지 않다 보니 항상 둘이 붙어서 많은 걸 이야기하면서 풀었던 것 같다. 그러다 직원이 생기고, 프로젝트도 동시에 여러 개 진행하다 보니 이것저것 부딪히는 일이 생기고 다투게 되더라.
임현진 프로젝트 초반에 계획 방향을 함께 잡으면서 많이 다툰다. (웃음) 바탕이 되는 생각은 서로 공유하고 있지만, 그것을 구현하는 방법에서 서로 다른 의견이 나오면 치열한 토론 상황이 발생한다. 이 단계를 무사히 넘겨 계획안이 어느 정도 정리되면 서로 잘할 수 있는 것을 나눠서 하는 편이다. 역할 분담을 위한 과도기인 것 같다.
이도은 화가 날 때도 있지만 (웃음) 생각해보면 이야기를 많이 하고 서로 논쟁해서 나온 결과가 더 좋더라. 우리 둘은 뇌 구조가 서로 다르지 않나 싶다. 임 소장은 논리정연하고, 나는 직관적이고 감각적으로 생각하는 편이다. 그래서 머릿속의 말을 정확히 잘 전달하지 못하는 것 같다. 어떨 때는 임 소장이 내 이야기를 하나도 못 알아들을 때도 있다.
김상호 실현되지 않는 계획안에서는 논리적이고 이성적인 느낌이 전해지는 반면 완공작에서는 감각적이고 직관적이란 느낌을 받았다. 보통 공모안이나 계획안에 사무소의 성향이 투영되는데, 그럼 이와임은 어디쯤 서 있나?
임현진 예리한 지적이다. 지금 많이 고민하는 점이다. 리모델링 작업을 쭉 해오고 있는데, 그 일의 특성상 현장에서 예기치 못하게 바뀌는 일이 많이 생긴다. 건축주, 시공자, 비용 등 이런 무수한 관계 속에서 우리는 어떤 포지셔닝을 취할지, 지킬지 타협할지 고민한다. 어떤 위치에 서느냐에 따라 결과물이 바뀐다. 지금은 그 위치를 고민하는 단계다.
인터뷰어 & 패널
- 김상호(정림건축문화재단 실장)
- 정다영(국립현대미술관 학예연구사)
- 박정현(건축비평가 / 도서출판 마티 편집장)
메밀꽃필무렵


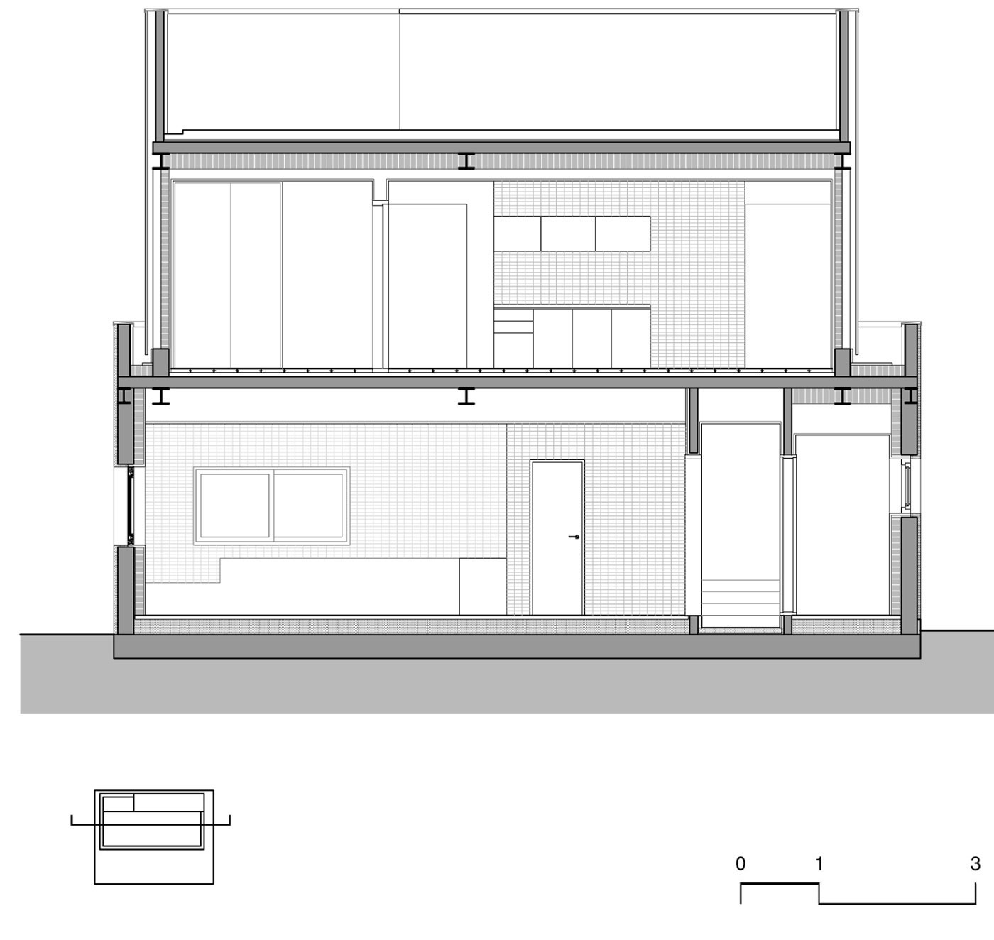
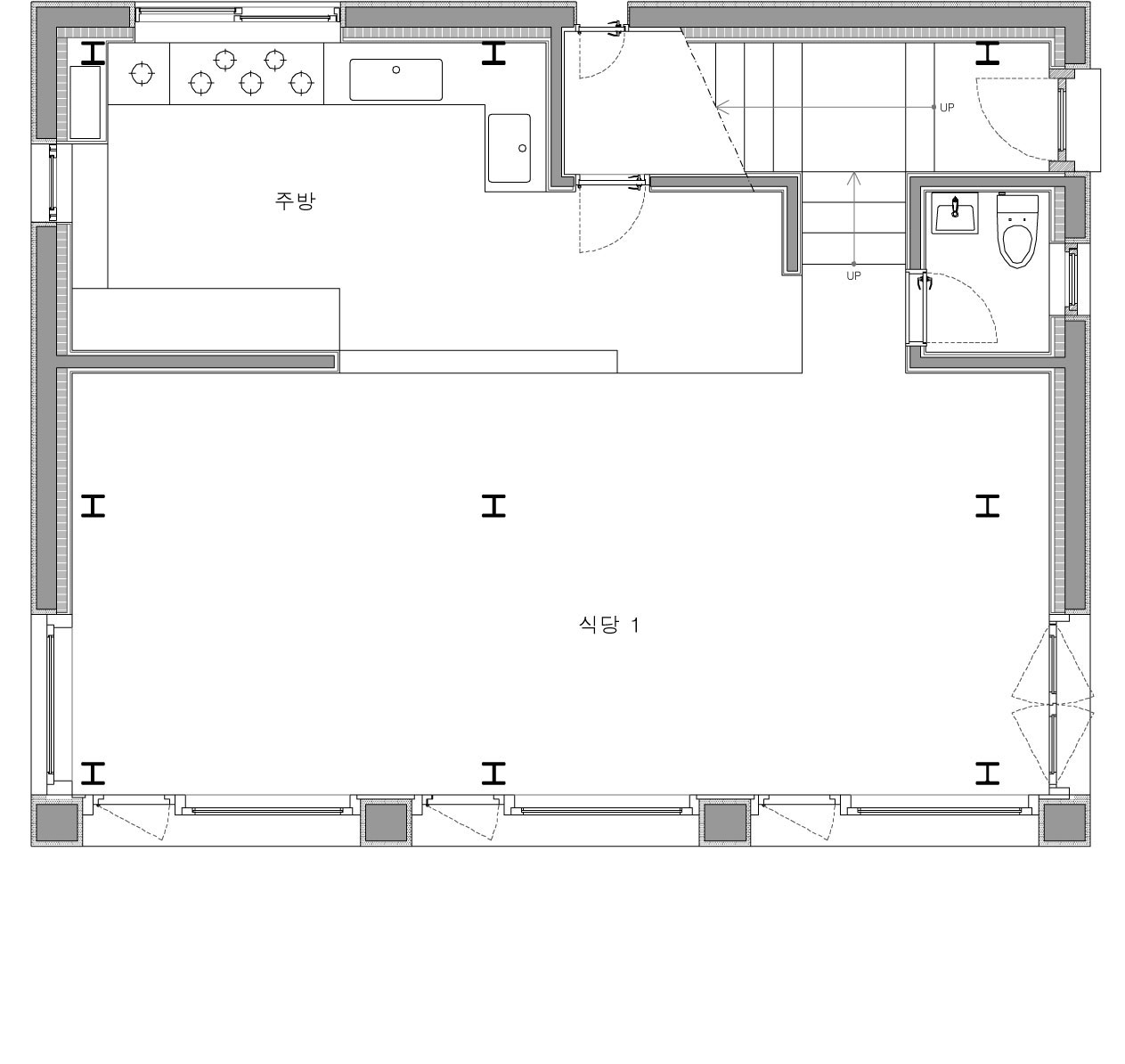
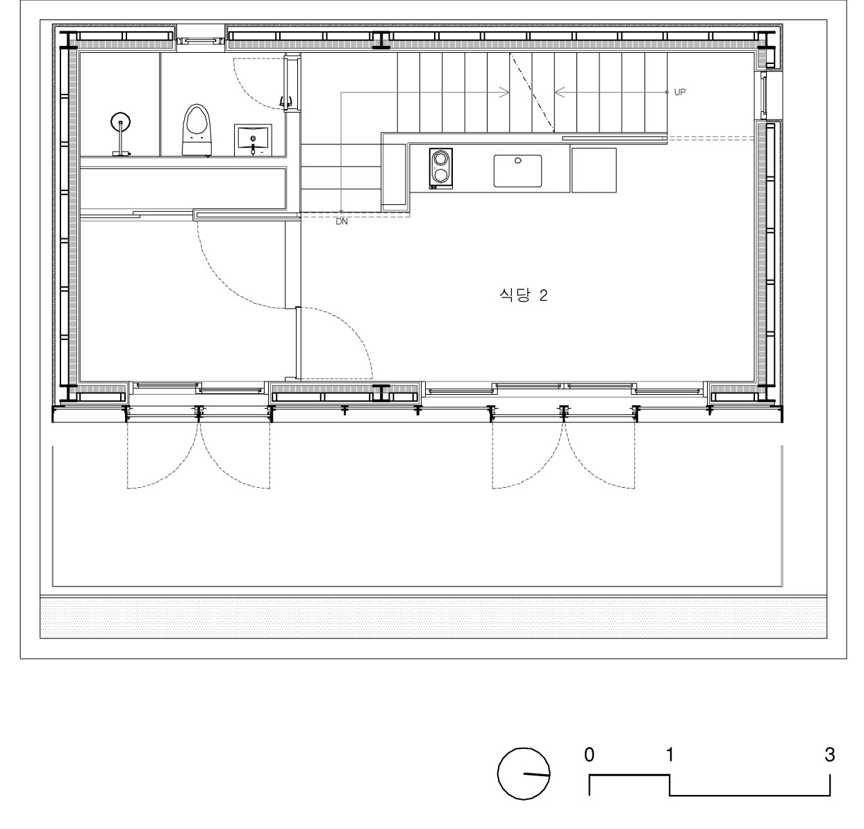
건축 개요
- 위치 서울시 종로구 통의동 7-23
- 용도 제2종 근린생활시설(일반음식점)
- 대지면적 89.3㎡
- 건축면적 79.7㎡
- 연면적 118.88㎡
- 건폐율 88.54% (기존)
- 용적률 133.12%
- 층수 지상 2층
- 구조 철골구조
- 마감재료 종석미장, 화강석
- 설계기간 2017.7–11
- 공사기간 2017.11–2018.4
- 설계 이도은, 임현진, 백도현
- 구조설계 은구조
- 기계설계 청림설비
- 전기설계 다우티이씨
- 시공 지음
이와임
분량6,158자 / 12분 / 도판 10장
발행일2019년 3월 25일
유형인터뷰
『건축신문』 웹사이트 공개된 모든 텍스트는 발췌, 인용, 참조, 링크 등 모든 방식으로 자유롭게 활용 및 사용할 수 있습니다. 다만, 원문의 출처 및 저자(필자) 정보는 반드시 밝혀 표기해야 합니다.
『건축신문』 웹사이트 공개된 이미지의 복제, 전송, 배포 등 모든 경우의 재사용을 위해서는 반드시 원 저작자의 허락을 받아야 합니다.





