김효영건축
김효영
분량7,310자 / 14분 / 도판 8장
발행일2019년 3월 25일
유형인터뷰
살아 있는 것
건축은 이런저런 이유로 자유롭지 못하다. 건축주의 목적, 땅의 여건, 각종 법규와 제약, 무엇보다 비용과 자본의 논리, 건축이 만들어지는 과정은 항상 이러한 조건들에 종속적이어서 각각의 상황에 적당히 대처하는 것만으로도 벅차다. 도시를 빼곡히 메운 건물들이 용적률 게임을 하며 그 틈 안에서 저마다의 해법을 찾아내 비집고 서 있는 모습이 우리 시대를 단적으로 드러내는 것도 같다. 그러나 우리는 건축이 비바람을 막고 문제를 해결하는 데서 그치지 않고 거기서 더 나아갈 때 더 큰 의미가 있다는 것을 안다.
지금 우리 사회는 사람과 건축의 관계에서 서로 큰 상처를 입은 것만 같다. 그래서 서로를 신뢰하지 못하고 간섭받기 싫어하며 어쩔 수 없이 맺어야만 하는 관계를 최소로 유지하고자 한다. 그러나 상처를 무릅쓰지 않고 서로에게 다가갈 방도는 없다. 건축이 사람에게 더 깊게 관여하고자 손을 내밀고 말을 걸어올 때 우리는 건축에 대해, 다른 무언가에 대해, 또는 우리 스스로에 대해 느끼고 생각할 수 있다.
건축이 사람에게 적극적으로 다가가는 존재가 되기 위해서는 감정이입이 필요하다. 이때 감정이입은 건축주나 경험자에 대한 것이 아니라, 그 건축물이 만들어지는 이유와 목적, 시대와 환경 등의 조건 사이에서 태어나 살아가야 할 존재로서의 건축에 대한 것이다. 나는 감정이입을 통해 건축을 ‘살아 있는 것’으로 대하며, 그 존재가 갖게 될 성격을 생각하고, 그것을 드러내 표현하려고 노력한다.
성격을 찾는 과정은 늘 조심스럽지만 직관적이다. 개인의 인격이 환경과 경험으로만 설명될 수 없듯 건축에 주어지는 성격은 그 배경과 상황을 바탕으로 하지만 다분히 자의적이고 충동적이다. 다름을 바탕으로 한 관계 맺음을 목적으로 하고 있어서 공통의 유형과 사례에서 도움을 얻긴 하지만, 건축의 일상성을 넘어서기 위해 강조되고, 대비되고, 과장되어 표현되기도 한다. 작업의 전환점이 되었던 울산 바닷가벽집에서부터 그 이후의 작업들이 어떤 성격을 드러내며 어딘가 의도된 불편함이 있는 것은 서로를 주목하기를 바라기 때문이다. 그 낯선 지점이 새로운 관계를 위해 다시 바라보아야 할 곳이다. 이 지나침이 낯섦을, 낯섦이 바라봄을 이끌어주기를 기대한다. 마치 첫 연애의 서툶처럼 어설프지만 진심 어린 요청의 손짓과 말이 지금의 간극을 뛰어넘어 관계를 열어 주는 출발이 되리라 믿는다.
김효영건축사사무소
김효영은 단국대학교와 경기건축전문대학원에서 공부하고 여러 건축가의 아틀리에에서 실무를 쌓은 후 김효영건축사사무소를 개소하였다. 건축이 만들어지는 상황 안에서 성격을 찾아내고 표현하는 데 집중하며, 민간과 공공에 걸친 작은 규모의 프로젝트들을 수행하고 있다. 최근 작업으로는 울산 바닷가벽집, 자람터어린이집, 서전고등학교그늘집(꿈꾸는환경학교), 연대 앞 지하보도 창작놀이센터 등이 있으며, 2012년 영주시 공공건축가로 활동했고, 현재 서울시와 세종시 공공건축가로 활동하고 있다. khyarchitects.com

앞선 실무 경험에서 얻은 것은?
김효영 김광수 소장님과 한동안 일했는데, 늘 건축가이면서 동시에 예술가 같은 느낌이 있었다. 일을 할 때는 감성적인 측면에서는 나와 다른 부분도 있었지만, 의미를 건드리는 방식이 내게 큰 자극이 되었다. 항상 의미를 형태에 담으려고 했고, 그 의미를 건축 어휘로 표현하려고 했다. 그 점이 프로젝트에 참여하는 입장에서도 재미있었고, 내게 큰 영향을 주었다. 다른 분들한테서도 많이 배웠지만, 특히 김광수 소장님 사무소가 독립하기 직전에 일했던 곳이기도 하고, 가장 오래 있었던 곳이라서 아무래도 그 영향이 크게 느껴진다.
사무소를 연 계기는?
김효영 단국대에서 강의하던 시기에 강태웅 교수님과의 인연이 중요한 계기였다. 그분이 운영해오던 사무실을 한 번 재정비하던 시기에 같이 일해보자는 제의를 받았다. 고민 끝에 좋은 기회일 수도 있겠다는 생각에 김광수 소장님 사무소를 나와서 합류하게 되었다. 언젠가는 독립을 하겠다는 생각이 막연하게 있었지만, 그런 구체적인 계기가 아니었으면 엄두를 내지 못했을 것 같다. 2011년부터 4년 정도 강태웅 교수님과 함께 사무소를 꾸렸는데, 사무소 운영상의 문제로 따로 독립해 나오게 되었다. 그래서 지금 김효영건축사사무소를 시작한 데에는 어떤 큰 결심이 있었던 게 아니라 상황이 그렇게 전개되었다. 돌이켜보면 첫 취업 때나 이직 때도 그랬고, 스스로 의욕적으로 움직였다기보다는 물 흐르듯 흘러가다 보니 여기까지 오게 된 것 같다.
울산 바닷가벽집 작업을 기점으로 작업 태도가 많이 달라졌다. 회사에 소속되어 움직일 때와 독립해서 움직일 때의 마음가짐이 달라지기도 했다. 회사 일은 의욕적으로 했음에도 불구하고 거기에 감정이 실리지는 않았던 것 같다. 지금은 작업에 조금 더 감정이입을 하려고 노력한다. 당분간은 이런 마음이 지속될 것 같다. 힘이 닿는 데까지는 의식적으로 더 깊이 몰입하고 싶다.

바닷가벽집 개념 드로잉 
바닷가벽집 모형 사진
특기나 지향점이 있다면?
김효영 새로운 기술에는 전혀 관심이 없다. 다만 어떤 형식을 갖추기 위해 필요한 기술적 측면에는 늘 관심이 있다. 벽돌 개수까지 세서 치밀하게 치수를 맞추고 싶어 하는 성격이다. 그 욕심이 아직 현장에까지 그대로 이어지지는 못하고 있다. 유려한 디테일을 만들고 싶은 것은 아니다. 예를 들어, 창의 크기를 결정할 때도 재료가 서로 딱 맞아떨어지도록 치수를 맞추는 식이다. 그런 건축의 바탕을 제대로 갖추려고 한다.
구상하고 있는 조직 형태는?
김효영 사실 조직적인 체계는 부족한 편이다. 필요 없다고 생각하는 것은 아닌데, 어떻게 해야 할지 잘 모른다. 그래서 가능하면 작은 규모의 프로젝트를 하면서 조직도 작게 유지하고 싶다. 큰 프로젝트를 하려면 조직 면에서 갖춰야 할 것이 많아질 텐데, 체질상 그렇게까지는 못할 것 같다. 일이 없으면 좀 놀기도 하면서, 자유롭게 일하는 편이다. 팀을 꾸릴 때에도 엄격한 기준이 있기보다 같이 일하고 싶은 사람인지를 먼저 고려한다.
초현실주의에 대한 관심: 낯섦의 건축
김효영 현대 예술의 속성을 가진 모든 장르는 초현실주의의 낯섦의 효과에 빚을 지고 있다고 생각한다. 요즘은 그 낯섦이 쉽게 일상적인 것이 돼버리곤 하는데, 특히 건축에서는 그걸 막을 방법이 없다. 물론 ‘충격 효과’만으로 건축 작업을 할 수는 없다. 하지만 마그리트의 낯섦의 방식은 좀 다르다고 생각해서 관심 있게 봤다. 그것은 기괴한 형태에서 오는 낯섦이 아니라 일상적인 것의 관계를 어떻게 만드느냐에 따라서 ‘관계의 낯섦’을 만들어낸다. 그래서 그것이 단번에 소비되고 끝나는 것이 아니라 지속되는 느낌을 받았다. 일상성을 전제로 만든 낯섦이다. 건축에서도 그런 효과를 만들 수 있으리라 봤고, 그 관심이 지금까지 이어지고 있다.
청중A 건물에 가보면 실제로 낯설게 느껴지나?
김효영 보는 사람에 따라 다른 것 같다. 사실 나는 계속 과장하고 싶다. 웬만해서 건축으로는 낯선 무언가를 만들고 지속시키기 어렵다. 건물은 금방 일상이 돼버리기 때문이다. 그래서 더 과장하려고 노력한다. 대비와 과장을 통해서 강조해야 건축가로서 실현하고자 한 의도가 겨우 드러난다.
형태 어휘: 성격을 부여하는 것
임진영 김효영 소장님의 작업은 자람터어린이집을 통해서 처음 접했다. 거기서 보이는 형태 어휘가 어린이집 때문으로 생각하고 가볍게 넘겼던 것 같다. 그런데 오늘 발표를 보면서 이런 어휘를 의식적으로 반복해서 쓴다는 것을 알았다. 이런 형태 어휘를 활용하는 이유가 궁금하다.
김효영 형태를 통해 어떤 성격을 드러내고 싶은데, 막상 손에 잡히는 어휘랄 게 너무 없더라. 자람터어린이집을 보고 포스트모던이라고 이야기하는 사람도 많다. 원형 창, 삼각형 창 같은 것을 하나만 써도 그렇게 인식돼버릴 정도로 지금 우리가 가진 건축 어휘라는 것이 정말 보잘것없다. 그렇다 보니 어떤 성격을 부여하고 싶을 때 반복적인 형태를 사용하지만, 사실 사각형 창과 구별되는 어떤 것일 뿐이다. 그런 어휘를 더 많이 만들고 싶고, 익숙해지는 어휘들도 생기면 좋겠다.

청중B 교류하는 건축가 집단 안에서 주고받는 언어도 있는 것 같다. 소장님이 개인적으로 친하게 지내는 aoa 아키텍츠의 건축 언어들도 공유되는 느낌이 든다. 서로 친한 건축가들이 서로의 언어를 공유하며 작업하다가, 나중에 각자의 방향으로 심화 발전되기도 한다. 어떻게 보면 지금껏 한국 건축에서 볼 수 없었던 새로운 언어들이 건축가들의 교류 속에서 생성되고 있는 것 같다.
김효영 매우 중요한 부분이다. aoa의 서재원 소장님과 친한 사이여서 건축 이야기를 많이 나눈다. 작업 중에 서로 의견을 주고받기도 한다. 최종 관심사는 서로 조금 다르다. 하지만 그 방법론을 공유하고, 영향을 주고받고, 지식과 정보를 배우기도 한다. 개인적으로는 aoa의 팬이기도 해서 유사한 측면이 분명히 있다. 그래서 더 구분 지으려고 할 만큼 내게 큰 영향을 주는 사람이다.
청중B 서로 친하면서도 긴장하게 만드는 관계가 아닌가 싶다. 그렇게 더 발전해가면 좋겠다. 대화 상대 없이 혼자 싸우는 게 아니라 서로 피드백할 상대가 있다는 자체가 즐거운 일 같다.
김효영 맞다. 낯선 길을 용기 내서 가고 있는 것이라서 한편으로는 무섭기도 하다. 그런데 같은 방향을 지향하는 동료가 있다는 것은 든든하고, 그런 사람들이 늘어나서 더 많은 이야기를 나눌 수 있으면 좋겠다.
존 헤이덕: 잠재적 레퍼런스
배윤경 발표 내용 중에 다른 건축가의 작업들도 레퍼런스로 보여줬고, 그 영향이 실제 작업에서도 느껴졌다. 내가 아는 한 소장님 작업의 레퍼런스에서 빼놓을 수 없는 것이 존 헤이덕인 것 같은데, 오늘 발표에서는 언급하지 않았다. 이유가 있나?
김효영 헤이덕에 대한 지식이 너무 짧아서 언급하기 부끄러웠다. 헤이덕은 오늘 보여드린 여섯 개 작업 모두의 레퍼런스일 것 같다. 내 학창시절에는 해체주의가 끝물이었다. 한국에서는 여전히 철학책을 끼고 다니면서 읽히지도 않는 텍스트를 어떻게든 읽어보려고 했고, 그것이 멋있어 보이는 시절이었다. 지금은 그게 별로 유효하지 않다는 것이 증명되었는데 그걸 다시 꺼내 들기는 무리가 있다. 하지만 나름의 해석을 통해 받아들여도 좋다고 본다. 역사적, 철학적으로 철저한 분석을 통해 소화하면야 더 좋겠지만, 그렇게까지 하지 않아도 각 건축 작업에서 어렵지 않게 읽어낼 수 있는 것이 있다. 그렇게라도 접하는 것은 필요하다고 본다. 나 역시 헤이덕의 작업 목표를 명료하게 알지는 못하지만 내가 추구하는 작업 방향과 일치하는 면이 분명히 있다.
주류 미학: 거스르고 싶은 것
청중C 나도 김효영 소장님 작업을 좋아하는 일인이다. 작업을 소개할 때는 매우 감상적으로 이야기하는데 실제로 작업을 보면 ‘너무 서정적으로 바라보지마’라고 말하는 것이 느껴진다. 예를 들면, 사람들은 한옥의 처마 선을 조용히 감상하며 좋아할 텐데, 갑자기 옆에 다른 오브제가 확 들어와서 ‘좋아하지 말라니까’라고 하는 것 같다. 감상에 빠질 때쯤 갑자기 흔들어 깨우는 것 같은 느낌이다. 그 방법론이 매우 이질적인 요소를 붙이는 것이고, 그렇게 낯섦을 만드는 것 같다.
한국에서 주류 건축, 주류 미학이 있는 것 같다. 그것은 조용히 감상에 빠져들 수 있게 해주는 어떤 것이고, 직관적으로 쉽게 받아들일 수 있는 것이다. 주류 미학이 한국의 건축 씬을 계속 장악하고 있으면 건축이 빈곤해지기 때문에 소장님의 길을 응원하고 싶다. 감상에 빠지지 못하게 계속 메시지를 던지는 것이 지금 시대의 흐름이나 코드와도 일면 맞닿는 것 같고, 새로운 주류가 될 수도 있을 것 같다.
김효영 솔직히 말하면, 거기에는 개인적인 욕망이 있다. 뭔가를 흔들고 싶은, 잔잔한 곳에 파장을 일으키고 싶은, 정돈된 장면을 흩트려 놓고 싶은 욕망이다. 눈에 예뻐 보이고 서정적인 설계안을 결정한 적은 단 한 번도 없다. 눈에 거슬리지 않는 것, 그냥 미끈하게 흘러가는 것을 경계한다. 의식적으로 다른 것을 만들고 싶어서 일 수도 있지만, 그냥 쉽게 소비되어 버리는 것에 대한 불안감도 있다.
청중D 형식의 충돌을 싫어하는 사람은 건축가다. 대중들은 싫어하지 않는다. 어린이집의 창이 이렇게 저렇게 열리는 것을 좋아하고, 저런 입면을 보면서 마그리트의 그림을 연결 짓지 않는다. 버섯이 하늘에서 떨어지는 것 같고 뭔가 연상이 돼서 흥미로운데, 공간의 쓰임에도 크게 문제가 없으니 싫어할 이유가 없다.
한국 건축가들이 공유하고 있는 언어나 취향이 너무나 한정적이다. 오히려 우리 앞선 세대 건축가들의 취향이 풍부했다. 지금 우리는 쪼그라들었다. 그런 면에서 김효영 소장에게 응원을 보낸다.
앞세대와의 구분: 우회적으로
박정현 레퍼런스를 많이 보여주는 건축가로 한국에 처음 등장한 사람이 승효상, 민현식이다. 그들의 이미지도 다종다양했다. 승효상 선생은 요제프 올브리히와 아돌프 로스가 하나의 글에서 같이 등장할 수 있다. 그들은 서로 주적 관계다. 그럼에도 불구하고 상극을 봉합하는 방법이 승효상 선생에게는 윤리적 테제였다. 그것이 바로 ‘빈자의 미학’과 ‘보이드’였다. 그 윤리적 입장 안에서 나머지 차이는 부수적인 것, 도시는 부정되어야 하는 것이었다. 2000년대에 들어 조민석과 최문규가 등장해 한국의 대도시 서울을 인정하는 태도를 보였지만, 여전히 주류 건축 담론 내부에 머물렀다.
그런데 서재원, 김효영 소장님의 작업과 이야기를 듣고 나서 이제 처음으로 한국의 버내큘러를 그대로 건축에 갖고 들어오는 건축가가 등장했다는 생각이 들었다. 레퍼런스 이미지 중에는 건축가의 작업 말고 도시 풍경을 그대로 가져온 것들이 있었다. 그런 면에서 질문하자면, 본인의 작업이 한국 건축의 세대론 속에서 작동하는 지점이 있다고 생각하는지, 본인이 이전 세대와 다른 건축가라는 자의식을 평소에 갖고 있는지 궁금하다.
김효영 잠재적으로 갖고 있는 것 같다. 이전 세대와 굳이 구분지어 ‘나는 다르다’고 명시적으로 생각하지는 않지만, 방법론에 잠재되어 있는 것 같다. 하지만 정면승부는 아닌 것 같고, 우회적으로, 게릴라식으로 하고 있다.
한국의 버내큘러는 인식하고 있지 않다. 어떤 프로젝트에서 내 이야기에 도움이 된다면 기꺼이 갖고 들어올 수 있는 정도의 태도인 것 같다. 그것을 어떤 주제로 꺼내기는 민망하다. ‘과거가 있기 때문에 우리가 존재하는 것이기도 하지만, 우리가 역사를 평가하지 않으면 그것도 의미가 없다’는 말에 공감한다. 과거를 규범화하거나 가치 없는 것으로 여길 것은 아니라고 본다. 지금 여기에서 그것을 어떤 가치로 인식하고 사용하는지가 더 중요하다고 생각한다.
인터뷰어 & 패널
- 김상호(정림건축문화재단 실장)
- 임진영(건축전문기자 / 오픈하우스서울 대표)
- 배윤경(건축 칼럼니스트)
- 박정현(건축비평가 / 도서출판 마티 편집장)
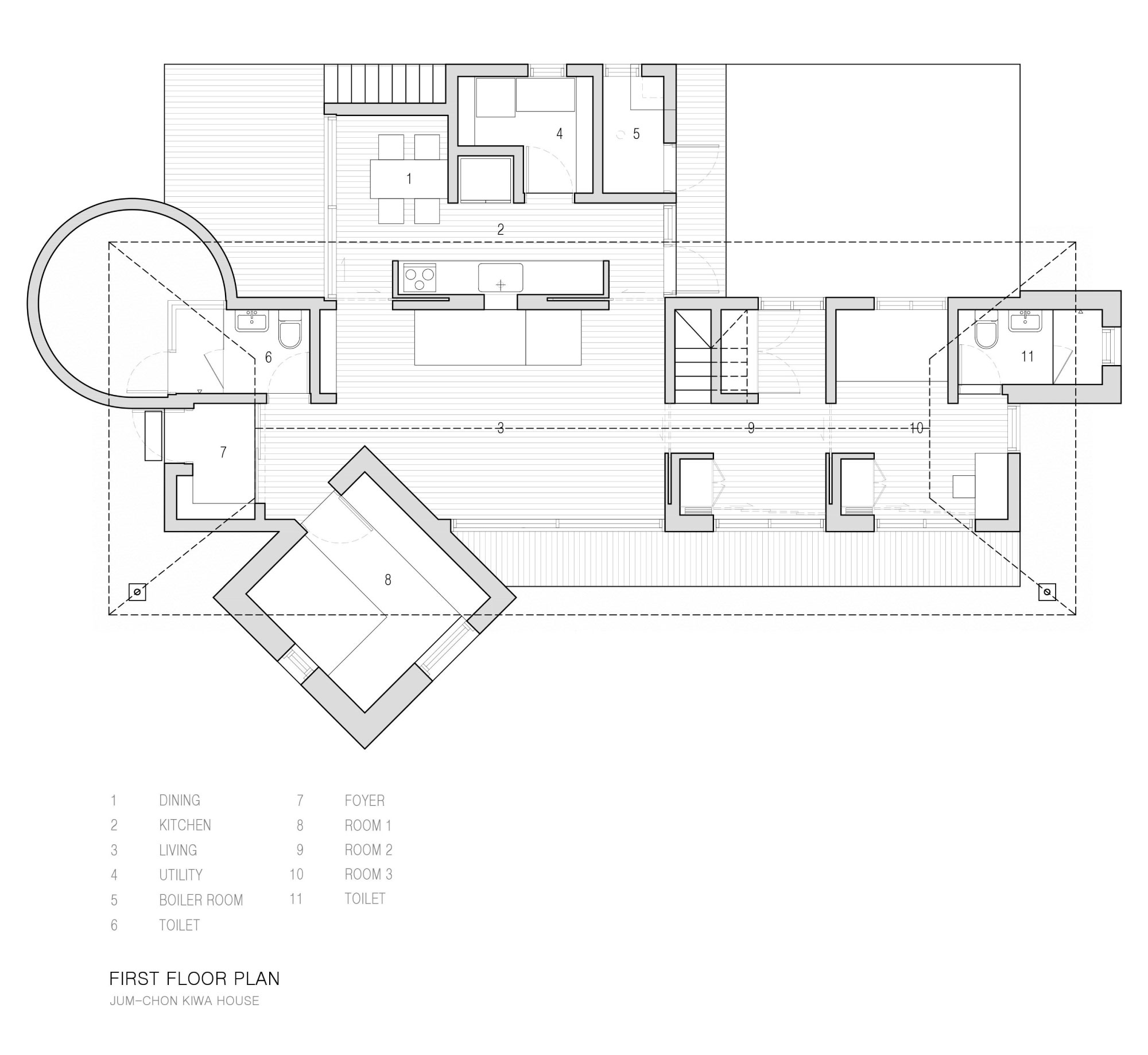
점촌 기와올린집




건축 개요
- 위치 경북 문경시 흥덕동
- 용도 단독주택
- 대지면적 513㎡
- 건축면적·연면적 99.46㎡
- 건폐율·용적률 19.36%
- 층수 지상 1층
- 구조 목조
- 마감재료 유약기와, 비소성흙벽돌, 스타코, 삼중유리 알루미늄 시스템 창호
- 설계 김효영, 강민수, 이소정, 김예림, 정희철, 심형선
- 시공 플러스
- 건축주 개인
김효영건축
분량7,310자 / 14분 / 도판 8장
발행일2019년 3월 25일
유형인터뷰
『건축신문』 웹사이트 공개된 모든 텍스트는 발췌, 인용, 참조, 링크 등 모든 방식으로 자유롭게 활용 및 사용할 수 있습니다. 다만, 원문의 출처 및 저자(필자) 정보는 반드시 밝혀 표기해야 합니다.
『건축신문』 웹사이트 공개된 이미지의 복제, 전송, 배포 등 모든 경우의 재사용을 위해서는 반드시 원 저작자의 허락을 받아야 합니다.