空間에서 共間으로 – 공공일호, (구)샘터사옥 리노베이션
조재원
분량9,589자 / 19분 / 도판 27장
발행일2018년 7월 27일
유형작업설명
1979년 건축가 김수근의 설계로 완공된 샘터사옥은 한 회사의 사옥임에도 사유지인 건물 1층에 길을 내어 공공 통로를 두고 지하와 저층부에는 대학로 문화와 함께 호흡하는 프로그램들을 유지해왔다는 점에서 건축적·도시적 가치가 크다. 샘터사옥은 올해 새 소유주 공공그라운드를 만났다. 공공그라운드는 건축사적으로, 도시사적으로 의미 있는 오래된 건축물의 상징적 가치를 사회적 자산으로 본다. 한편으로는 지키고 다른 한편으로는 활용함으로써 미래를 위한 사회적 가치를 생산하는 사용자들의 열린 플랫폼으로 개발하는 일을 꿈꾼다. 공일스튜디오가 건축가로 참여한 샘터사옥 리노베이션은 이런 아젠다를 실행에 옮기는 첫 프로젝트(공공일호)로서 의미가 크다. 그래서 공일스튜디오와 공공그라운드는 함께 샘터사옥의 리노베이션 과정을 기록하기로 했다. 이를 통해 이곳에 생겨날 새로운 생태계가 이전의 역사와 전환의 과정을 기억하고 새로운 문화의 바탕으로 삼기를 희망한다.
40년 가까운 시간 동안 벽돌과 담쟁이를 두른 외관은 예나 지금이나 크게 달라진 것이 없어 보이지만, 건물은 내적·외적 동인에 대응하며 시간을 제 몸에 새겨왔다. 마치 암호처럼 새겨진 그 시간을 풀기 위한 첫 단계는 샘터사로부터 건물의 원도면 등 건물과 관련된 지난 기록들을 전달받고, 건물이 거쳐온 여러 변화 속에서 지켜온 것에 대한 이야기를 듣는 일이었다. 공간이 작성했던 건물의 신축 원도와 이로재가 계획했던 2012년도 증축 도면과 자료, 그리고 그 사이에 있었던 많은 변경 자료를 읽었다. 그 일은 지금 건물의 거친 단면들을 ‘원래 그렇다’는 설명 대신 이야기로 촘촘하게 잇는 일이었다.
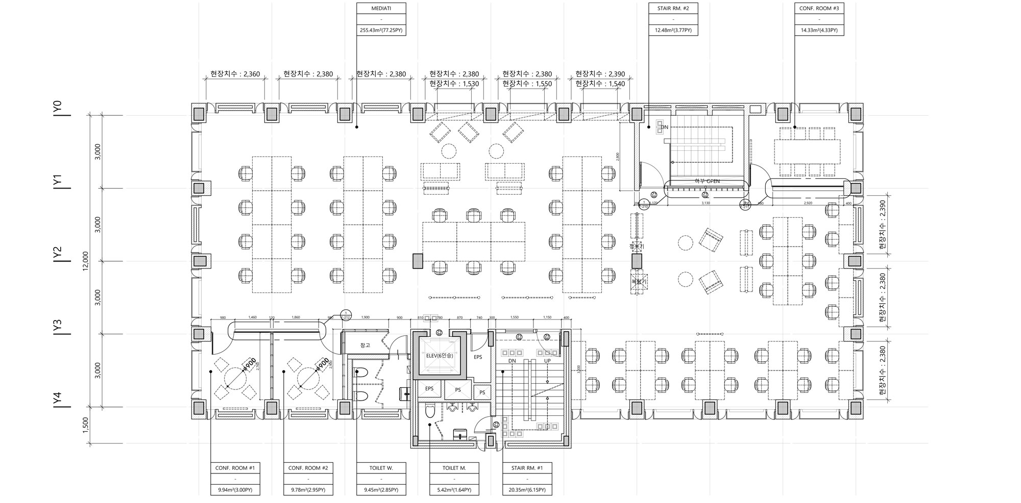
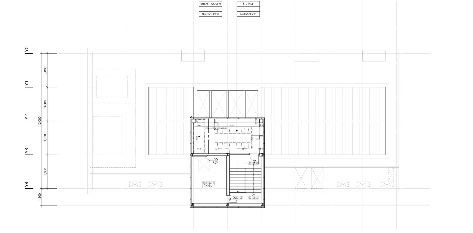
공간 전환의 다른 한 축은 새로운 입주자의 구성이다. 거꾸로캠퍼스는 학생이 주도하는 미래의 교실을 실험하는 학교다. 씨프로그램 러닝랩은 혁신 교육을 주제로 하는 아카이브이자 연구실이다. 메디아티는 미디어 스타트업 엑설러레이터1다. 입주자들과 공간에 대한 상상을 나누고 기획하는 과정은 여타 임대 사무실을 계획하는 일과는 사뭇 다른 것이었다. 플랫폼으로의 전환이란 공간 사용자의 정의를 상주 입주사에서 그치지 않고 그들의 가치와 정보를 공유하는 다양한 개인과 그룹까지 포괄하는 것을 의미한다. 지하 파랑새소극장 자리에 들어서는 영상 촬영과 송출이 가능한 콘텐츠 팩토리나 6층 팟캐스트 스튜디오는 공공일호라는 플랫폼이 협업의 기반시설일뿐 아니라 미디어가 될 가능성을 열어 준다. ‘교육’과 ‘미디어’를 주제로 다양한 이들이 서로 이곳에서 정보와 노동과 아이디어를 나누고, 교환하고, 협업하며 새로운 콘텐츠를 생산하게 될 것이다.
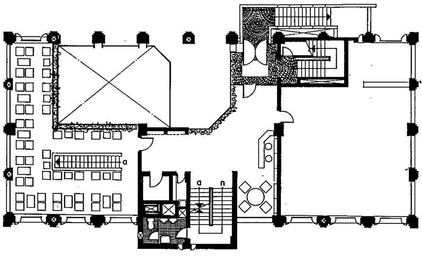
1979년 신축 계획
건축가 김수근의 샘터사옥 계획은 비슷한 시기에 완공한 대학로 문예회관과 함께 현재 대학로를 이루는 붉은 벽돌 건축의 효시가 되었다. 1층에 필로티를 두어 길을 내는 방식으로 샘터사옥에 심은 공공성은 긴 세월이 지나도 샘터사옥이 도시와 함께 호흡하게 하는 중요한 요소다. 외부계단 진입 등 다양한 입구와 수직 통로로 복합 용도를 가능하게 했다든지, 엘리베이터 샤프트를 미리 계획해 둔 덕분에 33년 후에 실제로 엘리베이터가 설치된 점은 그가 얼마나 긴 시간을 두고 샘터사옥을 계획했는지 짐작하게 한다.








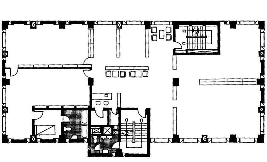
2012년 증축 계획
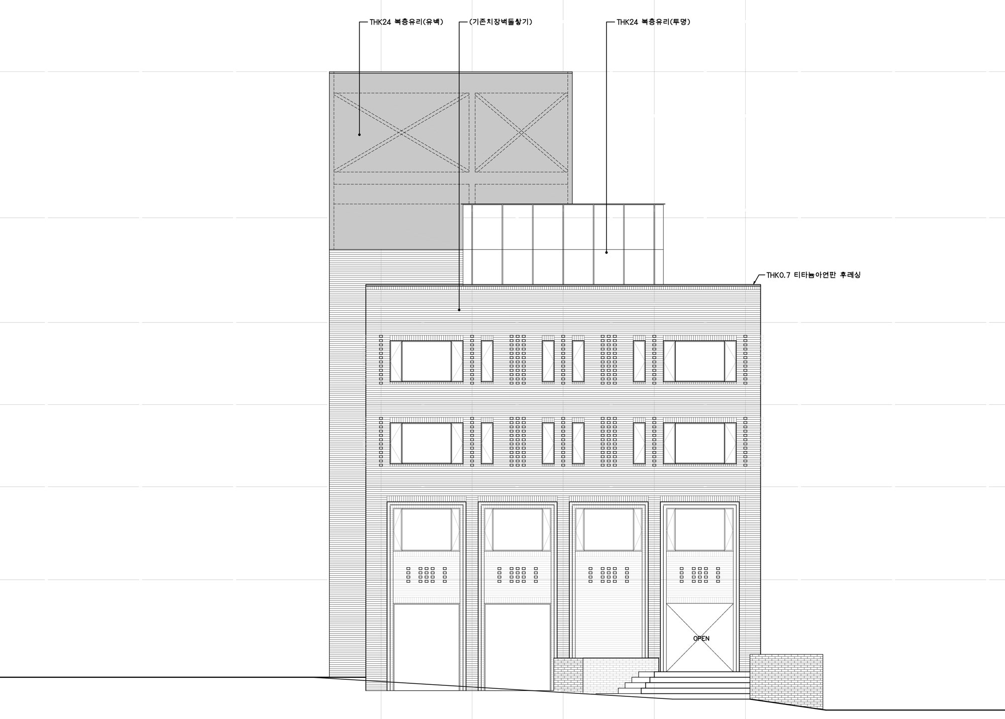
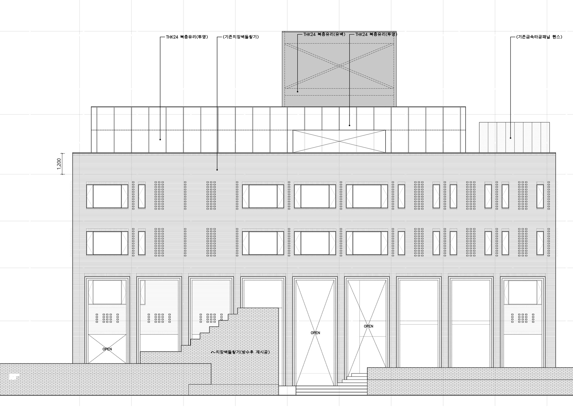
증축 계획은 1990년부터 2002년까지 샘터사옥 4층을 임대해 썼던 승효상의 이로재가 맡았다. 기록을 살펴보면 2012년 증축뿐 아니라, 1990년대부터 최근까지 건축물의 원형 보전, 유지, 관리에 대한 모든 크고 작은 의사결정에 이로재가 자문하고 계획해왔다는 사실을 알 수 있다. 이런 지속적이고 전문적인, 그리고 가치를 공유하는 건축가의 개입이 있었기 때문에 샘터사옥이 수많은 외적 변화 속에서도 건축 문화의 향기를 잃지 않을 수 있었다. 2012년 계획의 특징은 증축부에 기존 벽돌과 차별화된 유리와 철골을 적용한 점이다.









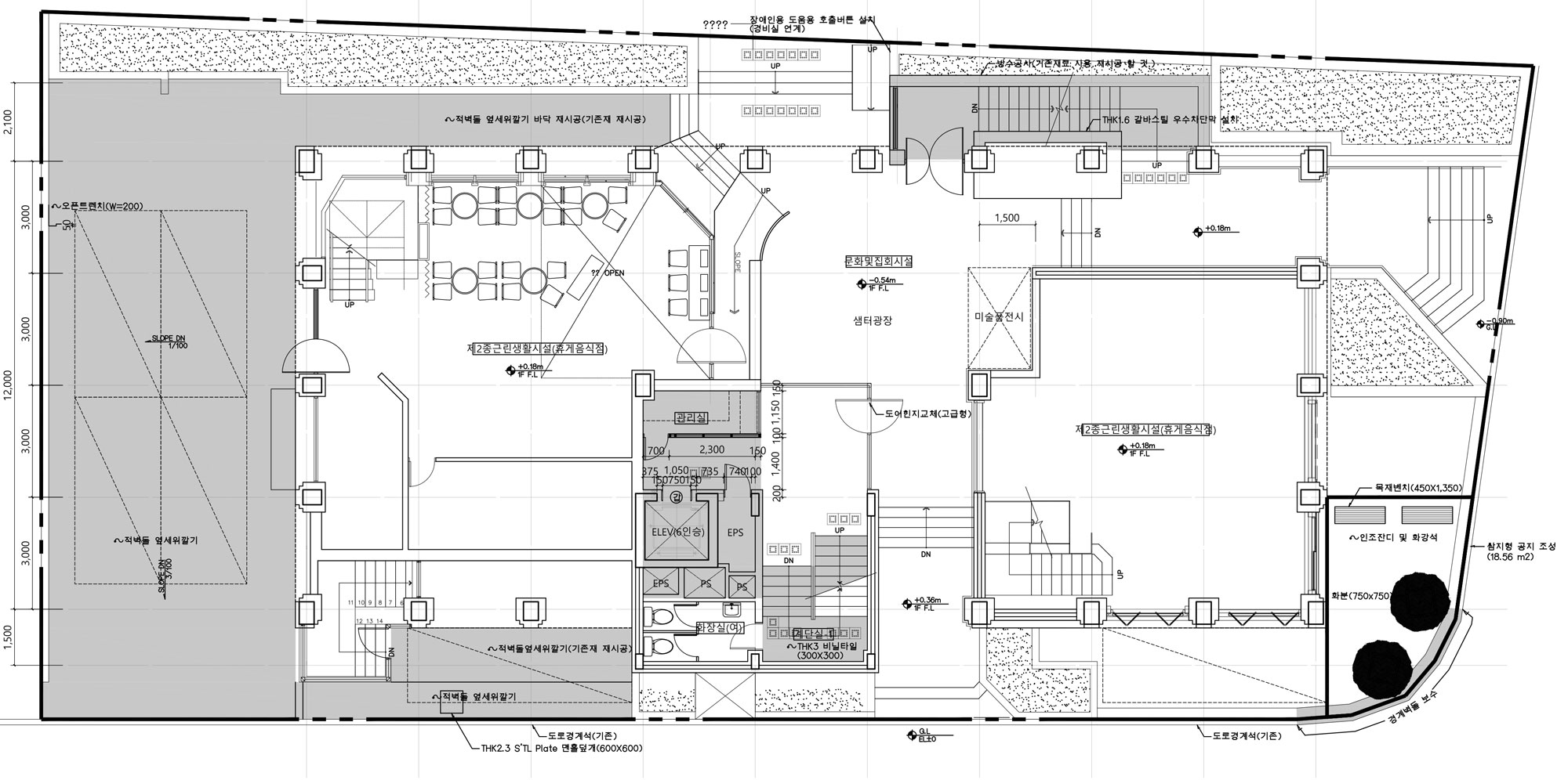
2017년 공공일호 계획
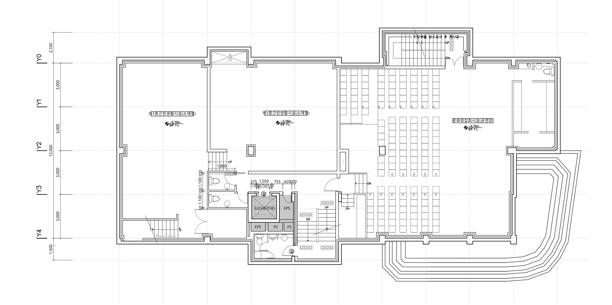
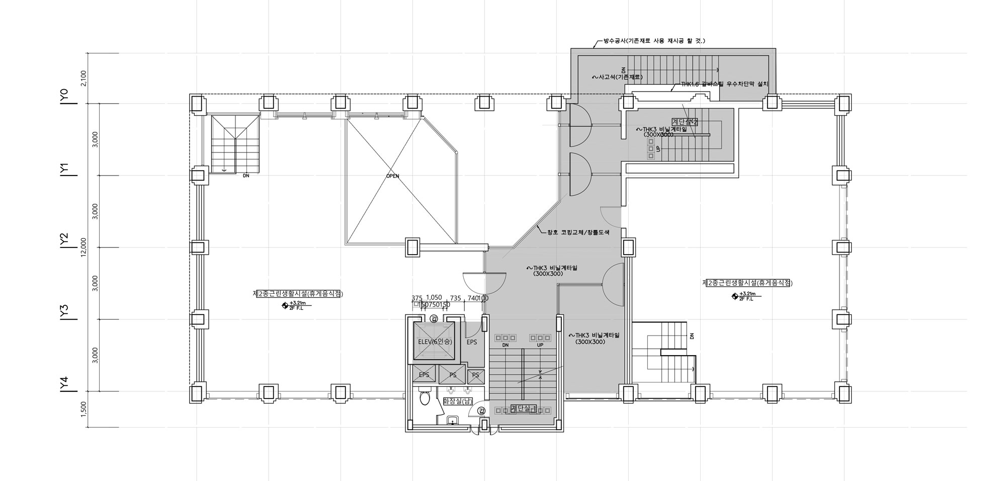
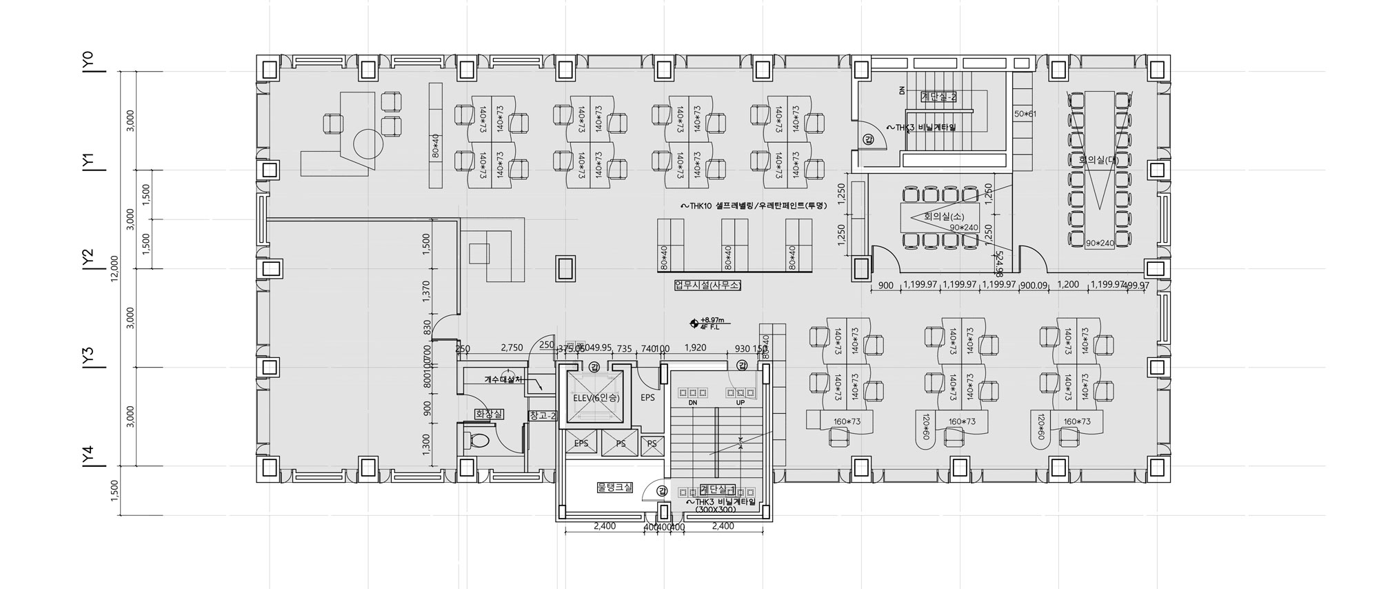
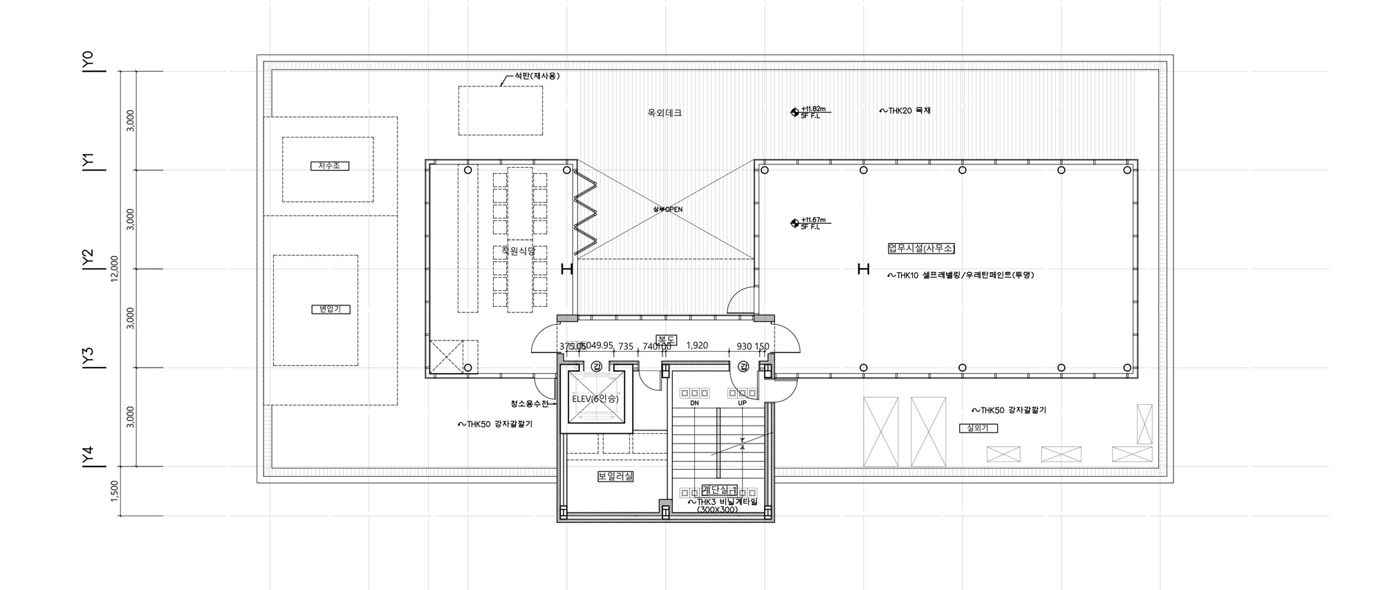
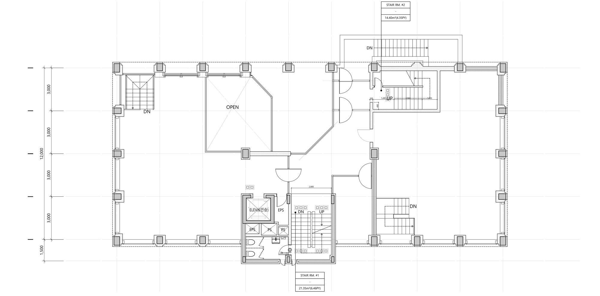
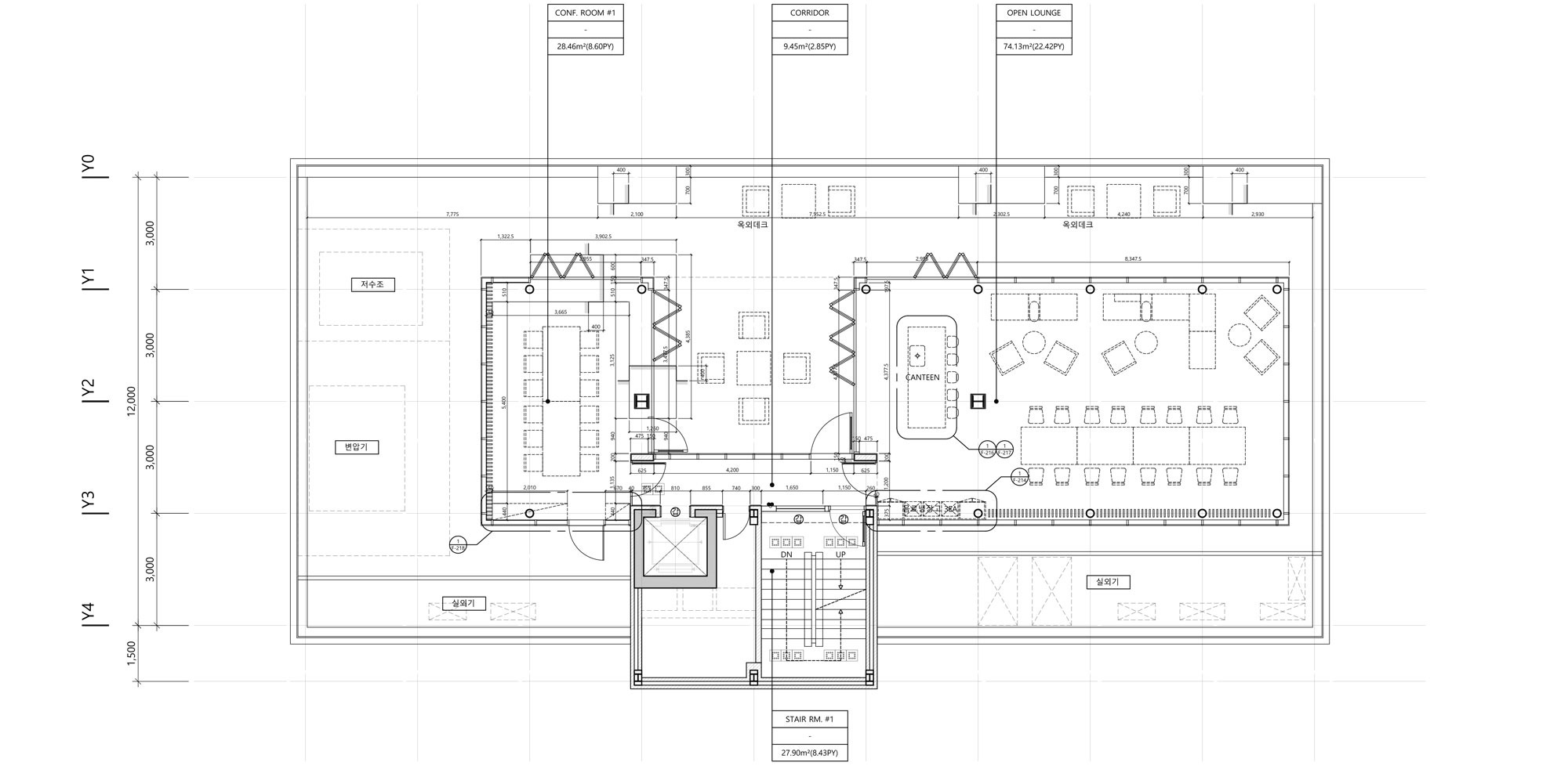
한 회사의 사옥이었던 건물이 다양한 사용자들의 플랫폼으로 진화하는 이번 계획은 장소의 긴 서사가 맞는 새로운 챕터라고 할 수 있다. 다양한 진입 동선을 통해 독립적인 아이덴티티를 가진 복수의 공간이 하나의 지붕 아래 묶일 수 있는 것은 샘터사옥 본래의 특별한 구조다. 이를 플랫폼 공간으로 구축하는 데 적극적으로 활용했다. 건물이 역사적으로 유지해 온 공공적인 개방성을 유지하는 것을 기본으로 하고, 상대적으로 폐쇄적이었던 두 계단실의 내벽을 허물어 공간을 투명하게 만들었다. 이는 플랫폼 공간으로의 전환에 중요한 시작점이었다. 3–4층 입주자들이 운영하는 공간이 어떤 교실, 어떤 라이브러리, 어떤 공유오피스인가에 대한 유형을 찾지 않고, 각 사용 주체의 공간에 대한 요구사항을 묻고 답하는 과정을 통해 계획해나갔다. 지하 미디어 소극장, 5층 오픈 라운지, 6층 팟캐스트 스튜디오 등은 공유의 폭을 확장하여 도시 차원의 공유공간이 되었다.










인터뷰
제현주, 공공그라운드 대표
공공그라운드는 어떤 회사인가?
공공그라운드는 임팩트 투자 방식으로 부동산에 투자하고 관리, 운영하는 회사다. 임팩트 투자라는 개념이 사람들에게 생소할 수도 있을 것 같다. 일반적인 투자가 재무적인 수익률만을 고려한 것이라고 하면, 임팩트 투자는 그와 함께 사회적 가치나 영향, 즉 임팩트를 함께 고려하는 투자를 의미한다. 공공그라운드는 해당 부동산이 일으키는 사회적 임팩트를 고려해서 투자하는 회사라고 할 수 있다.
공공그라운드가 추구하는 목표가 공공그라운드를 좀 더 잘 설명해 준다. 크게 세 가지 목표가 있다. 공간에는 항상 어떤 방식으로든 문화가 담기는데, 부동산 중에서도 조금 더 특별한 문화적 가치가 담겨있는, 혹은 담을 수 있는 곳에 투자해서 그 가치를 강화, 유지하는 것이 첫 번째 목표다. 두 번째는 더 나은 미래를 위한 혁신적인 활동에 이 부동산이 사용되도록 하는 것이다.
첫 번째, 두 번째 목표가 장기적으로 잘 지켜지려면 부동산의 소유 방식이 중요하다. 그 방식 자체가 사회에 직접 영향을 미친다고 생각한다. 그래서 장기적으로 일반 시민 또는 여러 주체가 적은 돈으로도 투자할 수 있는 소유 구조를 만들고, 그 결과 전체적인 사회적 가치들이 잘 유지될 수 있는 지배 구조를 갖추는 것이 세 번째 목표다.
어떤 점에 가치를 두고 샘터사옥을 매입했나?
어느 주말 신문을 보다가 샘터사옥이 매물로 나온 기사를 봤다. 사옥의 문화적 가치나 역사적 의미를 잘 이해하는 사람이 건물을 매입해줬으면 좋겠다는 소유주의 이야기와 함께, 한국 부동산 투자 환경 안에서 그런 금전적 가치 외의 차원을 고려할 투자자를 찾는다는 게 쉽지 않아서 난항을 겪고 있다는 내용이 실려 있었다. 그 기사를 보고 ‘우리에게 적절한 대상이 될 수 있겠다’는 생각을 했다. 나도 대학로의 담쟁이덩굴이 덮인 빨간 벽돌 건물들과 관련된 많은 기억을 가지고 있었기 때문에 샘터사옥이 원래의 모습과 문화적 의미를 잃어버리지 않았으면 좋겠다는 개인적인 바람도 있었다. 그런 관점에서 접촉을 시작했고 논의가 빠르게 진행됐다.
매입 과정에서도 내가 느낀 개인적 바람을 공유하는 분이 많음을 알게 됐다. 계약 체결 후에 언론에 보도됐을 때 많은 분이 다행이라는 반응을 보였다. ‘그 건물이 개축되거나 모양이 바뀌지 않게 돼서 다행이다’, ‘대학 때 이런 추억이 있다’, ‘고등학교를 그 부근에서 나왔는데 이런 기억이 있다’ 등등의 이야기들도 페이스북에서 접했다. 그걸 보면서 우리가 좋은 건물을 매입했다는 것을 깨달았고, 뿌듯했다. 이 건물을 잘 활용해서 공공그라운드의 취지를 제대로 구현해야겠다는 책임감을 느꼈다.
입주자들을 ‘교육과 미디어’를 테마로 꾸린 배경은?
공공그라운드의 목표 중 하나가 문화적 가치가 있는 공간이 미래를 위한 혁신적 활동의 장소로 활용되는 것이다. 미래를 위한 혁신 활동이 필요한 분야는 여럿 있다. 미디어와 교육의 영역에서는 현재 방식들이 미래를 위한 적절한 답이 되지 못한다는 것을 모두 알면서도 뚜렷한 해결책을 찾지 못하고 있는 대표적인 영역이다.
그래서 공공그라운드가 첫 번째 매입한 공간에서 그 영역에 대한 탐구와 실험이 이루어지면 좋겠다고 생각했다. 샘터사옥이라는 건물이 가진 성격과도 잘 부합한다고 봤다. 서울대 물리대 도서관이 있던 자리이기도 하고, 전통적인 미디어인 잡지를 만들던 샘터출판사가 있던 곳이다. 그런 공간에서 미래를 위한 새로운 교육과 미디어를 실험한다면 재미있는 교차점이 되지 않을까 했다. 그렇게 오래된 건물에서 미래적 실험들이 벌어지는 것을 상상하면 흥분되었다.
박은숙, 샘터출판사 경영지원실 이사
2000년 7월에 샘터사옥 건물 관리를 맡게 되었다. 일부 훼손된 부분을 복원해야겠다고 생각하고 건물 자료를 찾아보니 샘터사가 가지고 있는 게 너무 없었다. 그래서 건물을 설계한 공간건축에 연락해서 자료를 받고, 샘터에 있던 정보를 취합해서 건물의 원형을 복원했다. 그러고 나니 이 공간을 어떻게 더 잘 활용하면 좋을지 고민이 시작됐다.
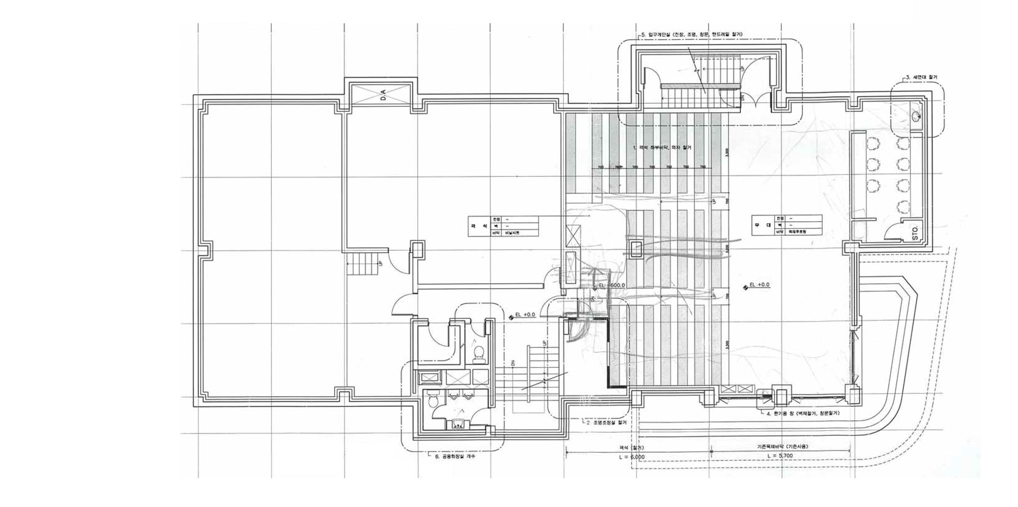
2004년에는 20년 된 파랑새극장을 완전히 개보수했다. 파랑새극장은 1984년에 문을 연 대학로 최초 민간 소극장이었다. 이로재가 마침 샘터 사옥 4층을 쓰고 있을 때여서 자문을 구할 수 있었다. 건물 복원 때도 이로재의 힘을 빌렸고, 개보수할 때도 이로재에 일을 의뢰했다. 개보수 공사에 앞서 지하 1층에 있던 책 창고를 파주 물류창고로 내보냈다. 지하 2층에 있던 전기실, 물탱크실, 공조시설 들을 다 옥상으로 올리고 지하 공간을 확보했다. 20년이 지난 목재로 마감된 1, 2층과 중층 천장을 뜯어내고, 갈바 철판 천장으로 바꾸고, 별자리 모양의 조명도 설치했다. 그렇게 새로 확보한 공간을 어떻게 쓸지 고민하다가 2007년에 지하 1층은 갤러리로, 지하 2층은 파랑새극장 2관으로 만들었다.
가장 큰 변화가 2012년에 있었는데, 그때 일은 어떻게 시작됐나?
건물이 오래돼서 옥상에서 누수되는 곳도 있었고, 엘리베이터도 필요하던 차였다. 김수근 선생이 만들어 둔 빈 엘리베이터실에 엘리베이터를 설치하고, 옥상 방수 공사를 하면서 증축까지 하게 됐다. 증축 설계를 맡은 승효상 선생은 ‘Old & New’라는 개념으로 밑에는 벽돌 건물, 위에는 유리 건물로 설계했다.
증축한 옥상의 전망이 매우 좋다. 사업 공간으로 삼을 계획은 없었나?
출판사의 사업 공간으로도 생각했었다. 저자와의 만남이나 독자들과의 만남뿐 아니라 시민들에게도 공간을 열고 싶었는데, 옥상이라 위험할 수도 있다며 반대하는 사람이 많았다. 그래서 일반에는 개방하지 못했지만, 독서 모임, 소통학교 등 시민과 소통하고 좋은 뜻을 가진 단체들에 무료로 내주었다.
외관 변경을 고려하지는 않았나?
외관 변경에 대한 시도도 당연히 있었고, 검토도 했었다. 하지만 창업자와 김수근 선생이 애정을 갖고 지은 건물이고, 그동안 샘터사의 뜻에 맞춰 유지관리를 이어왔기 때문에 변경하지 않고 유지하는 것이 더 좋겠다고 판단했다.
외부 계단은 최근까지 활발하게 쓰였다. 김재순 창업자는 엘리베이터를 놓기 전까지는 내부 계단은 대신 항상 외부 계단을 이용했다. 외부 계단은 이 건물의 상징이었다. 보통 그런 공간은 상업공간으로 만드는데, 이 건물은 외부 계단을 놓음으로써 시민들에게 건물을 개방한 것이다.
공공그라운드에 기대하는 것은?
공공그라운드를 만나기 전에 매우 많은 사람과 업체를 만났다. 대부분은 상업공간으로 쓸 생각만 가지고 있었고, 건물을 왜 유지해야 하는지에 대해 의문을 표했다. 그런데 제현주 대표를 만나고 나서 ‘샘터사옥을 유지할 회사는 공공그라운드이겠구나’하는 믿음이 생겼다.
임차해 들어올 업체들도 살펴보니 저마다 공공성을 가지고 있었다. 그런 점에서도 공공그라운드가 우리 취지를 잘 이해한다는 생각이 들어서 건물을 매도하게 됐다. 앞으로 공공그라운드에서 어떻게 쓰든지 샘터가 관리했을 때보다도 더 잘 활용할 것 같아서 안심된다.
엄윤미, C프로그램 대표
C프로그램은 어떤 회사인가?
C프로그램은 다음 세대의 건강한 성장을 목표로 하고, 놀이와 교육을 키워드로 하는 다양한 실험에 투자하는 회사다. C프로그램을 소개할 때, ‘벤처 필란트로피(venture philanthropy)’ 라는 생소한 용어가 쓰이는데, 넓게 보면 임팩트 투자의 한 갈래로 재무 성과보다는 사회적 효익에 투자한다고 볼 수 있다.
공공일호에 러닝랩을 만든 이유는?
우리는 지난 2년 동안 배움의 실험에 투자해오면서 몇 가지 고민하는 지점이 있었다. 첫 번째 고민은 우리 생각보다 많은 사람이 새로운 실험과 시도를 하고 있는데, 대부분 소규모로 변방에서 이루어지다 보니 알기가 쉽지 않다는 점이다. 두 번째는 꾸준히 새로운 것을 시도하는 사람들은 전문가들로부터의 자극이 필요한데 그 만남이 생각보다 어렵다는 것이다. 그러다보니 모든 실험이나 시도를 전달하는 언어도 아직 어려운 게 아닐까 생각했다. 그런데 공공그라운드가 찾아와주어서 우리는 무척 반가웠고, 그간의 문제들을 풀 실마리가 될 거라고 기대했다.
러닝랩은 이곳을 찾을 잠재적 사용자들을 염두에 두고 공간을 계획한 것으로 안다. 어떤 일을 일어날 것으로 예상하나?
우선은 라이브러리 기능을 할 것이다. 교육 혁신에 관심이 있는 사람은 필요한 모든 자료를 찾아볼 수 있을 것이다. 일부 공간은 주제가 잘 드러나는 전시공간처럼 사용할 생각이다.
라이브러리 역할 외에 우리가 중요하게 생각하는 것은 만남과 작당이다. 가운데 큰 커뮤니티 테이블을 두어 많은 사람이 함께 쓰게 하려고 한다. 이 테이블에서 오간 대화들이 서로 연계가 될 것으로 기대한다. 테이블을 쓰는 조건은 거기서 일어나는 실험과 고민을 콘텐츠화해서 더 많은 사람에게 전달되도록 참여하는 것이다.
사용자 그룹은 다양하겠지만, 첫 번째는 교육자다. 학교 선생뿐만 아니라 학교 밖 다양한 공간에서 학생과 청소년을 만나는 사람들, 각자의 전문분야를 다음 세대와 나누고 싶다고 생각하는 사람들을 포괄하는, 넓은 의미의 교육자다.
이성원, 거꾸로캠퍼스 교사 대표
거꾸로캠퍼스는 어떤 학교인가?
거꾸로캠퍼스는 사단법인 미래교실네트워크에서 전국 교사들과 함께 뜻을 맞춰 만든 학교다. 무학년제를 지향하고, 학생 전원이 함께 기숙 생활을 한다. 학생들이 자발적인 소통과 협력으로 스스로 문제 해결 능력을 키우는 것이 학교의 가장 중요한 모토다.
4차산업혁명 시대를 살아갈 수 있는 핵심 역량을 키울 수 있도록 교과 학습 프로젝트를 도입했다. 교사가 가르치기보다 학생들이 스스로 지식을 찾아 활용할 수 있도록 돕는 학교다.
건물이 없는 것으로 아는데, 어떤 공간을 써왔나?
처음에는 양평 영어마을에서 한 달 기간으로 시작했다. 지난 3월 12명의 아이와 워밍업 기간을 거쳤고, 4월에 서울에 들어왔다. 서울에서는 에어비앤비를 통해서 종로구 평창동에 처음 자리 잡았다. 교실과 기숙 공간이 혼합된 형태여서 불편했고, 기한도 정해져 있었다. 2학기에는 학생이 24명이 되어서 효창동에 있는 빌라로 옮겼다. 큰 자본으로 시작한 것이 아니어서 안정되지 못했고, 시설을 구하고 활용하는 것도 제약이 많았다. 안정된 교실과 기숙 공간을 확보하기 위해 자본을 더 마련해야겠다고 생각했고, 여기까지 오게 되었다.
공공일호에서 어떤 일들을 도모할 계획인가?
공간이 주는 의미가 아이들과 그 공간에서 벌이는 일에 큰 영향을 준다는 것을 깨달았다. 평창동에 있을 때는 교실과 기숙 공간이 혼재된 상황이라 학습의 의미를 억지로 만들어야 했다. 효창동 공간은 예전 직업학교여서 학원 같은 분위기였는데, 아이들이 알게 모르게 환경의 영향을 받아 사고가 변화되지 않는 것을 느꼈다.
아이들에게 이 공간을 함께 준비하자고 이야기했을 때, 새로운 공간이 가져다줄 자유로움을 생각하고 기대하는 것 같았다. 그곳에서 무엇을 만들지, 그곳에서 어떤 물건을 마련할지 등을 직접 제안할 정도로 관심이 많았다. 한편으로는 사람이 공간의 지배를 받기도 하지만, 아이들이 그 공간을 변화시킬수 있을 것으로 기대한다. 아이들이 학습하며 만들어내는 다양한 모습으로 또 다른 공간을 연출하게 되지 않을까.
강정수, 메디아티 대표
메디아티는 어떤 회사인가?
메디아티는 미디어 스타트업을 발굴, 육성, 지원하는 조직이다. 메디아티라는 이름은 라틴어에서 찾아 왔는데, ‘메디아’는 미디어, ‘티’는 사람이라는 뜻으로 ‘미디어를 하는 사람들’이라는 의미다.
한국 사회에서 여러 미디어가 혁신을 시도해왔다. 우리는 새롭게 등장하는 혁신적인 실험들을 하나의 기업 형태로 만들고, 가능성 있는 인재와 프로젝트를 찾아 시너지를 내는 환경을 만드는 식으로 그들의 성장을 지원한다.
메디아티 사무실과 코워킹 오피스는 누가, 어떻게 사용하게 되나?
우선 메디아티와 성격이 맞아야 한다. 성격이 맞는다는 것은 미디어 판을 혁신하겠다는 뜻을 함께한다는 뜻이다. 두 번째는 콘텐츠 연대다. 랩2050 같은 한국 사회의 미래를 고민하는 연구단체나 시민단체에도 자리를 제공하려 한다. 사회 혁신을 고민하는 시민단체들이 들어온다면 콘텐츠 연맹이 충분히 가능할 것이다.
대부분의 미디어 스타트업은 대게 다섯 명 내외다 보니 대단히 전문적이고 좁은 영역에만 빠져있다. 페이스북은 어떻게 운영해야 하는지부터 현시점의 경제적·사회적 갈등이 무엇인지 같은 것을 접하고 배울 기회가 적다. 여기에 입주한 미디어팀들과 그런 고민과 생각을 나누고, 서로 돕고, 영감을 줄 수 있을 것으로 기대한다.
메디아티는 지하 미디어 소극장과 옥탑 팟캐스트룸을 활발하게 활용할 대표적인 사용자 그룹이다. 공공일호의 인프라를 이용해 앞으로 도모할 일은 무엇인가?
우리가 투자하는 것은 대부분 디지털 미디어다. 디지털 미디어라고 해서 이른바 가상 공간에만 존재하는 집단이라고 생각하지 않는다. 그들 또한 그들의 오디언스들과 끊임없이 커뮤니케이션해야 하고, 만남을 가져야 하고, 같이 무언가를 할 수 있는 공간을 찾고 있다. 지하 미디어 소극장은 시민들이나 미래의 독자, 고객과 만날 수 있는 접점 공간으로 활용될 가능성이 높다.
옥탑 팟캐스트룸은 새로운 오디오 콘텐츠를 위한 공간으로 기대하고 있다. 김어준류의 팟캐스트를 필두로 자동차를 소유한 40-50대를 지향했던 것을 1.0 시대라고 한다면, 2.0시대는 인공지능 스피커에 탑재될 수 있는 새로운 형태의 오디오 콘텐츠다. 그리고 20-30대 여성을 대변할 수 있는 팟캐스트가 생겨야 하고, 이는 새로운 기회와 분위기, 맥락 속에서 만들어질 것이다. 그래서 샘터의 옥탑에서는 정말 새로운 패러다임의 콘텐츠가 만들어질 거로 생각한다.
메디아티의 장점은 각자의 일을 하지만 네트워킹으로 서로에게 스며드는 것이다. 5층 라운지 공간과 지하 미디어 소극장은 메디아티가 투자하고 지원하고 싶은 미디어 프로젝트들이 외부와 만나는 접점이다. 예를 들면, 코리아 엑스포는 외신 기자들과 매달 심포지엄을 하고 있다. 대학로 샘터에 가면 외신 기자들이 모이는 공간이 있다는 인식을 만들고 싶고, 그곳이 5층 라운지가 되면 좋겠다.
인터뷰어 조재원 / 정리 유리진
조재원
공일스튜디오건축사사무소의 대표다. 공간이 개인과 사회의 삶에 더하는 적정하고 지속 가능한 삶의 가치를 탐구하고 실현하는 것에 관심을 두고 있다. 주요 작업으로 대구 불로전통시장 어울림야외극장(2011년 대한민국공공디자인대상), 카우앤독(2016년 서울시건축상) 등이 있다. 소셜호텔, 소셜라이브러리, 공유주거, 공유오피스 등 새로운 유형의 플랫폼 공간에 대한 리서치와 계획을 진행하고 있다.
空間에서 共間으로 – 공공일호, (구)샘터사옥 리노베이션
분량9,589자 / 19분 / 도판 27장
발행일2018년 7월 27일
유형작업설명
『건축신문』 웹사이트 공개된 모든 텍스트는 발췌, 인용, 참조, 링크 등 모든 방식으로 자유롭게 활용 및 사용할 수 있습니다. 다만, 원문의 출처 및 저자(필자) 정보는 반드시 밝혀 표기해야 합니다.
『건축신문』 웹사이트 공개된 이미지의 복제, 전송, 배포 등 모든 경우의 재사용을 위해서는 반드시 원 저작자의 허락을 받아야 합니다.