심리적 경계 – 유일주택
박창현
분량2,665자 / 5분 / 도판 15장
발행일2018년 7월 27일
유형작업설명
주택 정책
한국은 새마을운동을 기점으로 경제 발전에 역점을 두고 미국 경제 발전 방식을 모델로 삼았다. 미국은 저금리 모기지론으로 1가구 1주택을 구매하도록 유도했고, 주택을 담보로 평생 이자를 갚아나가는 구조를 만들었다. 노동자들은 주택을 얻게 되지만 주택 구입을 위한 이자를 내기 위해 열심히 노동하게 되고, 이를 동력 삼아 국가 경제가 작동하도록 설계된 것이다. 이후 일본도 이와 같은 방식을 도입했고, 1960년대 한국도 비슷한 방식을 도입했다. 그렇게 출발한 한국 주택 정책은 경제 성장의 역할을 담당하기 위해 존재하게 되었다. 이는 ‘어떤 주택을 공급할 것인가’, ‘어떤 주택에서 생활할 것인가’라는 문제를 간과하게 만들었고, 오랫동안 주택을 경제(재화) 수단으로 인식하게 했다. 현재 1가구 1주택을 전제로 한 내 집 마련 정책이 실패했다면, 그 실패는 단순히 경제 정책의 실패가 아니라 우리 일상생활이 파괴되었음을 뜻한다.
이스탄불 선언
이스탄불 선언은 모든 사람에게 적정한 주거를 보증하고, 나아가 더 안전하고, 건전하고, 평등하고, 살기 좋고, 지속 가능하고, 생산적인 인간 거주 지역의 실현을 보증하려는 세계의 목표를 지지한다는 내용이다. ‘경제 성장을 위한 도구로서의 주택’이라는 한국 사회의 사고는 실제 사람들의 삶의 질을 최우선으로 생각해야 한다는 이스탄불 선언에서 벗어나서 경제적 이익에 고착되어 있다. 우리 생각은 브랜드를 앞세운 아파트에 속박되어 있다. 주택 공급자의 이윤을 지켜주는 것이 아니라 그곳에서 생활하는 주민의 삶의 질을 높일 목적으로 주택을 지어야 한다는 인식 전향이 필요하다. 주택은 더 이상 독점 자산이 아닌 사회 자본으로 인식하는 전환이 필요한 시점이다.
주거의 변화
과거 삶의 형식은 개인의 프라이버시보다 지역이나 동네의 가치가 더 컸기 때문에 집들이 골목이나 좁은 길로 서로 연결되었다. 개인 영역인 집과 공용 영역인 길의 관계가 비교적 개방되어 있어서 사람들과의 관계도 열려 있었던 것이다. 하지만 주거 형식이 아파트로 변화하면서 삶의 형식도 바뀌었다. 주택과 길의 사이를 이전에는 마당이 연결해 주었다면, 지금은 아파트 현관문에 의해 경계가 생기고 집과 집은 공용공간인 복도나 계단으로 나뉘게 되었다. 현관문과 벽으로 둘러싸인 집은 프라이버시를 이유로 더욱 폐쇄적으로 변했고, 지금은 옆집과의 관계마저 어색한 상황에 이르렀다. 2년마다 하는 전세 계약은 때마다 이웃이 바뀌게 했고, 아예 이웃이 존재하지 않는 지경으로 만들었다. 옆집과 어떻게 소통해야 하는지도 잊어버린 지금, 과연 함께 사는 공동체에 대한 개념이 우리에게 얼마나 남아 있는지 의문이다.
심리적 경계와 거리감
유일주택 계획은 옆집과의 관계, 앞집 사람과의 소통에 대한 실험이다. 잃어버렸던 사회 구성원으로서의 공동체적 가치에 대한 변화를 유도하는 것을 출발점으로 삼는다. 인류학자 에드워드 홀에 따르면 상대방과의 관계와 거리에 따라 심리적 변화가 일어나는데, 0.5m, 1.2m, 3.6m, 7.5m가 각각 밀접한 거리, 개인적 거리, 사회적 거리, 공적인 거리로 나뉜다고 한다. 개인 간에는 관계와 상황에 따라 감각적으로 변화를 감지하고 반응할 수 있는 적절한 폭의 완충지대가 필요하다. 너무 가까워지거나 너무 멀어지면 관계가 손상될 수 있다. 즉 스트레스가 가해져 부적절한 행동, 관계, 감정 표출을 강요당하게 된다.
우리는 관계의 양과 질을 증진하고자 서로 어떤 관계일지, 어떻게 느낄지, 무엇을 하고 있을지 등을 파악해 상황에 따른 적절한 거리를 설정하고, 건축적 장치를 통해서 옆집과의 관계를 다양하게 연결하는 실험을 진행했다. 두 사람 사이에 생기는 거리감은 공간화된 관계성이다. 각 영역의 분절과 연결의 정도에 따라 각양각색의 관계가 생겨난다. 공용공간에 의한 개별 공간 사이의 관계성도 중요해진다. 공동주택 안에서 수평, 수직으로 연결되기도 하고 나뉘기도 하는 공간의 가능성을 확인하고자 한다.
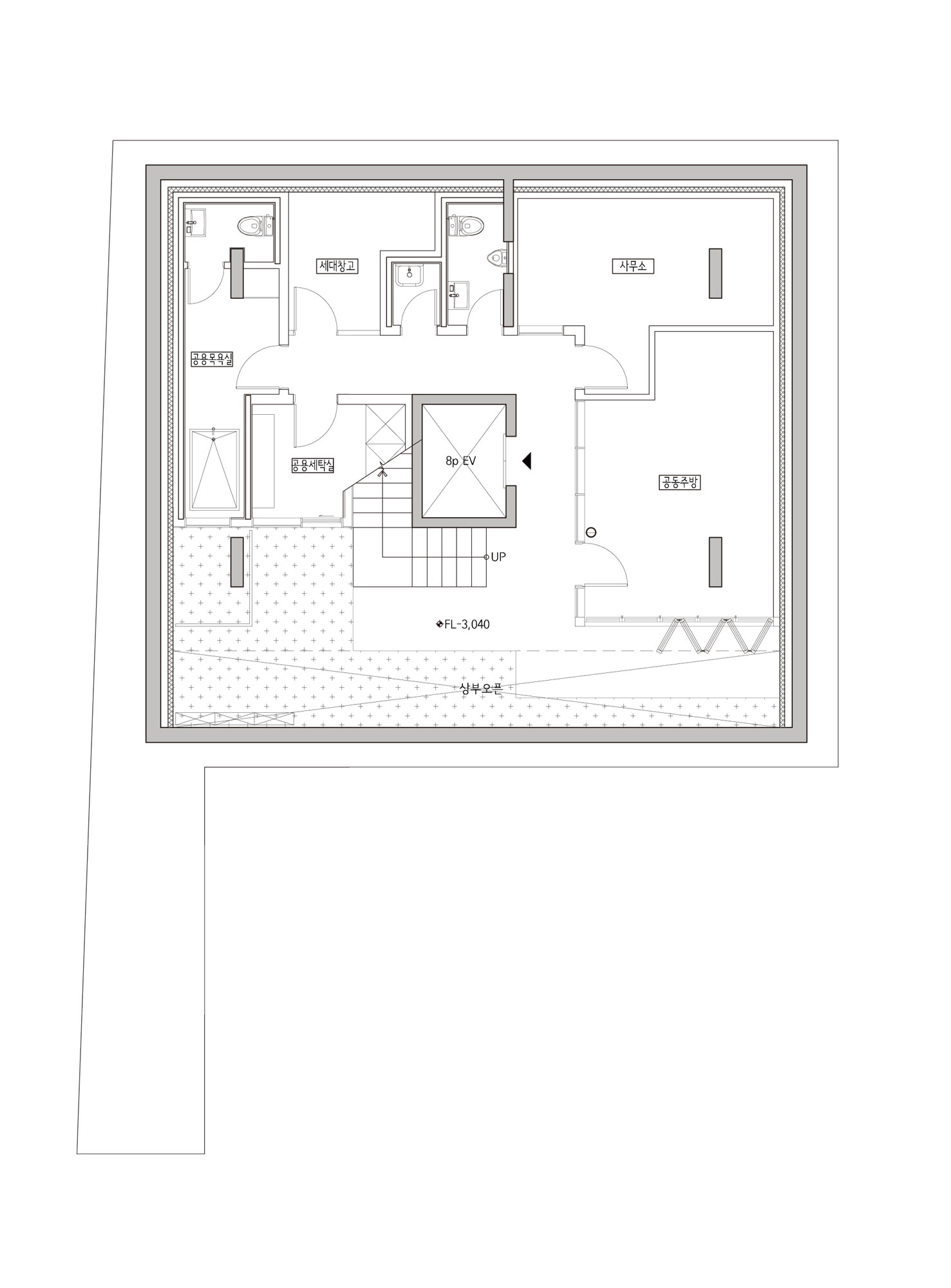
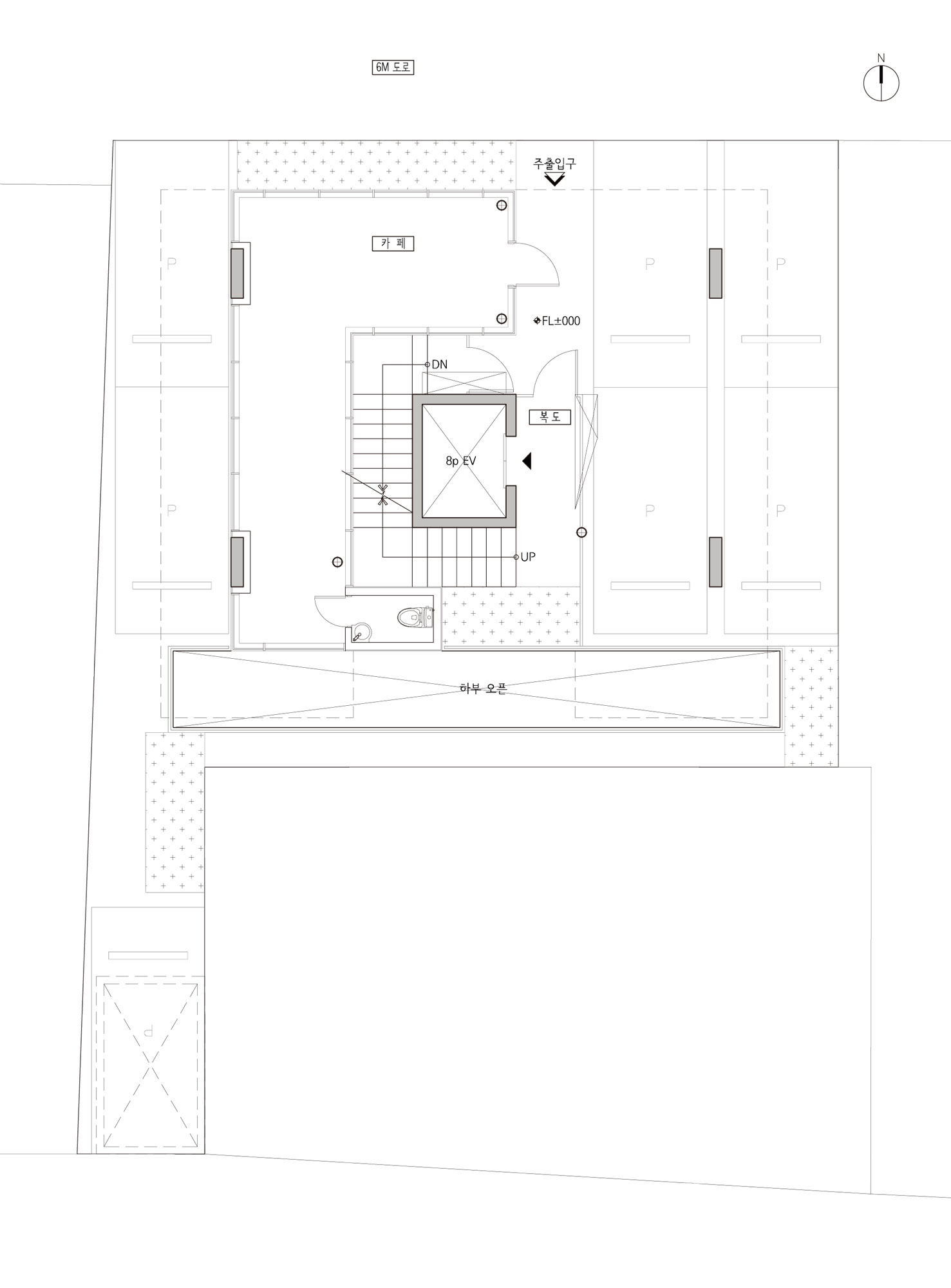
함께하는 기능
공동주택의 개개인이 각자 집에서 필요로 하는 것 중 일부는 공동 영역에서 함께 사용하도록 유도한다. 주로 개인 영역에 놓는 세탁, 샤워, 주방 등을 함께 사용하는 지하공간에 놓도록 제안한다. 이를 통해 커뮤니티가 자연스럽게 생기기도 하고, 혼자 사용할 때보다 나은 혜택을 누릴 수 있다. 지하공간 일부를 공용공간으로 열고, 지층부와 저층부에 입주민들이 적극적으로 대면할 수 있는 공유공간을 만든다. 이런 장치들을 통해 개인이 소외되지 않는 공동체 주택을 제안하고자 한다.
어떤 주거 방식과 주택을 공급할 것인가 하는 문제가 국가의 책임이라면, 그 구체적인 방법을 제안하는 것은 건축가의 책임이다. 그래서 다양한 선택지를 이번 작업에서 제안하고자 한다.








박창현
부산대학교에서 미술학을, 경기대학교 건축전문대학원에서 건축설계를 공부했다. 2005년부터 2012년까지 건축사사무소SAAI의 공동대표로 활동했고, 2013년부터 에이라운드건축을 운영해오고 있다. 작업으로는 제주 무진도원, 조은사랑채, 아웅산 순국 추모공원 등이 있으며, 한국건축가협회상, 서울시건축상, 김수근건축상 프리뷰상을 수상했다. 현재 고려대학교에서 학생들을 가르치고, 한국, 일본, 포르투갈 등 젊은 건축가 인터뷰 프로젝트도 진행 중이다.
심리적 경계 – 유일주택
분량2,665자 / 5분 / 도판 15장
발행일2018년 7월 27일
유형작업설명
『건축신문』 웹사이트 공개된 모든 텍스트는 발췌, 인용, 참조, 링크 등 모든 방식으로 자유롭게 활용 및 사용할 수 있습니다. 다만, 원문의 출처 및 저자(필자) 정보는 반드시 밝혀 표기해야 합니다.
『건축신문』 웹사이트 공개된 이미지의 복제, 전송, 배포 등 모든 경우의 재사용을 위해서는 반드시 원 저작자의 허락을 받아야 합니다.






