단지에서 동네로 – 일원동 단독주택 리노베이션
김성우
분량2,646자 / 5분 / 도판 11장
발행일2018년 7월 27일
유형작업설명
소필지 주거지의 원룸화
1970년대 50 – 60평 필지로 구획된 서울 도심의 주거지역에 단층의 전후 보급형 주택들이 지어지기 시작했다. 이후 서구식 주거 방식이 도입되면서 ‘양옥’으로 통칭하던 2층짜리 단독주택이 도심 주거지역을 채우기 시작했다. 1990년 다가구 주택이 법제화되면서 반지하 위에 지상 2층을 얹어 총 세 개 층으로 이루어진 주택 유형이 소필지 주거지역에 등장하기 시작했다. 특히 반지하에 두 세대, 1층에 두 세대, 2층과 옥탑에 주인 세대가 거주하는, 다셋 세대가 모여 사는 옥외 계단형 다가구 주택이 빠르게 확산되었다. 1990년대 말에 이르러 옥외 계단실을 실내로 전용하여 사용하는 것을 막기 위해 옥외 계단을 건폐율에 산입하도록 건축법이 개정되었다. 이와 함께 공용공간을 실내화한 ‘중앙 계단형 다층 다가구·다세대 주택’이라는 유형이 등장했다.
2010년을 정점으로 4인 가구 비율이 급격히 감소한 반면 1 – 2인 가구가 증가했다. 새로운 수요를 충족하기 위해 소필지 주거지역에 660㎡ 미만의 4층짜리 다세대 원룸·투룸 주택이 급증했다. 오래된 단독주택에 살던 집주인들이 다른 곳으로 이주하고, 소위 ‘집장사’로 통칭되는 시행사가 단독주택 필지를 매입한 후 수익형 다세대 주택을 지어서 분양하기 시작한 것이다. 소필지 주거지역의 풍경은 점차 주인 없는 원룸촌으로 바뀌어 갔다. 이어진 주차장 법규의 지속적인 강화로 인해 필로티 형식의 다세대 주택이 등장하게 되었다. 2010년 이후에는 자본력 있는 시행사들이 수익 극대화를 위해 여러 필지를 통합하여 규모를 키운 기업형 원룸을 양산하면서 소필지 주거지역의 가로경관과 도시구조의 파괴가 더욱 가속화되는 상황이다.
단독, 다가구, 다세대, 오피스텔, 원룸, 원룸텔, 쪽방, 고시원, 도시형 생활주택까지 다양한 소필지 주거지역의 소규모 주거 유형이 존재한다. 하지만 이 주거공간들은 철저하게 도시와 단절되고, 번듯한 단지형 아파트와 비교되는 열악한 주거 환경으로 낙인 받았다. 고시원이나 원룸 등에서 논의되었어야 하는 최소 주거공간에 대한 기준, 단위 주거의 집합 방식, 주거 유형 속 공공공간의 해석 등은 제대로 이야기되지 않은 채 남겨져 있다.
소필지 주거지역에서 원룸이 아닌 대안으로 무엇이 가능한가? 주거지역이 원룸촌으로 바뀌어 가면서 동네라는 개념이 소멸하고, 사람들이 이런저런 주거를 떠돌아다니는 문제는 어떻게 해결할 수 있는가? 인구가 줄어들고 가족이 해체되는 노령화 사회에서 소필지 주거지역의 새로운 거주 방식은 어떻게 정의될 수 있는가?
단지에서 동네로의 이주
2017년 1월 역삼동에 위치한 N.E.E.D.건축사사무소의 사무실 임대 기간이 만료되어 다른 곳으로 이전해야 하는 상황에 처하게 되었다. 직원 다섯 명 이하의 작은 사무실이고, 업무 특성상 임대료가 비싸고 접근성이 좋은 번화가보다는 작업 공간, 회의 공간, 휴게실 같은 부가적인 공간을 충분히 확보한 안정적인 사무실이 필요했다. 그래서 평소 관심 있던 소필지 주거지역을 살펴보기 시작했다. 교통이 편리한 지하철 인접 지역이어야 하고, 손님이 찾아왔을 때 주차를 할 수 있는 공간이 확보되어야 한다는 두 가지 조건을 얹어서 약 6개월간 마포구 대흥동, 광진구 중곡동, 성북구 석관동 등의 소필지 주거지역을 살펴봤지만 마땅한 곳을 찾지 못했다.
그러던 중 강남구 일원동의 3호선 대청역 인근의 대청마을을 알게 되었다. 주변 블록이 모두 아파트 단지로 바뀌는 동안 재개발되지 않고 2층 이하의 단독주택들이 그대로 보존되어 있었고, 처음부터 살던 집주인들이 아직 동네를 떠나지 않은 덕분에 원룸화되지 않고 남아 있었다. 주변에 높은 건물이 없어서 골목을 걸어가면 단독주택 지붕 사이로 파란 하늘이 보이는 것이 좋았고, 골목 코너의 슈퍼마켓 앞에 동네 사람들이 평상을 펴놓고 두런두런 이야기하는 모습도, 집마다 작은 텃밭을 가꾸고 정원을 손질하는 모습도 좋았다. 그래서 거주 공간과 일하는 공간을 합쳐서 이전하기로 마음먹었다. 사무실 보증금과 여유자금, 매달 지급하던 사무실 임대료만큼의 이자를 계산해 대출을 받고, 살던 아파트에 묶여 있던 자금까지 끌어모아 주택 매입 자금과 공사비를 마련할 수 있었다.
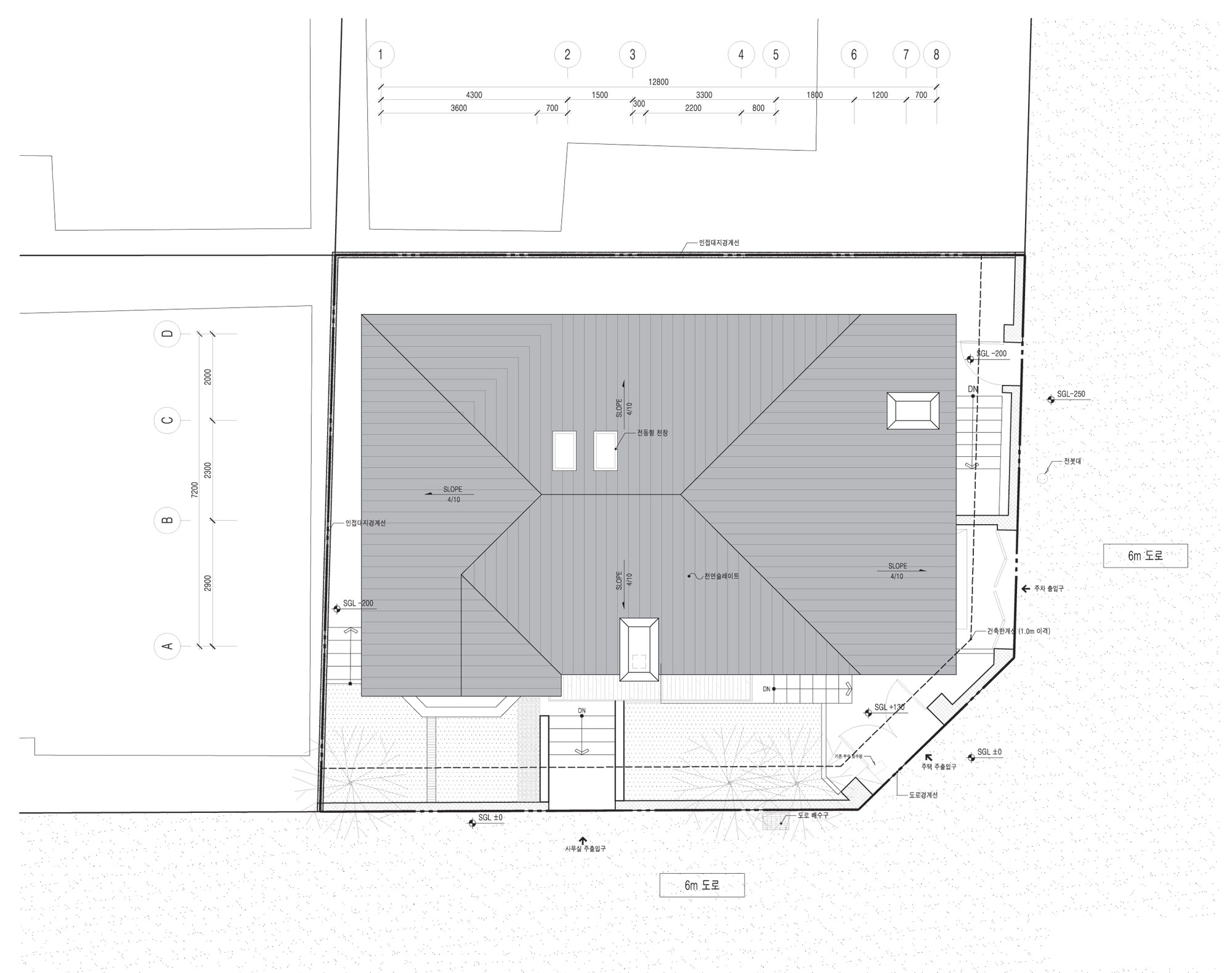
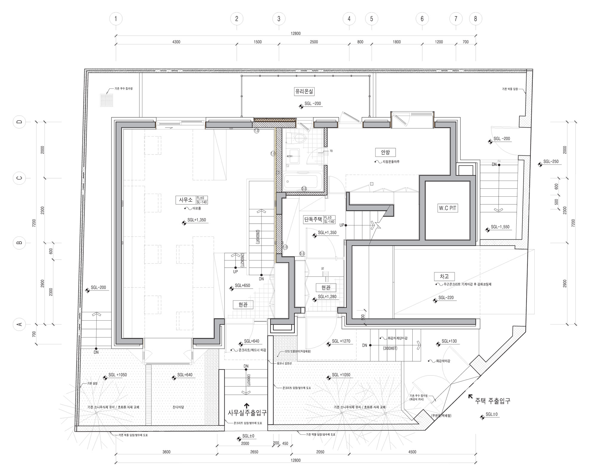
일원동 단독주택 리노베이션 프로젝트는 30년 이상 된 주택을 직접 매입하여 공사를 진행하면서 겪은 여러 문제와 극복 과정, 사무실과 거주 공간을 이주한 후 동네에 적응하면서 발생했던 사건들을 담고 있다. 주거 유형 연구를 진행하면서 깨달았던 사실들과 일원동 프로젝트를 통하여 직접 경험한 소필지 주거지역의 대안적 거주 방식에 대한 이야기를 풀어보고자 한다.

김성우
서울대학교 건축학과와 동대학원, 네덜란드 베를라헤 인스티튜트 M.Arch 과정을 졸업했다. 네덜란드 암스테르담 소재 de Architekten Cie., 정림건축, 디엠피건축 등에서 실무를 쌓았으며, 2008년 미국 AIA 뉴욕협회에서 주최한 ENYA(Emerging New York Architect) 국제현상설계에서 대상을 수상한 것을 계기로 N.E.E.D.건축사사무소를 설립했다. 주요 작품으로는 더북컴퍼니 사옥(2017년 서울시건축상), 수제맥주 공장인 코리아크래프트브루어리, 상계동 341–5 주거복합 프로젝트(2014년 미국뉴욕건축가협회 우수상) 등이 있으며, 서울시 공공건축가로 활동 중이다.
단지에서 동네로 – 일원동 단독주택 리노베이션
분량2,646자 / 5분 / 도판 11장
발행일2018년 7월 27일
유형작업설명
『건축신문』 웹사이트 공개된 모든 텍스트는 발췌, 인용, 참조, 링크 등 모든 방식으로 자유롭게 활용 및 사용할 수 있습니다. 다만, 원문의 출처 및 저자(필자) 정보는 반드시 밝혀 표기해야 합니다.
『건축신문』 웹사이트 공개된 이미지의 복제, 전송, 배포 등 모든 경우의 재사용을 위해서는 반드시 원 저작자의 허락을 받아야 합니다.









