향수
김재현, 신효근, 이수원
분량5,584자 / 11분 / 도판 10장
발행일2023년 11월 17일
유형작업설명
김재현 세종대학교 건축학과
신효근 세종대학교 건축학과
이수원 세종대학교 건축학과

‘향수’는 도심속에서 목욕탕이 우리에게 줄 수 있는 가치에 주목했습니다. 사회의 변화로 인해 목욕탕이 사라져가는 상황속에서, 목욕탕이라는 공간이 다시 만들어진다면 어떠한 공간이 되어야 하는지 생각해보았습니다. 저희가 생각한 목욕탕은 단순히 몸을 씻기 위한 기능적인 공간이 아니라 그곳에서 여유를 찾고 마음을 비울 수 있는 공간입니다. 또 도시인들을 위한 스테이는 이들이 번잡하다고 느끼는 도시속에서도 고요함과 따뜻함을 줄 수 있는 내밀한 공간이 되어야 합니다. 그래서 이곳 스테이의 목욕탕 공간들은 이용자들에게 모두 열려있지만, 개인적으로 이용할 수 있도록 작은 규모의 다양한 공간들을 계획했습니다. 이용자는 이곳에서 맨몸에 닿는 물을 느끼고 울리는 소리를 들으며 이곳만의 특별한 방식으로 휴식을 즐길 수 있을 것입니다.
컨셉
목욕탕
한국에 상수도가 보편화되기도 이전, 시민들은 집에서 몸을 씻기 어려운 경우가 많았습니다. 그렇기에 한국은 다수를 위한 위생공간으로 대중목욕탕이 동네마다 들어섰습니다. 그리고 다수가 모인다는 특성으로 인해 가족, 이웃, 친구들과 시간을 보내는 종합 문화 공간으로서의 찜질방 문화로까지 발전해왔습니다.
산업화 이후 도시 속에 인공 대중목욕탕이 들어서기 시작하면서 우리나라만의 대중목욕 문화가 발전하게 됩니다. 도시에서 초면인 사람들끼리 스스럼 없이 알몸을 보여주며 같은 탕에 들어가고, 이태리 타올로는 몸을 밀면서 청결을 유지하게 됩니다. 그와 동시에 목욕관리사라는 직업이 생겨나기도 합니다. 90년대 중후반에는 찜질방이 들어서기 시작하면서 다수의 목욕탕은 찜질방과 겸업하여 우리가 알고 있는 대중목욕탕의 모습이 완성됩니다.
하지만 도시가 더욱 발전한 오늘날, 집에서 목욕을 하는 것은 것은 더 이상 어려운 일이 아닙니다. 더욱이 지난 몇년간의 팬데믹이 겹치게 되면서 대중목욕탕을 향한 발걸음은 원하든 원하지 않든 끊길 수 밖에 없게 되었습니다. 소비자가 줄어들게 되니 대부분의 대중목욕탕 시설들은 영업을 유지하기 힘들어졌고 하나 둘 문을 닫으며, 이전과는 다르게 동네에 하나씩은 있던 작은 목욕탕들을 찾아보기가 힘들어졌습니다.
시간이 지나 시대가 변하고 환경이 달라졌습니다. 위생을 책임지던 대중목욕탕은 되려 시대의 변화에 따라 위생에 의해 사라지게 되었습니다. 하지만 도시를 살아가는 대다수의 사람들은 아직도 그 문화를 기억합니다. 뜨거운 물에 몸을 불리고 나와서 음료 한 잔 마시고, 찜질방에 앉아 계란을 까먹던 문화는 이제 찾아보기 힘든 낯선 풍경이 될테지만 사람들의 기억 속에는 낯설지 않을 정겨운 풍경입니다.
‘향수’는 그 기억 속 촉감을 재현해내어 우리네가 가졌던 문화를 다시금 경험하는 방식으로 떠나는 스테이 여행입니다.
목욕탕의 재해석
‘향수’를 불러일으키기 위해서 기존 목욕탕의 요소들을 전형적으로 넣는 것은 의미도 없고, 지금의 도시환경과도 어울리지 않다고 생각했습니다. 대중목욕탕을 가야할 이유가 이전만하지 못하며 방역과 위생의 중요성이 대두되는 오늘날이기 때문입니다. 따라서 목욕탕을 현대에 맞게 재해석하고자 합니다.
습한데에 비해 환기가 잘 되지 않는 지하구조, 다수의 인원이 밀도 높게 몰려 이용되는 공공공간, 부족한 개인공간 등 기존 목욕탕의 이러한 특징들은 팬데믹이라는 상황에서 사람들이 기피하게 만드는 요인입니다. 또한 정겹다는 인식을 제외하면 지하에서의 막힌 공간은 사용자로 하여금 그다지 달가운 공간이 아닙니다.
지하에 수평으로 깔려있던 공간은 지상에 수직으로 쌓음으로써 채광과 환기가 가능한 새로운 공간으로 바꾸었습니다. 또한 모든 인원이 한 공간을 같이 이용하던 공공공간은 프로그램별로 셀을 나누어 보다 개인적이고 편안한 공간감을 느낄 수 있게 됩니다. 그러면서도 기존 목욕탕이 가지고 있었던 안정감을 주는 요소들을 담고자 했습니다. 약간은 어두우면서 물소리가 낮게 울리는 공간감은 그대로 유지해 목욕탕이 주는 향수를 느낄 수 있도록 했습니다.
여행지
서울의 강남구에서 세번째로 유동인구가 많은 지역인 삼성동은 발전된 대도시 모습의 전형입니다. 삼성동은 과거 농업지역에서 본격적인 도심권 개발이 진행되며 1984년 무역센터 개발계획을 통해 금융기관 및 관련 업체들의 유입이 시작되었습니다.
오늘 날 삼성동은 강남구의 대표 오피스 상권으로 골목상권과 지하상가 등이 잘 발달되어 있는 곳이기도 합니다. 이렇게 도시가 발전해오며 생겨난 휴먼 스케일을 압도하는 건물들과 도로망은 그 모습을 갖추기 위해 인간적인 스케일의 마을의 모습들을 포기하도록 하였습니다.
한국데이터산업진흥원의 통계에 따르면 2018년 삼성동의 월 평균 유동인구는 약 54만명이며 그 중 30대가 약 13만명으로 가장 많았고, 뒤를 이어 40대(약 12만명), 50대(약 9만명), 20대(약 8만 7천명) 순으로 많았습니다. 오피스 상권이 주를 이루는 지역이기 때문으로 보이는 결과로 지역이 개발된 이후로 많은 수의 유동인구와 연령분포가 꾸준하게 유지되는 특성을 보였습니다.
우리는 삼성에 늘어선 여느 업무용 건물에서 출퇴근을 하는 30대의 사회 초년생들의 모습을 그리며, 그들이 지친 몸을 풀기 위해 스테이를 찾아오는 상상을 해보았습니다. 청소년기 시절, 목욕탕에 갔던 추억을 갖고 있을 30대는 목욕탕 스테이를 가장 많이 찾아 올 연령층으로 예상됩니다. 목욕탕 스테이가 가장 효과적으로 자리잡히기 위해서 30대 유동인구가 많으면서도 밀도 높은 도시의 전형을 보여줄 수 있는 삼성을 선택하게 되었습니다.
예전부터 그러하였듯, 목욕탕은 우리의 활동지와 가깝게 위치해 있어, 우연히 발견할 수 있을 정도의 높은 접근성을 지녔습니다. 또한 목욕탕 안에 들어가게 되면 바깥과 완전히 단절된 공간감을 주곤 하였습니다. 도심 속, 우리 주변에 위치한 스테이는 가기 전부터 많은 준비를 하며 느끼는 설렘을 주기에는 부적합 할 수 있지만, 오히려 예상치 못하게 발견되는 즐거움을 줄 수 있을 것입니다.
페르소나
- 홍OO씨.
- 연령: 30대
- 직종: 금융업
- 직장: 삼성동 오피스
- 거주지: 서울특별시 강남구
- MBTI: INTJ
오늘도 힘겹게 업무를 끝 마치고 차가운 겨울바람을 맞으며 퇴근하던 홍OO씨. 차분히 가라앉은 저녁하늘을 올려다보며 마천루의 불빛을 향해 입김을 내뱉는다. 하얀 입김 안에 어느새 옛 추억이 담긴다. 어릴 적, 아버지와 함께 등을 밀어주러 한달에 한번씩 찾아갔던 동네 목욕탕. 습하고 더운 사우나의 김 사이에 땀을 흘리며 앉아있는 부자의 모습이 그의 입김 안에 보인다. 향수에 젖은 총각은 얼어붙은 핸드폰을 켜올리며 퇴근길 주변의 목욕탕을 찾는다. 한바탕 감염병이 돌았던 도시 안에 목욕탕을 찾을 수 없다. 내쉰 숨이 공기 중으로 흩어지던 중 그의 눈 앞에 ‘향수’가 눈에 띈다. 어떤 곳일까? 자연스레 그의 발걸음이 그 곳으로 향한다.
스테이







모형


심사위원 질의응답
노경록 흔치 않게 도심 한가운데를 사이트로 지정했다. 어떻게 보면 하나의 빌딩을 통으로 활용한 셈이다. 그중에서도 대욕장 같은 경우 공용 시설처럼 활용이 될텐데 이 스테이에 동시에 묵을 수 있는 객실의 수와 인원수가 어느 정도 되는지, 규모가 궁금하다.
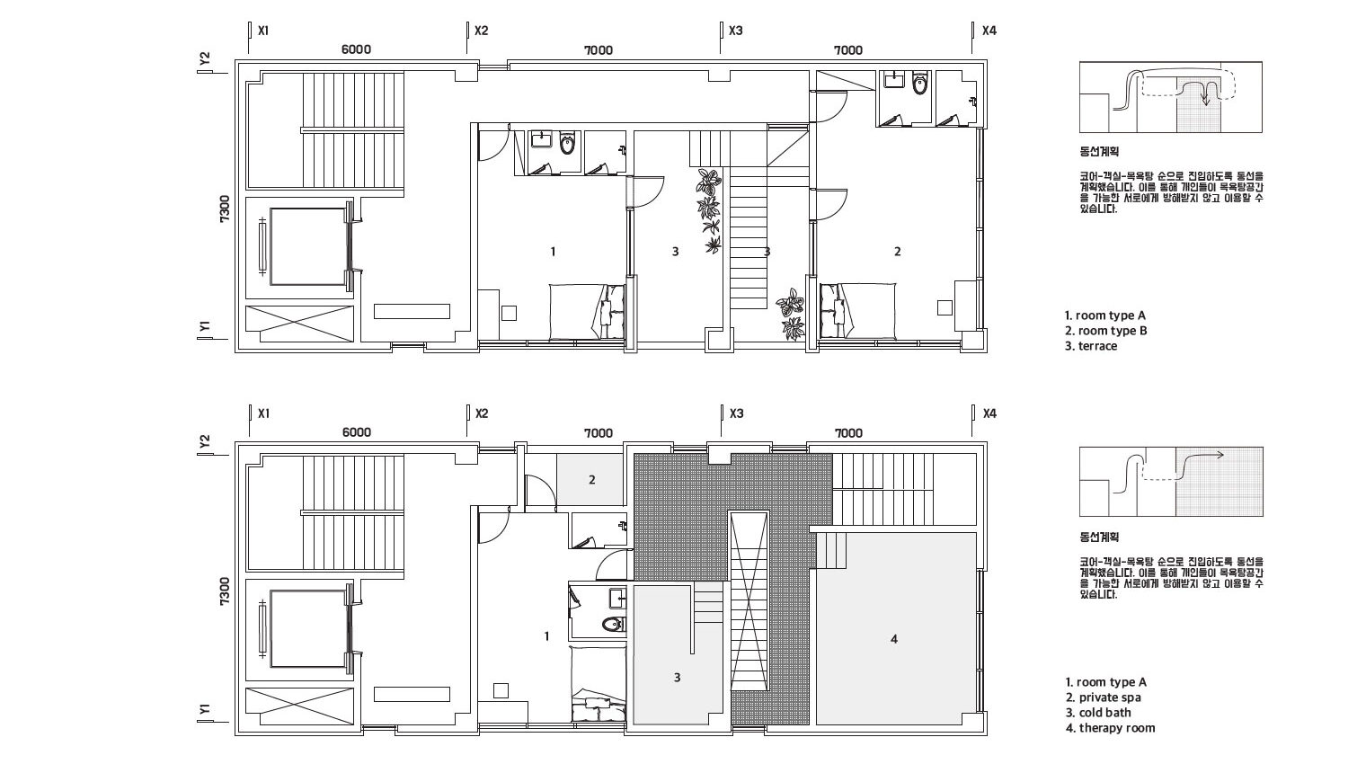
향수 1-2인실로만 구성되어 있으며 건물 전체적으로는 총 11개의 객실이 층별로 흩어져 있다.
박중현 이벤트 탕이라고 되어 있는 부분은 공용 공간인가? 아니면 여기도 하나의 객실인가?
향수 모든 목욕탕 층들이 하나의 수직 동선으로 연결되어 있다. 그래서 이론적으로는 모든 객실에서 계단을 통해 접근할 수 있지만, 전체가 10개 층으로 구성된 만큼 다같이 이용하기에는 현실적으로 어렵다. 대신 네다섯 개 층 단위로 중복되는 프로그램을 배치하여 조금 더 편리하게 이용할 수 있도록 구성했다.
이상묵 스테이폴리오 특별상을 의도한 것 같다는 생각도 했다. 이런 프로그램의 경우 하루 숙박이 아니라 시간 단위 숙박도 가능할 것 같은데 그런 상상도 해보았나?
향수 그래서 며칠을 묵는 프로그램이라기보다는 하루 안에 밀도 높게 쉬고 가는 프로그램을 생각하며 계획했다.
이상묵 동의한다. 건물 한 가운데에 큰 목욕탕을 두었는데 특별한 이유가 있나?
향수 전체 층에 객실이 골고루 분포하고 있기 때문에, 가장 많은 인원이 이용하는 퍼블릭 탕을 동선상에서 가장 짧은 곳에 배치하기 위해서는 건물의 중앙층에 두는 게 합당하다고 생각했다.
이상묵 브랜드 이름은 향수인데 전반적으로 향수의 느낌이 잘 연상되지 않는다. 어떻게 녹여낼 생각인가?
향수 향수는 고향 향(鄕)자와 물 수(水) 자로 이루어진 이름이다. 이 프로젝트를 시작할 때 먼저 취향에 대해 숙고해보았는데, 개개인의 기호부터 우리 나라 사람들이 전반적으로 가지고 있는 문화적 특성까지 다양한 스펙트럼의 취향을 범주화할 수 있다고 생각했다. 이를 테면 한국 음식의 특징 중 하나인 ‘매운 맛’이 그렇다. 우리 나라 사람들의 대부분이 매운 맛을 좋아한다지만 개인에 따라 싫어하는 사람도 있을 것이다. 그 사이의 다양한 취향을 매운 맛이라는 하나의 카테고리 안에서 표현할 수 있다.
이처럼 범용적으로 감각을 공유할 수 있는 카테고리가 무엇일까 고민하던 중, 개발이 되면서 없어진 공간에 대한 추억이 떠올랐다. 또래 친구들과 대화를 하다보면 가끔씩 목욕탕에 가고 싶은데 어린 시절 갔던 동네 목욕탕이 없어졌다는 이야기가 나온다. 이렇듯 우리 세대가 공유하는 목욕탕에서 느낄 수 있는 촉감이나 온기에 대한 그리움이 취향으로 반영될 수 있다고 보았다. 목욕탕을 그리워하는 마음이 고향을 그리워하는 마음, 향수와 비슷하다는 생각을 했다.
그래서 ‘향수’가 도심 속의 스테이인 동시에, 개발 이후의 도시에서 목욕탕이 자리할 수 있는 새로운 모델로 작용하길 기대하는 마음으로, ‘그리운 목욕탕(물)을 찾아가는 공간’이라는 이름을 지었다.
박중현 타입별로 굉장히 다양한 유닛들이 모여 있다. 생각하고 있는 객실의 가격대와 룸 서비스 등 다양한 프로그램의 비용도 설명해달라.
향수 1인이 머무르는 객실 하나당 가격은 25만 원으로 책정했다. 삼성역 인근의 1인 스테이 가격을 찾아보니 보통 10만 원 대였다. 그런데 우리는 목욕탕이라는 새로운 서비스가 있기 때문에, 재방문이 부담스럽지 않을 수준에서 그보다 더 높은 가격을 책정했다. 부대 프로그램 중 테라피룸은 숙박비에 포함시키는 것으로 생각했고, 1층에 위치한 바는 인근의 바와 유사한 가격대로 책정했다.
이상묵 물을 다룰 때 탕도 있겠지만 사우나도 있고, 다른 프로그램도 생각해볼 수 있을 것 같다. 물에 대한 경험을 어떻게 재현할 것인지 더 디테일하게 고민해본 적이 있나? 지금 보면 온탕 위주로 정리가 된 것 같다.
향수 목욕탕을 시각적으로 표현할 수도 있지만, 그것이 가지고 있는 소리나 온기, 냄새 같은 다른 감각들에도 집중하면 다양한 공간을 만들 수 있을 것이라 생각했다. ‘프라이빗 탕’ 같은 좁고 높은 공간에서는 물소리가 울리다보니 사색적이고 경건한 공간이 될 수 있고, 두 개 층에 걸쳐 있는 퍼블릭 탕과 테라스 탕의 경우 보통 목욕탕에서는 경험하기 힘든, 아래에서 위를 바라보거나 위에서 아래를 바라보며 목욕하는 새로운 경험을 줄 수 있을 거라고 보았다. 이런 식으로, 목욕탕을 공간적으로 다양하게 경험할 수 있게 하는데 주력했다.
원고화 및 편집 최정원
향수
분량5,584자 / 11분 / 도판 10장
발행일2023년 11월 17일
유형작업설명
『건축신문』 웹사이트 공개된 모든 텍스트는 발췌, 인용, 참조, 링크 등 모든 방식으로 자유롭게 활용 및 사용할 수 있습니다. 다만, 원문의 출처 및 저자(필자) 정보는 반드시 밝혀 표기해야 합니다.
『건축신문』 웹사이트 공개된 이미지의 복제, 전송, 배포 등 모든 경우의 재사용을 위해서는 반드시 원 저작자의 허락을 받아야 합니다.