탐조가
서예은, 서창연, 신창배
분량3,692자 / 7분 / 도판 18장
발행일2023년 11월 17일
유형작업설명
서예은 경희대학교 주거환경학과
서창연 경희대학교 주거환경학과
신창배 경희대학교 주거환경학과

자신을 비추는 집, 탐조가는 새들의 움직임을 보며 사색하는 아이디어에서 시작된 프로젝트입니다. 대규모의 철새 무리 군무는 사람들의 감탄과 부러움, 위안 등 다양한 감정을 느낄 수 있게 합니다. 사이트는 철원 철새 도래지로 매년 수많은 겨울철새들이 월동하는 휴식처입니다. 겨울에도 따듯한 물이 흘러 먹이를 구하기 쉽고, 러시아, 중국, 일본의 중간의 위치한 국제적인 철새도래지의 역할을 하고 있습니다. 또한 남동쪽으로는 한탄강이, 북서쪽으로는 평야 지대가 펼쳐져 있어 평지와 강의 모습을 동시에 즐기며 새를 관찰할 수 있습니다.
탐조라는 단어에는 ‘조류의 생태나 서식지를 관찰한다’는 뜻과 ‘무엇을 밝히거나 찾아내기 위해 빛을 멀리 비춘다’라는 두 가지의 뜻이 있습니다. 때문에 프로젝트 이름 ‘탐조가’에는 ‘조류를 관찰하는 사람’과 ‘자신의 내부를 비추고 밝히는 집’이라는 의미 모두를 포괄적으로 담고 있습니다.
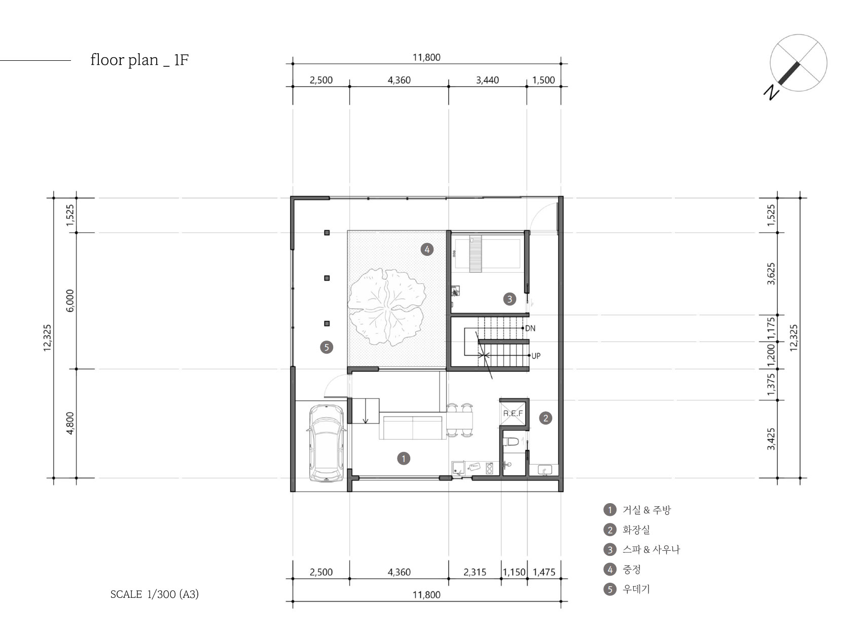
탐조가의 설계원칙은 철새들에게 영향을 미치지 않으며 탐조할 수 있는 공간을 만드는 것으로 우데기, 스테이 내부, 탐의 공간인 3중 레이어 구조로 이루어져 있습니다. 밤에는 빛이 새어나가지 않도록 우데기를 닫아 철새에게 최대한 영향을 미치지 않도록 했습니다. 또한 탐의 공간은 한탄강의 두루미를 탐조할 수 있는 시야를 확보했습니다.
여행지
철원은 철새들의 stay 공간
철새는 계절에 따라서 번식지와 겨울을 지내기 위한 지역으로 이동하는 새이다. 우리나라의 대표적 철새로는 뻐꾸기, 백로, 파랑새 등의 여름새와, 기러기, 독수리, 두루미, 부엉이 등의 겨울새가 있다. 철원 철새도래지는 철원평야 가운데 있으며, 겨울에는 땅속에서 따뜻한 물이 흘러나와 얼지 않기 때문에 철새들이 물과 먹이를 쉽게 구할 수 있는 좋은 조건을 갖추고 있다. 그들에게는 철원이라는 지역이 그들만의 stay로 자리매김한 셈이다.
강원도 철원군 동송읍 이길리 373 일대
이길리 마을을 중심으로 마을 북쪽 방향으로 북한의 오성산이 위치하고, 주요 하천으로는 한탄강 상류가 마을의 남쪽으로 흐르고 있다. 마을의 북서방향으로 토교저수지가 위치하여 두루미 도래지로 유명하다.
이길리 마을에는 두루미를 볼 수 있는 철새 도래지가 있어 탐조가들의 방문이 끊이지 않는다. 사이트를 기준으로 남동쪽으로는 한탄강이, 북서쪽으로는 평야 지대가 펼쳐져 평지와 강의 모습을 동시에 즐기며 새를 관찰할 수 있다는 장점이 있다.


페르소나
취향의 확장 × 초개인화된 모빌리티
모빌리티 기술의 발전으로 우리는 더욱 쉽게 다른 공간으로 이동할 수 있으며 완전히 새로운 공간에도 자신에게 최적화된 공간을 연결할 수 있게 되었다. 때문에 개인 자동차를 통해 여행하는 사람들의 수는 늘어나고, 운전의 피로감이 없기에 도시에서 벗어나 자연을 향해 떠나는 사람들이 늘어날 것이다. 또한 개개인의 취향이 담긴 뮤직, 유튜브 채널 등의 선호를 차량이 인식하여 AI 시스템과 IOT 시스템이 적용되어 개인의 선호가 담긴 노래, 영상을 재생해 주며 편의성을 도모할 것이다. 우리는 이들을 모터리스트라 이름 붙이고 이들을 위한 공간을 설계하고자 했다.
“모터리스트: 자율주행 발전으로 인해 차를 타고 어디든지 이동하며 여행하는 사람들”

스테이











모형



심사위원 질의응답
노경록 모터리스트라는 페르소나를 선정했다. 이것이 공간적으로는 어떻게 반영되었는가?
탐조가 우리가 모터리스트를 페르소나로 선정한 이유는, 초개인화 시대가 되면서 자동차에서도 개인이 선택할 수 있는 부분이 많아진다고 생각했기 때문이다. ‘자신의 취향에 맞게 옵션을 선택한 자동차가 움직이는 나만의 취향 공간이라면, 이것을 그대로 스테이에 옮겨가면 어떨까?’라는 질문에서 시작했다.
보통 스테이나 호텔에 가면 보편화된 서비스가 준비되어 있어 나의 취향이 담기지 못하고 호스트의 취향을 즐기게 된다. 탐조가에서는 자동차에 반영되어 있는 자신의 취향을 그대로 스테이와 연결하여 사용할 수 있다는 장점이 있고, 거실 부분에는 자동차와 바로 연결되는 개구부를 만들어 의자, 죄석, 시트가 거실 내부로 돌아다닐 수 있게 설계했다.
박중현 사이트는 철원인데 ‘우데기’라는 울릉도의 건축 양식을 사용했다. 다른 지역의 양식을 들여온 이유가 있을까?
탐조가 이 사이트는 민간인 출입통제구역 안에 있는, 개발이 금지된 구역이다. 만약에 개발 제한이 풀린다면 개발을 하더라도 조심스럽게 다가가야 한다고 생각했다. 철새의 생태에 미치는 영향과 환경 파괴를 최소화하며 건물을 짓는 방법에 대해 고민했고, 우데기가 있으면 사람들이 움직이는 모습이 잘 보이지 않을 테니 새들이 받는 스트레스를 줄일 수 있을 것이라 보았다. 그리고 강원도 전통 가옥의 특징도 사용했다. 모형을 보면 기와처럼 보이는 부분이 나무 판자를 얹어서 만든 ‘너와’이다. 강원도 지역에서는 이를 지붕으로 활용했다고 한다. 사이트 답사를 갔을 때 직접 촬영해 와서 건물에 적용해보았다.
이상묵 새를 관찰하면서 영감을 얻거나 사색을 하는 행위로 이어진다는 아이디어는 정말 좋다. 다만 이 건물의 형태가 그 행위에 최적화된 공간인지에 대해서는 개인적으로 의문이 있다. 지금의 형태를 디자인하게 된 과정을 조금 더 설명해달라.
탐조가 사이트 답사를 갔을 때 비닐하우스 안에서 탐조를 하는 모습을 보았다. 평양 쪽과 한탄강 쪽을 다 볼 수 있는 구조였는데 높이가 낮다 보니 탐조를 하는 데 한계가 있었다. (그래서 높은 매스를 두었다.) 우데기는 접었다 펼 수 있는 가변적인 구조로 계획했다. 창문 수도 최대한 적게 만들어 새들이 창문에 부딪혀서 죽는 버드 스트라이크를 방지하고, 밤에는 빛이 새어나가지 않도록 완전히 닫을 수 있게 했다. 지금의 매스는 최대한 새들에게 영향을 적게 미치면서 탐조를 더 편하게 할 수 있는 방향을 고민하며 디자인한 결과이다.
박중현 보여준 사진이나 모형에 계절감이 느껴진다. 어느 계절을 메인 시즌으로 생각하고 디자인했나?
탐조가 탐조가의 메인 시즌은 9월부터 3월까지이다. 철새 중에는 여름새도 있고 겨울새도 있는데, 겨울새는 빠르면 9월부터 철원을 찾는다고 한다. 철원은 수많은 겨울 철새들의 월동지이기 때문에 이렇게 정했다.
이상묵 그에 따라 가격도 달라지겠다. 설정한 가격에 대한 설명과 탐조가를 소개하는 한 문장이 무엇인지 알려달라.
탐조가 우선 계절별로 볼 수 있는 새의 종류에 따라 비수기와 성수기를 나누었다. 백조, 뻐꾸기, 파랑새 등을 볼 수 있는 여름은 비수기로 1박에 45만원, 탐조가의 상징인 두루미는 물론 기러기, 독수리, 부엉이를 볼 수 있는 겨울은 성수기로 55만원으로 책정했다. 서비스 측면에서는 필드 스코프, 쌍안경 등 탐조를 위한 고가의 제품들을 스테이에서 제공하고, 나무에 새를 조각하는 버드 카빙, 관찰 내용을 기록할 수 있는 탐조 기록지 등 스테이 컨셉에 맞는 다양한 콘텐츠가 준비되어 있으며 수익금의 10%를 철새 보존 활동에 쓴다는 점 등이 가격에 반영되어 있다. 보통 스테이 독채가 기본 30만원대 후반 ~ 40만원 정도이며, 성수기 여부에 따라 5-15만원 정도 추가된다는 점을 고려하여 45-55만원 사이로 책정하였다. 탐조가를 한 문장으로 소개하면, ‘자신을 비추는 집’이다.
원고화 및 편집 최정원
탐조가
분량3,692자 / 7분 / 도판 18장
발행일2023년 11월 17일
유형작업설명
『건축신문』 웹사이트 공개된 모든 텍스트는 발췌, 인용, 참조, 링크 등 모든 방식으로 자유롭게 활용 및 사용할 수 있습니다. 다만, 원문의 출처 및 저자(필자) 정보는 반드시 밝혀 표기해야 합니다.
『건축신문』 웹사이트 공개된 이미지의 복제, 전송, 배포 등 모든 경우의 재사용을 위해서는 반드시 원 저작자의 허락을 받아야 합니다.