용도 초월
조성학
분량3,203자 / 6분 / 도판 11장
발행일2023년 11월 17일
유형작업설명
용도 초월이라는 주제로 이야기를 해보려 합니다. 일단 저희는 건축에서 용도를 초월한 중요한 무언가가 있다는 믿음을 가지고 있어요. 그래서 건축을 할 때 용도 자체에 지나치게 몰입하지 않으려고 노력합니다. 그러다 보니까 스테이 프로젝트에서 트렌디한 스타일링이나 인테리어는 건축주에게 의지를 많이 하는 편입니다.
적정온도
남해의 땅은 올록볼록 재밌는 모양입니다. 마을을 걷다 보면 건물 지붕 사이, 담 사이로 보이는 자연환경, 특히 울렁이는 바다에 비치는 햇살이 굉장히 매력적인 지역이라고 생각해요. 근데 남해에 있는 펜션 혹은 숙박 시설은 이런 마을 풍경 혹은 지역성과는 상관없는, 다른 지역에서도 볼 법한 모습인 것이 아쉽다고 생각했습니다. 2017년도에 적정온도 프로젝트를 시작했는데, 스테이라는 단어도 몰랐던 때였어요. 그래서 저희가 이 프로젝트에 붙였던 이름이 ‘남해 펜션 및 단독주택’이었어요. 펜션보다는 단독주택에 좀더 집중했던 기억이 있습니다. 왜냐하면 클라이언트가 이곳에서 행복하게 살았으면 좋겠다고 생각했거든요.
주변에 있는 집들을 둘러보았더니 다들 비슷하게 생겼어요. 다닥다닥 붙어 있고 외양간 혹은 작은 창고가 있죠. 그래서 집과 창고 사이에 있는 길을 지나서 집으로 들어가는 동선이 좋았고 저희는 그것을 구현하고 싶었어요. 건물 사이사이에서 볼 수 있는 동네 풍경, 장면이 굉장히 신비하게 다가왔으면 좋겠다는 생각이었고요. 실제로 가보면 문 사이로 보이는 바다의 물결이 코 앞에 있는 듯한 착시 현상을 일으켜요.
그리고 스테이 안으로 들어왔을 때는 프라이버시 문제를 어떻게 다룰 수 있을지를 고민했습니다. 앞서 지방에 풀빌라를 설계했을 때, 손님들은 풀빌라에서 호화롭게 수영복을 입고 수영을 하는데 그 앞에는 농사를 짓는 농부가 다니는 풍경이 너무 이상하고 민망했던 경험이 있었습니다. 그래서 방법을 고민하다가, 인왕산 성곽의 여장을 보고 아이디어를 얻었어요. 그래서 이렇게 바깥으로 갈수록 점점 좁아지는 풀장을 설계했습니다.



일월일지
남해 프로젝트 같은 바닷가 주변 대지는 축복받은 자연환경만 믿고 설계해도 될 것 같은 자신감이 생기는데, 그렇지 않은 곳도 사실 많아요. 양평 일월일지 프로젝트 대지는 몇 개월 전만 해도 논농사를 짓던 땅이었습니다. 클라이언트가 여기에 주택과 스테이 설계를 의뢰했는데, 주변에 보러 올 만한 관광 요소가 없어서 걱정을 많이 했어요. 그래서 이 프로젝트 같은 경우는 내부의 풍경, 집으로 둘러싸인 정제된 중정을 만들자는 전략을 세웠습니다. 크게 3개의 덩어리가 중정을 둘러싸고 있는데, 위에서 내려다 본 사진에서 아래쪽에 있는 게 주택이에요. 주택 자리가 제일 좋아요. 집주인이 제일 좋은 곳에서 살면서 스테이 관리를 했으면 좋겠다고 생각했어요. 그리고 나머지 숙박동들은 굉장히 작은 평수지만 신경 써서 설계했습니다. 주택을 거쳐서 체크인을 하고 각자의 방으로 들어가는 방식이에요. 일단 들어가면 바로 실내로 진입하는 게 아니고 작은 숙박동들이 가지고 있는 고유의 작은 마당이 또 있어요.
이걸 설계할 때는 스테이라고 생각하지 않았고, 척박한 땅을 개간하고 일구는 선사시대 원주민의 마을을 떠올렸어요. 저희는 이 마을 사람들을 보호하는 공간을 만드는 프로젝트라고 생각했던 것 같아요. 이런 이야기를 건축주에게 굳이 설명하지는 않았고 저희 마음속 한편에 두고 진행했죠. 그러다 보니 중정에서 많은 (마을) 행사가 열릴 수 있을 거라고 상상했어요. 그래서 외부에서 봤을 때는 내향적인 마을 분위기가 되기를 바라며 외부에는 창문이나 개구부가 없도록 계획을 했고요. 지금은 스테이로 쓰이지만, 나중에 이게 다가구 주택이 되면 이상적이겠다는 생각을 했어요. 특히 이 프로젝트 클라이언트는 숙박시설 운영 경험이 있어서 관리에 대한 스트레스가 굉장히 많았어요. 그래서 사용자 경험도 중요하나, 관리자의 관리 동선도 중요하다고 여겨서 처마 공간을 마련하는 등 설계에 반영했습니다.


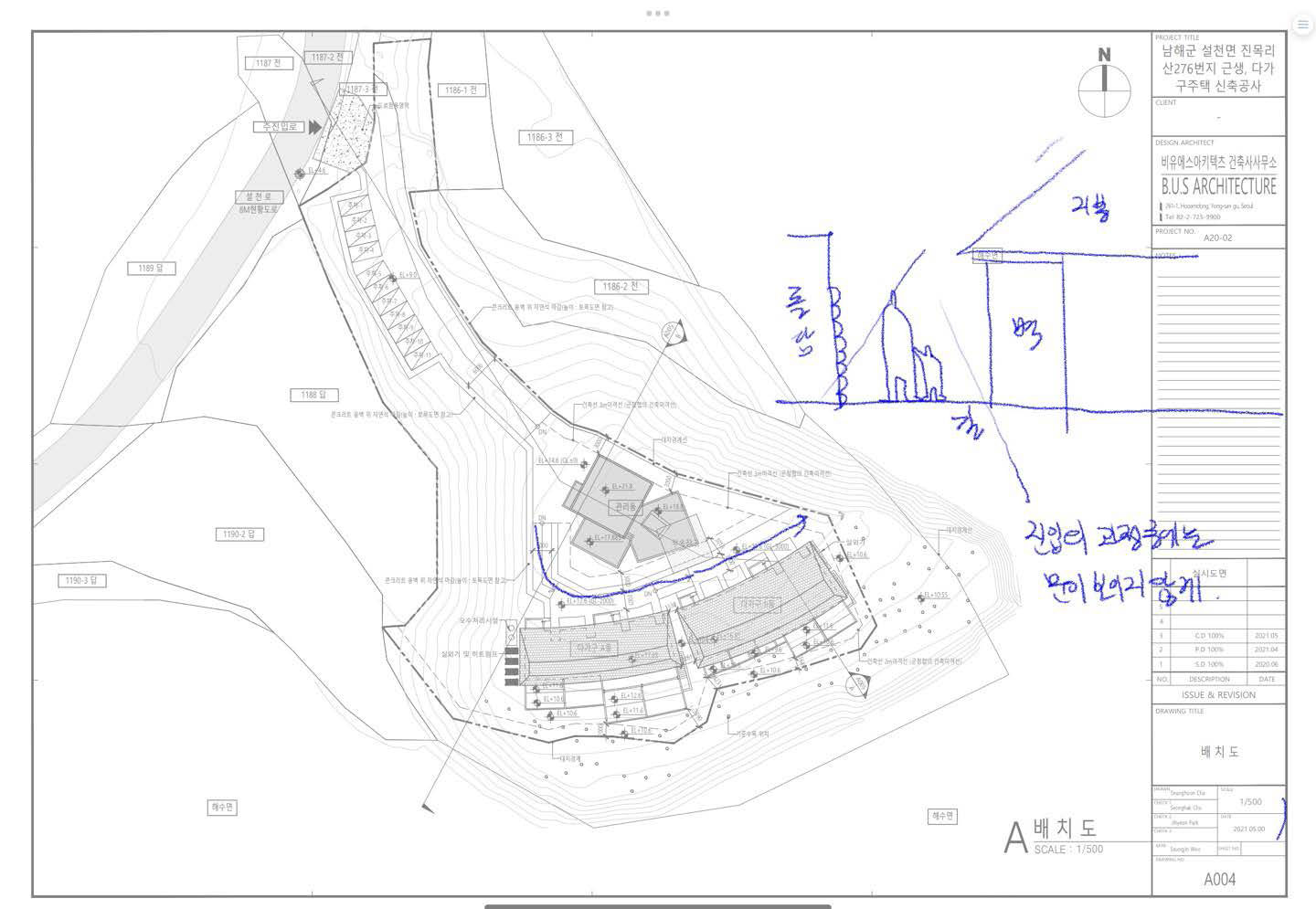
남해 여여담
남해 첫 번째 프로젝트가 성공적이어서 이 지역에 일이 한두 개 더 생겼고, 첫 번째 땅보다 자연환경이 더 멋진 곳에 작업을 하게 됐어요. 자연 발생적으로 자란 소나무를 바로 등지고 있는 땅이었는데, 이 풍경이 너무나 신기했고 계속 유지했으면 좋겠다고 생각했죠. 군청에서 먼저 저희에게 소나무를 절대 건드리지 말라고 엄포를 놓으셔서 속으로 좋아했습니다. 클라이언트에게 소나무를 최대한 살리자고 설득해야 되는데 군청에서 도와주었으니까요.
저희는 남해 여여담의 손님이 땅의 초입에 멀찍이 주차를 하고 걸어 들어오면서 소나무, 바다, 집의 풍경을 충분히 보고 들어오면 좋겠다고 생각했습니다. 각각의 집에 진입할 때도 소나무가 얼핏 보였으면 좋겠고, 바다에서 봤을 때도 기존의 풍경이 너무 흐트러지지 않기를 바랐어요.
처음에 들어오면 기존에 있는 소나무와 클라이언트의 집이 보입니다. 여기가 지대가 높고 아래쪽에 스테이가 있기 때문에 스테이 지붕의 디테일이 중요했고요. 어떻게 하면 지붕선이 깔끔하게 보일 수 있을지를 고민했던 기억이 납니다. 스테이로 진입하면서 압도적인 자연 풍경을 마주할 때 갑자기 출입문이 등장해서 그 몰입감을 방해하지 않았으면 좋겠다는 생각으로 진입하는 동선에서는 문을 만들지 않으려고 했어요. 그리고 왼편의 거대한 옹벽 스케일을 어떻게 하면 휴먼 스케일로 줄일 수 있을까를 조경가와 함께 많이 논의했습니다. 이상으로 마치겠습니다.





원고화 및 편집 심미선
BUS
비유에스건축은 박지현, 조성학 두 명의 파트너가 이끄는 건축사사무소입니다. 비유에스건축은 건축과 공간을 매개로 일어날 수 있는 유의미한 상상력을 기반으로 도시, 문화, 사람 간의 다양한 관계설정에 주목하고 건축의 ‘구축’보다 ‘과정’에 집중하여 작업을 이어가고 있습니다. 비유에스의 뜻은 철자 그대로 버스(bus)라는 소통의식에 대한 의지와 ‘규정되지 않은 스케일’이라는 비유에스가 추구하는 방법론을 가리킵니다. 대표작으로는 당진 우-물, 후암동 후아미, 진주 빗방울집, 마포 엄지척빌딩 등이 있으며 2020 젊은건축가상, 2022 서울시건축상 우수상, 2022한국목조건축대전 최우수상을 수상하였습니다. https://bus-architecture.com
용도 초월
분량3,203자 / 6분 / 도판 11장
발행일2023년 11월 17일
유형작업설명
『건축신문』 웹사이트 공개된 모든 텍스트는 발췌, 인용, 참조, 링크 등 모든 방식으로 자유롭게 활용 및 사용할 수 있습니다. 다만, 원문의 출처 및 저자(필자) 정보는 반드시 밝혀 표기해야 합니다.
『건축신문』 웹사이트 공개된 이미지의 복제, 전송, 배포 등 모든 경우의 재사용을 위해서는 반드시 원 저작자의 허락을 받아야 합니다.