담장_현대적 불안감과 편리한 해결책
유예빈
분량4,102자 / 8분 / 도판 6장
발행일2022년 9월 30일
유형작업설명
유예빈 성균관대학교 건축학과

담장_공동체 없는 집단주의 그리고 미성숙한 개인주의
담장은 본래 우리의 것이었다. 여름의 덥고 습한 기후와 겨울의 칼바람으로부터 피하기 위해 만들어진 필연적 결과물이다. 우리의 기후에서 슬기롭게 살아남기 위해서는 여름엔 최대한 바람이 잘 통하도록 창문을 열어두어야 했고 겨울에는 일차적으로 바람을 막아야 했기 때문이다. 특히 더울 때 창호를 모두 열어두면서도 프라이버시를 지키기 위해서는 거리의 사람들로부터 시야를 차단해야 했다.
그러나 근현대에 들어서면서 집을 짓는 재료가 달라지기 시작했고, 집은 때에 따라 변하기보다는 움직이지 않기를 택했다. 기후로부터 발생하는 불편함은 기계로 해소할 수 있게 되었다. 그럼에도 불구하고 담장은 없어지지 않았다. 오직 외부의 ‘보이지 않는 불안’으로부터 내가 구매한 것을 최대한 ‘보이지 않게’ 지키기 위해서.
비단 시각적인 것만을 이야기하는 것은 아니다. 아파트의 담장은 사회적 경계를 짓는다. 현대에 들어서면서 이 담장 안에 수많은 사람이 함께 살 수 있게 되었다. 이해관계로 모인 사람들이 함께 돈을 모아 지은 담장은 요새와 같아진다. 내가 마땅히 누려야 할 것에 대한 집착은 외부인, 즉 돈을 내지 않은 누군가가 침범할 때 분노와 불안으로 쉽게 돌변한다.
역시나 손쉬운 해결법은 차단이다. 이곳의 사람들은 외부와의 차단, 그리고 담장 안에 있는 사람끼리의 느슨한 연대에 열광한다. 이 담장을 무너뜨릴 수 있는 논리는 존재하지 않는다. 자본주의 국가에서 이들이 ‘구매’한 것이므로.
결국 담장은 공동체 없는 집단주의와 미성숙한 개인주의를 모두 표방한다. 지금 한국성에서 우리가 똑바로 마주 보아야 할 지점의 상징이다. 따라서 외부인이 이 주택을 바라볼 때 무언의 경계심을 느끼길 바랐다. 자신의 것을 지키겠다는 반박하기 어려운 논리를 표방하고 있는, 오점 따위 없는 깔끔한 직선. 그러나 이것이 정답이라고 확신하기 어렵게 만드는 왠지 모를 거부감과 압력. 이 메시지를 모두 전달할 수 있는 이미지를 만들어내는 것이 디자인의 핵심 과제였다.
입면에서 보이는 두 개의 선과 그 사이의 좁은 틈새를 통해 이러한 의도를 드러냈다. 사람의 시야를 차단하면서도 비용이 가장 적게 드는 1.8미터의 담장이 대지경계선을 두르고, 그 위에는 2층에 도달하는 시선까지 가려버리는 난간이 존재한다. 이 또한 2층 슬래브까지 합쳐 1.8미터의 두께로 통일해 더욱 강한 인상을 준다. 이 두 개의 담의 틈새만이 외부와 소통하는 유일한 창구이다. 물론 이 소통의 대상은 외부인이 아니라, 쾌적한 환경을 위해 외부로부터 끌어들여야 하는 햇빛과 바람이다.
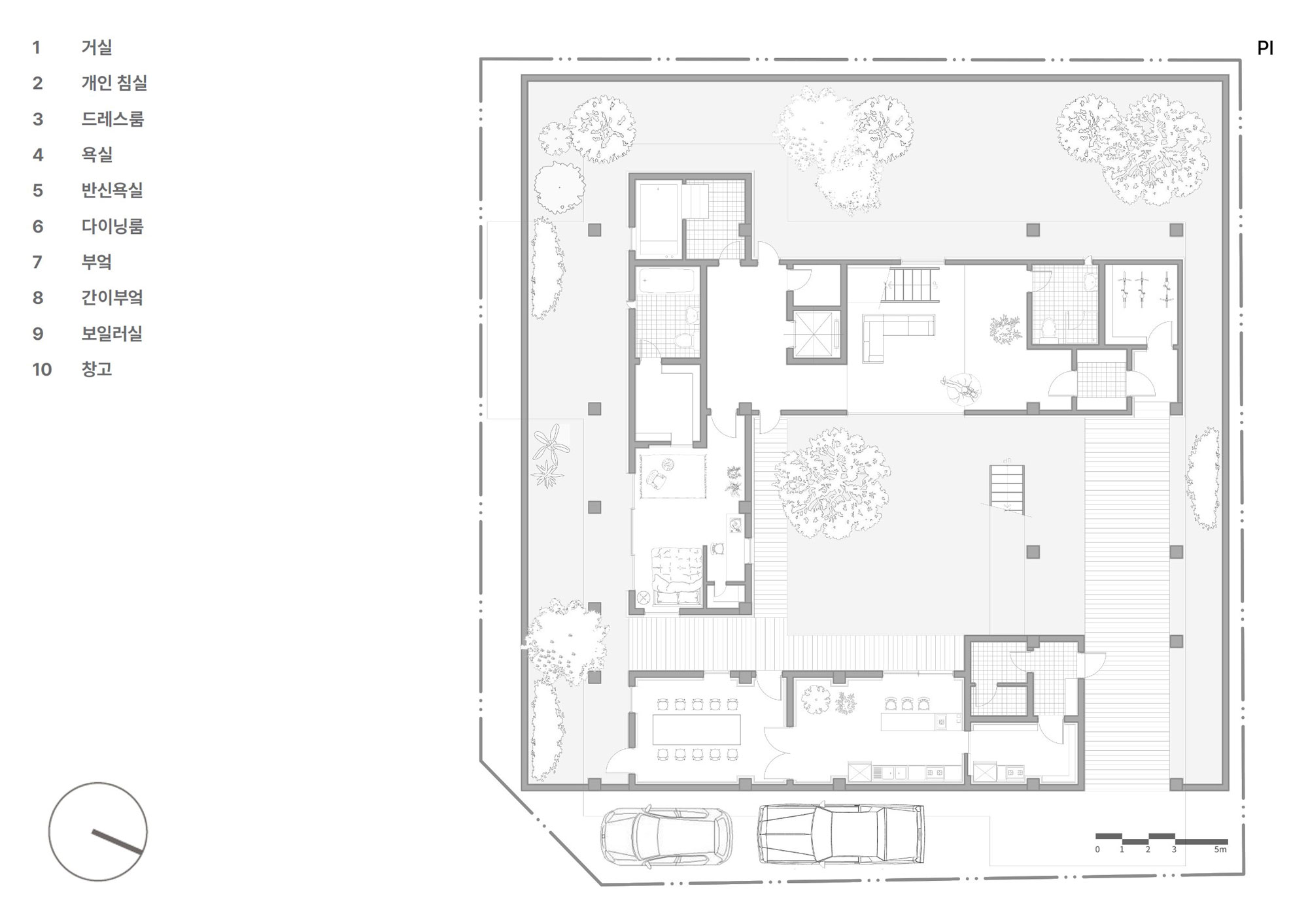
이 주택은 마포구 성산동 21번지에 있다. 사이트 선정에 큰 의미를 담진 않았지만 지금 상주하는 곳과 가깝고, 다세대 다가구, 단독 주택이 모여 있기 때문에 ‘평범한 한국 주택가’의 이미지라 골랐다. 대지의 특성상 주택의 네 면 중 두 면이 노출되게 되는데 이는 직각 형태의 담장 모서리가 더욱 강조될 수 있도록 만들어준다. 또한 이 주변에도 역시 2미터가량의 담장이 둘러진 집들이 많다는 점에서 일련의 통일성을 줄 수 있다고 여겼다.
평단면에서는 기존에 다뤄온 한국성의 모습을 담았다. 기능적인 측면보다는 입면과 대비되도록 바깥세상으로부터 보이지 않는 여유로움을 표현하고 싶었기 때문이다. 크게 난 중정과 뒷마당, 남북측의 담장을 따라 생긴 길쭉한 정원. 그리고 방 사이사이에 들어앉은 마루와 툇마루로부터 여유가 만들어진다. 한껏 남아 비어 보이기까지 하는 2층의 별 기능 없는 옥상정원은 역시 소유에 대한 집착을 말하고 있다. 중요하게 설정한 정보는 아니지만, 기본적으로 이곳엔 친구끼리 산다. 담장 안에서는 위계가 없는 것을 자유라고 느끼기 쉽다고 생각하기 때문이다.
강한 제스쳐는 아니지만, 담장으로부터 90센티미터가량 나와 있는 처마는 이 건물에 담긴 또 하나의 한국성이다. 비가 오는 날에는 차에서 내리면서 현관까지 가는 동안 비를 피할 수 있도록 만들어진 이 처마는, 외부인이 잠시 비를 피하거나 햇빛으로부터 숨을 수 있게 만들었다. 나의 것을 지키고 싶은 마음과 다른 사람을 돕고 싶은 마음은 별개이기 때문일까, 이 입체적인 면모는 한국성이라는 것을 더 알 수 없게 만든다. 오지랖이라고 불리는 이 미덕은 개인주의와 집단주의 어디에서나 존재한다. 이 입체성이 집도 사람도 매력 있게 만든다.
현대인의 기저에 깔린, 알 수 없는 불안은 경계를 시각화함으로써 손쉽게 해결된다. 결국 우리가 정말 무너뜨려야 할 것은 담장이 아닌 불안이며, 담장의 높이를 낮출수록 생기는 즐거움 또한 하나의 정답이 될 수 있음을 끊임없이 상기해야 한다. 담장 허물기 사업이 아닌 사람에 대한 신뢰가 자연스럽게 형성될 수 있는 환경이 모두의 경계를 허물게 할 수 있지 않을까.





심사위원 질의응답
서재원 담장이 너무 세련된 것이 아닌가라는 생각이 든다. 담장으로 위장하는 것이라면 외부 매스의 재료를 선택할 때 주변과의 조화를 고려하는 것이 아니라 주변 환경을 이용해서 위장하는 방법을 택했다면 낫지 않았을까. 그렇게 하면 내부 공간에서 나타나는 완전히 다른 상황들을 더 희화화 시킬 수 있었을 것이다.
그리고 마지막에 ‘오지랖’이라는 개념은 좋은 것 같은데, 건축적 표현이 부족한 것 같다. ‘내가 담장을 치지만 기본적으로 심성이 착하기 때문에 동네에 미안한 구석이 있다’는, 그 말이 틀린 것은 아니다. 그런데 조금 더 가볍고 이상한 방식으로 해결했다면 재밌지 않았을까 생각이 든다. 전반적으로 끌고가는 스토리가 아주 신선한 것은 아니나 전반적으로 무리는 없다. 결과적으로는 너무 세련된 것이 독이 되었다는 생각이다.
유예빈 그 부분에 대해 많은 고민을 했다. 담장 혹은 외부와의 차단이라는 개념을 보여주기 위해서 그야말로 두꺼운 벽을 세운다면 지나치게 부정적인 메시지가 되지 않을까라는 고민을 했다. 결국 내가 이 프로젝트를 통해서 던지는 질문은, 이게 정말 정답인지 아닌지를 고민하게 하는 것이었기 때문에 일단은 입면이 아름다웠으면 좋겠다고 생각했다. 그래서 이곳에 정말 살고 싶은 느낌을 주면서도 ‘과연 이게 정말 정답인가? 대지 경계를 따라 둘러진 담장이 어떤 조형으로서는 아름답지만 도시적인 관점에서 봤을 때 옳은 일인가?’ 라는 질문을 던진 것이다. 그리고 ‘오지랖’은 큰 흐름으로 잡은 개념이 아니라 매스를 디자인하며 추가된 설명이다.
김효영 발표를 들어보니 작업이 ‘오지랖’이라는 개념에 가깝다는 생각을 했다. 이 정도 저택이면 담장을 저렇게 낮게 쌓지 않을 것이다. 판교 등지의 주택들을 보면 지구단위계획으로 담장을 짓지 못하게 막아놓으니까 건물을 담장처럼 세우고 중정형으로 만드는 경우도 많다. 그런데 여기에서 설정한 1.8M 높이 담장은 사실 내가 어느 정도는 외부와 관계를 맺고 싶다는 뉘앙스가 깔려있다. 오지랖이라는 것이 오히려 경계선에서 밀고 당기는 느낌이라서 이해가 갔다. 그런데 그런 측면에서 보면 집의 규모가 너무 크다는 생각이 든다. 저택이 되다 보니까 경계 안에서 밀고 당기는 느낌을 받기 어렵다. 좀 더 작은 땅에서 도덕적으로 뭔가를 더 하고 싶은데 개인의 욕망도 챙기고 싶은 이중적인 욕망 사이에서 이야기를 풀었다면 더욱 설득력 있었을 것이다.
유예빈 말씀하신 것처럼 1.8m 라는 높이도 모두를 차단하고 싶다는 생각보다는 어느 정도 경계로서 최선의 높이로 설정했다. 그런 의미에서 어느 정도 배려를 하고 있다는 이야기를 할 수 있을 것 같다.
박정현 발표 중간에 주택 내부 정원에서 즐겁게 지내고 있는 거주자들 이미지를 보여주었다. 그래서 한편으로 단독 주택이라고 하는 설정 자체에 내부에서는 얼마든지 프라이버시를 즐기면서 자유롭게 지낼 수 있다는 게 깔려있는데, 굳이 내외부라는 문제를 설정한 이유가 궁금하다.
유예빈 단독 주택을 설계하면서 담장을 일부러 강조하며 주요한 매개체로 설정한 이유는 굳이 담장이 없어도 되는데 왜 우리는 계속 이것을 만들고 있을까라는 생각에서 시작된 것이다.
박정현 그리고 법적으로 지구단위계획에서 담장을 금하지 않은 곳에서 담장을 설치해서 문제를 설정하는 구도 자체가 안전한 선택을 한 것이 아닌가라는 생각도 든다. 앞에서도 언급된 판교의 경우를 보면, 건축가들이 도시 맥락을 존중하면서도 어떻게든 내부 거주자의 프라이버시를 지키려고 하는 여러 아이디어로부터 하나의 타이폴로지가 탄생한 것이다. 그런 것들이 더욱 건축적 가치가 있는 것이 아닌가라는 생각이 든다.
원고화 및 편집 심미선
담장_현대적 불안감과 편리한 해결책
분량4,102자 / 8분 / 도판 6장
발행일2022년 9월 30일
유형작업설명
『건축신문』 웹사이트 공개된 모든 텍스트는 발췌, 인용, 참조, 링크 등 모든 방식으로 자유롭게 활용 및 사용할 수 있습니다. 다만, 원문의 출처 및 저자(필자) 정보는 반드시 밝혀 표기해야 합니다.
『건축신문』 웹사이트 공개된 이미지의 복제, 전송, 배포 등 모든 경우의 재사용을 위해서는 반드시 원 저작자의 허락을 받아야 합니다.