신사 빌라트
강정우, 강지원, 장호준
분량4,805자 / 10분 / 도판 10장
발행일2022년 9월 30일
유형작업설명
강정우 연세대학교 건축공학과 건축학전공
강지원 연세대학교 건축공학과 건축학전공
장호준 연세대학교 건축공학과 건축학전공
‘정’, 침범하고자 하는 욕구
‘정겹다’, 혹은 ‘정답다.’ 우리는 흔히 ‘정’을 가까운 누군가보다는 낯선 이로부터 경험한다. ‘정’의 사전적 정의는 “사랑이나 친근감을 느끼는 마음”인데, 낯선 이로부터 친근감을 느낀다는 점에서 모순을 찾을 수 있다. 정, 혹은 친근감을 느끼게 하려고 낯선 이는 개인의 영역 안으로 침범한다. 처음 본 이발사가 나의 출신 학교에 대해 묻기도 하며, 이사를 온 사람은 본 적도 없는 이웃에게 떡을 돌린다. ‘정’은 어떻게 보면 일방적이며, 개인의 의지와는 별개로 상대방의 침투로 일어나게 된다. 결국 ‘정이 많은 나라’라는 것은 타인의 영역 안으로 침범하고자 하는 욕구가 모여 만들어진 ‘오지랖이 넓은 나라’이다.
알게 모르게 사람들에게 스며들어 있는 ‘오지랖 정신’은 건축을 통해서도 극명하게 표출된다. 길거리 1층을 따라 도보로 튀어나와 있는 어닝과 간판들, 건물 외벽에 붙은 실외기, 배관, 불법으로 증축된 테라스와 데크 등은 외부의 영역을 끊임없이 침범하고자 한다. 침범된 대지는 그들에게 점유된다. 제한 탓에 사용할 수 없는 곳에서 생겨나는 이것들은 공동의 공간을 향해 경쟁적으로 침투하며 영역을 확장해나간다. 특정 영역을 향해 일방적으로 침투한다는 점에서 그 메커니즘은 ‘정’과 닮았다고 볼 수 있을 것이다.
초현실적인 분위기를 자아내는 침투의 산물
점유의 욕구를 보여주는 위의 사례들은 기능적 요구와 맞물려 있다. 사람들 눈에 더 잘 띄기 위해, 비를 피하기 위해, 도보와 구별되기 위해, 놓일만한 마땅한 공간을 찾지 못해서 건물 밖으로 드러난다. 이러한 덧붙여지는 것들은 자본주의 논리 안에서 기능적 요구에 더해 장식적 성격을 갖게 된다. 주변의 것들보다 조금이라도 더 화려하고 눈에 띄는 간판, 입면 장식들이 경쟁적으로 덧붙는다. 덧붙는 것들의 형식은 굉장히 다양하다. 서양 건축의 요소들이 다세대 주택과 모텔의 입면 장식이 되기도 하고, 아주 현대적인 인상을 주는 장식들, 혹은 화려한 원색으로 치장된 장식이 건물의 입면을 채우기도 한다. 서로 다른 시기, 다른 장소에서 기인한 것들이 동시에 한 곳에 존재할 수 있는 건 해외의 건축 양식들에 대한 이해 결여와 이에 따른 무차별적 수용에서 기인한다. 하지만 건축 양식의 문화적 배경은 그것이 적용될 수 있는 한계를 규정짓기도 한다. 즉, 우리가 오늘날 한국에서 볼 수 있는 건축 양식은 그것의 문화적 배경과 상관없이 사용된다는 점에서 매우 자유롭다고 볼 수 있을 것이다. 도무지 같이 놓일 수 없을 것 같은 양식들이 병치 되면서 만들어내는 모습들은 초현실적 분위기를 자아낸다.
건물 밖으로 드러나고, 도시로 침투하고 있는 기능을 가진 요소들의 무작위로 한 병치는 한국의 현실이다. 우리는 이것들을 오마주한다. 가설된 모습을 영구적인 형태로 바꾸고, 요소들이 가지고 있는 보편적 이미지를 맥락 없는 다른 이미지로 바꾼다. 기능을 가지고 있는 원래의 것들은 그 기능을 그대로 유지한 채 전혀 다른 모습으로 바뀌어 도시로 재침투한다. 얼핏 보면 장식 같아 보일 수도 있는 기능들은 사람들로 하여금 그것이 기능인지 장식인지 헷갈리게 하며 초현실적 도시에서 또다른 초현실을 만들어낸다.
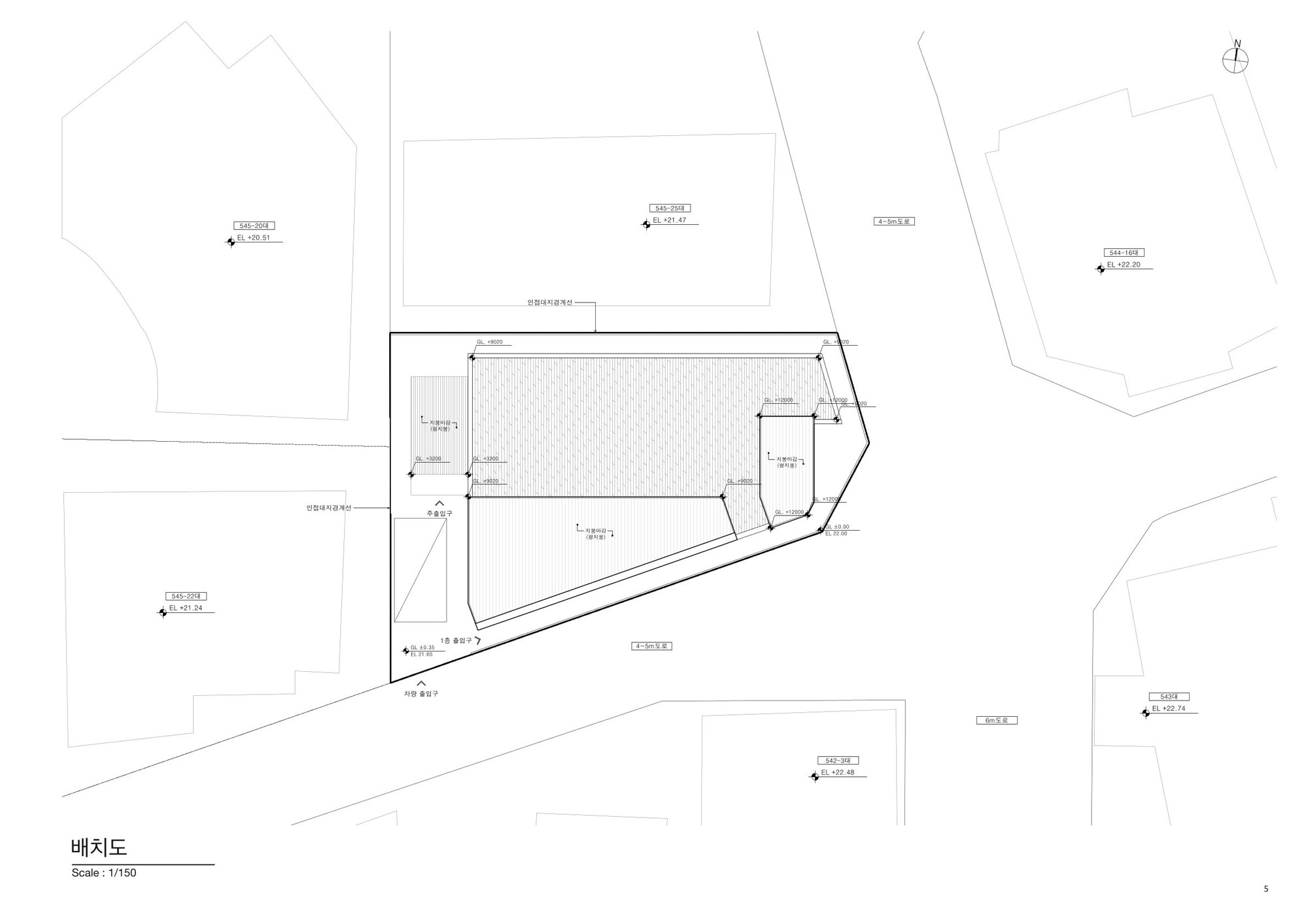
신사 빌라트, 신사동 545-23
주택이 위치하는 곳은 가로수길 바로 옆, 신사동의 작은 사거리 모퉁이이다. 대지 주변으로는 상가 건물이 자리한다. 대지 경계까지 튀어나온 천막과 데크들, 건물 외벽을 따라 매달려있는 실외기, 건물의 입면을 무시하고 1층을 뒤덮고 있는 가게의 개별적인 간판들은 공동의 영역으로 침투하고, 그것을 점유하고자 하는 지금 한국의 모습을 여과 없이 보여준다. 그 가운데에 “신사 빌라트”라는 이름의 연립 주택이 있다. 각 브랜드의 메가스토어, 인기 있는 카페, 식당 등이 가득 들어찬 곳에 뜬금없이 놓여 있는 연립 주택이다. 우리는 이곳에 두 세대가 거주할 수 있는 새로운 “신사 빌라트”를 만들고자 했다.
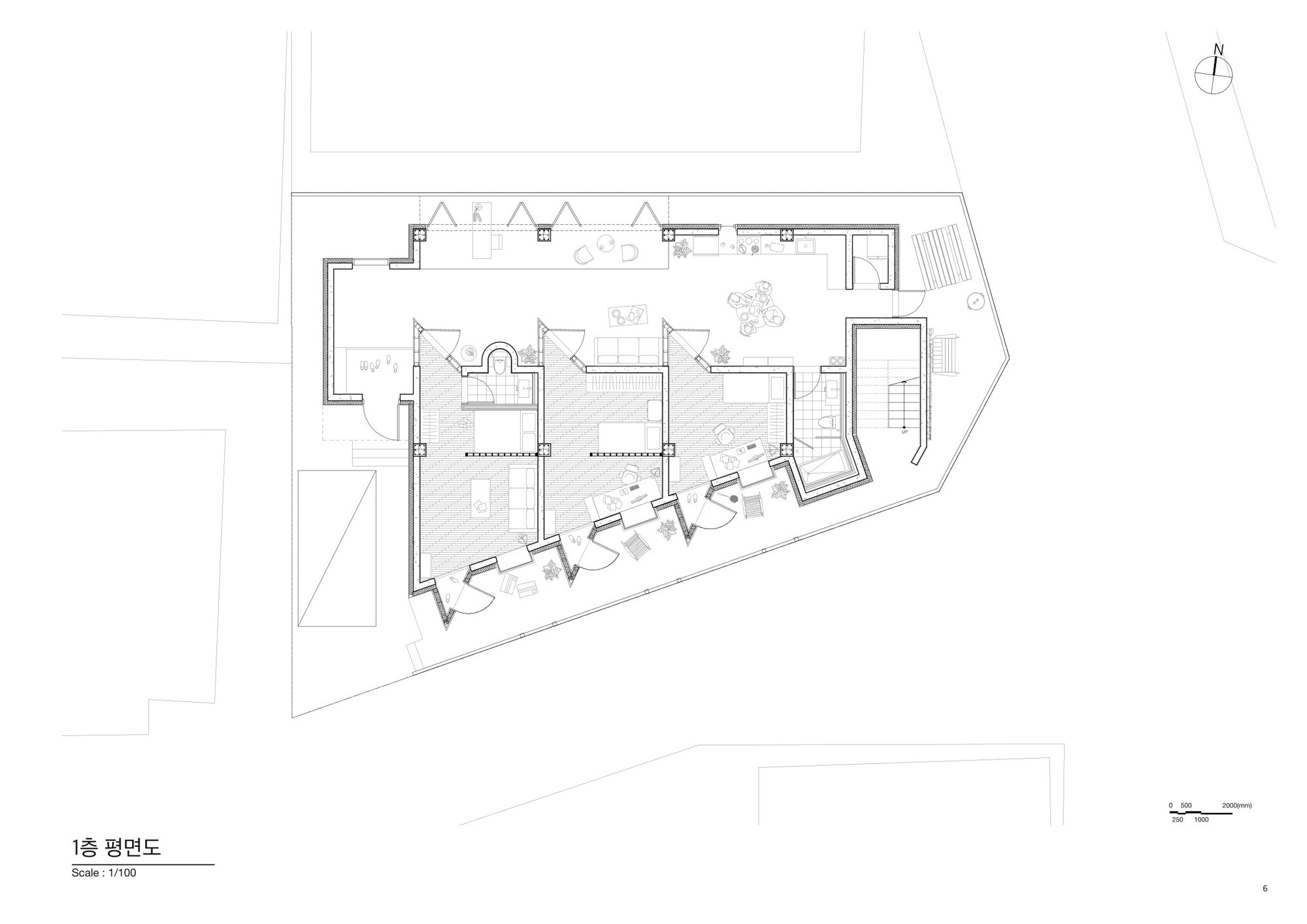
대지 경계를 따라 늘어서 있는 담장과 그 뒤로 돌출된 삼각기둥 출입구는 도로 쪽으로 침투하고 싶지만, 침투 당하려고는 하지 않고 영역을 점유하고자 하는 모습을 보여준다. 거실로 들어가는 현관이 있음에도 불구하고 각 방에 따로 현관이 있어 개개인은 각자의 방에서 도시 관점에서 모두의 영역인 길거리와 집의 관점에서 모두의 영역인 거실로 침투할 수 있다. 길거리에서 흔히 볼 수 있는, 도로 경계까지 튀어나와 있는 천막이나 데크와 같이 방에 덧붙어 있는 삼각기둥 출입구는 집에 일부가 되어 길거리와 거실로 침투하고 그 영역의 일부를 점유한다.
길모퉁이에는 전봇대 뒤로 창 하나 뚫려 있지 않은 커다란 계단실 벽이 서 있다. 계단실 벽에는 “신사 빌라트” 형상의 배관이 드러나 있다. 보통 건물 뒤로 숨겨지는 배관이 건물의 이름이 되어 가장 잘 보이는 곳으로 튀어나온다.
베이 윈도와 그 실루엣을 그대로 본뜬 장식을 담장 위에 놓아 담장과 베이 윈도 사이의 영역을 점유하고자 하는 의도를 은근히 드러내고자 했다. 동시에 익숙한 모양의 베이 윈도와, 베이 윈도의 모양을 하고 있어 낯설어 보이는 담장 장식이 초현실적 분위기를 자아낸다.
입면에 튀어나와 있는 보 사이로는 가짜 보가 섞여 있다. 정면에서 보면 같은 색과 모양을 하고 있지만 자세히 보면 보와 같은 박스 안에 실외기가 들어 있는 모습을 볼 수 있다. 도시에서 덩그러니 거리로 나와 있던 실외기는 교묘한 치장을 통해 보 흉내를 내며 거리로 자신을 들이민다.
신사 빌라트의 모습은 침범하고 침투하고자 하는 욕망의 산물이며 이는 지금 우리가 마주하는 한국의 모습이 생겨나는 원리와 유사하다.
이렇게 우리는 침투(정)를 통한 무한 점유 욕구와 그 산물을 지금, 한국성으로 제안한다.








심사위원 질의응답
서재원 각각의 요소를 구체적으로 설정하고 풀어내려 했다는 것을 좋게 보았다.
김효영 신축안인데 리모델링 같기도 하고, 다세대 다가구 주택의 입면 평면 형식 유형을 따르고 있는 것 같다. 그 이유가 있나?
강정우 강지원 장호준 단독 주택이라는 설계 과제를 받았을 때 막막했다. 왜냐하면 우리가 일반적으로 생각하는 단독 주택은 예를 들면 분당의 전람회 주택 단지와 같은 곳에서 건축가가 의도를 가지고 설계한 것을 단독주택이라고 인지하고 있었다. 그런데 우리가 일상 생활에서 느끼는 ‘주택’의 이미지는 오히려 아파트 뒤쪽에 위치한 적벽돌의 연립주택 같은 이미지가 경험적으로 먼저 떠올랐다. 그래서 우리가 우리의 안을 연립주택으로 설정하거나 그 형식을 따라야겠다고 의도한 것은 아닌데, 설계 과정에서 도로에 면하고 있는 주변 상황이나 근생에 면한 상황을 고려해 어떠한 입면 요소를 도출할지 결정하면서 디자인을 쌓아올리다보니 의도치 않게 그런 결과가 나왔다.
김효영 작업 설명을 보면 ‘정’이라는 단어로부터 출발해서 ‘침투’라는 단어도 등장했다. 그런데 그게 어떤 측면으로는 전혀 기능과는 상관 없는 장식 요소들을 보여주는 것이 그러한 개념과 어떤 관련이 있는 것인가?
강정우 강지원 장호준 우리는 ‘정’이라는 개념을 시니컬하게 바라보았다. 누군가는 친근감이라고 느낄 수 있겠지만 우리는 그것이 사생활에 대한 침투라고 여겼다. 그런 감각을 이 설계에 어떻게 연결할까 고민하다가 일반적으로 중요하지 않다고 여겨지는 것들, 현대 건축에서 장식이라던가 혹두기와 같은 것들이 건물 입면에 굉장히 강하게 노출하는 방법을 떠올렸다. 그래서 도로와 면한 입면에 쏟아내듯이 밀어붙여서 과도한 이미지를 만들어냄으로써 지나다니는 사람들에게 불편함으로 느껴지게 했다. 그런 불편한 감정이 우리가 느끼는 ’정’과 유사하다고 생각했다.
박정현 참가자가 설정한 ‘정’에 공감하면서도, 모든 것이 동전의 양면과 같아서 부정적인 측면이 있다면 긍정적인 측면도 존재한다. 부정적인 측면을 추출해서 건축적으로, 시각적으로 구현하고자 했다면, 그것이 노리는 효과가 무엇인가? 부정적인 것을 강조할 때는 그럼에도 불구하고 이 프로젝트가 사회, 혹은 다른 대상에게 다시 생각해보라는 등의 효과가 있을 것이다. 그런데 이게 단순히 입면이 튀어나온 것, 그럼에도 불구하고 약간 주춤하며 담으로 가리는 듯한 제스처가 있다. 그리고 그 부정적인 침투의 제스처가 실내의 가족 공간으로 들어가는 것은 어떤 맥락인가? 타인을 향해서 취하는 제스처와 가족을 향하는 제스처가 같아서 안될 것은 없지만 같게 한 이유가 따로 있는지 궁금하다.
강정우 강지원 장호준 첫 번째 질문에 답변하기에 앞서서 우리가 한국, 특히 서울의 상황을 어떻게 인지하고 있는지를 먼저 이야기해야 할 것 같다. 주제설명회에서도 나온 이야기이지만, 우리 도시가 너무 혼잡하다고 생각한다. 특히나 간판, 네온사인이 형형색색으로 빛나는 모습이 혼잡하다는 생각도 들고 초현실적이라는 생각을 했다. 그래서 그 초현실적인 상황을 직시하고 받아들이자는 태도로 임했다. 그렇기 때문에 그런 면을 더욱 드러냄으로써 처음에는 불편할 수 있겠지만 이러한 이미지로 치환될 수 있다는 의도를 담았다. 이 이미지가 누군가에게는 아름답게 보일 수도 있고 누군가에게는 굉장히 흉물스럽게 보일 수도 있겠지만 이러한 건물도 있다는 것을 보여주고 싶어서 이렇게 설계했다. 두 번째는, ‘집과 도로의 관계가 가족구성원과의 관계에서도 적용이 될 수 있는가’라는 질문에도 우리는 시니컬하게 접근했다. 일반적인 아파트 평면을 놓고 설계를 시작했는데 우리가 관찰한 것은 거실이 쓰기 좋게 되어있고 각 방이 거실에 붙어있는 모습이었다. 진부한 이야기일 수 있겠지만 현대 사회가 가족 구성 단위로 돌아가는 것은 아니고 개인성이 중시되는 시대이다보니 방의 볼륨에 의해서 거실이 형성되면 어떨까라는 생각에서 메커니즘을 적용했던 것이다. 그렇기 때문에 거실이 장방형으로 길어지고 일반적인 우리가 생각하는 효율적인 평면의 집과 그 거실과는 다른 모습이 되었다.
원고화 및 편집 심미선
신사 빌라트
분량4,805자 / 10분 / 도판 10장
발행일2022년 9월 30일
유형작업설명
『건축신문』 웹사이트 공개된 모든 텍스트는 발췌, 인용, 참조, 링크 등 모든 방식으로 자유롭게 활용 및 사용할 수 있습니다. 다만, 원문의 출처 및 저자(필자) 정보는 반드시 밝혀 표기해야 합니다.
『건축신문』 웹사이트 공개된 이미지의 복제, 전송, 배포 등 모든 경우의 재사용을 위해서는 반드시 원 저작자의 허락을 받아야 합니다.

