호작도와 참조적 유희
유정민, 김승묵
분량2,362자 / 5분 / 도판 8장
발행일2022년 9월 30일
유형작업설명
유정민 국민대학교 건축학과
김승묵 국민대학교 건축학과

호작도는 다양한 계층의 사회 구성원들 사이에서 향유된 오랜 역사를 가진 민화다. 민화는 제작 연대나 작가를 추정할 수 없는 그림인데, 누구나 그릴 수 있는 그림이라는 점에서 참여적이며 비전문적인 타이폴로지다. 특히, 호작도의 소재는 까치와 호랑이인데, 어딘가 이상하다. 두려움의 대상으로 인식되던 호랑이의 험상궂음은 온데간데없고 우스꽝스러운 얼굴을 하고 있다. 오히려 작은 까치가 더 늠름한 이 모순적 병치는 무엇인가?
현재의 한국성을 이해하기 위해 우리 주변을 둘러본다. 곳곳에 ‘흔한’ 적벽돌 쌓아 올린 양옥이 즐비한 주택가, 이런 풍경이 한국인에게 ‘한국적’으로 다가오는 것이 정상인가? 언제부터 벽돌 쌓아서 집 짓는 게 한국적인 풍경이었나. 뻐꾸기 창, 유럽 건축물에서 흔히 보이는 코니스, 두꺼운 몰딩, 아치, 지붕이 불란서의 그 무언가를 닮은 주택들. 오늘날 한국의 주택가는 호작도의 호랑이 같은 모습을 하고 있다. 문득 서양의 낭만적인 집에 영감받은 우리 부모님 세대의 기대에 찬 미소가 눈에 선하다.
이처럼 2% 부족한 참조들이 모이고 모여 정겨운 골목길을 만들었다. 88년도에 대학생이었을 리 만무한 우리에게 왜 드라마 ‘응답하라 1988’속 동네 모습이 향수를 불러일으키는가?
메를로 퐁티는 경험과 인식을 지배하는 일차적 감각으로 시각을 제시한다. 가장 쉽고 빠르게 받아들여지는 시각적 정보는 현상학적으로 우리의 인식을 구성하며 그 이후의 경험에 중요한 단초를 제공한다. 그 때문에 일상 속 반복되는 장면의 잔상은 우리 인식을 구조화하는 우선적 요소이다. 따라서 우리는 일상의 장면에 관심을 기울이며 제3의 문화로부터 유래하는, 다양한 방향으로 참조된 결과물에 눈을 돌린다. 그들의 부족한 외형적 모습 때문에 ‘멋진’ 건물로 분류되지 못하지만 도시 어디에나 지배적으로 존재하는 단독 주택을 다시 참조하는 행위로부터 우리는 ‘지금, 한국성이 무엇인가?’라는 질문에 답하고자 한다.







심사위원 질의응답
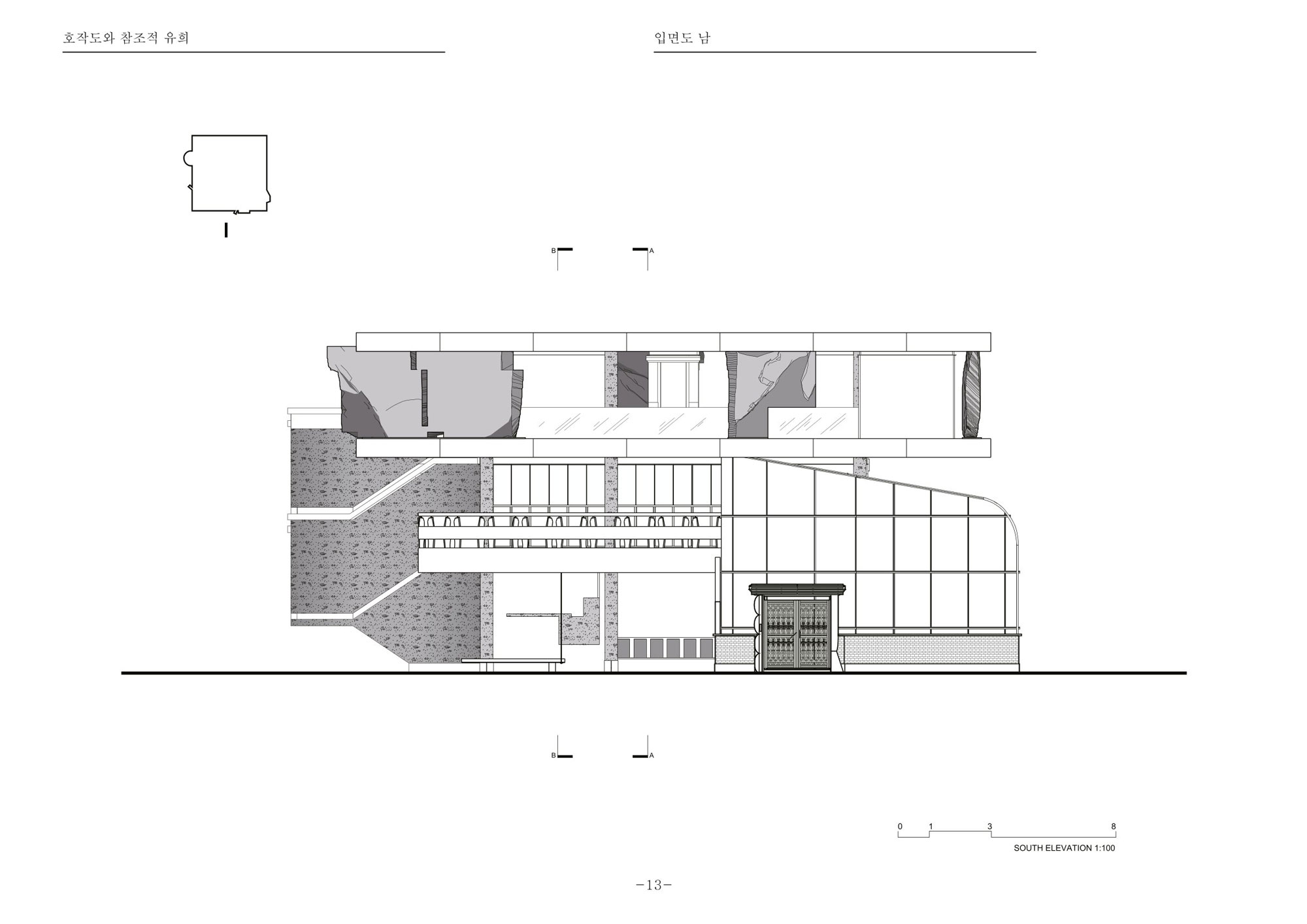
서재원 입면도에서 보면 발레리오 올지아티를 연상하게 하는 오브제가 있다. 그것에 대한 설명을 부탁한다.
유정민 김승묵 우리가 사이트를 고를 때 홍은동, 서초동 등 여러 동네를 샅샅이 돌아다녔는데, 이런 형상이 눈에 많이 띄었다. 형태를 그대로 표현한 것이다.
서재원 내가 보기에, 현대 건축으로부터 참조를 많이 한 것 같다. 나인 스퀘어 그리드(Nine Square Grid)도 보이고 전통 한옥이나 다가구 주택의 요소 등이 눈에 띈다. 평면도를 보면 입구의 굉장히 큰 홀, 중첩된 게이트, 왼쪽 상단에 붙은 원형 계단도 스케일에 비해서 큰데 이런 참조점이 뒤섞이며 언발란스하면서도 전체적인 평면은 아름답다. 모형도 보고 놀랐다. 참가자가 설명했듯, 참조와 비참조, 상호참조 등 여러 가지로 잘 풀어낸 것 같다.
박정현 서재원 소장님 말씀대로 여러 가지 레퍼런스를 차용한 작업이다. 재현과 표상은 언제나 청중을 상정하게 마련이다. 그래서 이 설계를 할 때 저 공간을 바라보고 숨은 의미를 읽어줄 사람이 누구라고 생각했는지 궁금하다. 외부인을 청중으로 상정해 참조점의 작동원리가 바깥으로 퍼져나가는 표상인지, 아니면 건축주 또는 건축가를 청중으로 상정한, 내부적인 것인지? 왜냐하면 대지와 사이트 진입로를 보고 ‘일부러 도시에서 동떨어진 장소를 찾았나’라는 생각이 들었기 때문이다.
유정민 김승묵 말씀하신대로 도시적인 곳을 벗어난 장소를 의도적으로 골랐다. 도시적인 참조점에서 점점 내밀한 공간으로 가는 시퀀스를 구조화하기 위함이다. 옆에 건물이 붙어서 같이 있는 것처럼 보이지만 실제로는 진입 동선이 유리되어있고, 분리되면서 새로운 방향으로 나아가고 있다는 것을 암시하기 위해 그렇게 대지를 선정했다.
김효영 제목을 잘 지었다. 민화가 대중적이고 참여적이라고 이야기함으로써 주변 도시로부터 일상적인 참조점을 가지고 오는 것에 대한 명분을 만들어주지 않나 하는 생각이 들었다. 그런데 층이 올라가면서 비참조적인 오브제가 있다는 설명을 했고, 그게 새로운 한국성이라고 언급했다. 그 지점이 이해가 가지 않는다. 주제 설명에서부터 대중적이고 참여적인 어휘에 가치를 부여하다가 갑자기 어느 순간에는 비참조적인 오브제가 의미가 있다는 서술에 대한 설명을 부탁한다.
유정민 김승묵 새로운 한국성이기 보다는 발전된 한국성을 이야기하고 싶었다. 우리가 생각한 한국 주거 타이폴로지의 오브제성을 이야기할 때 그 표상이 기표나 기의를 갖고 있지 않았다. 그럼에도 불구하고 미학적으로 아름다워보이고 구성이 매혹적이었다. 그런 참조점이 1층과 2층을 대변하고 있다면 3층에는 그로부터 벗어나서 이상한 것이 들어오기 시작한다. 이런 기이한 오브제가 개입하면서 그 공간을 향유하는 사람들이 그것을 통해 다른 한국적 공간의 양식을 만들 수 있지 않을까 상상했다.
원고화 및 편집 심미선
호작도와 참조적 유희
분량2,362자 / 5분 / 도판 8장
발행일2022년 9월 30일
유형작업설명
『건축신문』 웹사이트 공개된 모든 텍스트는 발췌, 인용, 참조, 링크 등 모든 방식으로 자유롭게 활용 및 사용할 수 있습니다. 다만, 원문의 출처 및 저자(필자) 정보는 반드시 밝혀 표기해야 합니다.
『건축신문』 웹사이트 공개된 이미지의 복제, 전송, 배포 등 모든 경우의 재사용을 위해서는 반드시 원 저작자의 허락을 받아야 합니다.