한국산업은행 본점 계획안 1975(을지로), 1977(학동), 1982(여의도)
박정현
분량422자 / 1분 / 도판 39장
발행일2017년 12월 28일
유형아카이브

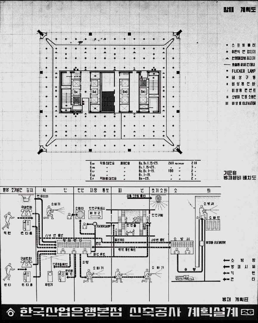
1975년부터 1982년까지 세 차례에 걸쳐 수행한 계획안으로 정림의 은행에 대한 어휘인 영업장의 포디엄과 사무동 타워 부분의 구성이 각기 다른 환경적 특성을 지닌 대지에 일관되게 적용되고 있다. 1975년 현상설계에서 1등 당선된 이래 이전 계획의 변경에 따라 일련의 작업이 수행되었으며, 모두 실현되지는 않았다.





한국산업은행 본점 계획안 1975(을지로), 1977(학동), 1982(여의도)
분량422자 / 1분 / 도판 39장
발행일2017년 12월 28일
유형아카이브
『건축신문』 웹사이트 공개된 모든 텍스트는 발췌, 인용, 참조, 링크 등 모든 방식으로 자유롭게 활용 및 사용할 수 있습니다. 다만, 원문의 출처 및 저자(필자) 정보는 반드시 밝혀 표기해야 합니다.
『건축신문』 웹사이트 공개된 이미지의 복제, 전송, 배포 등 모든 경우의 재사용을 위해서는 반드시 원 저작자의 허락을 받아야 합니다.
































