Concrete Utopia
최재원, 이민태, 김재윤
분량3,332자 / 6분 / 도판 18장
발행일2024년 8월 27일
유형작업설명
최재원 동명대학교 건축학과
이민태 동명대학교 건축학과
김재윤 동명대학교 건축학과

“그들이 떠난 후, 무엇을 남길 것인가?”
#프롤로그 인류는 자연과 야생동물의 서식지를 밀어내고 그들의 희생을 통해 성장해 왔다. 이러한 과정에서 우리는 여러 형태의 건축물을 만들었으며, 이것은 자연의 영역을 점차 갉아먹었다.
#왜 아파트인가? 우리의 일상에서 쉽게 찾을 수 있는 대표적인 건물로는 아파트가 있다. 하루의 시작과 끝을 함께하는 공간인 아파트는 우리의 삶에서 중요한 역할을 한다. 하지만 동시에, 현재의 아파트는 어떤 모습일까? 그리고 미래의 아파트는 어떻게 발전해야 할까? 과거의 아파트는 최소한의 면적대비 최대 효율을 위해 만들어진 건물로, 어떤 의미로는 자연을 최소한으로 개발하는 방향으로 나아갔었다. 그러나 시간이 흐르며 금전적 가치를 더욱 중요하게 인식하게 되었으며, 이에 따라 과도한 난개발로 이어져 자연을 더욱 빠르게 밀어내는 악순환으로 변화했다. 이러한 행위로 인하여 인구가 줄어든 미래의 대한민국에선 아파트는 폐허로 바뀌어 자연에 남게 될 것이며, 이는 자연을 단절시키게 될 것이다. 우리는 유토피아의 첫 번째 시작을 위해 앞서 말한 문제를 가진 곳을 찾고자 하였다.
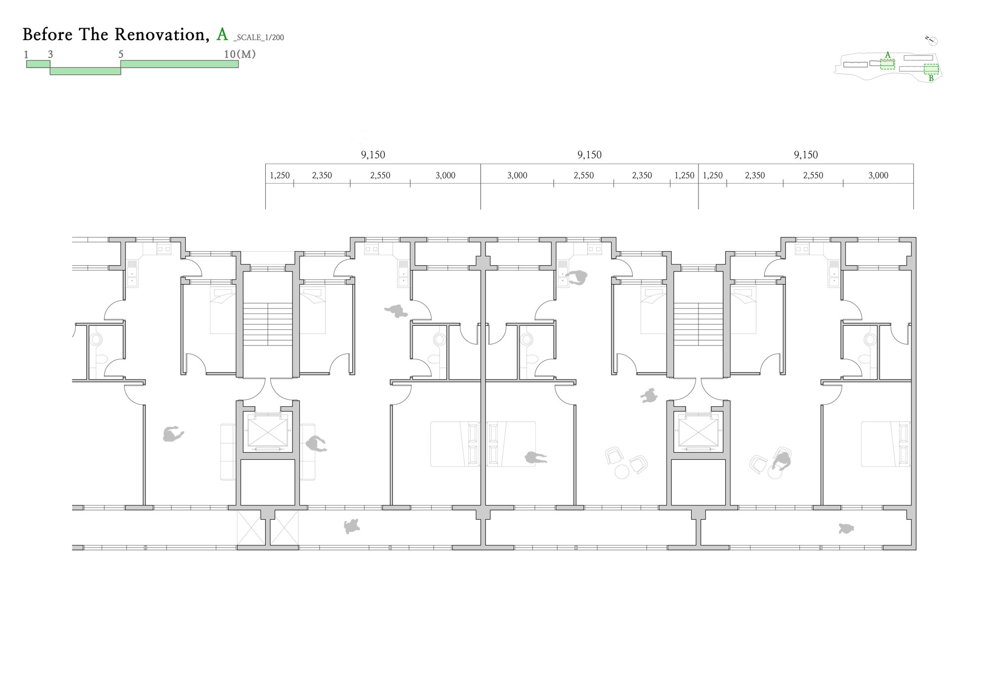
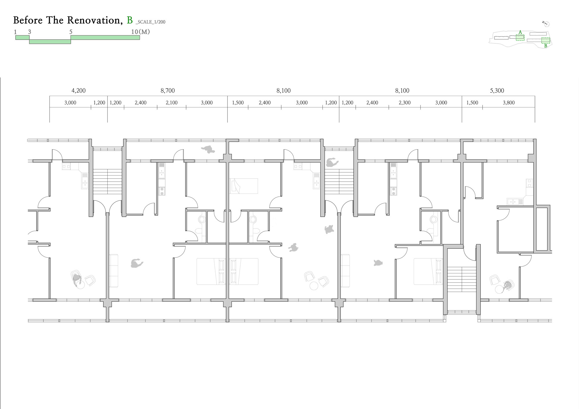
#Site 포항시에는 자연을 단절시킨 아파트가 존재한다. 대지 답사를 진행하면서 알아낸 정보로는 4면에 도로, 담장, 고가도로로 인해 동물들이 접근하기에 위험한 환경이 조성되어 있으며 또한 준공 후 30년 이상 시간이 흘러 개보수가 필요하였다.

#조경 분석 조경학에서는 나무를 보면 생태계에 일어났던 일을 어림짐작할 수 있다고 한다. 이를 바탕으로 알 수 있었던 큰 특징 2가지가 있다. 첫째, 사이트를 기준으로 양옆의 식생은 원래 하나의 소나무 군락으로 이어져 있었다는 점, 둘째, 인위적인 고가도로, 도로 등으로 인해 식생 생태계가 고립화가 진행되었다는 점이다.

#주위의 이웃들 해당 아파트 주변에는 많은 이웃들이 존재한다. 포항시 생태지도를 바탕으로 조사한 결과 생각 이상의 동물들이 살아가고 있으며 또한 포항시는 여름, 겨울 철새들의 중간 정착지 역할을 하고 있다.

#컨셉 “다가올 미래의 우리는 어떻게 살아가야 하는가?”의 대답으로 부분 철거 중에 발생하는 건축 폐자재를 재활용한 새로운 주거 타입을 제안 및 자연을 끊고 있는 주거를 넘어서, 순환할 수 있는 생태통로를 제안하고자 한다.
#재료 선정 조사 중 우리는 건축 폐자재의 99%가 재활용이 가능하며 벽돌 콘크리트 등으로 재사용 가능하다는 것이었다.

#생활 타입 인근에 존재하는 동물 및 조류에 대한 생활환경을 분석하기 위해 생활 특성, 무리생활의 유무, 크기의 순으로 분석을 진행하였으며 분류를 바탕으로 총 8개의 동물 생활환경과 4개의 조류 생활환경을 도출했다. 타입에 사용하는 재료는 개보수 시 발생하는 폐자재를 재사용하며, 또한 아파트에서 존재하는 창문의 하부공간을 개조하며, 이 과정 중 나오는 프레임, 단열, 순환골재를 이용하여 모듈을 제작하였다.



#생태통로 터널 위에는 동물들이 지나갈 수 있는 생태통로가 존재한다. 우리는 고속도로와 사이트의 단절된 모습이 크게 다르지 않다고 생각하였다. 따라서 해당 아이디어를 사용하여 대지를 이어줄 또 하나의 길인 생태통로를 설치하였다. 또한 생태통로에서 주거지까지 이어줄 연결 통로로서 수직적 이동은 폐기 석고보드, 난간 등을 사용한 시스템 비계로 수평적 이동은 폐기 철근, 순환골재 등을 합쳐 사용하며 동물의 크기를 고려해 통행로의 넓이를 조절, 상호작용이 가능한 종끼리 연결해 주었다.


#마스터 플랜 우리가 제안하는 마스터플랜은 형태가 정해져 있지 않다. 그렇기에 거주민의 주체가 누구냐에 따라 연결 통로 및 주거지를 더 설치하게 되며 이렇게 유토피아의 반영구적 주거는 시작된다.


#평면 현재의 고층아파트의 고층아파트는 소형 조류들과 몸을 숨길 공간이 필요한, 조류들의 주거지로 재탄생한다. 앞서 말한 것처럼 저층아파트 또한 생태계가 자유롭게 이동할 수 있는 생태통로와 그로부터 이어지는 새로운 주거지로 변화한다.
#성장하는 건물 우리의 설계안은 성장한다. 현재에서 30년으로, 이후 100년 이상의 시간이 흐름에 따라 콘크리트 유토피아의 형태는 자리잡힌다. 이처럼 먼 미래에 만들어질 사회환경에 대응한 콘크리트 유토피아로 바뀌며 기존 자연을 갈라놓던 아파트는 완충지대의 역할을 다하게 될 것이다.


심사위원 질의응답
최진우 아파트가 인간 거주 종료 이후에 별도의 철거 없이 동물의 서식지가 되는 것을 꿈꾸는 프로젝트인가?
콘크리트유토피아 프로젝트는 인구 감소를 전제로 시 외곽에 존재하는 아파트의 거주민이 점차 도심 중심부로 이동하여 대상지의 아파트가 비워지는 것부터 시작한다. 비워진 아파트를 리노베이션하여 30년 이후에 동물의 서식지로 자리 잡을 수 있다는 시나리오다. 프로젝트는 생태 통로의 역할이 중점이기 때문에 주거지의 위치는 명확하게 정해져 있지 않다.
김정임 생태통로를 사람도 이용할 수 있는가?
콘크리트유토피아 프로젝트는 인간이 떠난 이후 남긴 것에 대한 고민에서 시작했다. 그래서 생태통로를 인간이 사용할 수는 있으나 주체적인 사용자는 아니다.
최진우 프로젝트는 산림 단절지에 위치한 아파트를 대상으로 한다. 콘크리트 유토피아를 만들기 위해 아파트 건물을 그대로 활용하거나 건물의 일부 요소만 변형하는 방식이 있을텐데, 이렇게 특수한 대지 조건이 아닌 다른 유형의 대지조건에 위치한 아파트에서는 어떤 방식으로 접근할 수 있는지 알고 싶다.
콘크리트유토피아 대상지의 특성을 고려해서 생태통로라는 프로그램을 설정했지만, 기존 대지의 경우 자연 생태계 영역이 넓어지면서 생물이 다닐 수 있는 길이 생긴다. 그렇기 때문에 다른 대지조건에서도 적용 가능해야 한다는 관점에서 아파트의 실을 먼저 리노베이션 한 후 다음 주거지까지 이어준다는 개념으로 접근했다.
조재원 여러 시차를 둔 다른 시나리오가 겹쳐져 있다. 복수의 시나리오가 동시에 표현되어 혼란이 있다. 아파트에 거주자가 있는 시기에 이 프로젝트의 계획이 시작될 수 있는데, 그렇다면 거주와 생태통로가 평행하게 시작된다. 그 이후에 거주지가 비워지면서 입면부에 수평으로 붙는 통로가 설치될 수 있다. 이런 내용이 모형과 도면에 한번에 표현되어 있어서 혼란을 준다. 계획자로서 일차적인 전제와 시나리오를 명확히 언급해서 이 계획을 실행하는 사람이 위계적으로 시나리오를 적용할 수 있도록 해야 하는데 그렇지 못해서 아쉽다. 또 아파트 프로토타입에 대한 제안인지, 특수한 대상지에 대한 제안인지가 모호하다. 산림단절지라는 지형과 아파트가 만나는 특수한 조건에 대한 제안이 더 힘이 있다고 느껴진다.
원고화 및 편집 심하늘
Concrete Utopia
분량3,332자 / 6분 / 도판 18장
발행일2024년 8월 27일
유형작업설명
『건축신문』 웹사이트 공개된 모든 텍스트는 발췌, 인용, 참조, 링크 등 모든 방식으로 자유롭게 활용 및 사용할 수 있습니다. 다만, 원문의 출처 및 저자(필자) 정보는 반드시 밝혀 표기해야 합니다.
『건축신문』 웹사이트 공개된 이미지의 복제, 전송, 배포 등 모든 경우의 재사용을 위해서는 반드시 원 저작자의 허락을 받아야 합니다.



