그 카센터
조상민, 오은주, 김선혜
분량5,282자 / 10분 / 도판 9장
발행일2013년 12월 21일
유형작업설명
홍익대 산업디자인학과 조상민
홍익대 산업디자인학과 오은주
홍익대 산업디자인학과 김선혜
홍대 앞 건축에서 영원성을 찾기란 불가능해 보인다. 금세 사라지고 다시 생겨나기를 반복하며 홍대 거리를 메우고 있는 상업공간들을 보며 다시 확인한다. 그 혼란의 한 가운데에 누군가의 아주 오래된 일상이 자리하고 있다. 1994년부터 ‘강화 카센터’라는 이름의 공간이다. 강화 카센터는 창고, 간판, 작업대 하나하나 주인아저씨의 손길이 닿지 않은 곳을 찾기 어렵다. <그 카센터>는 언제나 그 자리에서 뚜렷한 존재감을 잃지 않는 공간이 되길 바라는 마음으로 시작한 프로젝트이다.
하루가 다르게 변화하는 홍대 앞, 상업 공간들이 즐비한 거리에서 누군가의 아주 오래된 일상을 발견했다. 이제는 희귀한 풍경이 되어버린 작은 카센터는 특별한 이름으로 지칭하지 않더라도 동네 사람 모두가 떠올릴 수 있는, 어릴 적 ‘그 가게’를 추억하게 한다. ‘강화 카센터’는 1994년부터 변함없이 그 자리를 지켜오고 있으며, 홍대 앞 그리고 주인아저씨의 시간과 생활을 고스란히 담고 있다. 공간 내부로 들어가 보면 하나부터 열까지 손길이 미치지 않은 구석이 없다. 가만히 들여다보기만 하더라도 삶의 이야기를 읽고 들을 수 있는 공간이다. 여러 날이 켜켜이 쌓이면서 만들어낸 그곳의 시간과 장소는 낯선 사람들이 잠시 머물다가 떠나는 번잡한 거리에서 옛 동네를 떠올리기에 충분한 곳이었다. 투박하고 익숙한 그 모습은 화려한 카페 건물 사이에서도 사람들의 눈과 마음을 빼앗은 곳이었다. 건축주를 만나서 그의 이야기를 듣고 싶었던 단순하고도 강력한 이유로 이 프로젝트가 시작되었다.
너무 익숙한 곳이라 딱히 바라는 게 없다고 하던 첫 번째 인터뷰 이후 지속적으로 이뤄진 만남과 대화 속에서 닫혀있던 마음을 조금씩 열어주셨다. 그 틈새에서 흘러나온 개인의 일상과 역사 그리고 어릴 적 소망과 홍대의 오랜 이야기들은 이 프로젝트를 진행하는 데 있어 주요한 건축적 실마리로서 기능했다.
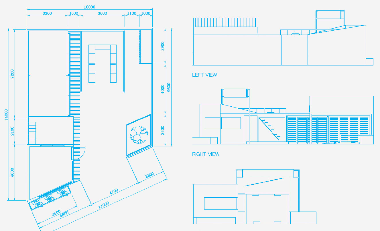
강화 카센터는 개방적인 구조임에도 불구하고, 오랫동안 쌓인 물건들로 인해 외부에서 봤을 때 폐쇄적인 공간으로 보였다. 또 공간 구획이 불분명해 효율적인 사용이 어려웠으며, 창고 역시 가건물로 이루어져 보안이 취약했다. 하지만 동시에 건축주의 넘쳐나는 개성을 잘 수용하는 공간이기도 했다. 공간을 꾸미려 한 것은 아니지만 구석구석에서 그의 시간과 역사를 마주할 수 있었다. 모든 것에는 그것이 만들어진 이유가 있었다. 이 프로젝트는 건축주이자 이 공간의 주인인 카센터 아저씨의 일상을 존중하는 공간으로 진행하는 것으로 방향을 정하게 되었다. 누구의 기억 속에나 있었지만 이제는 낡아 잊혀져 가는 그 카센터가 아저씨의 꿈을 담고, 앞으로도 언제나 그 자리에서 이웃들을 부르는 기억이자 기약의 장소가 되었으면 한다.
오랜 시간 동안 공간을 유지하고 보수하면서 만들어온 공간이기 때문에 기능상의 공간 구획은 건축주에게 있어 만족스러운 것이었다. 때문에 구분된 공간들의 기능은 그대로 유지하고자 했다. 다만 물품 보관 공간을 효율적으로 활용하고, 이곳에서 혼자 많은 시간을 보낼 건축주의 일상을 위해 생활공간과 작업공간을 구분하고자 했다. 중동에서 산업역군으로 젊은 시절을 보낸 건축주는 시대의 흐름에 의해 이 직업을 선택하게 되었지만 그의 어릴 적 꿈은 목동이었다. 가끔 화단에서 키운 상추를 뜯어 이웃들과 둘러 앉아 바비큐를 하고, 작은 텃밭이 딸린 시골의 전원주택에서의 삶을 꿈꾸는 건축주를 위한 공간을 계획하고자 한다. 낯선 이들을 위한 공간이 아닌, 동네 사람들이 자유롭게 드나들며 커뮤니티를 형성하는 마실이 되었으면 한다. 고물과 작업도구가 가득한 기능 위주의 공간이 아닌, 이웃에게 늘 열려있는 ‘그 가게’가 되는 것이다.

건축주 인터뷰
건축주
강화 카센터 주인
—
조상민 오은주 김선혜 세월이 느껴집니다. 강화 카센터는 언제 홍대 앞에 자리를 잡았는지요?
건축주 처음엔 서초동에서 시작했습니다. 세차장을 겸하는 카센터였는데 땅 주인이 건물을 짓겠다고 나가라고 해서 1994년에 지금 여기로 자리를 옮기게 되었습니다.
조상민 오은주 김선혜 19년 동안이나 같은 자리를 지키셨습니다. 그동안 가게 주변이나 홍대 거리도 많이 바뀌었죠?
건축주 원래 이쪽은 철물점, 지물포, 세탁소, 구멍가게 정도가 있던 지역이에요. 상권 형성이 안 돼 있던 곳인지라 지금처럼 외지 사람들이 많이 다니던 곳이 아니었습니다. 동네 사람들만 다니던 길에 카페가 생겨서 지금처럼 된지는 불과 4~5년 정도 되었습니다.
조상민 오은주 김선혜 주변에 신축이나 재건축이 활발한데 그런 문의를 받아 본 적은 없으셨나요?
건축주 글쎄요. 없었습니다.
조상민 오은주 김선혜 안에 들어와 보니 공간 곳곳에 손이 많이 간 것 같습니다. 실력이 대단하십니다. 원래 이런 작업을 즐겨 하셨나요?
건축주 가게의 건물, 간판, 작업대까지 다 제가 만든 것입니다. 원래부터 흥미가 있어서 만들었다기보다는 외부에 맡기는 게 너무 비싸다 보니 직접 만들게 되었습니다. 멋은 없죠.
조상민 오은주 김선혜 지금 가게에서 가장 애착이 가는 부분이 있다면 무엇인가요? 또 공간을 사용하면서 불편한 점이 있다면 무엇인가요?
건축주 애착이 많은 공간이라면, 가게 뒤에 알루미늄 그리고 스테인리스 같은 귀중품 같은 재료를 모아둔 창고라고 할 수 있을 것 같습니다. 다 내가 필요에 의해 만든 것들이라 딱히 불편한 것은 없습니다만, 건물이 오래되고 낡은 점을 이야기 할 수 있겠지요.
조상민 오은주 김선혜 카센터에서 주로 어떤 작업들을 하는지 궁금합니다.
건축주 차 수리, 엔진, 전기 뭐든지 다 합니다. 그런데 대기업에서 카센터를 운영하면서 가게가 잘 안되다 보니 요즘은 부업으로 철거나 고물, 고철 수집을 합니다.
조상민 오은주 김선혜 가게에서 하루를 어떻게 보내는 편이신지요?
건축주 아침 8시에 출근해서 저녁 8~9시쯤 퇴근합니다. 작업하는 동안은 손님들이 있기도 하지만 거의 하루 종일 혼자서 시간을 보냅니다. 식사는 밖에서 하고, 화장실은 옆 건물을 이용하고요. 별로 불편한 것은 없습니다.
조상민 오은주 김선혜 혼자 계실 땐 주로 무엇을 하시나요? 가까이 지내는 이웃과 교류가 있으신가요?
건축주 혼자 있을 땐 TV를 보는데, 따로 하는 건 없습니다. 이제는 그게 익숙하고 습관이 되어서 심심하다는 생각이 들지 않습니다. 예전에는 동네 주민들이 주변에 많이 살았지만, 이제는 가정집에도 다 세를 주고 떠났습니다. 그 자리에 카페들이 들어오기 시작했는데 아무리 오래 있어도 2년이면 다시 바뀌죠. 요새는 놀러 오는 사람들도 별로 없고, 남아 있는 사람들이 대여섯 명 정도 있는데 옛날과 같지 않습니다.
조상민 오은주 김선혜 들어올 때 강아지가 무척 반겨주던데, 언제부터 키우셨는지요?
건축주 아주 어렸을 때 데려왔습니다. 못생겨서 이름은 곰순이인데 사람들을 보면 괜히 신이 나서 난리 법석을 피우죠. 덩치는 커도 순합니다. 도둑이 종종 들어서 키우게 되었습니다. 내가 퇴근하고 집에 가면 곰순이가 가게를 지킵니다.
조상민 오은주 김선혜 건축주께서 ‘살고 싶은 공간’이 궁금합니다. 평소 즐기시는 여가나 취미활동이 있으신지요?
건축주 가게 쉬는 날엔 이런 도시에서 좀 빠져 나가려고 등산을 갑니다. 어릴 때부터 1980년대 말까지 경기 연천에서 살았습니다.
조상민 오은주 김선혜 어릴 적 살던 곳에 대한 그리움이 있으신 거 같습니다. 그 땐 어떤 일을 하셨고, 어떤 곳에 살고 싶었나요?
건축주 옛날엔 목동이 되고 싶었습니다. 그런데 1972~1973년 쯤 중동 산업 바람이 불어 돈을 벌기 위해 중동에 갔었습니다. 우리 세대는 보릿고개를 겪은 세대거든요.
조상민 오은주 김선혜 지금 꿈은 무엇인지 궁금합니다. 앞으로 어떤 곳에서 어떻게 살고 싶으신가요?
건축주 지금은 연희동에서 살고 있습니다만, 사실 시골에 내려가서 살고 싶은 마음이 큽니다. 농사를 짓고 사는 게 힘들겠지만, 작은 텃밭이나 가꾸면서 살고 싶어요. 여름에는 가게 앞 화단에 토마토, 상추, 고추 같은 걸 심어서 사람들과 바베큐도 하고요. 가게 앞에서 기르는 수세미 넝쿨은 내 자랑이기도 합니다.
조상민 오은주 김선혜 카센터는 어떤 의미를 갖는 곳인가요? 그리고 앞으로는 어떤 곳이 되었으면 하나요?
건축주 정든작업장이죠.바라는건없고장사잘되고, 사람들이 많이 오가는 곳이면 좋겠습니다. 작업장이다 보니 매일 상 차리고 할 수는 없겠지만 일주일에 한 번쯤 같이 밥 먹고 얘기하면 좋겠죠.
심사위원, 멘토 질의응답
신승현 카센터의 원래 구조는 어땠나요?
조상민 오은주 김선혜 가게 앞을 제외한 모든 부분은 다 철골로 이루어진 가건물입니다. 건축주가 직접 만든 공간이라 정확한 구조나 재료를 파악하는 게 어려웠습니다. 사용하고 싶은 공간을 그때그때 만든 것으로 보입니다. 이를테면 건축주가 스케치를 해놓은 느낌입니다. 그 스케치를 보완해서 완성하겠다는 느낌으로 프로젝트를 진행했습니다.
김정임 건축주가 마음을 열어 본인의 이야기를 하게 만든 재주가 뛰어납니다. 건축가에게 굉장히 필요한 재주라고 봅니다. 프로젝트에서 그런 개인사를 착실히 담아낸 것도 좋지만 홍대 앞에서 카센터를 계속 운영하려면 수익구조를 만드는 것도 중요한 문제로 생각됩니다. 요즘 소상공업이 지속적으로 탄탄하게 유지될 수 있도록 공간적인 측면에서 문제 해결을 위한 논의가 활발하게 이뤄지고 있는데 그런 노력은 어떻게 했나요?
조상민 오은주 김선혜 건축주가 부업으로 고물을 모으고 있습니다. 처음 갔을 때 온갖 잡동사니가 쌓여있어서 접근하기 꺼려지기도 했습니다. 뒤쪽으로 작업대를 따로 만든 것도 고물을 보이지 않게 보관하기 위해서입니다. 가건물의 철골 구조만 있다 보니 아무래도 사람들이 쉽게 드나들어 고물을 훔치는 도둑도 많이 들었다고 합니다. 그래서 폴딩 도어식의 구조물을 만들었습니다.
유걸 이 프로젝트는 카센터 주인의 이야기에 귀 기울여 프로젝트를 진행하려한 점이 특기할 점이고 그런 노력으로 굉장히 따듯한 느낌을 받았습니다. 대단한 해결책 제시는 아니더라도 건축주에 대한 정이 많이 들어간 프로젝트로 보입니다.
조한혜정 마을만들기를 하며 만나는 문구점, 세탁소 주인들의 이야기를 들어보면 변화를 원하지 않는 경우들이 많습니다. 손님도 안 오고 TV만 보더라도 이대로가 좋다고 합니다. 강화 카센터 주인은 정말로 변화를 원하는지 궁금합니다.
조상민 오은주 김선혜 인터뷰 전에 외관만 보고는 아저씨가 이것저것 이야기를 해주실 거라는 기대감이 있었습니다. 그런데 불편한 점도 없고 이대로가 좋다고 하셔서 처음에 당황했습니다. 여러 차례 인터뷰를 하는 과정에서 건축주의 꿈과 소망에 대해 들을 수 있었습니다. 건축주가 정말 지금 이대로가 좋다고 생각하는 게 아니라, 이 상황이 익숙하다 보니 변화에 대해 생각을 하지 못한 거라고 생각했습니다. 건축주를 한 번만 만나서는 해결책을 찾을 수 없고 여러 번 인간 대 인간으로 만나야 한다는 생각이 들었습니다.


나아가 다른 이들의 일상과도 마주할 수 있는 공간으로서 ‘그 카센터’를 제시한다.

구분된 공간들의 기능은 유지하되 작업과 보관을 위한 공간은 효율적으로 활용하고자 했으며,
혼자 오랜 시간을 보내는 건축주의 생활을 보다 다양하고 개방적으로 유도한다.

창을 가리고 있던 내부를 정리하여 밖을 잘 내다 볼 수 있게 하고, 대청 마루 쪽으로도 창을 내어, 찾아오는 이들과 편히 이야기 나눌 수 있게 한다. 가게 집은 혼자 있을 때에도 닫혀있지 않은 공간이 된다.

마루는 지나가던 사람도 자연스레 걸터앉을 수 있는 밖도 안도 아닌 공간이다. 이웃들이 부담 없이, 괜히 한번 들어와 앉았다 갈 수 있는 관계 회복의 열린 공간이 된다.

이전에 사용되지 않았던 가게 집의 옥상을 활용해, 물건을 보관하거나 녹지를 꾸릴 수 있게 한다. 좁은 공간에서 지루한 동선을 개선하고, 지면에 쌓인 물품들을 정리할 수 있다.

이전의 창고는 정리되지 않은 내부를 그대로 드러내 방문자들에게 다가서기 어려운 느낌을 주었다.
작업을 위한 공간을 따로 구분하여, 반은 천장을 닫고, 큰 물건이 들어가야 하는 창고의 천장은 열어 기능에 따라 공간을 드러내고 감춘다.

창고와 분리되지 않아 좁고 위험했던 차고를 따로 구획하고, 차고 뒤편에 물품을 보관할 수 있게 한다. 하루를 함께하는 강아지를 위한 공간도 마련한다.
그 카센터
분량5,282자 / 10분 / 도판 9장
발행일2013년 12월 21일
유형작업설명
『건축신문』 웹사이트 공개된 모든 텍스트는 발췌, 인용, 참조, 링크 등 모든 방식으로 자유롭게 활용 및 사용할 수 있습니다. 다만, 원문의 출처 및 저자(필자) 정보는 반드시 밝혀 표기해야 합니다.
『건축신문』 웹사이트 공개된 이미지의 복제, 전송, 배포 등 모든 경우의 재사용을 위해서는 반드시 원 저작자의 허락을 받아야 합니다.