Edge Boutique
강석규, 안세희, 정은영
분량1,983자 / 4분 / 도판 7장
발행일2012년 6월 27일
유형작업설명
강석규 한밭대학교
안세희 한밭대학교
정은영 한밭대학교
Prologue
패션거리, 낭만적 분위기를 가진 곳으로 유명한 가로수길이지만 빠른 유행주기와 ‘빨리빨리’를 선호하는 사람들에게는 몇 년씩 같은 곳에서 쇼핑을 하고 커피를 마시는 것은 너무 지루한 일이다. 두드러지고, 돋보이는 독특한 개성으로 이 ‘지루함’ 이라는 단어를 에지(edge)있게 바꾸려 한다.
Site
가로수길은 서울 강남 신사동의 J타워에서부터 현대 고등학교를 잇는 길이다. 상권에 문화적 요소가 결합된 곳으로, 인위적으로 조성된 상업 거리가 아니라 자연발생적으로 이용자들의 필요에 따라 발전해온 특색 있는 장소이다.
Character
다양한 문화와 상권이 형성되어 있는 가로수길의 주 고객층은 골드미스다. 앞으로 5년 후의 미래를 예상해보면 여성의 사회참여가 더 증가하게 되며, 우선순위가 자기개발과 개성 표출에 더 초점이 맞춰질 것이다.
그런 다음 시나리오에서 중요한 여행 형태로 당일 여행(day trip)을 선택했다. 일상 속에서 일탈을 꿈꾸는 여행인 당일 여행은 앞으로 현대인들에게 가장 필요한 여행이 될 것이다. 이를 바탕으로 가장 잘 어울리는 캐릭터로 홀로 여행하는 프로패셔널한 직업을 가진 여성을 선택하였다.
Concept
우리는 앞으로 부티크 호텔이 다양한 장르와 만날 수 있다고 생각했다. 그래서 그 다양한 장르 중에서 주택 문화관과 플래그십 스토어(flagship store)를 선택했다. 각각의 특징이 객실이라는 공간적인 면에서 경계가 모호해지면서 불분명해질 수 있다는 관점과 이들이 프로그램적으로 융합될 수 있다는 관점에서 접근을 시도했다.
이러한 시도에 가로수길만의 부티크 호텔을 만들기 위해 ‘쇼윈도(show-window)’ 개념을 적용했다. 가로수길을 따라 늘어진 쇼윈도의 집합은 로망, 이색적인 길의 분위기를 표현하며, 가로수길 이용객들과 상점을 연결해주는 매개체 역할을 하게 된다.
부티크 호텔에서의 쇼윈도는 호텔을 하나의 상점으로 보고 객실을 쇼윈도로 치환해 체험함으로써 부티크 호텔 또한 가로수길과 교감을 나누게 될 것이다.
Program
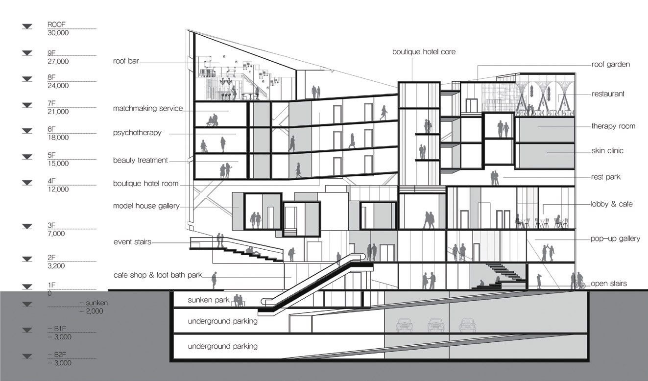
가로수길의 지루한 단일 동선에 대한 문제점을 시작으로 접근하였다. 사람들을 유입을 통해 단일 동선의 변화시키고자 하였고, 공용 공간과 호텔 전용 공간이 분리되면서 호텔에 ‘retail conveyor belt’, 즉 상업적 산책로를 적용하게 된다. 이것은 접기(folding) 기법을 이용해 가로수길을 호텔에 끌어들이게 되며 객실을 하나의 쇼룸으로 구성해 쇼윈도 개념을 담았다.
또한 앞서 언급한 단일 동선이 낳는 지루함이 공용 공간의 부재로 귀결된다. 따라서 다양한 방향의 동선을 고려한 레벨 차가 발생된 저층부에는 공용 공간이 위치하게 된다. 여기에는 가로수길의 또 다른 쇼윈도를 표현한 족욕 공간, 야외 선큰, 허브 계단 등의 부티크 광장과 팝업 스토어를 이용한 팝업 갤러리, 모델하우스 개념을 이용한 부티크 체험관이 위치한다.
객실 타입은 현대인들의 라이프스타일을 고려한 3×9=27의 유닛 타입이다. 우선 라이프스타일의 유형별 성향을 통해 개성적·절제적·자연적인 타입의 총 세 가지 기본 유닛을 바탕으로 한다. 그리고 세 가지 유형별 스타일에 대한 언어 이미지를 통해 아홉 가지 스타일을 뽑아내 3×9=27개의 유닛이 생성된다.
외피의 코드는 지속적인 집객 효과의 수단으로서 객실, 이벤트, 가로수길 정보들을 제공하면서 가로수길의 랜드마크라는 점을 각인시키게 된다. 이러한 독특한 호텔의 경험은 가로수길 부티크 호텔만의 edge 3요소로 정의할 수 있다. edge1은 이질적인 분위기와 낭만의 도시, edge2는 상업적 산책로를 적용한 쇼윈도 룸, edge3은 하나의 광경, 가로수길의 허브 역할을 담당할 광장.
에지 부티크는 기존 가로수길에서 볼 수 없었던 새로운 형태의 부티크 호텔로, 가로수길을 대표하는 안내자 역할을 할 것이며 가로수길에서만 느낄 수 있는 특별한 경험을 선사할 것이다.

홀로 여행하는 프로패셔널한 직업을 가진 여성

가로수길의 지루한 동선에 대한 문제점을 시작으로 접근



Edge Boutique
분량1,983자 / 4분 / 도판 7장
발행일2012년 6월 27일
유형작업설명
『건축신문』 웹사이트 공개된 모든 텍스트는 발췌, 인용, 참조, 링크 등 모든 방식으로 자유롭게 활용 및 사용할 수 있습니다. 다만, 원문의 출처 및 저자(필자) 정보는 반드시 밝혀 표기해야 합니다.
『건축신문』 웹사이트 공개된 이미지의 복제, 전송, 배포 등 모든 경우의 재사용을 위해서는 반드시 원 저작자의 허락을 받아야 합니다.

