acc + HITECTURE
전경선, 현진석, 최지원
분량3,440자 / 7분 / 도판 13장
발행일2025년 9월 8일
유형작업설명
전경선 한양대학교 건축학부
현진석 한양대학교 건축학부
최지원 한양대학교 건축학부

[acc + HITECTURE]는 장식물을 뜻하는 accessory와 건축의 합성어이다.
건축과 장식 사이의 관계는 오랜 시간에 걸쳐 많은 논의가 있었던 주제다. 아마 이러한 건축적 액세서리들을 제일 쉽게 발견할 수 있는 건축은 한국의 ‘상가’라고 불리는 상업 건축물일 것이다. 이러한 액세서리 없이 상가 건축이 지속될 수 있을까? 만약 아니라면, 상가 건축의 액세서리는 어떻게 변화해야 하는가? 이 프로젝트에서는 한국의 상가 건축과 그와 별개의 요소로 인식되던 건축적 액세서리 사이의 관계에 대해 다루고자 한다.
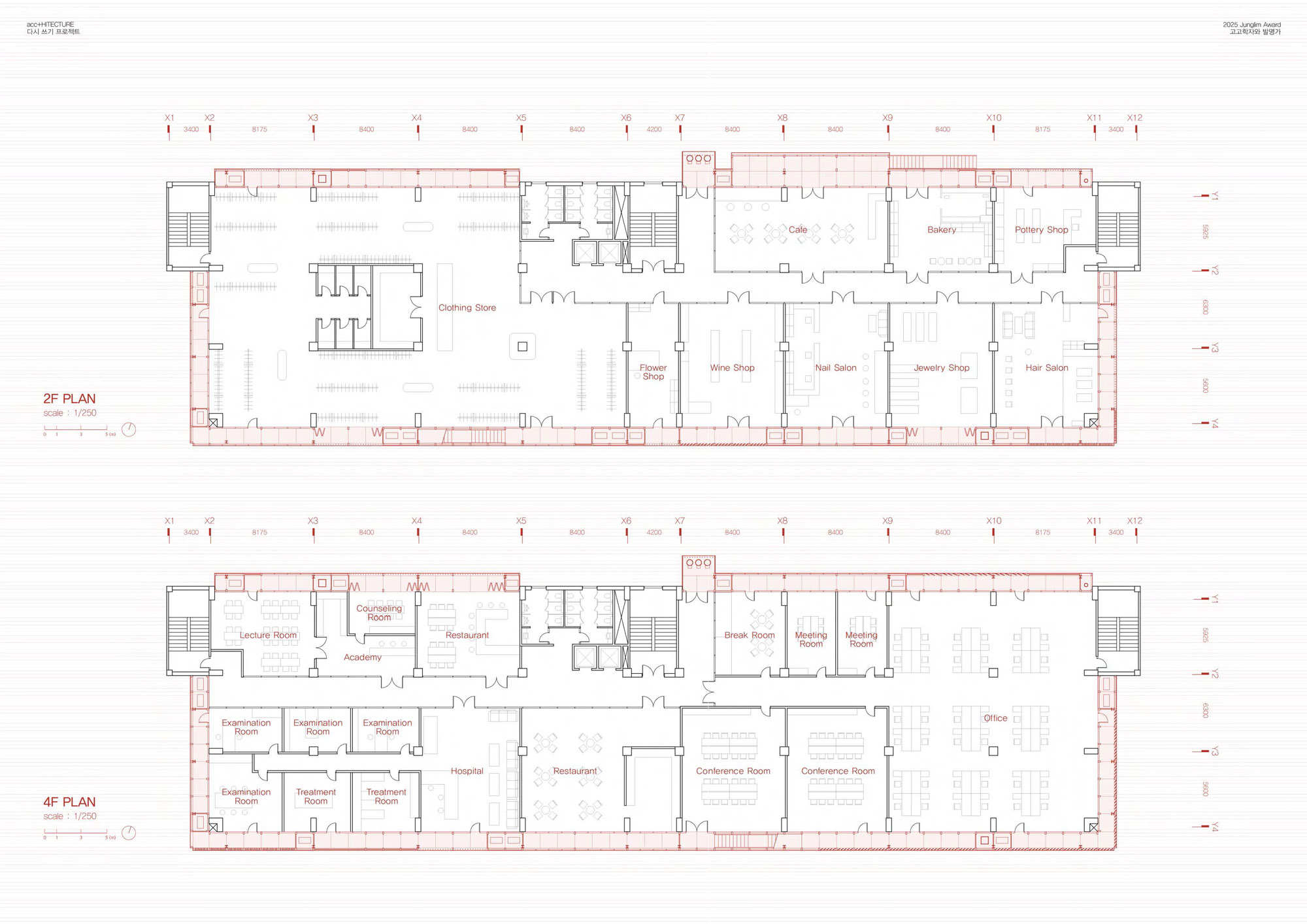
상가 건축은 도시의 가로 환경을 형성하는 대표적인 건축 유형이다. 특히 1980년대 급격한 도시화와 함께 지어진 상가 건물들의 외부에는 간판, 덕트, 배관 등의 다양한 건축적 액세서리가 덧붙여지면서 복잡한 입면을 형성한다. 이러한 건축적 액세서리는 단순한 치장 요소가 아니라 공간적 요구를 반영하며 필수적인 기능을 수행하지만, 건축과의 관계가 체계적으로 정리되지 못해 혼란스러운 가로 경관을 형성한다.

반포쇼핑타운 3동은 1980년대에 지어진 전형적인 상가 건물이다. 내부 프로그램의 수요에 따라 캐노피, 실외기, 덕트, 전선 커버, 간판 등의 액세서리가 시간이 지남에 따라 건물의 입면에 층층이 쌓이며 하나의 독립된 층(Layer)을 형성하게 되었다. 이러한 요소들은 건물의 원래 구조와 분리된 채 배치되면서 입면을 더욱 복잡하게 만들고 있으며, 이에 대한 정비 사업이 시행되었음에도 규제를 회피한 임시 간판 등의 문제는 여전히 해결되지 않고 있다.



이러한 문제의 근본적인 원인은 건축과 액세서리 간의 위계가 명확하게 정리되지 못했기 때문이다. 기존 상가 건축은 유연한 평면 구성이 가능하지만, 외부의 액세서리는 이에 효과적으로 대응하지 못하고 있다. 내부 프로그램이 변할 때마다 새로운 액세서리가 추가되면서, 기존의 액세서리와 충돌하거나 비효율적으로 배열되는 경우가 발생한다.
이에 대한 해결책으로 [acc + HITECTURE] 프로젝트는 기존 건물의 외벽을 제거하고, 입면 모듈 시스템을 도입하는 방안을 제안한다. 구조적 보강을 위해 기존 기둥과 보에 H-형강 철골조를 부착하여 부가적인 골조를 형성하고, 여기에 다양한 액세서리 옵션을 적용할 수 있는 모듈 시스템을 구축한다. 이 시스템은 건물의 변화하는 상업적 요구를 수용하며, 기존 액세서리가 수행하던 기능뿐만 아니라 새로운 기술과 공간 변화에 대응할 수 있도록 설계된다.


입면 모듈 시스템은 기본적인 구조적 프레임과 액세서리 옵션으로 구성되며, 건물의 용도에 따라 다양한 크기로 조정될 수 있다. 내부 프로그램이 변경되면 모듈을 교체하거나 액세서리 옵션을 변경하여 유연하게 대응할 수 있으며, 같은 건물 내에서도 서로 다른 크기의 모듈을 적용하여 공간의 활용도를 극대화할 수 있다. 이처럼 모듈 시스템은 단순한 외관 정비를 넘어 상업 건축의 본질적인 문제를 해결하고, 변화하는 환경 속에서도 지속적으로 적응할 가능성을 제공한다.





[acc + HITECTURE] 프로젝트는 특정 상가 건물 하나의 리노베이션을 넘어, 보다 광범위한 상업 건축 환경의 변화를 목표로 한다. 이 시스템은 대부분의 상가 건축에 적용할 수 있으며, 같은 시스템을 사용하더라도 각 건물의 수요에 따라 전혀 다른 입면을 가지게 될 것이다. 어쩌면 미래에는 엘리베이터의 발명보다 더 획기적인 건축적 액세서리가 등장할지도 모른다. 그렇게 되면 기존의 상가 건축물이 낡은 구시대의 건물로 전락하는 대신, 단순한 옵션 교체만으로 새롭게 거듭나는 가능성을 상상해본다. [acc + HITECTURE] 프로젝트는 이러한 가능성을 실현하기 위한 하나의 제안으로, 건축적 액세서리를 단순한 부속물이 아닌, 건축과 긴밀하게 결합한 유연한 시스템으로 전환하는 방안을 모색한다.

심사위원 질의응답
이상윤 ‘장식도 건축의 일부인가’라는 흥미로운 질문으로 시작해 굉장히 모범적으로 프로세스를 진행한 것 같다. 1980년대에는 상업 시설이 이런 상가 건물 정도를 제외하면 건물 유형이 거의 없었는데, 이번 프로젝트는 간판 같은 외부 파사드를 현실적으로 잘 활용한 좋은 제안이라고 생각한다.
발명품을 만들면 특허를 내게 되는데, 이 작업에서 파사드가 내부 설계적인 부분이나 다른 요소로 연결되는 부분이 있는지 궁금했다. 외부에 지나가는 배관이나 우수관 등 배관 시스템까지 고려하여 바깥으로 확장 가능성이 있다는 제안은 확인했으나, 틀을 중심으로 하는 외부 파사드를 특허로 낸다면 어떤 점을 차별화하여 특허를 걸 수 있을지 궁금하다.
acc+HITECTURE 우리는 내부 슬라브와 기둥을 해체하지 않고 외벽만 털어내고 구조 보강을 하면서 시스템화를 한 점에 가장 중점을 두고 프로젝트를 진행했다. 그래서 특허를 준비한다면 모듈 조립 형식에 초점을 맞추게 될 것 같다. 구체적인 특허 대상은 구조적인 프레임과 적용할 수 있는 옵션 시스템에 집중할 수 있을 듯하고, 그것이 통합된 모듈에 더 비중을 두고 있습니다.
양수인 이 프로젝트에서 ‘장식도 건축의 일부인가’라는 질문보다는 ‘액세서리’라는 단어 사용이 중요하다고 생각한다. 왜냐하면 실제로 대수선이나 증축을 할 때 누구나 이렇게 하길 원하겠지만, 면적이 늘어나면 주차 공간 등 문제도 생기기 때문에 현실적으로 불가능한 경우가 많다. 뒤쪽 2층 카페가 밖으로 나가 있는 것도 액세서리가 아니고 증축이라는 점에서 말이 안 되는 프로젝트가 될 수도 있다.
그래서 이 프로젝트가 액세서리라는 이름으로 인정받으려면, 법적으로 모호한 영역을 명확히 할 필요가 있다. 예를 들어 액세서리는 지붕이 없고, 몇 미터 정도만 튀어나와 있으므로 증축이 아니라는 기준, 근거 등이 있어야 한다. 그런 지점을 더 적극적으로 명확하게 해야 한다. 이게 만약 증축으로 인정되면 이 프로젝트 기반이 없어지기 때문이다. 이 부분이 아킬레스건 같아 보인다.
acc+HITECTURE 우리도 법적 부분과 증축 관련 내용을 인지하고 있다. 다만 우리가 집중한 부분은 법적 검토보다는 미래에 등장할 가능성 있는 액세서리 도입까지도 고려해 검토한 것이다. 1층 모듈은 주차나 출입구 등 접근성을 고려해 비워두는 방안을 계획했다. 이는 상업 건축물 특성을 반영한 투명성 확보 차원이다.
양수인 현재 상태로는 법적·공간적 문제로 프로젝트가 말이 안 되는 부분이 아쉽다. 예를 들어 아파트 발코니가 면적에서 제외되는 법이 세계 어디에도 없지만, 우리나라에서만 그렇게 된 것처럼, 만약 이 프로젝트가 한 단계 더 나아가려면 액세서리 개념을 명확히 정의하고, 자원 낭비 없이 다시 쓸 방안을 법적 특례로 인정받아야 한다. 그러지 않으면 그냥 증축일 뿐이다. 여러분이 액세서리로 인지하고 이를 만들려는 의지가 있는 건 흥미롭지만, 현재 상태로는 증축으로 보여 문제다.
원고화 및 편집 심미선
acc + HITECTURE
분량3,440자 / 7분 / 도판 13장
발행일2025년 9월 8일
유형작업설명
『건축신문』 웹사이트 공개된 모든 텍스트는 발췌, 인용, 참조, 링크 등 모든 방식으로 자유롭게 활용 및 사용할 수 있습니다. 다만, 원문의 출처 및 저자(필자) 정보는 반드시 밝혀 표기해야 합니다.
『건축신문』 웹사이트 공개된 이미지의 복제, 전송, 배포 등 모든 경우의 재사용을 위해서는 반드시 원 저작자의 허락을 받아야 합니다.