Material Station
김서윤, 남정우, 안우진
분량4,499자 / 9분 / 도판 15장
발행일2025년 9월 8일
유형작업설명
김서윤 이화여자대학교 건축학과
남정우 서울대학교 건축학과
안우진 서울대학교 건축학과

건설폐기물
2023년 우리나라 총 폐기물 중 건설폐기물은 전체의 약 3분의 1에 해당한다. 이들의 처리 방법은 재활용이 99.6%로 대부분을 차지하여 얼핏 보기에 긍정적이지만, 대부분 순환골재에 치우쳐있어 고부가가치 재활용, 나아가 재사용까지는 이루어지지 않는 현실이다. 건설 산업의 지속가능성을 달성하기 위해 근본적인 사고의 전환이 필요하다.
건축자재의 재사용
프랑크 듀피의 ‘레이어드 빌딩 모델’은 건물을 하나의 단일체가 아닌 6개 층위로 나누어, 각각의 특성과 수명에 따라 다시 쓰기의 단서를 제공한다. 이에 따라 재사용 가능할 예상 자재들을 유형화한다. 벽돌, 블록 등 본래 규격화된 요소나, 목재, 금속 등 건식 공법으로 지어진 요소, 나아가 창호, 가구 등 혼합건설폐기물이 해당한다.

건축자재의 재사용촉진에 관한 법률
현재 건설폐기물의 재활용을 촉진하기 위한 법률이 제정되어 있다. 그렇지만 ‘재사용’의 개념은 존재하지 않고, 재활용은 순환골재만을 의미하고 있으며, 그 처리시설 역시 분쇄·파쇄만 존재한다. 따라서 본 프로젝트는 재사용 및 재사용시설을 현행 법률과 같은 맥락에서 정의하는 것을 그 출발점으로 삼았다.

주유소의 유형학
산업화로 인한 고도성장과 자동차의 보급으로 주유소는 우리나라의 ‘여느 건물’이 되어왔다. 1995년 주유소 간 거리 제한 폐지 이후 수가 급증했으나, 최근 기후 위기로 화석연료 사용을 줄이며 장차 사양산업이 될 것이라는 전망이다. 주유소는 차량 접근이 용이한 좋은 입지에 있어, 민간에서는 고밀도의 오피스텔이나 상업시설 재건축을 선호한다. 그러나 주유소를 철거하고 오염된 토양을 정화하기 위해 상당한 비용이 소모되므로, 상권이 좋은 일부 지역을 제외하면 폐업 후 방치되는 경우가 많다.
주유소 다시 쓰기 – 자재 거점
기존의 건설 산업은 선형적 모델을 따라왔으나, 지속가능성을 위해 순환적 모델로 전환될 필요가 있다. 이 순환건축은 건설폐기물 감축과 건물 생애 주기 연장, 나아가 새로운 건설 산업 구조를 일궈낼 수 있다. 이러한 순환건축에 기여하는 건축자재 재사용을 위해서 수집된 자재들을 가공·보관하여 소비자에게 판매하는 새로운 업역이 필요하다. 이를 조율하는 유형인 ‘자재 거점’을 제안한다. 주유소의 입지와 요소들이 그 기능과 적합하다고 판단하여, ‘자재 거점’을 위한 장소로 주유소를 선정한다.

서울특별시 광진구 자양동
프로젝트의 대상지를 선정하기 위해, GIS를 바탕으로 서울 내 1980년대 사용승인 단독주택의 핫스팟 분석을 실시하여 소규모 노후건축물 밀집지를 도출한다. 이후 1980년대 사용승인 주유소 40동의 좌표를 추출하고, 이를 교차하여 총 7곳의 자재 거점 예상 입지를 선별한다.
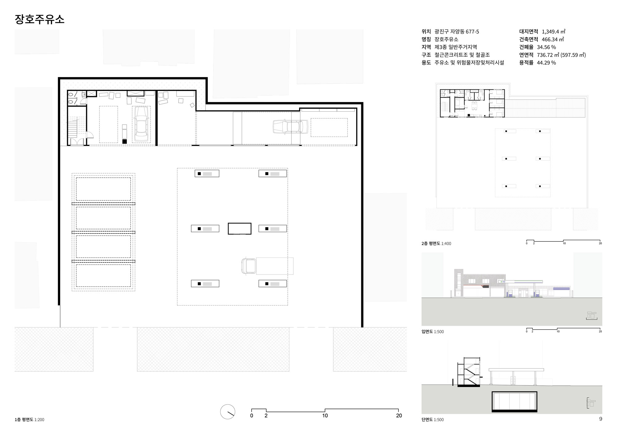
최종 대상지인 광진구 자양동 일대는 서울 도심 내에 있으면서도, 오래된 단독주택 및 다가구·다세대 주택이 모여있는 곳이다. 또한 일대의 재개발 열기가 활발하여, 이곳을 자재 거점의 적정 지역으로 설정하고 인근 주유소인 장호주유소를 다시 쓰기의 대상으로 선정한다.

발명 1: 공방
자재 거점에는 주변 건물로부터 회수한 자재들을 가공할 공간이 필요하다. 주유소 부속동은 규모와 설비 면에서 적합한 부분이 많아, 최소한의 변화를 통해 공방으로 전환할 수 있다. 과거 세차 설비가 들어있던 부속 건물에는 자재 가공에 필요한 각종 기계·설비가 설치되고, 기존의 차량 동선을 따라 자재들이 공정을 거쳐 창고로 운반된다. 차량 정비실은 재사용 자재를 활용하여 가공품을 제작하는 공방으로 전환되며, 이를 실내화하기 위해 자양동 일대에서 회수한 창호를 재사용하여 입면을 재구성한다.

발명 2: 창고
노후한 골강판 지붕을 걷어내고 캐노피의 철골 뼈대만을 남긴다. 이때 태양전지판을 설치하여 자재 거점에 필요한 전기를 보충하고, 이를 위한 경량 철골의 박공지붕은 북측 면을 폴리카보네이트로 마감하여 은은한 간접광을 전달한다. 지상에는 건축자재 보관에 용이한 캔틸레버 랙을 설치하여 독립적인 구조로 새로운 입면을 구성한다. 이때 규격화된 재사용 철골을 해체 가능한 건식공법으로 조립한다. 입면은 폴리카보네이트 마감으로 충격과 화재를 방지하면서도 내부의 궁금증을 자아내는 반투명성을 의도한다.

발명 3: 쇼룸
탱크조실을 굴착한 흔적은 새로운 공간의 가능성이지만, 새 콘크리트 벽을 소성하는 것은 또 다른 폐기물을 생산할 뿐이다. 흙막이 공사에 쓰이는 강널말뚝은 지반을 효과적으로 막아내는 재사용 가능한 자재이다. 이를 활용하여 지하공간을 구획한 후 경량 철골조의 실내 공간을 조성한다. 자재 거점은 특정되지 않는 물품들을 유통하기에, 이를 소비자에게 전시하는 장소가 필요하다. 이에 새로이 확보한 지하공간을 쇼룸으로 사용한다. 다양한 소비자들의 방문으로 쇼룸은 단순한 창고가 아닌 지역 재사용 문화의 중심지가 될 수 있다.

재사용된 자재, 다시 쓰는 거점
본 프로젝트는 주유소라는 유형에 주목하여, 이를 자재 거점으로 다시 쓰는 방법을 제안했다. 주유소의 기존 요소를 활용하고, 새로운 자원의 사용을 줄이며, 구축에서부터 향후 재사용을 고려했다. 이에 따라 도출된 발명품들은 주유소라는 건축적, 재사용이라는 산업적 차원에서 일반해가 될 수 있다. 도시 곳곳에서 지역의 자재 순환을 매개할 자재 거점의 모습을 상상해본다.

심사위원 질의응답
이상윤 이 프로젝트는 주유소를 대상으로 했다는 점이 흥미로웠다. 그 아이디어에서 더 나아가, 레이어드 모듈러 시스템을 적용하고, 다양한 유형을 분석·적용한 점이 좋았다. 건축 자재 재사용과 이를 위한 거점 시설물 구축이라는 주제는 시의성이 있고 설득력 있었다.
다만 궁금한 점이 있다. 재활용·재사용과 관련한 법적인 부분까지 끌어와 멋진 이야기를 만들었지만, 결과물에서 이 시대의 건축가로서 하고 싶은 이야기가 무엇인지 잘 보이지 않았다. 예를 들어 르 코르뷔지에나 도미노 시스템처럼, 당시에는 없던 유형을 제안하며 자기 의견을 설득력 있게 녹여낸 경우가 있는데, 이 프로젝트도 초반 렌더링 이미지를 보면 미스 반 데어 로에의 바르셀로나 파빌리온, 르 코르뷔지에의 모더니즘 건축에 대한 현대적 해석을 기대하게 했으나, 내가 놓친 것인지 발견하지 못했다. 그 부분이 가장 궁금하다.
MS 우리가 재사용을 키워드로 선택한 이유는 단순히 환경적 요인 때문만은 아니다. 기후 위기에 관한 이야기가 클리셰로 변해가는 것이 아쉽지만, 그 자체가 앞으로 우리가 반드시 마주할 시대정신이라고 생각했다. 르 코르뷔지에, 프랭크 로이드 라이트, 미스 반 데어 로에 등은 단순히 새로운 구조를 적용한 것이 아니라, 20세기의 변화와 그로 인한 건축적 가능성을 개척했기 때문에 의미가 있었다. 우리도 지금 시대에 맞는 건축을 고민했고, 자본 중심 사고에서 벗어나 거시적인 입장에서 더 오래, 더 잘 작동할 수 있는 건축을 만들고자 했다. 그 실현 가능 요소 중 하나가 ‘재사용 건축’이었고, 아직 아무도 본격적으로 시도하지 않은 영역이라 이를 위한 소규모 인프라와 시스템을 제안했다.
양수인 프로젝트에서 사용된 재료인 폴리카보네이트, 캐노피, 철판, 철골, 아일랜드 철제 등은 모두 재사용된 것인가?
MS 모두는 아니다. 도면에 노란색, 빨간색, 초록색으로 레이어를 표시했는데, 초록색이 ‘재사용 자재’다. 예를 들어, 캔틸레버 랙은 기존 자재 보관용 레일 시스템에서 착안했고, H빔 등을 볼트 건식 조립 방식으로 가져와 재사용할 수 있도록 설정했다. 시트 파일, 재사용 창문틀 등도 같은 방식으로 표시했다.
양수인 나는 주유소라는 아이템이 예전부터 매력적이라고 생각했다. 교통 요지에 있지만, 언젠가는 사양될 수밖에 없고, 그 땅이 다시 쓰일 가능성이 높기 때문이다. 다만 아이디어에 대해 냉정하게 얘기하자면, 공사 현장에서 쓰는 철골 같은 건 이미 100% 재사용된다. 값이 나가니 그냥 버리지 않는다. 즉, 재사용 자체는 자본 논리에 의해 이미 많이 이루어지고 있다. 그러므로 그 이상으로 ‘재사용 센터’를 만들고, 개념을 확장하려면 더 구체적인 근거가 필요하다. 재사용이 어려운 이유는 버리는 게 더 싸고 편하기 때문이고, 선의만으로는 지속되지 않는다. 금전적 메리트나 용적률 인센티브 같은 ‘교환 조건’이 있어야 가능하다. 그래서 ‘재사용’이라는 단어는 좋지만, 제게는 치열하고 현실적인 프로젝트로 다가오지 않았다.
MS 말씀하신 부분은 사회 구조나 법규, 그리고 전반적 인식 변화와 관련된 ‘하부 구조’ 이야기라고 생각한다. 우리는 그것까지 깊게 다루기보다, 그런 사회가 도래할 것이라는 가정 아래, 이를 뒷받침할 시설과 유형을 제안하는 데 초점을 맞췄다. 또, 유럽 사례를 보면 건축 자재와 가구가 ‘중고 거래’처럼 순환되는 경우가 많다. 요즘 의류 빈티지숍이나 당근마켓에서 쉽게 재거래하듯, 건축 자재도 그렇게 접근할 수 있다고 생각했다. 큰 사업성을 생각하기보다, 개인들이 관심을 가지고 참여할 수 있는 가벼우면서도 확장성 있는 구조를 만들면 경제 구조 속에서도 작동할 수 있다고 보았다. 이 프로젝트는 그 가능성을 제안하는 작업이었다.
원고화 및 편집 심미선
Material Station
분량4,499자 / 9분 / 도판 15장
발행일2025년 9월 8일
유형작업설명
『건축신문』 웹사이트 공개된 모든 텍스트는 발췌, 인용, 참조, 링크 등 모든 방식으로 자유롭게 활용 및 사용할 수 있습니다. 다만, 원문의 출처 및 저자(필자) 정보는 반드시 밝혀 표기해야 합니다.
『건축신문』 웹사이트 공개된 이미지의 복제, 전송, 배포 등 모든 경우의 재사용을 위해서는 반드시 원 저작자의 허락을 받아야 합니다.





