모음집
박채연, 강다현, 윤은
분량3,597자 / 7분 / 도판 13장
발행일2025년 9월 8일
유형작업설명
박채연 한국예술종합학교 건축과
강다현 한국예술종합학교 건축과
윤은 한국예술종합학교 건축과

1980년대는 한국 경제가 압축 성장을 이루며 세계 시장으로 도약하던 시기다. 도시로의 인구 집중이 가속화되면서 교통 체증과 주택 부족 등의 문제가 대두되었다. 내 집 마련이라는 꿈은 점점 멀어지며, 셋방살이해야 하는 가구가 많아졌다. 현시대는 다세대 주택과 소형 필지를 다시 쓸 방법을 모색하지 못하고 전체를 긁어 없애 새로운 것이 세워진다. 많은 주택이 아파트로 바뀌는 주거 단일화를 가만히 방관할 수 없으며 여전히 남아있는 다세대 주택을 다시 쓸 방법을 찾아야 한다.
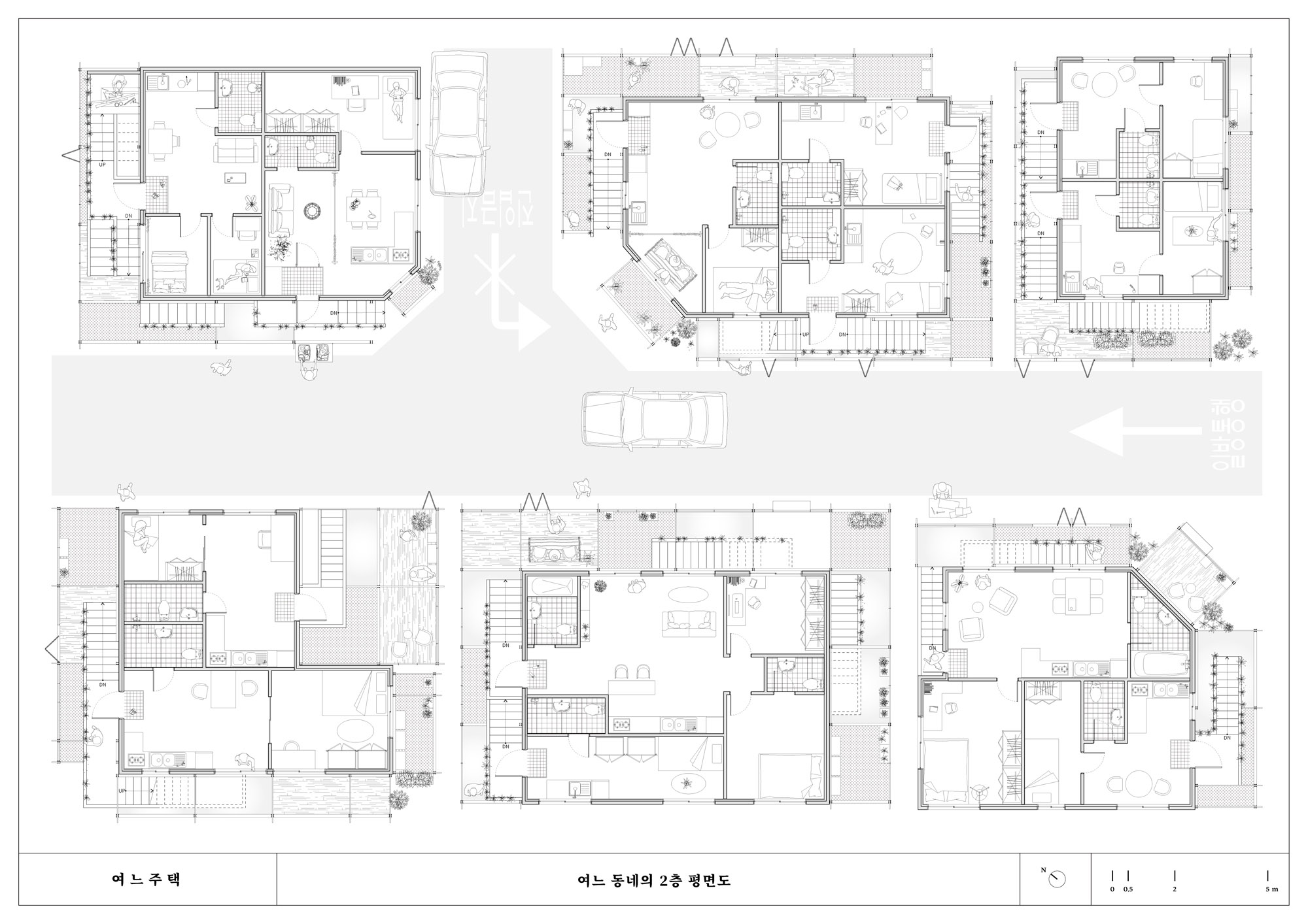
서울에 펼쳐진 여느 주택들을 수집했고, 여기에는 집의 요소들을 무작위로 조합해 만든 가상의 집이 섞여 있다. 가상과 실제를 구분할 수 없는 이 과정을 통해 여느 집의 전형을 발견했다. 합법적으로 승인되지 않았지만, 거주자의 필요로 덧붙여지고, 암묵적으로 용인되는 불법 증개축 행위는 다세대 주택을 다시 쓰고 있는 방법일지도 모른다. 거주자의 필요와 욕구에서 출발한 끝없는 장식과 흔적이 점점 더 쌓이면 그 미래는 어떤 형태로 나타날지 상상하기 쉽지 않다. 그러나 이 미래를 상상할 겨를도 없이 이름 없는 집들은 흔적을 남기지 않은 채 이름 있는 아파트로 바뀐다. 이 땅따먹기 게임에서 아파트가 모든 땅을 차지하는 것이 아닌 다양한 주거 형태가 공존하며 무승부 게임으로 남을 방법과 미래를 고민해야 한다.
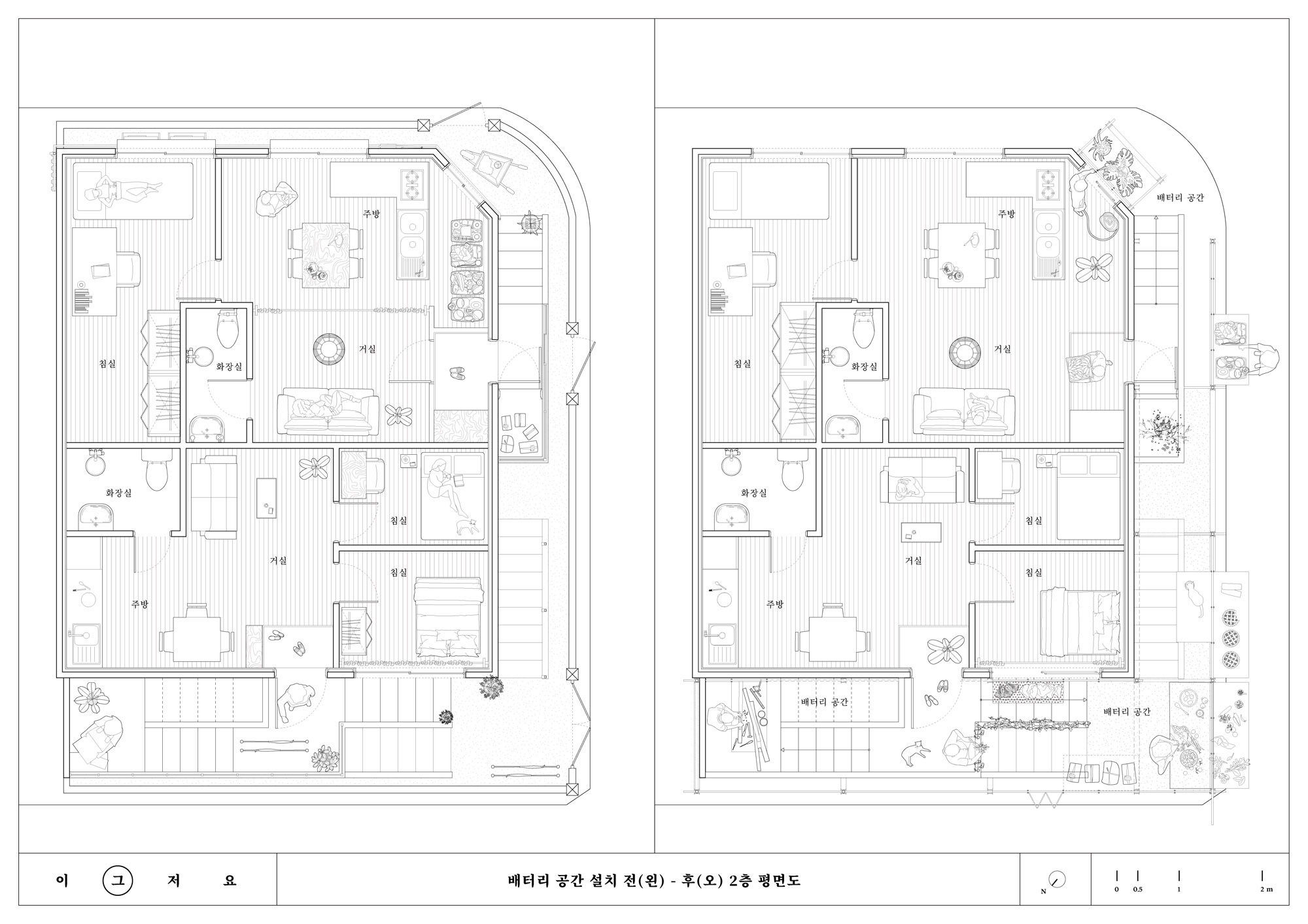
주택을 다시 쓰기 위한 건축적 발명품으로 배터리 패키지를 제안한다. 발굴한 대상은 특정 주택이 아니라 도시의 여느 주택이기에 이 제안은 불법 증·개축의 모습처럼 가변적이고 유연한 시스템이어야 한다. 배터리 패키지는 배터리 법, 배터리 공간, 배터리 하우스와 미리내집키트로 구성된다.

배터리 패키지를 사용하는 순서는 이와 같다. 첫 번째 배터리 법에서 안내된 배터리 공간 선정 구역에 해당하는지 확인한다. 두 번째 법에 따라 불법 임시 건물을 철거한다. 세 번째 집을 측정하고, 기록한다. 네 번째 미리내집키트를 수령한다. 다섯 번째 배터리하우스에서 자재들을 주문한다. 마지막으로 자재와 가구를 손쉽게 조립한 후, 배터리 공간을 누릴 수 있다.
배터리 법은 불법 건축물 규제 및 주거 다양화를 위한 법이다. 1~3조는 이 법의 목적과 요건, 버림 공간과 같은 용어를 설명한다. 7조의 폭 산정 함수에 따라 디자인된 H빔으로 배터리 공간이 세워진다. 사용자는 8~10조를 지키며 다양한 재료의 패널 유닛을 구성한다. 11조에 따라 건물의 배관은 프레임의 그리드를 따라 흐른다. 12~14조에서는 계단과 옥상의 형태와 쓰임도 규제한다.

배터리법에 따라 가건물 철거와 실측 과정을 거치면 미리내집키트를 수령한다. 1/30 스케일이며 쉬운 재료와 설명서로 구성했다. 다양한 자재와 가구를 넣어보며 배터리 공간을 고민하는 과정을 거친다. 미리내집키트를 통해 결정한 재료를 배터리 하우스에서 구매할 수 있다. 사이트에서는 조립이 간편한 유닛 특성을 고려해 동네 주민과 자재를 나누거나 판매할 수 있는 게시판도 운영된다. 배터리 하우스에서 주문한 재료를 받으면 배터리 공간을 사용할 수 있다. 기존 주택 내부에서 비롯된 문제들은 외부까지 영향을 미치며, 불법 건축물과 같은 문제를 야기했다. 배터리 공간의 개입을 통해 내부의 욕구를 외부에서 충족할 수 있으며, 이를 통해 집 내부의 환경과 상황의 변화도 기대할 수 있다.


배터리 공간은 거주자의 필요를 수용하는 동시에 기본적인 생활환경을 개선하며 공간 활용도를 높인다. 이는 단순히 주택 환경을 보완하는 것에 그치지 않고, 기존 구조의 한계를 극복하며 사회의 해묵은 숙제인 도시 미관 정비와 불필요한 법적 논쟁을 줄이는 데 기여할 수 있다. 거주자는 배터리 법을 지키며 그 안에서 치밀하게 그들의 공간을 만들어내는 모습이 보인다. 또한 불법 가건물로 난무했던 옥상은 텃밭, 공개공지 등 공공의 편익을 위해 함께 쓰는 이용자들과 상의해 결정할 수 있다. 배터리 공간은 큰 힘과 전문적인 지식 없이도 모두가 손쉽게 조립할 수 있다. 상세도에서 12조에 따른 계단 디자인과 유닛의 결합 방식을 설명한다.



담장과 가건물을 허물고 난 후, 집 안으로 바람과 햇빛이 잘 들어오고, 적절한 가구와 키울 식물을 고민한다. 이웃의 배터리 공간을 구경하는 재미가 생겼고, 공개공지로 옥상을 사용해 배터리하우스에서 감면 혜택을 받는다. 제법 동네에 배터리 공간이 많이 생겨 이웃 간의 거래도 활발해진다. 우리의 발굴과 발명은 다세대 주택이 가진 여전한 잠재력을 발견하고, 지속 가능한 주거 공간으로 다시 쓰일 수 있다는 믿음을 바탕으로 한다. 우리가 찾아낸 해답이 완성된 결론이 아닌 다른 가능성을 향한 출발점이 되기를 바란다.

심사위원 질의응답
이상윤 발표로 보여준 내용 이상의 많은 상상을 하게 만든 프로젝트였다. 특히 ‘건축사의 영역’에 대해 고민하게 됐다. 건축사 라이센스 없이 하는 작업과, 건축사 자격을 갖춘 후 하는 작업 사이의 경계가 어디일까? 이 프로젝트를 보면서, 건축가로서 충분히 생각해 볼 수 있는, 그리고 어쩌면 건축 버전의 이케아로 확장할 가능성을 느꼈다. 이런 틀을 만든 점은 정말 훌륭하지만, 건축가로서 그 틀과 시스템 이상의 것은 무엇인지 궁금하다. 단순히 구조나 시스템만 제시하는 것이 아니라, 전문가로서 보여주고 싶은 건축적인 가치나 미적인 지점이 있나?
모음집 우리는 ‘배터리 공간’을 구성하는 일 자체가 새로운 전문 영역이 될 수 있다고 생각했다. 건축가의 역할이 설계에서 끝나는 것이 아니라, 자기 집 앞 공간을 직접 구성하는 것을 도와주는 새로운 직업군이 생길 수도 있다고 봤다. 또한, ‘배터리 법’을 별도로 규정했다. 공간을 완전히 자유롭게 만드는 것이 아니라, 앞집의 채광이나 환기를 보장하는 등의 규제를 설정했다. 이런 법을 만드는 일도 건축가가 할 수 있는 영역이라고 생각했고, 단순한 디자인이 아닌 제도 설계까지 포함하는 것이 우리의 목표였다.
양수인 이런 류의 프로젝트가 제출안 중에 꽤 많았는데, 그중에서도 이 프로젝트가 독특하다고 느낀 지점은 대부분이 진짜 가설재(비계 파이프 등)를 사용했는데, 이 프로젝트는 가설재가 아닌 새로운 시스템을 개발해, 하나의 산업이나 영역을 만들 수 있다는 점이었다. 또, 건축 관련 법 제도를 제안하는 것도 굉장히 진취적이고 좋았다.
그런 한편, ‘여기서 가장 악의를 가진 사람이 이 법을 최대한 자기 이익을 위해 해석하고 사용한다면 어떤 일이 벌어질까?’하는 의문이 들었다. 우리나라 법은 다른 나라보다 수치적이고 정량적인 규제가 많다. 단열재 두께나 성능 수치, 스프링 필러 규격 등 구체적이다. 그런데 이 팀에서 제시한 법은 모호하면서도 좋은 표현이 많으므로 어떻게 해석하느냐에 따라 결과가 크게 달라질 수 있다고 느꼈다. 예를 들어 내가 설계할 때 이 법을 적용해야 한다면, 그 안에서 최대한의 이익을 뽑아낼 방법을 찾을 것이다. 그렇게 악용됐을 때 어떤 일이 벌어질지, 그리고 그걸 어떻게 개선할 수 있을지도 궁금했다. 언젠가 이 프로젝트 안에서 ‘가장 악용된 사례’를 가정해 보는 것도 재미있을 것 같다. 그리고 그 개선 방안을 찾아 포트폴리오에 넣는 것도 의미 있을 것 같다.
원고화 및 편집 심미선
모음집
분량3,597자 / 7분 / 도판 13장
발행일2025년 9월 8일
유형작업설명
『건축신문』 웹사이트 공개된 모든 텍스트는 발췌, 인용, 참조, 링크 등 모든 방식으로 자유롭게 활용 및 사용할 수 있습니다. 다만, 원문의 출처 및 저자(필자) 정보는 반드시 밝혀 표기해야 합니다.
『건축신문』 웹사이트 공개된 이미지의 복제, 전송, 배포 등 모든 경우의 재사용을 위해서는 반드시 원 저작자의 허락을 받아야 합니다.



